Морозильник Miele FNS 4882 D edt/cs в Казани и Татарстане
Уникальные индивидуальные
условия при посещении магазина
Характеристики
Особенности
Описание
Морозильник Miele FNS 4882 D edt/cs — замечательный выбор для всех, кто нуждается в надежном и современном приборе, чтобы обустроить кухню по последнему слову техники.
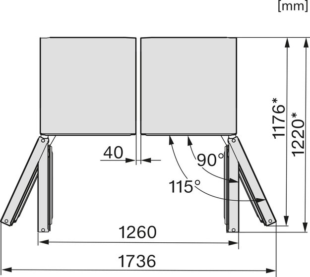
Данная модель — отдельностоящая, поэтому нужно тщательно подобрать место для ее размещения. Вы можете поменять направление открывания двери, так как упор переставляемый и ее можно перевесить на другую сторону. Такая функция открывает больше возможностей для установки. Отдельную морозильную камеру чаще всего выбирают для частного дома или дачи, для производства, когда актуально хранение большого объема замороженных продуктов. Советуем обратить внимание на этот вариант. Количество камер: 1.
Особенности дизайна также помогут вам остановить свой выбор на этой модели Миле. Цвет корпуса: нержавеющая сталь. Благодаря электронной системе управления легко регулировать и контролировать температуру.
Система охлаждения этого холодильника — циркуляционная .
Другие особенности модели, на которые стоит обратить внимание при покупке:
- при внезапно отключившемся электричестве морозильник сохраняет температуру на 16 часов;
- класс SN-T позволяет технике без проблем работать в нашей климатической зоне.
Список всех характеристик прибора представлен ниже — он поможет сделать правильный выбор. Желаем удачных покупок!
Общие характеристики

Современные холодильники разделяются на категории по нескольким параметрам. В первую очередь они классифицируются по типу установки. Здесь выделяются две большие категории: встраиваемые и отдельностоящие устройства.
Отдельностоящие холодильники — наиболее распространенный и востребованный тип для домашней установки. Производители предлагают модели самого разного размера — например, высота их может варьироваться в пределах от 30 до 220 см. Холодильники могут иметь самый разный внутренний объем, набор функций, дизайн, материал изготовления и цвет корпуса.
Заметное преимущество отдельностоящих моделей — простота их транспортировки. При достаточно большом весе многие агрегаты оснащены приспособлениями, позволяющими легко перемещать их с места на место. Для установки такого холодильника требуется только заземленная розетка. Их нельзя устанавливать вплотную к плите, духовому шкафу и другим устройством с повышенной температурой.
Встраиваемые холодильники монтируются в нишу или колонну. Передняя их часть закрывается декоративным мебельным фасадом и снаружи не отличается от дверцы обычного кухонного шкафа, так что их не нужно подбирать под интерьер помещения. Объем этих холодильников, как правило, несколько меньше, чем у отдельностоящих, так как при встраивании необходимо оставлять свободное пространство для вентиляции. Они отличаются меньшим уровнем шума, а также лучше держат холод и отличаются большей экономичностью из-за дополнительного слоя изоляции. Ассортимент этих холодильников не так велик, как у отдельно стоящих, установка более трудоемкая, а стоимость обычно несколько выше.
Технику можно также классифицировать по типу охлаждения или по принципу работы. Здесь можно выделить компрессорные холодильники, которые встречаются в продаже наиболее часто. Принцип их действия основан на свойстве некоторых веществ поглощать тепло при испарении.
Термоэлектрические холодильники основаны на так называемом эффекте Пельтье, а именно на понижении температуры при контакте двух разных проводников при прохождении через них электрического тока. Такие холодильники отличаются очень низким уровнем шума и используются чаще всего для установки в автомобилях, а также для хранения вин. Достаточно редкий тип холодильника — абсорбционный, охлаждение в котором производится за счет испарения аммиака.

Однокамерные морозильники представляют собой холодильное оборудование, предназначенное для длительного хранения продуктов при температуре ниже нуля. Благодаря этим условиям продукты не теряют свою свежесть и вкусовые качества долгое время.
Бытовые морозильники внешним видом схожи с обычным холодильником, имеющим одну дверцу. Внутреннее наполнение подобной морозильной камеры составляют стеклянные полки и установленные на них пластиковые контейнеры с плотными крышками. Такая конструкция контейнеров служит для лучшего сохранения холода.
Однокамерные морозильники могут быть как отдельностоящими, так и встраиваемыми. В продаже они представлены в широком ассортименте и могут различаться по способам разморозки, по типу управления, по минимальной температуре, объему камеры и классу энергоэффективности.
Современные морозильники способны долгое время сохранять продукты в замороженном виде при отключении электропитания. Они оснащены электромеханической или электронной системой управления, позволяющий легко регулировать температуру. Большой выбор, в том числе по габаритным размерам, позволяет подобрать модель для кухни любой площади.

Высота холодильника — один из главных факторов, влияющих на выбор модели. Очевидно, что холодильник большей высоты будет более вместительным. Однако при выборе устройства необходимо учитывать целый ряд факторов, прежде всего высоту потолков, пищевые привычки, состав семьи, рост людей, которые будут холодильником пользоваться. Как правило, встраиваемые устройства представлены в несколько меньшем ассортименте, в том числе и по высоте.
Все модели холодильников принято делить на две большие категории — со стандартными и нестандартными размерами. К первой группе относятся наиболее распространенные одно- и двухкамерные устройства европейского типа с морозильной камерой снизу. Стандартная высота больших полноразмерных моделей составляет 180-210 см, реже 220 см. Выбор подобных холодильников достаточно велик: производители предлагают модели высотой 180 см, 182 см, 185 см, 188 см и так далее.
Гораздо большим спросом пользуются так называемые средне-высокие холодильники, чьи размеры находятся в диапазоне от 150 см до 180 см. Это встраиваемые и отдельностоящие модели, которые подойдут практически для любой кухни.
Низкие холодильники высотой от 130 см до 150 см — небольшие однокамерные и двухкамерные модели с одной или двумя дверцами для малогабаритной кухни. Устройства высотой от 90 до 130 см — как правило, однокамерные холодильники и морозильные камеры. Мини-холодильники высотой до 85 см предназначаются специально для установки под столешницу; минимальная высота таких устройств составляет около 50 см.
К нестандартным моделям относятся вместительные холодильники типа Side-by-Side с распашными дверцами, чья высота составляет не менее 170 и не более 190 см, и азиатские модели высотой от 160 см до 180 см с верхней морозильной камерой.

Ширина холодильника — наиболее значимый показатель, который необходимо учитывать прежде всего при установке прибора на выбранное место. Связано это с тем, что холодильник обычно устанавливается в ряд с другой бытовой техникой или кухонной мебелью. Эти ограничения бывают более строгими, чем, например, ограничение по высоте, особенно для малогабаритной кухни. В просторных помещениях возможности выбора увеличиваются — там может быть размещен холодильник нестандартной ширины и значительный вместимости.
Стандартная ширина наиболее распространенных моделей двухкамерных холодильников с морозильной камерой снизу составляет порядка 60 см, что соответствует ширине обычной кухонной тумбы. Подобный холодильник будет смотреться уместно и не громоздко в любой кухне. Ширину 57-60 см имеют как двухдверные холодильники средней высоты, так и высокие модели. Все большую популярность приобретают узкие модели шириной 50 см, вместимость которых увеличивается за счет большой высоты от 180 см.
Мини-холодильники, которые могут быть установлены в тумбу или под столешницу, отличаются несколько меньшей шириной от 50 см. Такую же небольшую ширину имеют встраиваемые модели, что связано со способом их установки.
Наиболее разнообразны по ширине большие модели холодильников с распашными дверями типа Side-by-Side или модели с так называемыми французскими дверями. Ширина этих устройств может варьироваться в диапазоне от 80 до 160 см: многие из них представляют собой полноценный холодильник и морозильную камеру, расположенные рядом друг с другом. Несколько реже встречаются отдельностоящие холодильники нестандартной ширины от 70 до 90 см с верхней или нижней морозильной камерой — в основном это так называемые азиатские модели с морозильником сверху.

Глубиной холодильника называется расстояние от его фронтальной части до задней стенки. Известно, что при установке холодильника к стене между его задней стенкой и поверхностью должно оставаться расстояние около 8-10 см, необходимое для нормальной вентиляции. С этим также связаны ограничения на глубину этих устройств.
Стандартная глубина для обычных европейских холодильников с нижней морозильной камерой составляет около 60 см. Как и в случае с шириной, это обусловлено тем, что холодильник размещается в обычной кухне рядом с другой мебелью, бытовой техникой, рабочей поверхностью. Холодильник глубиной 60 см не будет выступать вперед, что позволяет организовать рабочее место наиболее удобно.
Диапазон размеров стандартных холодильников любой ширины и высоты может составить от 55 до 65-70 см. Иногда модели большей глубины, порядка 70 см, приобретаются для того чтобы скомпенсировать более строгое ограничение по ширине и увеличить вместимость. У мини-холодильников, которые размещаются под столешницей или в тумбе, глубина также меньше стандартной: она может составить минимум 48-50 см. Иногда в таких холодильниках часть глубины «съедает» расположенный в камере компрессор.
Наиболее разнообразны нестандартные холодильники большого размера типа Side-by-Side или French Door. Глубина таких устройств может составлять до 80-85 см. Как правило, это отдельностоящие модели, которые устанавливают в просторных помещениях. Несколько реже встречаются отдельностоящие холодильники увеличенной глубины с морозильной камерой сверху или снизу: их глубина может составить около 70-75 см. Среди них имеются как модели азиатского типа с морозильником сверху, так и европейского типа с морозильной камерой снизу — например, производства Liebherr.

Количество камер в холодильнике напрямую влияет на его габаритные размеры и, как правило, на набор возможностей и функций. Современные холодильники выпускаются в нескольких вариантах и имеют от одной до пяти или шести камер.
Однокамерные холодильники имеют одну дверь и одну холодильную камеру, в которой иногда выделяется место для небольшого морозильного отсека. Это наиболее дешевые модели, которые отличаются небольшими размерами и ограниченным количеством возможностей. В них применяется ручная разморозка, реже капельная или размораживание No Frost.
Двухкамерные модели — самые востребованные у покупателей. Они состоят из холодильного отделения и морозильной камеры, которая может располагаться сверху или снизу. Производители предлагают огромный ассортимент подобных устройств, от дешевых до элитных моделей, — с размораживанием No Frost, электронным управлением и двумя контурами охлаждения.
Трехкамерные модели выпускаются в нескольких вариантах. В некоторых случаях в качестве третьей камеры поступает так называемая зона свежести — отделение, где поддерживается температура около 0 градусов. В другом варианте подобные модели имеют морозильную камеру, состоящую из двух выдвижных ящиков.
Четырех-, пяти- и шестикамерные модели включают, кроме морозильной и холодильной камер, отдельную зону свежести (иногда состоящую из сухого и влажного отсеков) и специальный отсек для ледогенератора, а в некоторых случаях еще и винное отделение.
В некоторых подобных устройствах, например, в холодильниках Hitachi, выделяется отделение с технологией вакуумирования продуктов, увеличивающей срок их хранения, а также отдельный герметичный отсек для хранения овощей со специальной технологии поддержания свежести и контролем влажности.

Климатический класс холодильника предназначается для определения диапазона температур, в котором данное устройство будет работать нормально. Все возможности, заявленные в техническом описании, будут соответствовать ему только при соблюдении указанных условий. Холодильники разных климатических классов различаются мощностью двигателя, материалами изготовления, качеством изоляции, площадью конденсаторов и испарителей, энергопотреблением.
Выделяется 4 основных климатических класса. Класс N, или нормальный, — наиболее востребованный в российских условиях, предусматривает эксплуатацию при температуре окружающей среды от +16 до +32 градусов. Эти холодильники отличаются хорошей энергоэффективностью, могут устанавливаться в отапливаемых или кондиционированных помещениях, при этом наружная температура может выходить за пределы указанного диапазона.
Класс SN, или субнормальный, с диапазоном рабочих температур от + 10 до + 32 градусов позволяет устанавливать устройство в плохо отапливаемых помещениях — например, подвалах, подсобках, коридорах.
Класс ST, или субтропический, имеет диапазон рабочих температур от + 18 до + 38 градусов и предназначается для работы в жарком климате с высокой влажностью воздуха.
Устройства класса Т, или тропического, с диапазоном рабочих температур от + 18 до + 43 градусов специально разработаны для эксплуатации в сухом тропическом климате.
Кроме моделей, относящихся к основным классам, популярностью пользуются устройства, предназначенные для работы в более широком диапазоне температур и соответствующие сразу нескольким климатическим классам. Среди них выделяют класс N-ST с диапазоном температур oт + 16 до + 38 градусов. Модели класса N-T предназначены для работы при температуре от + 16 до + 43 градусов. Холодильники класса SN-ST способны работать при температуре окружающей среды от + 10 до + 38. Класс SN-T соответствует диапазону температур от + 10 до + 43 градусов. Это универсальные приборы, которые можно эксплуатировать в любой климатической зоне.
В описаниях некоторых моделей холодильников указано, что они могут соответствовать сразу трем или всем четырем климатическим классам. Чтобы узнать климатический класс холодильника, следует найти соответствующее обозначение на этикетке внутри холодильной камеры или в техническом описании.

Дверной упор обычного холодильника по умолчанию расположен справа, чтобы его удобно было открывать правой рукой. Реже встречаются модели, изначально рассчитанные на открывание справа налево, однако у большинства моделей имеется возможность перенавешивания дверцы на другую сторону. Перенавешивание необходимо, если владелец имеет ведущую левую руку или устройство устанавливается там, где открыть дверцу вправо невозможно.
К холодильникам с нестандартным открыванием двери относятся прежде всего большие устройства Side-by-Side. У холодильной камеры, расположенной справа, дверь открывается в правую сторону, у камеры, расположенной слева, то есть морозильника, предусмотрено левое открывание дверцы.
Холодильники с так называемой французской дверью или French Door также имеют распашные двери, но за ними находится не две, а одна камера. Эти двери занимают не всю высоту холодильника, а только ее часть. В нижней части подобных холодильников могут находиться либо еще две распашные двери, либо выдвижные морозильные ящики.
Очень редко в холодильниках можно увидеть откидную дверцу — она имеется, например, в отсеке для вакуумирования в холодильниках Hitachi.
Вместимость
Управление и дизайн

Цвет холодильника — один из значимых факторов, влияющих на его выбор. Традиционно самым популярным цветом для бытовых приборов считается белый. Это универсальный цвет, который гармонирует со всеми другими оттенками, он подойдет для кухонь любого размера, а в небольших помещениях светлые тона способны зрительно раздвинуть пространство. Белая техника достаточно проста в уходе, а производители предлагают большой ассортимент холодильных устройств, в том числе с фасадами из стекла, эмали, окрашенного металла.
Последнее время достаточно широкое распространение получили холодильники черного цвета. Подобные устройства придают кухне особый стиль, однако не рекомендуется устанавливать их в небольшом помещении, особенно если фасад изготовлен не из стекла. Кроме того, черные холодильники требуют постоянного тщательного ухода, так как на них лучше заметны загрязнения.
Не менее популярны, чем белые, холодильники металлических оттенков — серебристого, стального, нержавейки и тому подобных. Эти тона также будут отлично выглядеть в любой кухне, обставленной в современном стиле. Холодильники с металлическим фасадом достаточно удобны в очистке благодаря специальному покрытию.
Если ваша кухня оборудована в классическом стиле, то в ней будет уместен в холодильник теплого бежевого цвета. Он хорошо подойдет к таким материалам, как натуральное дерево, текстиль, натуральный камень.
Цветные холодильники придают кухне особый шарм. Яркий прибор станет заметной деталью и центром кухни в ретро-стиле (особенно стоит обратить внимание на цветные холодильники производства «Смег»), а также индустриальном или лофт. Необычные пастельные оттенки отлично смотрятся в интерьерах в деревенском или средиземноморском стиле.

Боковые стенки холодильника, особенно у встраиваемых моделей, обычно бывают скрыты от глаз, поэтому их внешний вид не имеет такого значения, как вид двери и фасада. Во встраиваемых холодильниках, а также в более дешевых отдельностоящих боковые стенки часто изготавливаются из углеродистой стали.
Для защиты от ржавчины они окрашиваются или покрываются полимерным покрытием. Окрашенная сталь обладает невысокой устойчивостью к механическому воздействию, на ней нередко появляются царапины, так что ее нельзя чистить с применением агрессивных средств.
Полимерное порошковое покрытие известно высокой прочностью и привлекательным внешним видом. Такие поверхности легко моются, они способны выдерживать высокие температуры.
Модели более высокого класса изготавливаются целиком из нержавеющей стали — материала, который известен своей прочностью и длительным сроком эксплуатации. Недостатком нержавеющей стали является сложность в уходе, на такой поверхности легко остаются загрязнения — например, отпечатки пальцев. Для устранение этого недостатка в отдельностоящих моделях боковые стенки часто покрывают специальным защитным покрытием.

Ручка на дверце холодильника определяет, насколько удобно будет пользоваться прибором, можно ли установить данное устройство на выбранное место, как будет выглядеть ваш прибор в интерьере кухни. Все дверные ручки можно разделить на несколько больших групп. Прежде всего это внешние ручки и встроенные (или интегрированные).
Внешняя ручка может не только послужить для открывания дверцы, но и стать интересной деталью интерьера. Особенно это касается ручек в ретро-стиле со встроенным толкателем и замком. Однако подобные элементы являются достаточно небезопасными, так как холодильник невозможно открыть изнутри. Обычные накладные дверные ручки устанавливаются на холодильник в вертикальном или горизонтальном положении. При этом особенной популярностью пользуются вертикальные ручки, идущие по всей длине камеры. Такая конструкция подойдет для людей любого роста.
С появлением встроенной техники востребованными становятся модели со встроенными или интегрированными ручками. Они представляют собой углубление в дверце, куда спокойно помещаются пальцы. Для моделей с перенавешиваемой дверцей имеется возможность простой переустановки ручки справа налево.

Доводчик дверцы в холодильниках предназначается для того, чтобы закрывать их максимально мягко и бережно. Сильные хлопки дверью не только источник неприятных звуков: от толчков может упасть неустойчивая посуда или мелкие упаковки. Доводчик дверцы не только избавляет от лишнего шума и гарантирует безопасность содержимого камеры, но и обеспечивает самое плотное прилегание дверцы, а значит, сохранение холода, полную изоляцию от наружных температур и тем самым экономию электроэнергии.
Доводчик сохранит продукты в безопасности, если холодильником пользуются дети, у которых недостаточно сил, чтобы достаточно плотно закрыть дверцу. Например, холодильники Liebherr класса Premium оснащаются специальным амортизирующим доводчиком SoftSystem, который гарантирует самое легкое и плавное закрытие, даже если все полки на дверце заполнены целиком. Она будет закрыта автоматически в любом случае — даже если вы оставили небольшую щель.
Гидравлический доводчик SoftClose устанавливается в холодильниках производства Mielе, причем угол его срабатывания достигает 30 градусов, а амортизаторы позволяют исключить вибрацию.
Управление

Система управления холодильником позволяет самостоятельно выбирать температуру охлаждения каждой камеры, задавать дополнительные параметры, контролировать работу прибора. П
Первой системой управления была механическая — она позволяла регулировать степень охлаждения при помощи поворотного переключателя, установленного внутри камеры.
Приблизительно так же действуют современные электромеханические системы управления: кроме поворотного переключателя или иного регулятора температуры, они включают индикатор питания, а также кнопки дополнительных режимов. Поворотом переключателя нельзя точно установить определенную температуру, с их помощью можно задать тот или иной уровень охлаждения.
Современное электронное управление является намного более сложным, в нем можно выделить блок и панель управления, на которой отображаются все показатели работы прибора. Температура в холодильниках с электронным управлением может быть определена с точностью до градуса. В обычных электронных устройствах ее регулировка производится при помощи кнопок, а в сенсорных устройствах для задания той или иной температуры необходимо нажать на сенсорную кнопку на дисплее.

Элементы управления на панели холодильника предназначаются в первую очередь для регулировки температуры в камерах, а также для задания дополнительных параметров работы.
В холодильниках с электронным типом управления основным элементом регулировки температуры служат обычные или сенсорные кнопки. С их помощью можно установить температуру охлаждения или заморозки с точностью до одного градуса. Кроме того, кнопки предназначаются для включения режимов суперохлаждения и суперзамораживания, включения и выключения всего устройства. Все фактические характеристики работы прибора отображаются на дисплее.
Основным элементом управления в холодильниках с механической или электромеханической системой служит поворотной переключатель с делениями. Поворотом ручки можно регулировать степень охлаждения на нескольких уровнях — от минимального до максимального. Точное значение температуры в таких устройствах установить невозможно. Кроме того, во всех холодильниках присутствует система индикации, которая действует при повышении температуры в камере выше заданного значения, а также лампочка, которая загорается при неплотно закрытой дверце.

В зависимости от типа, бренда и класса каждый холодильник имеет свои особенности управления. Современные приборы с электронной системой контроля оснащаются дисплеями разных типов. Среди них светодиодные дисплеи, как сегментные, так и матричные, черно-белые или цветные. При помощи кнопок или сенсора регулируются параметры работы, а на дисплее отражаются все текущие изменения. Он может располагаться на фасаде устройства либо за дверцей в верхней его части.
Цифровые дисплеи более простые — на них отображается температура в холодильной и морозильной камерах и выбранный режим — например, суперзамораживание, суперохлаждение, отпускной режим. Сюда же выводятся сообщения об ошибках. Текстовый дисплей дает пользователю больше возможностей и позволяет работать с меню, выбирая в нем те или иные опции.
В холодильниках производства Liebherr используется специально разработанная панель управления с дисплеем MagicEye: это многофункциональный дисплей, который оповещает обо всех аспектах работы холодильника. Система управления при помощи MagicEye имеет графическую индикацию и интуитивно понятна, а сенсорная панель управления реагирует на самое легкое прикосновение.
Еще одна возможность управления холодильниками Liebherr — это система Home Dialog, рассчитанная на удаленное управление устройствами независимо от их расположения. Все холодильные агрегаты в доме объединяются в сеть, управляются они с помощью специального дисплея, который располагается на главном устройстве.
Еще одна дополнительная возможность Liebherr — Home Connect. Она позволяет регулировать температуру в камерах и выставлять иные настройки со смартфона, на котором устанавливается специальное приложение.
FreshTouch
Морозильная камера

Автономное сохранение холода в морозильной камере холодильника — это показатель, определяющий, какое время пройдет при отключении электроэнергии до того, как температура внутри продуктов повысится до значения −9°. На этот параметр следует обращать внимание при выборе моделей, если электросеть работает нестабильно или имеются периодические отключения электроэнергии.
Автономное сохранение холода возможно благодаря хорошей изоляции морозильной камеры, а также благодаря наличию в ней аккумуляторов холода — пластмассовых емкостей, заполненных солевым раствором высокой теплоемкости. Максимальное значение этого показателя, зафиксированное для лучших моделей, составляет около 30 часов. Средние значения автономного сохранения холода составляют от 12 до 24 часов.
Температура −9° выбрана в связи с тем, что именно при ней начинают портиться такие продукты, как мясо, рыба или овощи. За указанное время можно успеть решить проблему с электроэнергии, либо каким-то образом переработать содержимое морозильника, например, приготовить продукты. Время автономного сохранения холода указывается в руководстве пользователя и на информационной табличке.

Способ размораживания морозильной камеры — один из важнейших показателей, на который пользователь должен обращать внимание при выборе той или иной модели. От него зависит не только легкость в уходе за вашей морозильной камерой, но и стоимость устройства.
Простейший способ размораживания морозильной камеры, который применяется в наиболее дешевых моделях, — это ручное размораживание. Слой льда на стенках морозильника в таких холодильниках может достигать нескольких миллиметров. Чтобы разморозить морозильную камеру вручную, необходимо отключить холодильник от электросети, оставить дверцу открытой и подождать, пока лед растает. При этом нужно принять меры, чтобы талая вода не попала на пол. Не рекомендуется откалывать слой льда ножом, пытаться растопить его феном или какими-то другими нагревательными приборами.
Наибольшей популярностью пользуются морозильные камеры, оснащенные системой No Frost. Это система была разработана впервые для холодильников Liebherr, у других производителей она может иметь другие наименования, например Frost Free и StopFrost. Система No Frost может действовать как для отдельных камер, например, только морозильной, так и охватывать полностью обе камеры, включая холодильную: в этом случае она может иметь название «Полный No Frost». Преимуществом этой системы является полное отсутствие льда на внутренних стенках.
Образование льда предотвращает специальный вентилятор, который заставляет холодный воздух циркулировать по всему пространству морозильника. Лед при этом оседает не на стенках, а выводится за пределы камеры и остается на испарителе холодильника. Вентилятор работает попеременно с нагревателем, благодаря чему иней на испарителе оттаивает, а талая вода стекает в поддон, откуда испаряется естественным способом. Вопреки распространенному мнению, в морозильнике с системой No Frost продукты не заветриваются и не сохнут, а энергопотребление ненамного превышает этот показатель для обычных холодильников.
Еще одна разработка Liebherr — запатентованная технология SmartFrost, обеспечивающая отсутствие льда на стенках благодаря циркуляции испарителя по специальным трубкам, расположенным по периметру морозильной камеры. Размораживание морозильника при этом сводится к очистке стенок влажной губкой с моющим средством после отключения электроэнергии.

Ящик увеличенного объема XXL Spacebox — решение, которое предлагается в холодильниках производства словенской фирмы Gorenje. Этот ящик может размещаться как в отдельностоящих морозильных камерах, так и в нижней части морозилки обычных двухкамерных холодильников.
Боковые и задняя стенка ящика изготовлены из белого пластика, а передняя панель — из высококачественного прозрачного пластика, обеспечивающего отличный обзор содержимого. В большинстве моделей передняя панель с металлической полосой в нижней части и защитным бортиком сверху является съемной, ее легко вытащить, чтобы очистить затем под струей воды с мягким моющим средством. Она также является наиболее уязвимым местом, так что не рекомендуется превышать норму загрузки продуктов в ящик. На боковых сторонах для удобства перемещения имеются две прорезные ручки.
Общий объем ящика может достигать 38 литров. Подобной вместимости вполне достаточно для хранения крупных продуктов, например, целой птицы или рыбы, больших замороженных тортов и пиццы, крупных упаковок. Кроме того, в ящике можно свободно разместить несколько пластиковых контейнеров, чтобы хранить разнообразные продукты одновременно.

Система Vario и Vario XL разработана для удобного и рационального размещения продуктов в холодильниках производства Bosch и Liebherr. С ее помощью внутри холодильника можно разместить большое количество продуктов и рационально орагнизовать все имеющееся пространство.
В морозильной камере система Vario включает съемные стеклянные полки и установленные на них пластиковые ящики с прозрачной передней панелью. Если имеется необходимость размещения в морозильнике больших упаковок или особо крупных продуктов, любой ящик можно извлечь, увеличивая тем самым вместимость камеры. Если же и этого недостаточно, можно без труда извлечь и сами полки, превратив в морозильную камеру в одно большое отделение.
В холодильной камере для этого используются дополнительные навесные аксессуары — например, полки и балконы различной высоты на дверце. В самой камере стеклянные полки можно перемещать по высоте, а снизу к любой полке можно подвешивать дополнительные решетчатые держатели для бутылок или пластиковые выдвижные контейнеры для хранения яиц или мелких упаковок. Ящики для овощей и фруктов могут быть разделены на отдельные зоны с помощью встроенного ограничителя.

Лоток для приготовления кубиков льда имеется во всех морозильных камерах. В простейшем случае он представляет собой пластиковый контейнер, разделенный на квадратные ячейки и служащий для получения классических кубиков.
Лоток заполняется водой до максимальной отметки, а затем аккуратно помещается в морозильную камеру. Время замерзания будет зависеть от температуры, установленной в морозильнике. Недостаток подобных лотков состоит в том, что воду легко разлить. Преимуществом их является возможность замораживания не только воды, но и других напитков — например, чая, травяных настоев, соков и даже йогурта. В ячейки лотка можно поместить ягоды, кусочки фруктов.
В холодильниках некоторых моделей имеются поворотные лотки для льда. Для заполнения водой их необходимо выдвинуть по направляющим, а для извлечения достаточно повернуть ручку. Кубики льда сами высыпаются в стоящую ниже емкость. Кроме пластиковых, широкое распространение получили силиконовые лотки для льда, из которых кубики можно извлечь скручиванием или перегибанием. Кроме классических квадратных ячеек, в лотке для льда могут быть ячейки самой разной формы круглые, шестиугольной или любой другой.

Освещение отдельностоящих морозильных камер или морозильных отделений, входящих в состав обычных двух- или многокамерных холодильников, — полезная опция, облегчающая доступ к продуктам и их поиск в выдвижных ящиках и на полках.
В большинстве холодильников освещение предусматривается только для холодильной камеры, в морозильной камере загрузка и извлечение продуктов производится только при внешнем освещении, что не всегда является удобным. В современных моделях, особенно комфорт- и премиум-класса, оснащенных системой размораживания No Frost или ей подобными, для морозильной камеры предусмотрено отдельное освещение. Оно реализуется на основе светодиодов — наиболее устойчивых к низким температурам.
Специальные светодиоды для морозильной камеры обладают повышенной надежностью и эффективностью, благодаря чему при малой мощности они способны создать значительный световой поток. Светодиодные лампы не только экономичны, но и не содержат ртути, а также не являются источником ультрафиолетового и инфракрасного излучения и не повышают температуру в камере. Как и в холодильном отделении, освещение в морозильнике включается при открывании дверцы.
Дополнительные характеристики

Режим Шаббат (SabbathMode) в холодильниках производства таких известных брендов, как Smeg, Liebherr и некоторые другие, создан специально для пользователей, которые исповедуют иудаизм. По заповедям Торы в субботу (Шаббат), а также в дни праздников верующие не должны работать, при этом на весь их быт налагается ряд ограничений, которые необходимо неукоснительно соблюдать. Все устройства, оснащенные подобным режимом, проходят специальную сертификацию центром Star-k и вносятся в список на сайте центра.
Режим включается длительным нажатием специальной кнопки с соответствующим значком: активировать его необходимо для начала субботнего дня. После этого будет выключена вся подсветка, в том числе не будет включаться освещение при открывании дверцы. Все звуковые сигналы и функции кнопок на панели управления также будут заблокированы: будет невозможно регулировать температуру, включать режимы суперохлаждения и суперзамораживания, активировать другие опции. Тем не менее холодильник останется в рабочем состоянии, и пользователи смогут открывать его дверцу и извлекать оттуда продукты. Для отключения режима Шаббат понадобится такое продолжительное нажатие на кнопку.
Режим Вечеринка

Режим Вечеринка, или PartyMode, гарантирует нормальную работу холодильника в ситуациях, когда требуется быстро охладить напитки и готовые блюда: например, перед праздником или приемом гостей. Он разработан специалистами крупнейшего немецкого бренда Liebherr и применяется в приборах самого разного типа и объема. Активируя его, можно не бояться, что прибор перегреется или не сможет поддерживать стабильную температуру, даже если дверцу будут часто открывать, чтобы достать закуски или бутылки с напитками. В обычном режиме такие действия приведут к тому, что внутрь попадет воздух из помещения, температура в камерах повысится, и качество хранения ухудшится.
При включении режима Вечеринка нажатием на кнопку будут активироваться сразу несколько функций — прежде всего функции суперохлаждения SuperCool и суперзамораживания SuperFrost. Как известно, они позволяют понизить температуру в отделениях. Одновременно начинает работать и ледогенератор, производя больше кубиков льда. Активировать режим рекомендуется заблаговременно, не менее чем за 12 часов до планируемого события. Отключить режим можно также нажатием, имеется также опция автоматического отключения через 24 часа.
Возможна установка в неотапливаемом помещении

Установка холодильников в неотапливаемом помещении — полезная опция, позволяющая сэкономить место в кухне. Размещение на закрытой лоджии, в подвале или гараже — отличный вариант, особенно если прибор используется для создания долговременного запаса продуктов или хранения урожая с садового участка. Все современные холодильники относятся к одному из четырех климатических классов. Диапазон наружных температур для установки может варьироваться в пределах от +10 градусов (класс SN, или субнормальный) до + 43 (класс Т, или тропический). При температурах ниже нуля нормальная работа холодильников с одним контуром охлаждения невозможна.
Специалисты компании Liebherr и ряда других фирм разработали технологии, позволяющие устанавливать морозильные камеры в неотапливаемых помещениях. У Либхер это технология FrostProtect, у фирмы Атлант — Extreme Protect. Для нормальной работы при температурах до −15 градусов эти приборы оснащаются инверторными компрессорами, которые работают постоянно, и новой системой электроники с усовершенствованным алгоритмом. Все электронные компоненты пригодны для работы при низких температурах, а устройства получают гарантию производителя.
Технические характеристики

Компрессор — это основной узел холодильника, благодаря которому осуществляется сжатие хладагента и его движение в системе охлаждения. Когда компрессор включен, температура внутри холодильника понижается и создаются условия для долговременного хранения продуктов. За счет компрессора также производится отвод тепла из холодильной камеры в окружающую среду.
В процессе работы холодильника термодатчик реле непрерывно фиксирует показатели фактической температуры в камере. Если температура поднимается, датчик посылает сигнал в систему управления или замыкает контакт, и компрессор начинает работать. Как только температура понижается, датчик снова срабатывает, и компрессор отключается.
Благодаря работе компрессора хладагент откачивается из испарителя, перемещается по трубкам контура охлаждения, попадая в конденсатор. Там он охлаждается, переходит из газообразного состояния в жидкое, и выделяет тепло, которое рассеивается в атмосфере. Жидкость затем направляется в испаритель, где закипает и снова становится газом — при этом она забирает тепло у окружающего воздуха. После этого цикл повторяется снова.
В большинстве холодильников используются так называемые поршневые компрессоры, которые отличаются наиболее простой конструкцией: внутри них находится несколько цилиндров, в которых ходят поршни. Эти компрессоры отличаются повышенной надежностью, однако достаточно сильно шумят и вибрируют, а также же имеют относительно низкую производительность. Винтовые компрессоры также распространены достаточно широко: в них сжатие хладагента происходит за счет вращающегося ротора. Эти устройства создают гораздо меньше шума и вибрации.
Современные холодильники могут быть оснащены как одним, так и двумя компрессорами.

Хладагентом называется химическое соединение, которое используется в качестве рабочего вещества в современных холодильниках. Работа холодильных агрегатов основана на том, что хладагент способен поглощать тепло из воздуха внутри камеры, а затем излучать его в атмосферу за пределами холодильника. Хладагент движется по замкнутому контуру — так называемому контуру охлаждения — под воздействием компрессора, переходя из жидкого состояния в газообразное и обратно. В виде газа он поглощает тепло, затем конденсируется в конденсаторе, превращается в жидкость, выделяет тепло, а затем на испарителе снова переходит в газообразную форму.
С момента создания холодильника в качестве хладагента использовались различные вещества. В частности, первым хладагентом был аммиак, который является достаточно вредным и для пользователей, и для окружающей среды. Впоследствии в качестве хладагентов использовались фреоны — фторсодержащие производные насыщенных углеводородов. Самым распространенным из фреонов был так называемый хладагент R12. В 1985 году был подписан Монреальский протокол, согласно которому хладагент R12 был признан вредным для окружающей среды, поскольку он способствовал образованию озоновых дыр и усилению парникового эффекта. Вместо него был разработан хладагент R134a или тетрафторэтан, который до сих пор применяется в ряде моделей. Он не горюч, не взрывоопасен и не токсичен, а также не разрушает озоновый слой.
Однако наиболее безопасным хладагентом в настоящее время признан R600а, или изобутан, — бесцветный газ, который не разрушает озоновый слой и не способствует усилению парникового эффекта, отличается низким рабочим давлением, что способствует снижению уровня шума, а также позволяет уменьшить потребление электроэнергии.


Класс энергопотребления холодильника — это важный параметр, который обязательно необходимо учитывать при выборе той или иной модели. Он определяет, какое количество электроэнергии в кВт/ч потребляет ваш агрегат за все время эксплуатации. Как известно, компрессорные холодильники не потребляют электроэнергию постоянно, поскольку в процессе работы компрессор периодически отключается, а затем включается снова.
При подборе холодильника пользователю следует помнить, что на количество расходуемой электроэнергии влияет множество факторов. В их числе необходимо учитывать время, в течение которого дверца остается открытой, наружную температуру в помещении, качество и чистоту уплотнителя дверцы, корректную работу компрессора, исправность термостата холодильника, отсутствие утечек фреона, а также наличие дополнительных опций — например, режимов суперохлаждения и суперзамораживания.
От энергопотребления холодильника зависит не только размер затрат на оплату электричества, но и влияние на окружающую среду: чем меньше потребляет прибор, тем он безопаснее экологически. Для удобной оценки уровня энергопотребления была введена система классов энергоэффективности бытовой техники. Для холодильника такой класс — это показатель, который сравнивает в процентном отношении потребление данной конкретной модели со средним значением расхода электроэнергии для холодильника такого же размера и компоновки.
До последнего времени принято было выделять классы от G — самого низкого до А+++ — самого высокого. Так, модели класса C расходуют 75-95% электроэнергии от среднего значения, холодильники класса А — от 44 до 55%, а модели самого высокого класса А+++ наиболее экономичны и рассчитаны на расход не более 22% энергии от среднего. Потребление же у приборов классов от D до G превышает среднее значение.
Но начиная с марта 2021 года была принята новая система подсчета расхода энергопотребления для бытовых приборов. По новой классификации приборы, которые относились раньше к классу А, теперь стали соответствовать новому классу Е, а модели класса А+++ стали соответствовать новому классу D. Тем не менее это просто новое наименование, которое не значит, что приборы стали потреблять больше электроэнергии. Класс энергопотребления с цветовым обозначением обязательно должен указываться на информационной табличке прибора.
Установка

Перевешиваемая дверца холодильника — удобная опция, которая позволяет встроить или установить прибор на кухне, выбрав оптимальное место размещения. По умолчанию открывание дверцы холодильников осуществляется слева направо, под ведущую правую руку. Ситуаций, в которых требуется перенос дверного упора на левую сторону, достаточно много. Прежде всего это планировка кухни. Не везде можно установить холодильник, тем более встраиваемый, так, чтобы дверь открывалась вправо — это особенно важно, если прибор монтируется в уже готовую кухонную мебель. Перенести дверь на другую сторону требуется также, если владелец имеет ведущую левую руку.
Перевешивание дверцы холодильника может производиться, если нарушено уплотнение дверцы с одной стороны, а замена по каким-либо причинам невозможна. В большинстве моделей, где предусмотрена возможность перевешивания дверцы, могут быть заранее подготовлены отверстия для дверных петель, а также для внешней ручки — требуется только снять с них заглушки. Как правило, процесс переноса двери занимает немного времени и не требует специальных знаний: достаточно воспользоваться указаниями, приведенными в инструкции.
Индикация и безопасность

Индикаторы в холодильниках позволяют контролировать работу приборов, отслеживать появление неисправностей, вовремя исправлять ошибки или обращаться за помощью к специалистам.
Индикаторами снабжены холодильники с механической и электронной системами управления. В первом случае, как правило, приборы оснащаются индикацией включения-выключения. Индикатор зеленого цвета оповещает о том, что холодильник подключен в сети, морозильная и холодильная камеры работают нормально. Если соответствующий индикатор начинает мигать или изменяет свой цвет на красный, скорее всего, температура в камере повышена.
Это может происходить по разным причинам. Пользователь может исправить многие из них самостоятельно — например, очистить скопление льда на стенках или проверить сохранность резинового уплотнителя дверцы.
Гораздо точнее сориентироваться по индикаторам можно в холодильниках с электронной системой управления. Эти устройства обычно оснащены дисплеем, на котором высвечиваются значения фактической температуры в холодильной и морозильной камерах. Рядом с ними располагаются кнопки, во многих случаях сенсорные, при помощи которых можно регулировать температуру в каждой камере отдельно, и индикаторы включения этих камер. Здесь же, на панели инструментов, находятся индикаторы, указывающие на активацию дополнительных опций — например, режимов быстрого замораживания и быстрого охлаждения, отпускного режима, блокировки панели управления от детей.
Для холодильной и морозильной камер в таких приборах имеются отдельные индикаторы, указывающие на превышение заданной температуры. Кроме того, на дисплее вместо значения температуры могут появляться символы или коды, указывающие на возникновение той или иной ошибки.

Индикация открытой двери холодильника — удобное и практичное средство, позволяющее повысить качество хранения продуктов, а также предохранить механизм устройства от чрезмерной нагрузки. Особенно она полезна, если в доме имеются дети или домашние животные, которые могут открыть холодильник и затем оставить его дверь приоткрытой.
Даже самое малое расстояние между дверцей и корпусом означает, что внутрь будет поступать теплый воздух, в результате чего температура в отделениях повысится. В этом случае компрессор начнет работать, стараясь снизить ее до заданного уровня, что может привести в итоге к его перегреву и даже выходу из строя. Чаще всего для оповещения о неплотно закрытой дверце используется звуковая сигнализация, которую можно услышать, находясь в других комнатах. Иногда громкость звука увеличивается со временем, чтобы гарантированно привлечь внимание владельца. Подобное оповещение может срабатывать также, если дверца закрывается неплотно вследствие выхода из строя ее уплотнителя.
В ряде моделей звук дополняется световой сигнализацией, особенно заметной, если панель управления или индикаторы располагаются на внешней части корпуса.

Индикация повышения температуры — полезная опция, позволяющая вовремя зафиксировать проблему в работе прибора и устранить ее до того, как продукты успеют испортиться. В большинстве современных холодильников используется система световой и звуковой сигнализации о повышении температуры. Она срабатывает, когда данные с термодатчиков, фиксирующих реальную температуру в камерах, поступают в устройство управления и сравниваются там с минимально допустимым значением температуры.
Причин повышения температуры достаточно много — от неплотно закрытой дверцы или загрузки большого количества свежих продуктов до утечки фреона, неисправности блока управления или компрессора. Звуковые сигналы представляют собой постоянный или прерывистый «писк», который прекращается, если владелец принимает меры по регулировке температуры или (в случае сложной поломки) при отключении устройства.
Световая сигнализация — это включение или изменение цвета индикаторов на панели управления или появление текстового сообщения (например, «Alarm!») на дисплее. Как правило, оба вида сигнализации срабатывают одновременно, что увеличивает шансы на быстрое устранение проблемы.

Инструкции
Немецкая компания Miele специализируется на выпуске бытовой техники премиум-класса. Ее история насчитывает более 120 лет: еще в 1899 году компания, названная по имени одного из основателей Карла Миле, производила сепараторы и маслобойки. Бытовая техника начала изготавливаться с 1903 года — тогда была выпущена прогрессивная по тем временам стиральная машина «Модель А» с мешалкой на крышке. Затем была разработана стиральная машина с электродвигателем. Оборудование для стирки долго оставалось приоритетом компании: например, в 1953 году появилась первая стиральная машина с фронтальной загрузкой. С 1963 года компания производит машины для мытья посуды, а затем и встроенную технику для кухни.
На сегодняшний день производство «Миле» размещается не только в Германии, но и в Австрии, Чехии, Румынии и Китае. Девизом компании остаются слова «Все лучше и лучше»: каждый прибор проходит специальный тест на долговечность, а бренд вошёл в десятку лучших европейских корпоративных брендов. Среди самых популярных изделий — варочные панели, духовые шкафы, вытяжки, пароварки, холодильники, пылесосы, гладильные системы и, конечно же, посудомоечные и стиральные машины.
Доставка и установка бытовой техники Miele по Казани и в Республике Татарстан осуществляется в соответствии с официальными тарифами компании. На товары бренда не распространяются услуги бесплатных транспортировки и подключения — обратите на это внимание при оформлении заказа.
Доставка одного заказа до подъезда составляет 900 рублей в черте города (услуга рассчитывается на основе базового тарифа).
Доставка за чертой города рассчитывается по расстоянию: до 50 км — 900 рублей; 51-100 км — 1800 рублей; 101-150 км — 2400 рублей; 151-200 км — 2900 рублей.
*Чертой города считаются официально утвержденные административно-территориальные границы населенного пункта.
Доставка с подъемом товара в квартиру предполагает наличие в многоквартирном доме лифта. Если грузовой лифт отсутствует или не работает, то необходимо дополнительно оплатить подъем: 300 рублей/этаж для стандартной техники и 600 рублей/этаж для моделей из серии MasterCool, Range.
Для приема товара в квартире (в месте установки) необходимо соблюсти требования компании: для приема в помещении не понадобится перестановка мебели, снятие дверей с петель для заноса техники, демонтаж деталей товара для уменьшения его размеров. Так как технику доставляют только в упаковке, ее общие габариты не должны превышать размеры лестничного марша, площадки, дверного проема.
Если квартира или лестница для подъема не соответствуют этим требованиям, курьер передаст вам товар перед подъездом, перед дверью квартиры, либо в прихожей квартиры — в зависимости от того, где возникло препятствие.
Подключение проводится только мастерами компании Miele либо уполномоченных ею сервисных центров.
При оформлении заказа менеджер подробно расскажет, какие услуги доступны для данной модели, сколько они стоят и как их оформить. В общем прайсе можно узнать дополнительные детали.
Вы можете оформить расширенный тариф, в который помимо стандартной установки входят:
- возможность подключения любых приборов, кроме газовых панелей;
- дополнительный выезд после установки в случае необходимости (его стоимость уже предусмотрена в пакете услуг);
- возможность подключения в день доставки (все коммуникации должны быть подготовлены, а у сервисной службы должен быть резерв на эту дату);
- возможность утилизации упаковки;
- возможность утилизации техники;
- расширенное обучение при установке.
Услуга предоставляется в Казани и Республике Татарстан в радиусе до 50 км от установленных границ города.
Выбрать тип оплаты можно в корзине при оформлении заказа. Наш магазин предоставляет следующие варианты:
- наличными или банковской картой при доставке,
- онлайн-переводом,
- электронными деньгами (например, Webmoney),
- безналичным расчетом (доступно физическим и юридическим лицам).
Уточните условия при подтверждении заказа менеджером. За некоторые товары необходимо вносить предоплату — об этом вас также предупредит менеджер.
На данный товар распространяется официальная гарантия производителя. Обслуживание в течение всего гарантийного срока осуществляется авторизованными сервисными центрами производителя в соответствии с требованиями, указанными в Законе РФ «О защите прав потребителей».
Обратите внимание: гарантийный срок и установленный производителем срок службы — это разные понятия. Изготовитель принимает на себя ответственность по устранению неисправностей, если не указано обратного.
ВАЖНО!
При получении обязательно осмотрите прибор: нет ли на нем механических повреждений, соответствует ли комплектация заявленной.
Обратите внимание:
- Есть функции:
- ‐ Функция суперзамораживания
- ‐ Электронный контроль температуры в разных зонах
- Тип: встраиваемый
- Высота: меньше на 8 см
- Ширина: меньше на 4.1 см
- Глубина: меньше на 12.9 см
- Цвет: под навес вашего фасада
- Страна производитель: Германия
- Нет функций:
- ‐ Увеличенный ящик XXL Space box
- ‐ Система Vario
- ‐ Лоток для приготовления кубиков льда
- Страна производитель: Германия
- Общий объем: меньше на 16 л
- Ручка двери: скрытая
- Автономное сохранение холода: больше на 4 ч
- Количество ящиков/отделений в морозильной камере: больше на 2
- Частота тока: 50 Гц