Π₯ΠΎΠ»ΠΎΠ΄ΠΈΠ»ΡΠ½ΠΈΠΊ Kuppersberg NFM 200 CG ΡΠ΅ΡΠΈΡ ΠΠ΅Π½Π΅ΡΠΈΡ Ρ ΡΠΎΠ·Π°ΠΌΠΈ Π² ΠΠ°Π·Π°Π½ΠΈ ΠΈ Π’Π°ΡΠ°ΡΡΡΠ°Π½Π΅
Π£Π½ΠΈΠΊΠ°Π»ΡΠ½ΡΠ΅ ΠΈΠ½Π΄ΠΈΠ²ΠΈΠ΄ΡΠ°Π»ΡΠ½ΡΠ΅
ΡΡΠ»ΠΎΠ²ΠΈΡ ΠΏΡΠΈ ΠΏΠΎΡΠ΅ΡΠ΅Π½ΠΈΠΈ ΠΌΠ°Π³Π°Π·ΠΈΠ½Π°
Π₯Π°ΡΠ°ΠΊΡΠ΅ΡΠΈΡΡΠΈΠΊΠΈ
ΠΡΠΎΠ±Π΅Π½Π½ΠΎΡΡΠΈ
ΠΠΏΠΈΡΠ°Π½ΠΈΠ΅
Π₯ΠΎΠ»ΠΎΠ΄ΠΈΠ»ΡΠ½ΠΈΠΊ Kuppersberg NFM 200 CG 6593 β Π·Π°ΠΌΠ΅ΡΠ°ΡΠ΅Π»ΡΠ½ΡΠΉ Π²ΡΠ±ΠΎΡ Π΄Π»Ρ Π²ΡΠ΅Ρ , ΠΊΡΠΎ Π½ΡΠΆΠ΄Π°Π΅ΡΡΡ Π² Π½Π°Π΄Π΅ΠΆΠ½ΠΎΠΌ ΠΈ ΡΠΎΠ²ΡΠ΅ΠΌΠ΅Π½Π½ΠΎΠΌ ΠΏΡΠΈΠ±ΠΎΡΠ΅, ΡΡΠΎΠ±Ρ ΠΎΠ±ΡΡΡΡΠΎΠΈΡΡ ΠΊΡΡ Π½Ρ ΠΏΠΎ ΠΏΠΎΡΠ»Π΅Π΄Π½Π΅ΠΌΡ ΡΠ»ΠΎΠ²Ρ ΡΠ΅Ρ Π½ΠΈΠΊΠΈ.
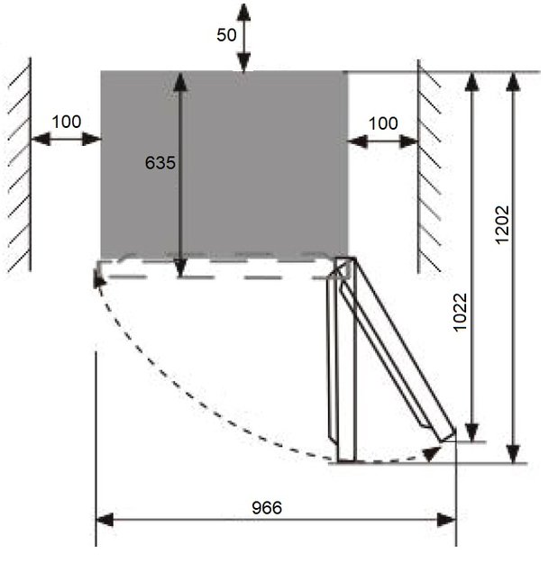
ΠΠ°Π½Π½Π°Ρ ΠΌΠΎΠ΄Π΅Π»Ρ β ΠΎΡΠ΄Π΅Π»ΡΠ½ΠΎΡΡΠΎΡΡΠ°Ρ, ΠΏΠΎΡΡΠΎΠΌΡ Π½ΡΠΆΠ½ΠΎ ΡΡΠ°ΡΠ΅Π»ΡΠ½ΠΎ ΠΏΠΎΠ΄ΠΎΠ±ΡΠ°ΡΡ ΠΌΠ΅ΡΡΠΎ Π΄Π»Ρ Π΅Π΅ ΡΠ°Π·ΠΌΠ΅ΡΠ΅Π½ΠΈΡ. ΠΠ»Π°Π³ΠΎΠ΄Π°ΡΡ Π²Π½ΡΡΠΈΡΠ΅Π»ΡΠ½ΡΠΌ ΡΠ°Π·ΠΌΠ΅ΡΠ°ΠΌ, Π² ΡΠ°ΡΡΠ½ΠΎΡΡΠΈ Π²ΡΡΠΎΡΠ΅, ΠΎΠ½Π° ΠΏΠΎΠ΄Ρ ΠΎΠ΄ΠΈΡ Π±ΠΎΠ»ΡΡΠΈΠΌ ΠΏΡΠΎΡΡΡΠ°Π½ΡΡΠ²Π°ΠΌ β ΠΏΡΠΎΡΡΠΎΡΠ½ΠΎΠΉ ΠΊΡΡ Π½Π΅, Π΅Π²ΡΠΎΠ³ΠΎΡΡΠΈΠ½ΠΎΠΉ. ΠΡ ΠΌΠΎΠΆΠ΅ΡΠ΅ ΠΏΠΎΠΌΠ΅Π½ΡΡΡ Π½Π°ΠΏΡΠ°Π²Π»Π΅Π½ΠΈΠ΅ ΠΎΡΠΊΡΡΠ²Π°Π½ΠΈΡ Π΄Π²Π΅ΡΠΈ, ΡΠ°ΠΊ ΠΊΠ°ΠΊ ΡΠΏΠΎΡ ΠΏΠ΅ΡΠ΅ΡΡΠ°Π²Π»ΡΠ΅ΠΌΡΠΉ ΠΈ Π΅Π΅ ΠΌΠΎΠΆΠ½ΠΎ ΠΏΠ΅ΡΠ΅Π²Π΅ΡΠΈΡΡ Π½Π° Π΄ΡΡΠ³ΡΡ ΡΡΠΎΡΠΎΠ½Ρ. Π’Π°ΠΊΠ°Ρ ΡΡΠ½ΠΊΡΠΈΡ ΠΎΡΠΊΡΡΠ²Π°Π΅Ρ Π±ΠΎΠ»ΡΡΠ΅ Π²ΠΎΠ·ΠΌΠΎΠΆΠ½ΠΎΡΡΠ΅ΠΉ Π΄Π»Ρ ΡΡΡΠ°Π½ΠΎΠ²ΠΊΠΈ. Π₯ΠΎΠ»ΠΎΠ΄ΠΈΠ»ΡΠ½ΠΈΠΊ Ρ ΠΌΠΎΡΠΎΠ·ΠΈΠ»ΡΠ½ΠΈΠΊΠΎΠΌ ΠΎΠ±Π»Π°Π΄Π°Π΅Ρ Π²ΡΠ΅ΠΌΠΈ ΠΎΠΏΡΠΈΡΠΌΠΈ, ΠΊΠΎΡΠΎΡΡΠ΅ ΡΠ°ΡΠ΅ Π²ΡΠ΅Π³ΠΎ ΠΈΡΡΡ ΠΈ Π²ΡΠ±ΠΈΡΠ°ΡΡ ΠΏΠΎΠΊΡΠΏΠ°ΡΠ΅Π»ΠΈ. Π‘ΡΠ°Π½Π΄Π°ΡΡΠ½Π°Ρ ΠΊΠΎΠ½ΡΠΈΠ³ΡΡΠ°ΡΠΈΡ β ΡΠ½ΠΈΠ²Π΅ΡΡΠ°Π»ΡΠ½ΡΠΉ Π²Π°ΡΠΈΠ°Π½Ρ Π΄Π»Ρ Π»ΡΠ±ΠΎΠΉ ΠΊΠ²Π°ΡΡΠΈΡΡ. ΠΠΎΠ»ΠΈΡΠ΅ΡΡΠ²ΠΎ ΠΊΠ°ΠΌΠ΅Ρ: 2.
ΠΡΠΎΠ±Π΅Π½Π½ΠΎΡΡΠΈ Π΄ΠΈΠ·Π°ΠΉΠ½Π° ΡΠ°ΠΊΠΆΠ΅ ΠΏΠΎΠΌΠΎΠ³ΡΡ Π²Π°ΠΌ ΠΎΡΡΠ°Π½ΠΎΠ²ΠΈΡΡ ΡΠ²ΠΎΠΉ Π²ΡΠ±ΠΎΡ Π½Π° ΡΡΠΎΠΉ ΠΌΠΎΠ΄Π΅Π»ΠΈ ΠΡΠΏΠ΅ΡΡΠ±Π΅ΡΠ³. Π¦Π²Π΅Ρ ΠΊΠΎΡΠΏΡΡΠ°: ΡΠ°Π·Π½ΠΎΡΠ²Π΅ΡΠ½ΡΠΉ. ΠΠ»Π°Π³ΠΎΠ΄Π°ΡΡ ΡΠ»Π΅ΠΊΡΡΠΎΠ½Π½ΠΎΠΉ ΡΠΈΡΡΠ΅ΠΌΠ΅ ΡΠΏΡΠ°Π²Π»Π΅Π½ΠΈΡ Π»Π΅Π³ΠΊΠΎ ΡΠ΅Π³ΡΠ»ΠΈΡΠΎΠ²Π°ΡΡ ΠΈ ΠΊΠΎΠ½ΡΡΠΎΠ»ΠΈΡΠΎΠ²Π°ΡΡ ΡΠ΅ΠΌΠΏΠ΅ΡΠ°ΡΡΡΡ.
Π‘ΠΏΠ΅ΡΠΈΠ°Π»ΡΠ½Π°Ρ Π·ΠΎΠ½Π° ΡΠ²Π΅ΠΆΠ΅ΡΡΠΈ ΠΏΡΠ΅Π΄Π½Π°Π·Π½Π°ΡΠ΅Π½Π° Π΄Π»Ρ ΠΏΡΠ°Π²ΠΈΠ»ΡΠ½ΠΎΠ³ΠΎ ΠΈ Π±ΠΎΠ»Π΅Π΅ Π΄Π»ΠΈΡΠ΅Π»ΡΠ½ΠΎΠ³ΠΎ Ρ ΡΠ°Π½Π΅Π½ΠΈΡ ΠΎΠ²ΠΎΡΠ΅ΠΉ, ΡΡΡΠΊΡΠΎΠ², Π·Π΅Π»Π΅Π½ΠΈ. Π Π½Π΅ΠΉ ΠΏΠΎΠ΄Π΄Π΅ΡΠΆΠΈΠ²Π°Π΅ΡΡΡ ΠΎΠΊΠΎΠ»ΠΎΠ½ΡΠ»Π΅Π²Π°Ρ ΡΠ΅ΠΌΠΏΠ΅ΡΠ°ΡΡΡΠ°, ΠΏΠΎΡΡΠΎΠΌΡ ΠΏΡΠΎΠ΄ΡΠΊΡΡ Π½Π΅ ΠΏΠ΅ΡΠ΅ΠΌΠΎΡΠ°ΠΆΠΈΠ²Π°ΡΡΡΡ ΠΈ Π½Π΅ ΠΏΠ΅ΡΠ΅ΡΡΡ Π°ΡΡ. Π‘ΠΈΡΡΠ΅ΠΌΠ° ΠΎΡ Π»Π°ΠΆΠ΄Π΅Π½ΠΈΡ ΡΡΠΎΠ³ΠΎ Ρ ΠΎΠ»ΠΎΠ΄ΠΈΠ»ΡΠ½ΠΈΠΊΠ° β ΡΠΈΡΠΊΡΠ»ΡΡΠΈΠΎΠ½Π½Π°Ρ .
ΠΡΡΠ³ΠΈΠ΅ ΠΎΡΠΎΠ±Π΅Π½Π½ΠΎΡΡΠΈ ΠΌΠΎΠ΄Π΅Π»ΠΈ, Π½Π° ΠΊΠΎΡΠΎΡΡΠ΅ ΡΡΠΎΠΈΡ ΠΎΠ±ΡΠ°ΡΠΈΡΡ Π²Π½ΠΈΠΌΠ°Π½ΠΈΠ΅ ΠΏΡΠΈ ΠΏΠΎΠΊΡΠΏΠΊΠ΅:
- ΡΡΠ½ΠΊΡΠΈΡ ΡΡΠΏΠ΅ΡΠΎΡ Π»Π°ΠΆΠ΄Π΅Π½ΠΈΡ, Ρ ΠΏΠΎΠΌΠΎΡΡΡ ΠΊΠΎΡΠΎΡΠΎΠΉ ΠΏΡΠΎΠ΄ΡΠΊΡΡ Π±ΡΠ΄ΡΡ Π±ΡΡΡΡΠΎ ΠΏΠΎΠ΄Π³ΠΎΡΠΎΠ²Π»Π΅Π½Ρ ΠΊ Ρ ΡΠ°Π½Π΅Π½ΠΈΡ;
- ΡΡΠ½ΠΊΡΠΈΡ ΡΡΠΏΠ΅ΡΠ·Π°ΠΌΠΎΡΠΎΠ·ΠΊΠΈ, ΠΊΠΎΡΠΎΡΠ°Ρ ΡΠ±Π΅ΡΠ΅ΠΆΠ΅Ρ ΡΡΡΡΠΊΡΡΡΡ ΠΎΠ²ΠΎΡΠ΅ΠΉ ΠΈΠ»ΠΈ ΡΠ³ΠΎΠ΄, Π²ΠΈΡΠ°ΠΌΠΈΠ½Ρ ΠΈ Π²ΠΎΠ΄Ρ Π²Π½ΡΡΡΠΈ Π½ΠΈΡ ;
- ΡΡΠ½ΠΊΡΠΈΡ Β«βΠΡΠΏΡΡΠΊΒ» ΠΏΠΎΠΌΠΎΠΆΠ΅Ρ ΠΈΠ·Π±Π΅ΠΆΠ°ΡΡ Π½Π΅ΠΏΡΠΈΡΡΠ½ΠΎΠ³ΠΎ Π·Π°ΠΏΠ°Ρ Π° Π²Π½ΡΡΡΠΈ ΠΏΡΠΈΠ±ΠΎΡΠ°, Π΄Π°ΠΆΠ΅ Π΅ΡΠ»ΠΈ Π²Π°ΠΌ ΠΏΡΠΈΠ΄Π΅ΡΡΡ Π½Π°Π΄ΠΎΠ»Π³ΠΎ ΡΠ΅Ρ Π°ΡΡ;
- ΠΊΠ»Π°ΡΡ ST ΠΏΠΎΠ·Π²ΠΎΠ»ΡΠ΅Ρ ΡΠ΅Ρ Π½ΠΈΠΊΠ΅ Π±Π΅Π· ΠΏΡΠΎΠ±Π»Π΅ΠΌ ΡΠ°Π±ΠΎΡΠ°ΡΡ Π² Π½Π°ΡΠ΅ΠΉ ΠΊΠ»ΠΈΠΌΠ°ΡΠΈΡΠ΅ΡΠΊΠΎΠΉ Π·ΠΎΠ½Π΅.
Π‘ΠΏΠΈΡΠΎΠΊ Π²ΡΠ΅Ρ Ρ Π°ΡΠ°ΠΊΡΠ΅ΡΠΈΡΡΠΈΠΊ ΠΏΡΠΈΠ±ΠΎΡΠ° ΠΏΡΠ΅Π΄ΡΡΠ°Π²Π»Π΅Π½ Π½ΠΈΠΆΠ΅ β ΠΎΠ½ ΠΏΠΎΠΌΠΎΠΆΠ΅Ρ ΡΠ΄Π΅Π»Π°ΡΡ ΠΏΡΠ°Π²ΠΈΠ»ΡΠ½ΡΠΉ Π²ΡΠ±ΠΎΡ. ΠΠ΅Π»Π°Π΅ΠΌ ΡΠ΄Π°ΡΠ½ΡΡ ΠΏΠΎΠΊΡΠΏΠΎΠΊ!
ΠΠ±ΡΠΈΠ΅ Ρ Π°ΡΠ°ΠΊΡΠ΅ΡΠΈΡΡΠΈΠΊΠΈ

Π‘ΠΎΠ²ΡΠ΅ΠΌΠ΅Π½Π½ΡΠ΅ Ρ ΠΎΠ»ΠΎΠ΄ΠΈΠ»ΡΠ½ΠΈΠΊΠΈ ΡΠ°Π·Π΄Π΅Π»ΡΡΡΡΡ Π½Π° ΠΊΠ°ΡΠ΅Π³ΠΎΡΠΈΠΈ ΠΏΠΎ Π½Π΅ΡΠΊΠΎΠ»ΡΠΊΠΈΠΌ ΠΏΠ°ΡΠ°ΠΌΠ΅ΡΡΠ°ΠΌ. Π ΠΏΠ΅ΡΠ²ΡΡ ΠΎΡΠ΅ΡΠ΅Π΄Ρ ΠΎΠ½ΠΈ ΠΊΠ»Π°ΡΡΠΈΡΠΈΡΠΈΡΡΡΡΡΡ ΠΏΠΎ ΡΠΈΠΏΡ ΡΡΡΠ°Π½ΠΎΠ²ΠΊΠΈ. ΠΠ΄Π΅ΡΡ Π²ΡΠ΄Π΅Π»ΡΡΡΡΡ Π΄Π²Π΅ Π±ΠΎΠ»ΡΡΠΈΠ΅ ΠΊΠ°ΡΠ΅Π³ΠΎΡΠΈΠΈ: Π²ΡΡΡΠ°ΠΈΠ²Π°Π΅ΠΌΡΠ΅ ΠΈ ΠΎΡΠ΄Π΅Π»ΡΠ½ΠΎΡΡΠΎΡΡΠΈΠ΅ ΡΡΡΡΠΎΠΉΡΡΠ²Π°.
ΠΡΠ΄Π΅Π»ΡΠ½ΠΎΡΡΠΎΡΡΠΈΠ΅ Ρ ΠΎΠ»ΠΎΠ΄ΠΈΠ»ΡΠ½ΠΈΠΊΠΈ — Π½Π°ΠΈΠ±ΠΎΠ»Π΅Π΅ ΡΠ°ΡΠΏΡΠΎΡΡΡΠ°Π½Π΅Π½Π½ΡΠΉ ΠΈ Π²ΠΎΡΡΡΠ΅Π±ΠΎΠ²Π°Π½Π½ΡΠΉ ΡΠΈΠΏ Π΄Π»Ρ Π΄ΠΎΠΌΠ°ΡΠ½Π΅ΠΉ ΡΡΡΠ°Π½ΠΎΠ²ΠΊΠΈ. ΠΡΠΎΠΈΠ·Π²ΠΎΠ΄ΠΈΡΠ΅Π»ΠΈ ΠΏΡΠ΅Π΄Π»Π°Π³Π°ΡΡ ΠΌΠΎΠ΄Π΅Π»ΠΈ ΡΠ°ΠΌΠΎΠ³ΠΎ ΡΠ°Π·Π½ΠΎΠ³ΠΎ ΡΠ°Π·ΠΌΠ΅ΡΠ° — Π½Π°ΠΏΡΠΈΠΌΠ΅Ρ, Π²ΡΡΠΎΡΠ° ΠΈΡ ΠΌΠΎΠΆΠ΅Ρ Π²Π°ΡΡΠΈΡΠΎΠ²Π°ΡΡΡΡ Π² ΠΏΡΠ΅Π΄Π΅Π»Π°Ρ ΠΎΡ 30 Π΄ΠΎ 220 ΡΠΌ. Π₯ΠΎΠ»ΠΎΠ΄ΠΈΠ»ΡΠ½ΠΈΠΊΠΈ ΠΌΠΎΠ³ΡΡ ΠΈΠΌΠ΅ΡΡ ΡΠ°ΠΌΡΠΉ ΡΠ°Π·Π½ΡΠΉ Π²Π½ΡΡΡΠ΅Π½Π½ΠΈΠΉ ΠΎΠ±ΡΠ΅ΠΌ, Π½Π°Π±ΠΎΡ ΡΡΠ½ΠΊΡΠΈΠΉ, Π΄ΠΈΠ·Π°ΠΉΠ½, ΠΌΠ°ΡΠ΅ΡΠΈΠ°Π» ΠΈΠ·Π³ΠΎΡΠΎΠ²Π»Π΅Π½ΠΈΡ ΠΈ ΡΠ²Π΅Ρ ΠΊΠΎΡΠΏΡΡΠ°.
ΠΠ°ΠΌΠ΅ΡΠ½ΠΎΠ΅ ΠΏΡΠ΅ΠΈΠΌΡΡΠ΅ΡΡΠ²ΠΎ ΠΎΡΠ΄Π΅Π»ΡΠ½ΠΎΡΡΠΎΡΡΠΈΡ ΠΌΠΎΠ΄Π΅Π»Π΅ΠΉ — ΠΏΡΠΎΡΡΠΎΡΠ° ΠΈΡ ΡΡΠ°Π½ΡΠΏΠΎΡΡΠΈΡΠΎΠ²ΠΊΠΈ. ΠΡΠΈ Π΄ΠΎΡΡΠ°ΡΠΎΡΠ½ΠΎ Π±ΠΎΠ»ΡΡΠΎΠΌ Π²Π΅ΡΠ΅ ΠΌΠ½ΠΎΠ³ΠΈΠ΅ Π°Π³ΡΠ΅Π³Π°ΡΡ ΠΎΡΠ½Π°ΡΠ΅Π½Ρ ΠΏΡΠΈΡΠΏΠΎΡΠΎΠ±Π»Π΅Π½ΠΈΡΠΌΠΈ, ΠΏΠΎΠ·Π²ΠΎΠ»ΡΡΡΠΈΠΌΠΈ Π»Π΅Π³ΠΊΠΎ ΠΏΠ΅ΡΠ΅ΠΌΠ΅ΡΠ°ΡΡ ΠΈΡ Ρ ΠΌΠ΅ΡΡΠ° Π½Π° ΠΌΠ΅ΡΡΠΎ. ΠΠ»Ρ ΡΡΡΠ°Π½ΠΎΠ²ΠΊΠΈ ΡΠ°ΠΊΠΎΠ³ΠΎ Ρ ΠΎΠ»ΠΎΠ΄ΠΈΠ»ΡΠ½ΠΈΠΊΠ° ΡΡΠ΅Π±ΡΠ΅ΡΡΡ ΡΠΎΠ»ΡΠΊΠΎ Π·Π°Π·Π΅ΠΌΠ»Π΅Π½Π½Π°Ρ ΡΠΎΠ·Π΅ΡΠΊΠ°. ΠΡ Π½Π΅Π»ΡΠ·Ρ ΡΡΡΠ°Π½Π°Π²Π»ΠΈΠ²Π°ΡΡ Π²ΠΏΠ»ΠΎΡΠ½ΡΡ ΠΊ ΠΏΠ»ΠΈΡΠ΅, Π΄ΡΡ ΠΎΠ²ΠΎΠΌΡ ΡΠΊΠ°ΡΡ ΠΈ Π΄ΡΡΠ³ΠΈΠΌ ΡΡΡΡΠΎΠΉΡΡΠ²ΠΎΠΌ Ρ ΠΏΠΎΠ²ΡΡΠ΅Π½Π½ΠΎΠΉ ΡΠ΅ΠΌΠΏΠ΅ΡΠ°ΡΡΡΠΎΠΉ.
ΠΡΡΡΠ°ΠΈΠ²Π°Π΅ΠΌΡΠ΅ Ρ ΠΎΠ»ΠΎΠ΄ΠΈΠ»ΡΠ½ΠΈΠΊΠΈ ΠΌΠΎΠ½ΡΠΈΡΡΡΡΡΡ Π² Π½ΠΈΡΡ ΠΈΠ»ΠΈ ΠΊΠΎΠ»ΠΎΠ½Π½Ρ. ΠΠ΅ΡΠ΅Π΄Π½ΡΡ ΠΈΡ ΡΠ°ΡΡΡ Π·Π°ΠΊΡΡΠ²Π°Π΅ΡΡΡ Π΄Π΅ΠΊΠΎΡΠ°ΡΠΈΠ²Π½ΡΠΌ ΠΌΠ΅Π±Π΅Π»ΡΠ½ΡΠΌ ΡΠ°ΡΠ°Π΄ΠΎΠΌ ΠΈ ΡΠ½Π°ΡΡΠΆΠΈ Π½Π΅ ΠΎΡΠ»ΠΈΡΠ°Π΅ΡΡΡ ΠΎΡ Π΄Π²Π΅ΡΡΡ ΠΎΠ±ΡΡΠ½ΠΎΠ³ΠΎ ΠΊΡΡ ΠΎΠ½Π½ΠΎΠ³ΠΎ ΡΠΊΠ°ΡΠ°, ΡΠ°ΠΊ ΡΡΠΎ ΠΈΡ Π½Π΅ Π½ΡΠΆΠ½ΠΎ ΠΏΠΎΠ΄Π±ΠΈΡΠ°ΡΡ ΠΏΠΎΠ΄ ΠΈΠ½ΡΠ΅ΡΡΠ΅Ρ ΠΏΠΎΠΌΠ΅ΡΠ΅Π½ΠΈΡ. ΠΠ±ΡΠ΅ΠΌ ΡΡΠΈΡ Ρ ΠΎΠ»ΠΎΠ΄ΠΈΠ»ΡΠ½ΠΈΠΊΠΎΠ², ΠΊΠ°ΠΊ ΠΏΡΠ°Π²ΠΈΠ»ΠΎ, Π½Π΅ΡΠΊΠΎΠ»ΡΠΊΠΎ ΠΌΠ΅Π½ΡΡΠ΅, ΡΠ΅ΠΌ Ρ ΠΎΡΠ΄Π΅Π»ΡΠ½ΠΎΡΡΠΎΡΡΠΈΡ , ΡΠ°ΠΊ ΠΊΠ°ΠΊ ΠΏΡΠΈ Π²ΡΡΡΠ°ΠΈΠ²Π°Π½ΠΈΠΈ Π½Π΅ΠΎΠ±Ρ ΠΎΠ΄ΠΈΠΌΠΎ ΠΎΡΡΠ°Π²Π»ΡΡΡ ΡΠ²ΠΎΠ±ΠΎΠ΄Π½ΠΎΠ΅ ΠΏΡΠΎΡΡΡΠ°Π½ΡΡΠ²ΠΎ Π΄Π»Ρ Π²Π΅Π½ΡΠΈΠ»ΡΡΠΈΠΈ. ΠΠ½ΠΈ ΠΎΡΠ»ΠΈΡΠ°ΡΡΡΡ ΠΌΠ΅Π½ΡΡΠΈΠΌ ΡΡΠΎΠ²Π½Π΅ΠΌ ΡΡΠΌΠ°, Π° ΡΠ°ΠΊΠΆΠ΅ Π»ΡΡΡΠ΅ Π΄Π΅ΡΠΆΠ°Ρ Ρ ΠΎΠ»ΠΎΠ΄ ΠΈ ΠΎΡΠ»ΠΈΡΠ°ΡΡΡΡ Π±ΠΎΠ»ΡΡΠ΅ΠΉ ΡΠΊΠΎΠ½ΠΎΠΌΠΈΡΠ½ΠΎΡΡΡΡ ΠΈΠ·-Π·Π° Π΄ΠΎΠΏΠΎΠ»Π½ΠΈΡΠ΅Π»ΡΠ½ΠΎΠ³ΠΎ ΡΠ»ΠΎΡ ΠΈΠ·ΠΎΠ»ΡΡΠΈΠΈ. ΠΡΡΠΎΡΡΠΈΠΌΠ΅Π½Ρ ΡΡΠΈΡ Ρ ΠΎΠ»ΠΎΠ΄ΠΈΠ»ΡΠ½ΠΈΠΊΠΎΠ² Π½Π΅ ΡΠ°ΠΊ Π²Π΅Π»ΠΈΠΊ, ΠΊΠ°ΠΊ Ρ ΠΎΡΠ΄Π΅Π»ΡΠ½ΠΎ ΡΡΠΎΡΡΠΈΡ , ΡΡΡΠ°Π½ΠΎΠ²ΠΊΠ° Π±ΠΎΠ»Π΅Π΅ ΡΡΡΠ΄ΠΎΠ΅ΠΌΠΊΠ°Ρ, Π° ΡΡΠΎΠΈΠΌΠΎΡΡΡ ΠΎΠ±ΡΡΠ½ΠΎ Π½Π΅ΡΠΊΠΎΠ»ΡΠΊΠΎ Π²ΡΡΠ΅.
Π’Π΅Ρ
Π½ΠΈΠΊΡ ΠΌΠΎΠΆΠ½ΠΎ ΡΠ°ΠΊΠΆΠ΅ ΠΊΠ»Π°ΡΡΠΈΡΠΈΡΠΈΡΠΎΠ²Π°ΡΡ ΠΏΠΎ ΡΠΈΠΏΡ ΠΎΡ
Π»Π°ΠΆΠ΄Π΅Π½ΠΈΡ ΠΈΠ»ΠΈ ΠΏΠΎ ΠΏΡΠΈΠ½ΡΠΈΠΏΡ ΡΠ°Π±ΠΎΡΡ. ΠΠ΄Π΅ΡΡ ΠΌΠΎΠΆΠ½ΠΎ Π²ΡΠ΄Π΅Π»ΠΈΡΡ ΠΊΠΎΠΌΠΏΡΠ΅ΡΡΠΎΡΠ½ΡΠ΅ Ρ
ΠΎΠ»ΠΎΠ΄ΠΈΠ»ΡΠ½ΠΈΠΊΠΈ, ΠΊΠΎΡΠΎΡΡΠ΅ Π²ΡΡΡΠ΅ΡΠ°ΡΡΡΡ Π² ΠΏΡΠΎΠ΄Π°ΠΆΠ΅ Π½Π°ΠΈΠ±ΠΎΠ»Π΅Π΅ ΡΠ°ΡΡΠΎ. ΠΡΠΈΠ½ΡΠΈΠΏ ΠΈΡ
Π΄Π΅ΠΉΡΡΠ²ΠΈΡ ΠΎΡΠ½ΠΎΠ²Π°Π½ Π½Π° ΡΠ²ΠΎΠΉΡΡΠ²Π΅ Π½Π΅ΠΊΠΎΡΠΎΡΡΡ
Π²Π΅ΡΠ΅ΡΡΠ² ΠΏΠΎΠ³Π»ΠΎΡΠ°ΡΡ ΡΠ΅ΠΏΠ»ΠΎ ΠΏΡΠΈ ΠΈΡΠΏΠ°ΡΠ΅Π½ΠΈΠΈ.
Π’Π΅ΡΠΌΠΎΡΠ»Π΅ΠΊΡΡΠΈΡΠ΅ΡΠΊΠΈΠ΅ Ρ
ΠΎΠ»ΠΎΠ΄ΠΈΠ»ΡΠ½ΠΈΠΊΠΈ ΠΎΡΠ½ΠΎΠ²Π°Π½Ρ Π½Π° ΡΠ°ΠΊ Π½Π°Π·ΡΠ²Π°Π΅ΠΌΠΎΠΌ ΡΡΡΠ΅ΠΊΡΠ΅ ΠΠ΅Π»ΡΡΡΠ΅, Π° ΠΈΠΌΠ΅Π½Π½ΠΎ Π½Π° ΠΏΠΎΠ½ΠΈΠΆΠ΅Π½ΠΈΠΈ ΡΠ΅ΠΌΠΏΠ΅ΡΠ°ΡΡΡΡ ΠΏΡΠΈ ΠΊΠΎΠ½ΡΠ°ΠΊΡΠ΅ Π΄Π²ΡΡ
ΡΠ°Π·Π½ΡΡ
ΠΏΡΠΎΠ²ΠΎΠ΄Π½ΠΈΠΊΠΎΠ² ΠΏΡΠΈ ΠΏΡΠΎΡ
ΠΎΠΆΠ΄Π΅Π½ΠΈΠΈ ΡΠ΅ΡΠ΅Π· Π½ΠΈΡ
ΡΠ»Π΅ΠΊΡΡΠΈΡΠ΅ΡΠΊΠΎΠ³ΠΎ ΡΠΎΠΊΠ°. Π’Π°ΠΊΠΈΠ΅ Ρ
ΠΎΠ»ΠΎΠ΄ΠΈΠ»ΡΠ½ΠΈΠΊΠΈ ΠΎΡΠ»ΠΈΡΠ°ΡΡΡΡ ΠΎΡΠ΅Π½Ρ Π½ΠΈΠ·ΠΊΠΈΠΌ ΡΡΠΎΠ²Π½Π΅ΠΌ ΡΡΠΌΠ° ΠΈ ΠΈΡΠΏΠΎΠ»ΡΠ·ΡΡΡΡΡ ΡΠ°ΡΠ΅ Π²ΡΠ΅Π³ΠΎ Π΄Π»Ρ ΡΡΡΠ°Π½ΠΎΠ²ΠΊΠΈ Π² Π°Π²ΡΠΎΠΌΠΎΠ±ΠΈΠ»ΡΡ
, Π° ΡΠ°ΠΊΠΆΠ΅ Π΄Π»Ρ Ρ
ΡΠ°Π½Π΅Π½ΠΈΡ Π²ΠΈΠ½. ΠΠΎΡΡΠ°ΡΠΎΡΠ½ΠΎ ΡΠ΅Π΄ΠΊΠΈΠΉ ΡΠΈΠΏ Ρ
ΠΎΠ»ΠΎΠ΄ΠΈΠ»ΡΠ½ΠΈΠΊΠ° — Π°Π±ΡΠΎΡΠ±ΡΠΈΠΎΠ½Π½ΡΠΉ, ΠΎΡ
Π»Π°ΠΆΠ΄Π΅Π½ΠΈΠ΅ Π² ΠΊΠΎΡΠΎΡΠΎΠΌ ΠΏΡΠΎΠΈΠ·Π²ΠΎΠ΄ΠΈΡΡΡ Π·Π° ΡΡΠ΅Ρ ΠΈΡΠΏΠ°ΡΠ΅Π½ΠΈΡ Π°ΠΌΠΌΠΈΠ°ΠΊΠ°.

ΠΠ²ΡΡ ΠΊΠ°ΠΌΠ΅ΡΠ½ΡΠ΅ Ρ ΠΎΠ»ΠΎΠ΄ΠΈΠ»ΡΠ½ΠΈΠΊΠΈ Π½Π°ΠΈΠ±ΠΎΠ»Π΅Π΅ Π²ΠΎΡΡΡΠ΅Π±ΠΎΠ²Π°Π½Ρ Π±Π»Π°Π³ΠΎΠ΄Π°ΡΡ ΡΠ²ΠΎΠ΅ΠΉ ΡΠ½ΠΈΠ²Π΅ΡΡΠ°Π»ΡΠ½ΠΎΡΡΠΈ: ΠΎΠ½ΠΈ ΠΏΠΎΠ΄Ρ ΠΎΠ΄ΡΡ Π΄Π»Ρ ΠΊΠ°ΠΊ Π΄Π»Ρ ΠΊΡΠ°ΡΠΊΠΎΠ²ΡΠ΅ΠΌΠ΅Π½Π½ΠΎΠ³ΠΎ, ΡΠ°ΠΊ ΠΈ Π΄Π»Ρ Π΄ΠΎΠ»Π³ΠΎΠ²ΡΠ΅ΠΌΠ΅Π½Π½ΠΎΠ³ΠΎ Ρ ΡΠ°Π½Π΅Π½ΠΈΡ ΠΏΡΠΎΠ΄ΡΠΊΡΠΎΠ². ΠΡΠΈ ΡΡΡΡΠΎΠΉΡΡΠ²Π° ΡΠ°ΡΠ΅ Π²ΡΠ΅Π³ΠΎ ΠΈΠΌΠ΅ΡΡ Π΄Π²Π΅ Π΄Π²Π΅ΡΡΡ; Π²ΠΊΠ»ΡΡΠ°ΡΡ Ρ ΠΎΠ»ΠΎΠ΄ΠΈΠ»ΡΠ½ΡΡ ΠΊΠ°ΠΌΠ΅ΡΡ, ΠΏΠΎΠ·Π²ΠΎΠ»ΡΡΡΡΡ Ρ ΡΠ°Π½ΠΈΡΡ ΠΏΡΠΎΠ΄ΡΠΊΡΡ ΠΏΡΠΈ ΡΠ΅ΠΌΠΏΠ΅ΡΠ°ΡΡΡΠ΅ ΠΎΡ 0 Π΄ΠΎ +5...+8 Π³ΡΠ°Π΄ΡΡΠΎΠ², ΠΈ ΠΌΠΎΡΠΎΠ·ΠΈΠ»ΡΠ½ΠΈΠΊ, Π³Π΄Π΅ ΠΏΡΠΎΠ΄ΡΠΊΡΡ Ρ ΡΠ°Π½ΡΡΡΡ ΠΏΡΠΈ ΡΠ΅ΠΌΠΏΠ΅ΡΠ°ΡΡΡΠ΅ −18 Π³ΡΠ°Π΄ΡΡΠΎΠ² ΠΈΠ»ΠΈ Π΅ΡΠ΅ Π±ΠΎΠ»Π΅Π΅ Π½ΠΈΠ·ΠΊΠΎΠΉ. ΠΠ²Π΅ Π΄Π²Π΅ΡΡΡ ΠΎΠ±Π΅ΡΠΏΠ΅ΡΠΈΠ²Π°ΡΡ Π½Π΅Π·Π°Π²ΠΈΡΠΈΠΌΠΎΡΡΡ ΠΊΠ°ΠΌΠ΅Ρ, ΠΌΠΈΠ½ΠΈΠΌΡΠΌ ΠΏΠΎΡΠ΅ΡΡ ΡΠ΅ΠΏΠ»Π°, Π° ΡΠ»Π΅Π΄ΠΎΠ²Π°ΡΠ΅Π»ΡΠ½ΠΎ, ΠΈ ΡΠΊΠΎΠ½ΠΎΠΌΠΈΡΠ½ΠΎΡΡΡ ΠΏΠΎΠ΄ΠΎΠ±Π½ΡΡ ΠΏΡΠΈΠ±ΠΎΡΠΎΠ².
ΠΠΎ ΡΠ°ΡΠΏΠΎΠ»ΠΎΠΆΠ΅Π½ΠΈΡ ΠΌΠΎΡΠΎΠ·ΠΈΠ»ΡΠ½ΠΎΠΉ ΠΊΠ°ΠΌΠ΅ΡΡ ΠΏΡΠΈΠ½ΡΡΠΎ Π²ΡΠ΄Π΅Π»ΡΡΡ Ρ ΠΎΠ»ΠΎΠ΄ΠΈΠ»ΡΠ½ΠΈΠΊΠΈ Π΅Π²ΡΠΎΠΏΠ΅ΠΉΡΠΊΠΎΠ³ΠΎ ΡΠΈΠΏΠ° Ρ ΠΌΠΎΡΠΎΠ·ΠΈΠ»ΡΠ½ΠΎΠΉ ΠΊΠ°ΠΌΠ΅ΡΠΎΠΉ ΡΠ½ΠΈΠ·Ρ, Π°Π·ΠΈΠ°ΡΡΠΊΠΎΠ³ΠΎ ΡΠΈΠΏΠ° Ρ ΠΌΠΎΡΠΎΠ·ΠΈΠ»ΡΠ½ΠΈΠΊΠΎΠΌ ΡΠ²Π΅ΡΡ Ρ ΠΈ Π±ΠΎΠ»ΡΡΠΈΠ΅ ΠΏΡΠΈΠ±ΠΎΡΡ Side-by-Side, Ρ ΠΊΠΎΡΠΎΡΡΡ Ρ ΠΎΠ»ΠΎΠ΄ΠΈΠ»ΡΠ½Π°Ρ ΠΈ ΠΌΠΎΡΠΎΠ·ΠΈΠ»ΡΠ½Π°Ρ ΠΊΠ°ΠΌΠ΅ΡΡ ΡΠ°ΡΠΏΠΎΠ»ΠΎΠΆΠ΅Π½Ρ ΡΡΠ΄ΠΎΠΌ Π΄ΡΡΠ³ Ρ Π΄ΡΡΠ³ΠΎΠΌ. ΠΠ²ΡΡ ΠΊΠ°ΠΌΠ΅ΡΠ½ΡΠ΅ ΠΌΠΎΠ΄Π΅Π»ΠΈ ΠΌΠΎΠ³ΡΡ ΠΈΠΌΠ΅ΡΡ ΠΎΠ΄ΠΈΠ½ ΠΈΠ»ΠΈ Π΄Π²Π° ΠΊΠΎΠΌΠΏΡΠ΅ΡΡΠΎΡΠ° ΠΈ, ΡΠΎΠΎΡΠ²Π΅ΡΡΡΠ²Π΅Π½Π½ΠΎ, ΠΎΠ΄ΠΈΠ½ ΠΈΠ»ΠΈ Π΄Π²Π° ΠΊΠΎΠ½ΡΡΡΠ° ΠΎΡ Π»Π°ΠΆΠ΄Π΅Π½ΠΈΡ.
Π Π°Π·ΠΌΠ΅ΡΠ½ΡΠΉ ΡΡΠ΄ ΡΡΠΈΡ ΡΡΡΡΠΎΠΉΡΡΠ² ΠΎΡΠ΅Π½Ρ ΡΠΈΡΠΎΠΊ: Π² ΡΠ°ΡΡΠ½ΠΎΡΡΠΈ, ΠΎΠ±ΡΠΈΠΉ ΠΎΠ±ΡΠ΅ΠΌ Π΄Π²ΡΡ ΠΊΠ°ΠΌΠ΅ΡΠ½ΠΎΠ³ΠΎ Ρ ΠΎΠ»ΠΎΠ΄ΠΈΠ»ΡΠ½ΠΈΠΊΠ° ΠΌΠΎΠΆΠ΅Ρ ΡΠΎΡΡΠ°Π²Π»ΡΡΡ Π΄ΠΎ 1000 ΠΈ Π±ΠΎΠ»Π΅Π΅ Π»ΠΈΡΡΠΎΠ², Π° ΠΎΠ±ΡΠ΅ΠΌ ΠΌΠΎΡΠΎΠ·ΠΈΠ»ΡΠ½ΠΎΠΉ ΠΊΠ°ΠΌΠ΅ΡΡ — Π΄ΠΎ 700 Π»ΠΈΡΡΠΎΠ². ΠΠ°Π±Π°ΡΠΈΡΠ½ΡΠ΅ ΡΠ°Π·ΠΌΠ΅ΡΡ Ρ ΠΎΠ»ΠΎΠ΄ΠΈΠ»ΡΠ½ΠΈΠΊΠΎΠ² ΡΠ°ΠΊΠΆΠ΅ Π²Π°ΡΡΠΈΡΡΡΡΡΡ Π² ΡΠ°ΠΌΠΎΠΌ ΡΠΈΡΠΎΠΊΠΎΠΌ Π΄ΠΈΠ°ΠΏΠ°Π·ΠΎΠ½Π΅: Π½Π°ΠΏΡΠΈΠΌΠ΅Ρ, Π²ΡΡΠΎΡΠ° ΠΈΡ ΠΌΠΎΠΆΠ΅Ρ Π΄ΠΎΡΡΠΈΠ³Π°ΡΡ 220 ΡΠΌ, Π° ΡΠΈΡΠΈΠ½Π° — 150 ΡΠΌ.
ΠΠ΄Π½Π° ΠΈΠ· Π³Π»Π°Π²Π½ΡΡ Ρ Π°ΡΠ°ΠΊΡΠ΅ΡΠΈΡΡΠΈΠΊ Π΄Π²ΡΡ ΠΊΠ°ΠΌΠ΅ΡΠ½ΡΡ Ρ ΠΎΠ»ΠΎΠ΄ΠΈΠ»ΡΠ½ΠΈΠΊΠΎΠ² — ΡΠΏΠΎΡΠΎΠ± ΠΈΡ ΡΠ°Π·ΠΌΠΎΡΠ°ΠΆΠΈΠ²Π°Π½ΠΈΡ. Π ΡΠΎΠ²ΡΠ΅ΠΌΠ΅Π½Π½ΡΡ ΠΌΠΎΠ΄Π΅Π»ΡΡ ΠΈΡΠΏΠΎΠ»ΡΠ·ΡΠ΅ΡΡΡ ΡΠ°ΠΌΠΎΠ΅ ΠΏΡΠΎΡΡΠΎΠ΅ ΡΡΡΠ½ΠΎΠ΅ ΡΠ°Π·ΠΌΠΎΡΠ°ΠΆΠΈΠ²Π°Π½ΠΈΠ΅, Π° ΡΠ°ΠΊΠΆΠ΅ Π±ΠΎΠ»Π΅Π΅ ΡΠΎΠ²Π΅ΡΡΠ΅Π½Π½ΡΠ΅ ΡΠΈΡΡΠ΅ΠΌΡ No Frost, ΠΊΠ°ΠΏΠ΅Π»ΡΠ½ΠΎΠΉ ΠΈ Π°Π²ΡΠΎΠΌΠ°ΡΠΈΡΠ΅ΡΠΊΠΎΠΉ ΡΠ°Π·ΠΌΠΎΡΠΎΠ·ΠΊΠΈ.
ΠΡΠΎΠΈΠ·Π²ΠΎΠ΄ΠΈΡΠ΅Π»ΠΈ Π²ΡΠΏΡΡΠΊΠ°ΡΡ ΡΡΡΡΠΎΠΉΡΡΠ²Π°, ΠΎΡΠ½Π°ΡΠ΅Π½Π½ΡΠ΅ ΠΈΠ½ΡΠ΅Π»Π»Π΅ΠΊΡΡΠ°Π»ΡΠ½ΠΎΠΉ ΡΠ»Π΅ΠΊΡΡΠΎΠ½Π½ΠΎΠΉ ΡΠΈΡΡΠ΅ΠΌΠΎΠΉ ΡΠΏΡΠ°Π²Π»Π΅Π½ΠΈΡ Ρ ΡΠ°Π·Π΄Π΅Π»ΡΠ½ΠΎΠΉ ΡΠ΅Π³ΡΠ»ΠΈΡΠΎΠ²ΠΊΠΎΠΉ ΡΠ΅ΠΌΠΏΠ΅ΡΠ°ΡΡΡΡ Π² ΠΊΠ°ΠΌΠ΅ΡΠ°Ρ Ρ ΡΠΎΡΠ½ΠΎΡΡΡΡ Π΄ΠΎ 1 Π³ΡΠ°Π΄ΡΡΠ°. Π‘ΠΎΠ²ΡΠ΅ΠΌΠ΅Π½Π½ΡΠΌ ΡΡΡΡΠΎΠΉΡΡΠ²Π°ΠΌ ΠΏΡΠΈΡΠ²Π°ΠΈΠ²Π°Π΅ΡΡΡ ΠΊΠ»Π°ΡΡ ΡΠ½Π΅ΡΠ³ΠΎΠΏΠΎΡΡΠ΅Π±Π»Π΅Π½ΠΈΡ ΠΌΠΎΠΆΠ΅Ρ Π΄ΠΎΡΡΠΈΠ³Π°ΡΡ Π+++, Π° ΡΡΠΎΠ²Π΅Π½Ρ ΡΡΠΌΠ° Ρ Π½ΠΈΡ Π½Π΅ ΠΏΡΠ΅Π²ΡΡΠ°Π΅Ρ 35-38 Π΄Π.

ΠΡΡΠΎΡΠ° Ρ ΠΎΠ»ΠΎΠ΄ΠΈΠ»ΡΠ½ΠΈΠΊΠ° — ΠΎΠ΄ΠΈΠ½ ΠΈΠ· Π³Π»Π°Π²Π½ΡΡ ΡΠ°ΠΊΡΠΎΡΠΎΠ², Π²Π»ΠΈΡΡΡΠΈΡ Π½Π° Π²ΡΠ±ΠΎΡ ΠΌΠΎΠ΄Π΅Π»ΠΈ. ΠΡΠ΅Π²ΠΈΠ΄Π½ΠΎ, ΡΡΠΎ Ρ ΠΎΠ»ΠΎΠ΄ΠΈΠ»ΡΠ½ΠΈΠΊ Π±ΠΎΠ»ΡΡΠ΅ΠΉ Π²ΡΡΠΎΡΡ Π±ΡΠ΄Π΅Ρ Π±ΠΎΠ»Π΅Π΅ Π²ΠΌΠ΅ΡΡΠΈΡΠ΅Π»ΡΠ½ΡΠΌ. ΠΠ΄Π½Π°ΠΊΠΎ ΠΏΡΠΈ Π²ΡΠ±ΠΎΡΠ΅ ΡΡΡΡΠΎΠΉΡΡΠ²Π° Π½Π΅ΠΎΠ±Ρ ΠΎΠ΄ΠΈΠΌΠΎ ΡΡΠΈΡΡΠ²Π°ΡΡ ΡΠ΅Π»ΡΠΉ ΡΡΠ΄ ΡΠ°ΠΊΡΠΎΡΠΎΠ², ΠΏΡΠ΅ΠΆΠ΄Π΅ Π²ΡΠ΅Π³ΠΎ Π²ΡΡΠΎΡΡ ΠΏΠΎΡΠΎΠ»ΠΊΠΎΠ², ΠΏΠΈΡΠ΅Π²ΡΠ΅ ΠΏΡΠΈΠ²ΡΡΠΊΠΈ, ΡΠΎΡΡΠ°Π² ΡΠ΅ΠΌΡΠΈ, ΡΠΎΡΡ Π»ΡΠ΄Π΅ΠΉ, ΠΊΠΎΡΠΎΡΡΠ΅ Π±ΡΠ΄ΡΡ Ρ ΠΎΠ»ΠΎΠ΄ΠΈΠ»ΡΠ½ΠΈΠΊΠΎΠΌ ΠΏΠΎΠ»ΡΠ·ΠΎΠ²Π°ΡΡΡΡ. ΠΠ°ΠΊ ΠΏΡΠ°Π²ΠΈΠ»ΠΎ, Π²ΡΡΡΠ°ΠΈΠ²Π°Π΅ΠΌΡΠ΅ ΡΡΡΡΠΎΠΉΡΡΠ²Π° ΠΏΡΠ΅Π΄ΡΡΠ°Π²Π»Π΅Π½Ρ Π² Π½Π΅ΡΠΊΠΎΠ»ΡΠΊΠΎ ΠΌΠ΅Π½ΡΡΠ΅ΠΌ Π°ΡΡΠΎΡΡΠΈΠΌΠ΅Π½ΡΠ΅, Π² ΡΠΎΠΌ ΡΠΈΡΠ»Π΅ ΠΈ ΠΏΠΎ Π²ΡΡΠΎΡΠ΅.
ΠΡΠ΅ ΠΌΠΎΠ΄Π΅Π»ΠΈ Ρ ΠΎΠ»ΠΎΠ΄ΠΈΠ»ΡΠ½ΠΈΠΊΠΎΠ² ΠΏΡΠΈΠ½ΡΡΠΎ Π΄Π΅Π»ΠΈΡΡ Π½Π° Π΄Π²Π΅ Π±ΠΎΠ»ΡΡΠΈΠ΅ ΠΊΠ°ΡΠ΅Π³ΠΎΡΠΈΠΈ — ΡΠΎ ΡΡΠ°Π½Π΄Π°ΡΡΠ½ΡΠΌΠΈ ΠΈ Π½Π΅ΡΡΠ°Π½Π΄Π°ΡΡΠ½ΡΠΌΠΈ ΡΠ°Π·ΠΌΠ΅ΡΠ°ΠΌΠΈ. Π ΠΏΠ΅ΡΠ²ΠΎΠΉ Π³ΡΡΠΏΠΏΠ΅ ΠΎΡΠ½ΠΎΡΡΡΡΡ Π½Π°ΠΈΠ±ΠΎΠ»Π΅Π΅ ΡΠ°ΡΠΏΡΠΎΡΡΡΠ°Π½Π΅Π½Π½ΡΠ΅ ΠΎΠ΄Π½ΠΎ- ΠΈ Π΄Π²ΡΡ ΠΊΠ°ΠΌΠ΅ΡΠ½ΡΠ΅ ΡΡΡΡΠΎΠΉΡΡΠ²Π° Π΅Π²ΡΠΎΠΏΠ΅ΠΉΡΠΊΠΎΠ³ΠΎ ΡΠΈΠΏΠ° Ρ ΠΌΠΎΡΠΎΠ·ΠΈΠ»ΡΠ½ΠΎΠΉ ΠΊΠ°ΠΌΠ΅ΡΠΎΠΉ ΡΠ½ΠΈΠ·Ρ. Π‘ΡΠ°Π½Π΄Π°ΡΡΠ½Π°Ρ Π²ΡΡΠΎΡΠ° Π±ΠΎΠ»ΡΡΠΈΡ ΠΏΠΎΠ»Π½ΠΎΡΠ°Π·ΠΌΠ΅ΡΠ½ΡΡ ΠΌΠΎΠ΄Π΅Π»Π΅ΠΉ ΡΠΎΡΡΠ°Π²Π»ΡΠ΅Ρ 180-210 ΡΠΌ, ΡΠ΅ΠΆΠ΅ 220 ΡΠΌ. ΠΡΠ±ΠΎΡ ΠΏΠΎΠ΄ΠΎΠ±Π½ΡΡ Ρ ΠΎΠ»ΠΎΠ΄ΠΈΠ»ΡΠ½ΠΈΠΊΠΎΠ² Π΄ΠΎΡΡΠ°ΡΠΎΡΠ½ΠΎ Π²Π΅Π»ΠΈΠΊ: ΠΏΡΠΎΠΈΠ·Π²ΠΎΠ΄ΠΈΡΠ΅Π»ΠΈ ΠΏΡΠ΅Π΄Π»Π°Π³Π°ΡΡ ΠΌΠΎΠ΄Π΅Π»ΠΈ Π²ΡΡΠΎΡΠΎΠΉ 180 ΡΠΌ, 182 ΡΠΌ, 185 ΡΠΌ, 188 ΡΠΌ ΠΈ ΡΠ°ΠΊ Π΄Π°Π»Π΅Π΅.
ΠΠΎΡΠ°Π·Π΄ΠΎ Π±ΠΎΠ»ΡΡΠΈΠΌ ΡΠΏΡΠΎΡΠΎΠΌ ΠΏΠΎΠ»ΡΠ·ΡΡΡΡΡ ΡΠ°ΠΊ Π½Π°Π·ΡΠ²Π°Π΅ΠΌΡΠ΅ ΡΡΠ΅Π΄Π½Π΅-Π²ΡΡΠΎΠΊΠΈΠ΅ Ρ ΠΎΠ»ΠΎΠ΄ΠΈΠ»ΡΠ½ΠΈΠΊΠΈ, ΡΡΠΈ ΡΠ°Π·ΠΌΠ΅ΡΡ Π½Π°Ρ ΠΎΠ΄ΡΡΡΡ Π² Π΄ΠΈΠ°ΠΏΠ°Π·ΠΎΠ½Π΅ ΠΎΡ 150 ΡΠΌ Π΄ΠΎ 180 ΡΠΌ. ΠΡΠΎ Π²ΡΡΡΠ°ΠΈΠ²Π°Π΅ΠΌΡΠ΅ ΠΈ ΠΎΡΠ΄Π΅Π»ΡΠ½ΠΎΡΡΠΎΡΡΠΈΠ΅ ΠΌΠΎΠ΄Π΅Π»ΠΈ, ΠΊΠΎΡΠΎΡΡΠ΅ ΠΏΠΎΠ΄ΠΎΠΉΠ΄ΡΡ ΠΏΡΠ°ΠΊΡΠΈΡΠ΅ΡΠΊΠΈ Π΄Π»Ρ Π»ΡΠ±ΠΎΠΉ ΠΊΡΡ Π½ΠΈ.
ΠΠΈΠ·ΠΊΠΈΠ΅ Ρ ΠΎΠ»ΠΎΠ΄ΠΈΠ»ΡΠ½ΠΈΠΊΠΈ Π²ΡΡΠΎΡΠΎΠΉ ΠΎΡ 130 ΡΠΌ Π΄ΠΎ 150 ΡΠΌ — Π½Π΅Π±ΠΎΠ»ΡΡΠΈΠ΅ ΠΎΠ΄Π½ΠΎΠΊΠ°ΠΌΠ΅ΡΠ½ΡΠ΅ ΠΈ Π΄Π²ΡΡ ΠΊΠ°ΠΌΠ΅ΡΠ½ΡΠ΅ ΠΌΠΎΠ΄Π΅Π»ΠΈ Ρ ΠΎΠ΄Π½ΠΎΠΉ ΠΈΠ»ΠΈ Π΄Π²ΡΠΌΡ Π΄Π²Π΅ΡΡΠ°ΠΌΠΈ Π΄Π»Ρ ΠΌΠ°Π»ΠΎΠ³Π°Π±Π°ΡΠΈΡΠ½ΠΎΠΉ ΠΊΡΡ Π½ΠΈ. Π£ΡΡΡΠΎΠΉΡΡΠ²Π° Π²ΡΡΠΎΡΠΎΠΉ ΠΎΡ 90 Π΄ΠΎ 130 ΡΠΌ — ΠΊΠ°ΠΊ ΠΏΡΠ°Π²ΠΈΠ»ΠΎ, ΠΎΠ΄Π½ΠΎΠΊΠ°ΠΌΠ΅ΡΠ½ΡΠ΅ Ρ ΠΎΠ»ΠΎΠ΄ΠΈΠ»ΡΠ½ΠΈΠΊΠΈ ΠΈ ΠΌΠΎΡΠΎΠ·ΠΈΠ»ΡΠ½ΡΠ΅ ΠΊΠ°ΠΌΠ΅ΡΡ. ΠΠΈΠ½ΠΈ-Ρ ΠΎΠ»ΠΎΠ΄ΠΈΠ»ΡΠ½ΠΈΠΊΠΈ Π²ΡΡΠΎΡΠΎΠΉ Π΄ΠΎ 85 ΡΠΌ ΠΏΡΠ΅Π΄Π½Π°Π·Π½Π°ΡΠ°ΡΡΡΡ ΡΠΏΠ΅ΡΠΈΠ°Π»ΡΠ½ΠΎ Π΄Π»Ρ ΡΡΡΠ°Π½ΠΎΠ²ΠΊΠΈ ΠΏΠΎΠ΄ ΡΡΠΎΠ»Π΅ΡΠ½ΠΈΡΡ; ΠΌΠΈΠ½ΠΈΠΌΠ°Π»ΡΠ½Π°Ρ Π²ΡΡΠΎΡΠ° ΡΠ°ΠΊΠΈΡ ΡΡΡΡΠΎΠΉΡΡΠ² ΡΠΎΡΡΠ°Π²Π»ΡΠ΅Ρ ΠΎΠΊΠΎΠ»ΠΎ 50 ΡΠΌ.
Π Π½Π΅ΡΡΠ°Π½Π΄Π°ΡΡΠ½ΡΠΌ ΠΌΠΎΠ΄Π΅Π»ΡΠΌ ΠΎΡΠ½ΠΎΡΡΡΡΡ Π²ΠΌΠ΅ΡΡΠΈΡΠ΅Π»ΡΠ½ΡΠ΅ Ρ ΠΎΠ»ΠΎΠ΄ΠΈΠ»ΡΠ½ΠΈΠΊΠΈ ΡΠΈΠΏΠ° Side-by-Side Ρ ΡΠ°ΡΠΏΠ°ΡΠ½ΡΠΌΠΈ Π΄Π²Π΅ΡΡΠ°ΠΌΠΈ, ΡΡΡ Π²ΡΡΠΎΡΠ° ΡΠΎΡΡΠ°Π²Π»ΡΠ΅Ρ Π½Π΅ ΠΌΠ΅Π½Π΅Π΅ 170 ΠΈ Π½Π΅ Π±ΠΎΠ»Π΅Π΅ 190 ΡΠΌ, ΠΈ Π°Π·ΠΈΠ°ΡΡΠΊΠΈΠ΅ ΠΌΠΎΠ΄Π΅Π»ΠΈ Π²ΡΡΠΎΡΠΎΠΉ ΠΎΡ 160 ΡΠΌ Π΄ΠΎ 180 ΡΠΌ Ρ Π²Π΅ΡΡ Π½Π΅ΠΉ ΠΌΠΎΡΠΎΠ·ΠΈΠ»ΡΠ½ΠΎΠΉ ΠΊΠ°ΠΌΠ΅ΡΠΎΠΉ.

Π¨ΠΈΡΠΈΠ½Π° Ρ ΠΎΠ»ΠΎΠ΄ΠΈΠ»ΡΠ½ΠΈΠΊΠ° — Π½Π°ΠΈΠ±ΠΎΠ»Π΅Π΅ Π·Π½Π°ΡΠΈΠΌΡΠΉ ΠΏΠΎΠΊΠ°Π·Π°ΡΠ΅Π»Ρ, ΠΊΠΎΡΠΎΡΡΠΉ Π½Π΅ΠΎΠ±Ρ ΠΎΠ΄ΠΈΠΌΠΎ ΡΡΠΈΡΡΠ²Π°ΡΡ ΠΏΡΠ΅ΠΆΠ΄Π΅ Π²ΡΠ΅Π³ΠΎ ΠΏΡΠΈ ΡΡΡΠ°Π½ΠΎΠ²ΠΊΠ΅ ΠΏΡΠΈΠ±ΠΎΡΠ° Π½Π° Π²ΡΠ±ΡΠ°Π½Π½ΠΎΠ΅ ΠΌΠ΅ΡΡΠΎ. Π‘Π²ΡΠ·Π°Π½ΠΎ ΡΡΠΎ Ρ ΡΠ΅ΠΌ, ΡΡΠΎ Ρ ΠΎΠ»ΠΎΠ΄ΠΈΠ»ΡΠ½ΠΈΠΊ ΠΎΠ±ΡΡΠ½ΠΎ ΡΡΡΠ°Π½Π°Π²Π»ΠΈΠ²Π°Π΅ΡΡΡ Π² ΡΡΠ΄ Ρ Π΄ΡΡΠ³ΠΎΠΉ Π±ΡΡΠΎΠ²ΠΎΠΉ ΡΠ΅Ρ Π½ΠΈΠΊΠΎΠΉ ΠΈΠ»ΠΈ ΠΊΡΡ ΠΎΠ½Π½ΠΎΠΉ ΠΌΠ΅Π±Π΅Π»ΡΡ. ΠΡΠΈ ΠΎΠ³ΡΠ°Π½ΠΈΡΠ΅Π½ΠΈΡ Π±ΡΠ²Π°ΡΡ Π±ΠΎΠ»Π΅Π΅ ΡΡΡΠΎΠ³ΠΈΠΌΠΈ, ΡΠ΅ΠΌ, Π½Π°ΠΏΡΠΈΠΌΠ΅Ρ, ΠΎΠ³ΡΠ°Π½ΠΈΡΠ΅Π½ΠΈΠ΅ ΠΏΠΎ Π²ΡΡΠΎΡΠ΅, ΠΎΡΠΎΠ±Π΅Π½Π½ΠΎ Π΄Π»Ρ ΠΌΠ°Π»ΠΎΠ³Π°Π±Π°ΡΠΈΡΠ½ΠΎΠΉ ΠΊΡΡ Π½ΠΈ. Π ΠΏΡΠΎΡΡΠΎΡΠ½ΡΡ ΠΏΠΎΠΌΠ΅ΡΠ΅Π½ΠΈΡΡ Π²ΠΎΠ·ΠΌΠΎΠΆΠ½ΠΎΡΡΠΈ Π²ΡΠ±ΠΎΡΠ° ΡΠ²Π΅Π»ΠΈΡΠΈΠ²Π°ΡΡΡΡ — ΡΠ°ΠΌ ΠΌΠΎΠΆΠ΅Ρ Π±ΡΡΡ ΡΠ°Π·ΠΌΠ΅ΡΠ΅Π½ Ρ ΠΎΠ»ΠΎΠ΄ΠΈΠ»ΡΠ½ΠΈΠΊ Π½Π΅ΡΡΠ°Π½Π΄Π°ΡΡΠ½ΠΎΠΉ ΡΠΈΡΠΈΠ½Ρ ΠΈ Π·Π½Π°ΡΠΈΡΠ΅Π»ΡΠ½ΡΠΉ Π²ΠΌΠ΅ΡΡΠΈΠΌΠΎΡΡΠΈ.
Π‘ΡΠ°Π½Π΄Π°ΡΡΠ½Π°Ρ ΡΠΈΡΠΈΠ½Π° Π½Π°ΠΈΠ±ΠΎΠ»Π΅Π΅ ΡΠ°ΡΠΏΡΠΎΡΡΡΠ°Π½Π΅Π½Π½ΡΡ ΠΌΠΎΠ΄Π΅Π»Π΅ΠΉ Π΄Π²ΡΡ ΠΊΠ°ΠΌΠ΅ΡΠ½ΡΡ Ρ ΠΎΠ»ΠΎΠ΄ΠΈΠ»ΡΠ½ΠΈΠΊΠΎΠ² Ρ ΠΌΠΎΡΠΎΠ·ΠΈΠ»ΡΠ½ΠΎΠΉ ΠΊΠ°ΠΌΠ΅ΡΠΎΠΉ ΡΠ½ΠΈΠ·Ρ ΡΠΎΡΡΠ°Π²Π»ΡΠ΅Ρ ΠΏΠΎΡΡΠ΄ΠΊΠ° 60 ΡΠΌ, ΡΡΠΎ ΡΠΎΠΎΡΠ²Π΅ΡΡΡΠ²ΡΠ΅Ρ ΡΠΈΡΠΈΠ½Π΅ ΠΎΠ±ΡΡΠ½ΠΎΠΉ ΠΊΡΡ ΠΎΠ½Π½ΠΎΠΉ ΡΡΠΌΠ±Ρ. ΠΠΎΠ΄ΠΎΠ±Π½ΡΠΉ Ρ ΠΎΠ»ΠΎΠ΄ΠΈΠ»ΡΠ½ΠΈΠΊ Π±ΡΠ΄Π΅Ρ ΡΠΌΠΎΡΡΠ΅ΡΡΡΡ ΡΠΌΠ΅ΡΡΠ½ΠΎ ΠΈ Π½Π΅ Π³ΡΠΎΠΌΠΎΠ·Π΄ΠΊΠΎ Π² Π»ΡΠ±ΠΎΠΉ ΠΊΡΡ Π½Π΅. Π¨ΠΈΡΠΈΠ½Ρ 57-60 ΡΠΌ ΠΈΠΌΠ΅ΡΡ ΠΊΠ°ΠΊ Π΄Π²ΡΡ Π΄Π²Π΅ΡΠ½ΡΠ΅ Ρ ΠΎΠ»ΠΎΠ΄ΠΈΠ»ΡΠ½ΠΈΠΊΠΈ ΡΡΠ΅Π΄Π½Π΅ΠΉ Π²ΡΡΠΎΡΡ, ΡΠ°ΠΊ ΠΈ Π²ΡΡΠΎΠΊΠΈΠ΅ ΠΌΠΎΠ΄Π΅Π»ΠΈ. ΠΡΠ΅ Π±ΠΎΠ»ΡΡΡΡ ΠΏΠΎΠΏΡΠ»ΡΡΠ½ΠΎΡΡΡ ΠΏΡΠΈΠΎΠ±ΡΠ΅ΡΠ°ΡΡ ΡΠ·ΠΊΠΈΠ΅ ΠΌΠΎΠ΄Π΅Π»ΠΈ ΡΠΈΡΠΈΠ½ΠΎΠΉ 50 ΡΠΌ, Π²ΠΌΠ΅ΡΡΠΈΠΌΠΎΡΡΡ ΠΊΠΎΡΠΎΡΡΡ ΡΠ²Π΅Π»ΠΈΡΠΈΠ²Π°Π΅ΡΡΡ Π·Π° ΡΡΠ΅Ρ Π±ΠΎΠ»ΡΡΠΎΠΉ Π²ΡΡΠΎΡΡ ΠΎΡ 180 ΡΠΌ.
ΠΠΈΠ½ΠΈ-Ρ ΠΎΠ»ΠΎΠ΄ΠΈΠ»ΡΠ½ΠΈΠΊΠΈ, ΠΊΠΎΡΠΎΡΡΠ΅ ΠΌΠΎΠ³ΡΡ Π±ΡΡΡ ΡΡΡΠ°Π½ΠΎΠ²Π»Π΅Π½Ρ Π² ΡΡΠΌΠ±Ρ ΠΈΠ»ΠΈ ΠΏΠΎΠ΄ ΡΡΠΎΠ»Π΅ΡΠ½ΠΈΡΡ, ΠΎΡΠ»ΠΈΡΠ°ΡΡΡΡ Π½Π΅ΡΠΊΠΎΠ»ΡΠΊΠΎ ΠΌΠ΅Π½ΡΡΠ΅ΠΉ ΡΠΈΡΠΈΠ½ΠΎΠΉ ΠΎΡ 50 ΡΠΌ. Π’Π°ΠΊΡΡ ΠΆΠ΅ Π½Π΅Π±ΠΎΠ»ΡΡΡΡ ΡΠΈΡΠΈΠ½Ρ ΠΈΠΌΠ΅ΡΡ Π²ΡΡΡΠ°ΠΈΠ²Π°Π΅ΠΌΡΠ΅ ΠΌΠΎΠ΄Π΅Π»ΠΈ, ΡΡΠΎ ΡΠ²ΡΠ·Π°Π½ΠΎ ΡΠΎ ΡΠΏΠΎΡΠΎΠ±ΠΎΠΌ ΠΈΡ ΡΡΡΠ°Π½ΠΎΠ²ΠΊΠΈ.
ΠΠ°ΠΈΠ±ΠΎΠ»Π΅Π΅ ΡΠ°Π·Π½ΠΎΠΎΠ±ΡΠ°Π·Π½Ρ ΠΏΠΎ ΡΠΈΡΠΈΠ½Π΅ Π±ΠΎΠ»ΡΡΠΈΠ΅ ΠΌΠΎΠ΄Π΅Π»ΠΈ Ρ ΠΎΠ»ΠΎΠ΄ΠΈΠ»ΡΠ½ΠΈΠΊΠΎΠ² Ρ ΡΠ°ΡΠΏΠ°ΡΠ½ΡΠΌΠΈ Π΄Π²Π΅ΡΡΠΌΠΈ ΡΠΈΠΏΠ° Side-by-Side ΠΈΠ»ΠΈ ΠΌΠΎΠ΄Π΅Π»ΠΈ Ρ ΡΠ°ΠΊ Π½Π°Π·ΡΠ²Π°Π΅ΠΌΡΠΌΠΈ ΡΡΠ°Π½ΡΡΠ·ΡΠΊΠΈΠΌΠΈ Π΄Π²Π΅ΡΡΠΌΠΈ. Π¨ΠΈΡΠΈΠ½Π° ΡΡΠΈΡ ΡΡΡΡΠΎΠΉΡΡΠ² ΠΌΠΎΠΆΠ΅Ρ Π²Π°ΡΡΠΈΡΠΎΠ²Π°ΡΡΡΡ Π² Π΄ΠΈΠ°ΠΏΠ°Π·ΠΎΠ½Π΅ ΠΎΡ 80 Π΄ΠΎ 160 ΡΠΌ: ΠΌΠ½ΠΎΠ³ΠΈΠ΅ ΠΈΠ· Π½ΠΈΡ ΠΏΡΠ΅Π΄ΡΡΠ°Π²Π»ΡΡΡ ΡΠΎΠ±ΠΎΠΉ ΠΏΠΎΠ»Π½ΠΎΡΠ΅Π½Π½ΡΠΉ Ρ ΠΎΠ»ΠΎΠ΄ΠΈΠ»ΡΠ½ΠΈΠΊ ΠΈ ΠΌΠΎΡΠΎΠ·ΠΈΠ»ΡΠ½ΡΡ ΠΊΠ°ΠΌΠ΅ΡΡ, ΡΠ°ΡΠΏΠΎΠ»ΠΎΠΆΠ΅Π½Π½ΡΠ΅ ΡΡΠ΄ΠΎΠΌ Π΄ΡΡΠ³ Ρ Π΄ΡΡΠ³ΠΎΠΌ. ΠΠ΅ΡΠΊΠΎΠ»ΡΠΊΠΎ ΡΠ΅ΠΆΠ΅ Π²ΡΡΡΠ΅ΡΠ°ΡΡΡΡ ΠΎΡΠ΄Π΅Π»ΡΠ½ΠΎΡΡΠΎΡΡΠΈΠ΅ Ρ ΠΎΠ»ΠΎΠ΄ΠΈΠ»ΡΠ½ΠΈΠΊΠΈ Π½Π΅ΡΡΠ°Π½Π΄Π°ΡΡΠ½ΠΎΠΉ ΡΠΈΡΠΈΠ½Ρ ΠΎΡ 70 Π΄ΠΎ 90 ΡΠΌ Ρ Π²Π΅ΡΡ Π½Π΅ΠΉ ΠΈΠ»ΠΈ Π½ΠΈΠΆΠ½Π΅ΠΉ ΠΌΠΎΡΠΎΠ·ΠΈΠ»ΡΠ½ΠΎΠΉ ΠΊΠ°ΠΌΠ΅ΡΠΎΠΉ — Π² ΠΎΡΠ½ΠΎΠ²Π½ΠΎΠΌ ΡΡΠΎ ΡΠ°ΠΊ Π½Π°Π·ΡΠ²Π°Π΅ΠΌΡΠ΅ Π°Π·ΠΈΠ°ΡΡΠΊΠΈΠ΅ ΠΌΠΎΠ΄Π΅Π»ΠΈ Ρ ΠΌΠΎΡΠΎΠ·ΠΈΠ»ΡΠ½ΠΈΠΊΠΎΠΌ ΡΠ²Π΅ΡΡ Ρ.

ΠΠ»ΡΠ±ΠΈΠ½ΠΎΠΉ Ρ ΠΎΠ»ΠΎΠ΄ΠΈΠ»ΡΠ½ΠΈΠΊΠ° Π½Π°Π·ΡΠ²Π°Π΅ΡΡΡ ΡΠ°ΡΡΡΠΎΡΠ½ΠΈΠ΅ ΠΎΡ Π΅Π³ΠΎ ΡΡΠΎΠ½ΡΠ°Π»ΡΠ½ΠΎΠΉ ΡΠ°ΡΡΠΈ Π΄ΠΎ Π·Π°Π΄Π½Π΅ΠΉ ΡΡΠ΅Π½ΠΊΠΈ. ΠΠ·Π²Π΅ΡΡΠ½ΠΎ, ΡΡΠΎ ΠΏΡΠΈ ΡΡΡΠ°Π½ΠΎΠ²ΠΊΠ΅ Ρ ΠΎΠ»ΠΎΠ΄ΠΈΠ»ΡΠ½ΠΈΠΊΠ° ΠΊ ΡΡΠ΅Π½Π΅ ΠΌΠ΅ΠΆΠ΄Ρ Π΅Π³ΠΎ Π·Π°Π΄Π½Π΅ΠΉ ΡΡΠ΅Π½ΠΊΠΎΠΉ ΠΈ ΠΏΠΎΠ²Π΅ΡΡ Π½ΠΎΡΡΡΡ Π΄ΠΎΠ»ΠΆΠ½ΠΎ ΠΎΡΡΠ°Π²Π°ΡΡΡΡ ΡΠ°ΡΡΡΠΎΡΠ½ΠΈΠ΅ ΠΎΠΊΠΎΠ»ΠΎ 8-10 ΡΠΌ, Π½Π΅ΠΎΠ±Ρ ΠΎΠ΄ΠΈΠΌΠΎΠ΅ Π΄Π»Ρ Π½ΠΎΡΠΌΠ°Π»ΡΠ½ΠΎΠΉ Π²Π΅Π½ΡΠΈΠ»ΡΡΠΈΠΈ. Π‘ ΡΡΠΈΠΌ ΡΠ°ΠΊΠΆΠ΅ ΡΠ²ΡΠ·Π°Π½Ρ ΠΎΠ³ΡΠ°Π½ΠΈΡΠ΅Π½ΠΈΡ Π½Π° Π³Π»ΡΠ±ΠΈΠ½Ρ ΡΡΠΈΡ ΡΡΡΡΠΎΠΉΡΡΠ².
Π‘ΡΠ°Π½Π΄Π°ΡΡΠ½Π°Ρ Π³Π»ΡΠ±ΠΈΠ½Π° Π΄Π»Ρ ΠΎΠ±ΡΡΠ½ΡΡ Π΅Π²ΡΠΎΠΏΠ΅ΠΉΡΠΊΠΈΡ Ρ ΠΎΠ»ΠΎΠ΄ΠΈΠ»ΡΠ½ΠΈΠΊΠΎΠ² Ρ Π½ΠΈΠΆΠ½Π΅ΠΉ ΠΌΠΎΡΠΎΠ·ΠΈΠ»ΡΠ½ΠΎΠΉ ΠΊΠ°ΠΌΠ΅ΡΠΎΠΉ ΡΠΎΡΡΠ°Π²Π»ΡΠ΅Ρ ΠΎΠΊΠΎΠ»ΠΎ 60 ΡΠΌ. ΠΠ°ΠΊ ΠΈ Π² ΡΠ»ΡΡΠ°Π΅ Ρ ΡΠΈΡΠΈΠ½ΠΎΠΉ, ΡΡΠΎ ΠΎΠ±ΡΡΠ»ΠΎΠ²Π»Π΅Π½ΠΎ ΡΠ΅ΠΌ, ΡΡΠΎ Ρ ΠΎΠ»ΠΎΠ΄ΠΈΠ»ΡΠ½ΠΈΠΊ ΡΠ°Π·ΠΌΠ΅ΡΠ°Π΅ΡΡΡ Π² ΠΎΠ±ΡΡΠ½ΠΎΠΉ ΠΊΡΡ Π½Π΅ ΡΡΠ΄ΠΎΠΌ Ρ Π΄ΡΡΠ³ΠΎΠΉ ΠΌΠ΅Π±Π΅Π»ΡΡ, Π±ΡΡΠΎΠ²ΠΎΠΉ ΡΠ΅Ρ Π½ΠΈΠΊΠΎΠΉ, ΡΠ°Π±ΠΎΡΠ΅ΠΉ ΠΏΠΎΠ²Π΅ΡΡ Π½ΠΎΡΡΡΡ. Π₯ΠΎΠ»ΠΎΠ΄ΠΈΠ»ΡΠ½ΠΈΠΊ Π³Π»ΡΠ±ΠΈΠ½ΠΎΠΉ 60 ΡΠΌ Π½Π΅ Π±ΡΠ΄Π΅Ρ Π²ΡΡΡΡΠΏΠ°ΡΡ Π²ΠΏΠ΅ΡΠ΅Π΄, ΡΡΠΎ ΠΏΠΎΠ·Π²ΠΎΠ»ΡΠ΅Ρ ΠΎΡΠ³Π°Π½ΠΈΠ·ΠΎΠ²Π°ΡΡ ΡΠ°Π±ΠΎΡΠ΅Π΅ ΠΌΠ΅ΡΡΠΎ Π½Π°ΠΈΠ±ΠΎΠ»Π΅Π΅ ΡΠ΄ΠΎΠ±Π½ΠΎ.
ΠΠΈΠ°ΠΏΠ°Π·ΠΎΠ½ ΡΠ°Π·ΠΌΠ΅ΡΠΎΠ² ΡΡΠ°Π½Π΄Π°ΡΡΠ½ΡΡ Ρ ΠΎΠ»ΠΎΠ΄ΠΈΠ»ΡΠ½ΠΈΠΊΠΎΠ² Π»ΡΠ±ΠΎΠΉ ΡΠΈΡΠΈΠ½Ρ ΠΈ Π²ΡΡΠΎΡΡ ΠΌΠΎΠΆΠ΅Ρ ΡΠΎΡΡΠ°Π²ΠΈΡΡ ΠΎΡ 55 Π΄ΠΎ 65-70 ΡΠΌ. ΠΠ½ΠΎΠ³Π΄Π° ΠΌΠΎΠ΄Π΅Π»ΠΈ Π±ΠΎΠ»ΡΡΠ΅ΠΉ Π³Π»ΡΠ±ΠΈΠ½Ρ, ΠΏΠΎΡΡΠ΄ΠΊΠ° 70 ΡΠΌ, ΠΏΡΠΈΠΎΠ±ΡΠ΅ΡΠ°ΡΡΡΡ Π΄Π»Ρ ΡΠΎΠ³ΠΎ ΡΡΠΎΠ±Ρ ΡΠΊΠΎΠΌΠΏΠ΅Π½ΡΠΈΡΠΎΠ²Π°ΡΡ Π±ΠΎΠ»Π΅Π΅ ΡΡΡΠΎΠ³ΠΎΠ΅ ΠΎΠ³ΡΠ°Π½ΠΈΡΠ΅Π½ΠΈΠ΅ ΠΏΠΎ ΡΠΈΡΠΈΠ½Π΅ ΠΈ ΡΠ²Π΅Π»ΠΈΡΠΈΡΡ Π²ΠΌΠ΅ΡΡΠΈΠΌΠΎΡΡΡ. Π£ ΠΌΠΈΠ½ΠΈ-Ρ ΠΎΠ»ΠΎΠ΄ΠΈΠ»ΡΠ½ΠΈΠΊΠΎΠ², ΠΊΠΎΡΠΎΡΡΠ΅ ΡΠ°Π·ΠΌΠ΅ΡΠ°ΡΡΡΡ ΠΏΠΎΠ΄ ΡΡΠΎΠ»Π΅ΡΠ½ΠΈΡΠ΅ΠΉ ΠΈΠ»ΠΈ Π² ΡΡΠΌΠ±Π΅, Π³Π»ΡΠ±ΠΈΠ½Π° ΡΠ°ΠΊΠΆΠ΅ ΠΌΠ΅Π½ΡΡΠ΅ ΡΡΠ°Π½Π΄Π°ΡΡΠ½ΠΎΠΉ: ΠΎΠ½Π° ΠΌΠΎΠΆΠ΅Ρ ΡΠΎΡΡΠ°Π²ΠΈΡΡ ΠΌΠΈΠ½ΠΈΠΌΡΠΌ 48-50 ΡΠΌ. ΠΠ½ΠΎΠ³Π΄Π° Π² ΡΠ°ΠΊΠΈΡ Ρ ΠΎΠ»ΠΎΠ΄ΠΈΠ»ΡΠ½ΠΈΠΊΠ°Ρ ΡΠ°ΡΡΡ Π³Π»ΡΠ±ΠΈΠ½Ρ «ΡΡΠ΅Π΄Π°Π΅Ρ» ΡΠ°ΡΠΏΠΎΠ»ΠΎΠΆΠ΅Π½Π½ΡΠΉ Π² ΠΊΠ°ΠΌΠ΅ΡΠ΅ ΠΊΠΎΠΌΠΏΡΠ΅ΡΡΠΎΡ.
ΠΠ°ΠΈΠ±ΠΎΠ»Π΅Π΅ ΡΠ°Π·Π½ΠΎΠΎΠ±ΡΠ°Π·Π½Ρ Π½Π΅ΡΡΠ°Π½Π΄Π°ΡΡΠ½ΡΠ΅ Ρ ΠΎΠ»ΠΎΠ΄ΠΈΠ»ΡΠ½ΠΈΠΊΠΈ Π±ΠΎΠ»ΡΡΠΎΠ³ΠΎ ΡΠ°Π·ΠΌΠ΅ΡΠ° ΡΠΈΠΏΠ° Side-by-Side ΠΈΠ»ΠΈ French Door. ΠΠ»ΡΠ±ΠΈΠ½Π° ΡΠ°ΠΊΠΈΡ ΡΡΡΡΠΎΠΉΡΡΠ² ΠΌΠΎΠΆΠ΅Ρ ΡΠΎΡΡΠ°Π²Π»ΡΡΡ Π΄ΠΎ 80-85 ΡΠΌ. ΠΠ°ΠΊ ΠΏΡΠ°Π²ΠΈΠ»ΠΎ, ΡΡΠΎ ΠΎΡΠ΄Π΅Π»ΡΠ½ΠΎΡΡΠΎΡΡΠΈΠ΅ ΠΌΠΎΠ΄Π΅Π»ΠΈ, ΠΊΠΎΡΠΎΡΡΠ΅ ΡΡΡΠ°Π½Π°Π²Π»ΠΈΠ²Π°ΡΡ Π² ΠΏΡΠΎΡΡΠΎΡΠ½ΡΡ ΠΏΠΎΠΌΠ΅ΡΠ΅Π½ΠΈΡΡ . ΠΠ΅ΡΠΊΠΎΠ»ΡΠΊΠΎ ΡΠ΅ΠΆΠ΅ Π²ΡΡΡΠ΅ΡΠ°ΡΡΡΡ ΠΎΡΠ΄Π΅Π»ΡΠ½ΠΎΡΡΠΎΡΡΠΈΠ΅ Ρ ΠΎΠ»ΠΎΠ΄ΠΈΠ»ΡΠ½ΠΈΠΊΠΈ ΡΠ²Π΅Π»ΠΈΡΠ΅Π½Π½ΠΎΠΉ Π³Π»ΡΠ±ΠΈΠ½Ρ Ρ ΠΌΠΎΡΠΎΠ·ΠΈΠ»ΡΠ½ΠΎΠΉ ΠΊΠ°ΠΌΠ΅ΡΠΎΠΉ ΡΠ²Π΅ΡΡ Ρ ΠΈΠ»ΠΈ ΡΠ½ΠΈΠ·Ρ: ΠΈΡ Π³Π»ΡΠ±ΠΈΠ½Π° ΠΌΠΎΠΆΠ΅Ρ ΡΠΎΡΡΠ°Π²ΠΈΡΡ ΠΎΠΊΠΎΠ»ΠΎ 70-75 ΡΠΌ. Π‘ΡΠ΅Π΄ΠΈ Π½ΠΈΡ ΠΈΠΌΠ΅ΡΡΡΡ ΠΊΠ°ΠΊ ΠΌΠΎΠ΄Π΅Π»ΠΈ Π°Π·ΠΈΠ°ΡΡΠΊΠΎΠ³ΠΎ ΡΠΈΠΏΠ° Ρ ΠΌΠΎΡΠΎΠ·ΠΈΠ»ΡΠ½ΠΈΠΊΠΎΠΌ ΡΠ²Π΅ΡΡ Ρ, ΡΠ°ΠΊ ΠΈ Π΅Π²ΡΠΎΠΏΠ΅ΠΉΡΠΊΠΎΠ³ΠΎ ΡΠΈΠΏΠ° Ρ ΠΌΠΎΡΠΎΠ·ΠΈΠ»ΡΠ½ΠΎΠΉ ΠΊΠ°ΠΌΠ΅ΡΠΎΠΉ ΡΠ½ΠΈΠ·Ρ — Π½Π°ΠΏΡΠΈΠΌΠ΅Ρ, ΠΏΡΠΎΠΈΠ·Π²ΠΎΠ΄ΡΡΠ²Π° Liebherr.

ΠΠΎ ΠΌΠ΅ΡΡΡ ΡΠ°ΡΠΏΠΎΠ»ΠΎΠΆΠ΅Π½ΠΈΡ ΠΌΠΎΡΠΎΠ·ΠΈΠ»ΡΠ½ΠΎΠΉ ΠΊΠ°ΠΌΠ΅ΡΡ Ρ ΠΎΠ»ΠΎΠ΄ΠΈΠ»ΡΠ½ΠΈΠΊΠΈ Π΄Π΅Π»ΡΡΡΡ Π½Π° Π½Π΅ΡΠΊΠΎΠ»ΡΠΊΠΎ Π±ΠΎΠ»ΡΡΠΈΡ Π³ΡΡΠΏΠΏ. Π’Π°ΠΊ Π½Π°Π·ΡΠ²Π°Π΅ΠΌΠ°Ρ Π΅Π²ΡΠΎΠΏΠ΅ΠΉΡΠΊΠ°Ρ ΠΌΠΎΠ΄Π΅Π»Ρ ΠΏΡΠ΅Π΄ΡΡΠ°Π²Π»ΡΠ΅Ρ ΡΠΎΠ±ΠΎΠΉ ΡΡΡΡΠΎΠΉΡΡΠ²ΠΎ Ρ Π½ΠΈΠΆΠ½ΠΈΠΌ ΡΠ°ΡΠΏΠΎΠ»ΠΎΠΆΠ΅Π½ΠΈΠ΅ΠΌ ΠΌΠΎΡΠΎΠ·ΠΈΠ»ΡΠ½ΠΈΠΊΠ°. Π’Π°ΠΊΠ°Ρ ΠΊΠΎΠ½ΡΡΡΡΠΊΡΠΈΡ ΠΎΠ±ΡΡΠ»ΠΎΠ²Π»Π΅Π½Π° ΡΠ΅ΠΌ, ΡΡΠΎ ΠΌΠΎΡΠΎΠ·ΠΈΠ»ΡΠ½ΠΈΠΊΠΎΠΌ ΠΎΠ±ΡΡΠ½ΠΎ ΠΏΠΎΠ»ΡΠ·ΡΡΡΡΡ Π½Π°ΠΌΠ½ΠΎΠ³ΠΎ ΡΠ΅ΠΆΠ΅, ΡΠ΅ΠΌ Ρ ΠΎΠ»ΠΎΠ΄ΠΈΠ»ΡΠ½ΠΎΠΉ ΠΊΠ°ΠΌΠ΅ΡΠΎΠΉ, ΠΏΠΎΡΡΠΎΠΌΡ ΠΏΠΎΠ»ΡΠ·ΠΎΠ²Π°ΡΠ΅Π»Ρ ΠΏΡΠΈΡ ΠΎΠ΄ΠΈΡΡΡ ΠΌΠ΅Π½ΡΡΠ΅ Π½Π°ΠΊΠ»ΠΎΠ½ΡΡΡΡΡ. ΠΠ°ΠΊ ΠΏΡΠ°Π²ΠΈΠ»ΠΎ, ΡΡΠΈ Ρ ΠΎΠ»ΠΎΠ΄ΠΈΠ»ΡΠ½ΠΈΠΊΠΈ ΠΎΡΠ»ΠΈΡΠ°ΡΡΡΡ Π½Π΅Π±ΠΎΠ»ΡΡΠΎΠΉ ΡΠΈΡΠΈΠ½ΠΎΠΉ ΠΎΠΊΠΎΠ»ΠΎ 60 ΡΠΌ ΠΈ Π±ΠΎΠ»ΡΡΠΎΠΉ Π²ΡΡΠΎΡΠΎΠΉ — Π΄ΠΎ 220 ΡΠΌ.
ΠΠ·ΠΈΠ°ΡΡΠΊΠ°Ρ ΠΌΠΎΠ΄Π΅Π»Ρ Ρ ΠΎΠ»ΠΎΠ΄ΠΈΠ»ΡΠ½ΠΈΠΊΠ° ΠΈΠΌΠ΅Π΅Ρ Π²Π΅ΡΡ Π½ΡΡ ΠΌΠΎΡΠΎΠ·ΠΈΠ»ΡΠ½ΡΡ ΠΊΠ°ΠΌΠ΅ΡΡ Π½Π΅Π±ΠΎΠ»ΡΡΠΎΠΉ Π²ΠΌΠ΅ΡΡΠΈΠΌΠΎΡΡΠΈ: ΡΡΠΈ Ρ ΠΎΠ»ΠΎΠ΄ΠΈΠ»ΡΠ½ΠΈΠΊΠΈ ΠΎΠ±ΡΡΠ½ΠΎ Π±ΠΎΠ»Π΅Π΅ Π½ΠΈΠ·ΠΊΠΈΠ΅, Π° ΡΠ°ΠΊΠΆΠ΅ Π±ΠΎΠ»Π΅Π΅ ΡΠΈΡΠΎΠΊΠΈΠ΅. Π Π°ΠΌΠ΅ΡΠΈΠΊΠ°Π½ΡΠΊΠΎΠΉ ΠΌΠΎΠ΄Π΅Π»ΠΈ Ρ ΠΎΠ»ΠΎΠ΄ΠΈΠ»ΡΠ½ΠΈΠΊΠ°, ΠΈΠ»ΠΈ Side-by-Side, ΠΌΠΎΡΠΎΠ·ΠΈΠ»ΡΠ½Π°Ρ ΠΊΠ°ΠΌΠ΅ΡΠ° ΡΠ°ΡΠΏΠΎΠ»ΠΎΠΆΠ΅Π½Π° ΡΠ±ΠΎΠΊΡ ΠΏΠΎ Π²ΡΠ΅ΠΉ Π²ΡΡΠΎΡΠ΅ ΡΡΡΡΠΎΠΉΡΡΠ²Π°. ΠΠ±ΡΡΠ½ΠΎ ΠΌΠΎΡΠΎΠ·ΠΈΠ»ΠΊΠ° ΡΠ°ΡΠΏΠΎΠ»Π°Π³Π°Π΅ΡΡΡ ΡΠ»Π΅Π²Π°, Π° Ρ ΠΎΠ»ΠΎΠ΄ΠΈΠ»ΡΠ½Π°Ρ ΠΊΠ°ΠΌΠ΅ΡΠ° ΡΠΏΡΠ°Π²Π°, ΡΠ°ΠΊ ΠΊΠ°ΠΊ Π΅Π΅ ΠΏΡΠΈΡ ΠΎΠ΄ΠΈΡΡΡ ΠΎΡΠΊΡΡΠ²Π°ΡΡ ΡΠ°ΡΠ΅. ΠΡΠΎ Π½Π°ΠΈΠ±ΠΎΠ»Π΅Π΅ Π²ΠΌΠ΅ΡΡΠΈΡΠ΅Π»ΡΠ½ΡΠ΅ ΡΡΡΡΠΎΠΉΡΡΠ²Π°, ΡΡΠΎΡΡ ΠΎΠ½ΠΈ ΠΏΡΠΈ ΡΡΠΎΠΌ ΡΠ°ΠΊΠΆΠ΅ Π·Π½Π°ΡΠΈΡΠ΅Π»ΡΠ½ΠΎ Π²ΡΡΠ΅.
ΠΠ½ΠΎΠ³Π΄Π° Π² ΠΎΡΠ΄Π΅Π»ΡΠ½ΡΠΉ ΡΠΈΠΏ Π²ΡΠ΄Π΅Π»ΡΡΡ ΡΠ°ΠΊ Π½Π°Π·ΡΠ²Π°Π΅ΠΌΡΠ΅ Ρ ΠΎΠ»ΠΎΠ΄ΠΈΠ»ΡΠ½ΠΈΠΊΠΈ Ρ ΡΡΠ°Π½ΡΡΠ·ΡΠΊΠΎΠΉ Π΄Π²Π΅ΡΡΡ French Door. ΠΠΎΡΠΎΠ·ΠΈΠ»ΡΠ½Π°Ρ ΠΊΠ°ΠΌΠ΅ΡΠ° Π² Π½ΠΈΡ Π½Π°Ρ ΠΎΠ΄ΠΈΡΡΡ ΡΠ½ΠΈΠ·Ρ, ΠΎΠ΄Π½Π°ΠΊΠΎ ΡΠ°ΠΊΠΈΠ΅ ΠΌΠΎΠ΄Π΅Π»ΠΈ ΠΎΡΠ½Π°ΡΠ°ΡΡΡΡ ΡΠ΅ΡΡΡΡΠΌΡ ΡΠ°ΡΠΏΠ°ΡΠ½ΡΠΌΠΈ Π΄Π²Π΅ΡΡΠΌΠΈ Π²ΠΌΠ΅ΡΡΠΎ Π΄Π²ΡΡ : Π΄Π²ΡΠΌΡ ΡΠ²Π΅ΡΡ Ρ ΠΈ Π΄Π²ΡΠΌΡ ΡΠ½ΠΈΠ·Ρ.

ΠΠΎΠ»ΠΈΡΠ΅ΡΡΠ²ΠΎ ΠΊΠ°ΠΌΠ΅Ρ Π² Ρ ΠΎΠ»ΠΎΠ΄ΠΈΠ»ΡΠ½ΠΈΠΊΠ΅ Π½Π°ΠΏΡΡΠΌΡΡ Π²Π»ΠΈΡΠ΅Ρ Π½Π° Π΅Π³ΠΎ Π³Π°Π±Π°ΡΠΈΡΠ½ΡΠ΅ ΡΠ°Π·ΠΌΠ΅ΡΡ ΠΈ, ΠΊΠ°ΠΊ ΠΏΡΠ°Π²ΠΈΠ»ΠΎ, Π½Π° Π½Π°Π±ΠΎΡ Π²ΠΎΠ·ΠΌΠΎΠΆΠ½ΠΎΡΡΠ΅ΠΉ ΠΈ ΡΡΠ½ΠΊΡΠΈΠΉ. Π‘ΠΎΠ²ΡΠ΅ΠΌΠ΅Π½Π½ΡΠ΅ Ρ ΠΎΠ»ΠΎΠ΄ΠΈΠ»ΡΠ½ΠΈΠΊΠΈ Π²ΡΠΏΡΡΠΊΠ°ΡΡΡΡ Π² Π½Π΅ΡΠΊΠΎΠ»ΡΠΊΠΈΡ Π²Π°ΡΠΈΠ°Π½ΡΠ°Ρ ΠΈ ΠΈΠΌΠ΅ΡΡ ΠΎΡ ΠΎΠ΄Π½ΠΎΠΉ Π΄ΠΎ ΠΏΡΡΠΈ ΠΈΠ»ΠΈ ΡΠ΅ΡΡΠΈ ΠΊΠ°ΠΌΠ΅Ρ.
ΠΠ΄Π½ΠΎΠΊΠ°ΠΌΠ΅ΡΠ½ΡΠ΅ Ρ ΠΎΠ»ΠΎΠ΄ΠΈΠ»ΡΠ½ΠΈΠΊΠΈ ΠΈΠΌΠ΅ΡΡ ΠΎΠ΄Π½Ρ Π΄Π²Π΅ΡΡ ΠΈ ΠΎΠ΄Π½Ρ Ρ ΠΎΠ»ΠΎΠ΄ΠΈΠ»ΡΠ½ΡΡ ΠΊΠ°ΠΌΠ΅ΡΡ, Π² ΠΊΠΎΡΠΎΡΠΎΠΉ ΠΈΠ½ΠΎΠ³Π΄Π° Π²ΡΠ΄Π΅Π»ΡΠ΅ΡΡΡ ΠΌΠ΅ΡΡΠΎ Π΄Π»Ρ Π½Π΅Π±ΠΎΠ»ΡΡΠΎΠ³ΠΎ ΠΌΠΎΡΠΎΠ·ΠΈΠ»ΡΠ½ΠΎΠ³ΠΎ ΠΎΡΡΠ΅ΠΊΠ°. ΠΡΠΎ Π½Π°ΠΈΠ±ΠΎΠ»Π΅Π΅ Π΄Π΅ΡΠ΅Π²ΡΠ΅ ΠΌΠΎΠ΄Π΅Π»ΠΈ, ΠΊΠΎΡΠΎΡΡΠ΅ ΠΎΡΠ»ΠΈΡΠ°ΡΡΡΡ Π½Π΅Π±ΠΎΠ»ΡΡΠΈΠΌΠΈ ΡΠ°Π·ΠΌΠ΅ΡΠ°ΠΌΠΈ ΠΈ ΠΎΠ³ΡΠ°Π½ΠΈΡΠ΅Π½Π½ΡΠΌ ΠΊΠΎΠ»ΠΈΡΠ΅ΡΡΠ²ΠΎΠΌ Π²ΠΎΠ·ΠΌΠΎΠΆΠ½ΠΎΡΡΠ΅ΠΉ. Π Π½ΠΈΡ ΠΏΡΠΈΠΌΠ΅Π½ΡΠ΅ΡΡΡ ΡΡΡΠ½Π°Ρ ΡΠ°Π·ΠΌΠΎΡΠΎΠ·ΠΊΠ°, ΡΠ΅ΠΆΠ΅ ΠΊΠ°ΠΏΠ΅Π»ΡΠ½Π°Ρ ΠΈΠ»ΠΈ ΡΠ°Π·ΠΌΠΎΡΠ°ΠΆΠΈΠ²Π°Π½ΠΈΠ΅ No Frost.
ΠΠ²ΡΡ ΠΊΠ°ΠΌΠ΅ΡΠ½ΡΠ΅ ΠΌΠΎΠ΄Π΅Π»ΠΈ — ΡΠ°ΠΌΡΠ΅ Π²ΠΎΡΡΡΠ΅Π±ΠΎΠ²Π°Π½Π½ΡΠ΅ Ρ ΠΏΠΎΠΊΡΠΏΠ°ΡΠ΅Π»Π΅ΠΉ. ΠΠ½ΠΈ ΡΠΎΡΡΠΎΡΡ ΠΈΠ· Ρ ΠΎΠ»ΠΎΠ΄ΠΈΠ»ΡΠ½ΠΎΠ³ΠΎ ΠΎΡΠ΄Π΅Π»Π΅Π½ΠΈΡ ΠΈ ΠΌΠΎΡΠΎΠ·ΠΈΠ»ΡΠ½ΠΎΠΉ ΠΊΠ°ΠΌΠ΅ΡΡ, ΠΊΠΎΡΠΎΡΠ°Ρ ΠΌΠΎΠΆΠ΅Ρ ΡΠ°ΡΠΏΠΎΠ»Π°Π³Π°ΡΡΡΡ ΡΠ²Π΅ΡΡ Ρ ΠΈΠ»ΠΈ ΡΠ½ΠΈΠ·Ρ. ΠΡΠΎΠΈΠ·Π²ΠΎΠ΄ΠΈΡΠ΅Π»ΠΈ ΠΏΡΠ΅Π΄Π»Π°Π³Π°ΡΡ ΠΎΠ³ΡΠΎΠΌΠ½ΡΠΉ Π°ΡΡΠΎΡΡΠΈΠΌΠ΅Π½Ρ ΠΏΠΎΠ΄ΠΎΠ±Π½ΡΡ ΡΡΡΡΠΎΠΉΡΡΠ², ΠΎΡ Π΄Π΅ΡΠ΅Π²ΡΡ Π΄ΠΎ ΡΠ»ΠΈΡΠ½ΡΡ ΠΌΠΎΠ΄Π΅Π»Π΅ΠΉ, — Ρ ΡΠ°Π·ΠΌΠΎΡΠ°ΠΆΠΈΠ²Π°Π½ΠΈΠ΅ΠΌ No Frost, ΡΠ»Π΅ΠΊΡΡΠΎΠ½Π½ΡΠΌ ΡΠΏΡΠ°Π²Π»Π΅Π½ΠΈΠ΅ΠΌ ΠΈ Π΄Π²ΡΠΌΡ ΠΊΠΎΠ½ΡΡΡΠ°ΠΌΠΈ ΠΎΡ Π»Π°ΠΆΠ΄Π΅Π½ΠΈΡ.
Π’ΡΠ΅Ρ ΠΊΠ°ΠΌΠ΅ΡΠ½ΡΠ΅ ΠΌΠΎΠ΄Π΅Π»ΠΈ Π²ΡΠΏΡΡΠΊΠ°ΡΡΡΡ Π² Π½Π΅ΡΠΊΠΎΠ»ΡΠΊΠΈΡ Π²Π°ΡΠΈΠ°Π½ΡΠ°Ρ . Π Π½Π΅ΠΊΠΎΡΠΎΡΡΡ ΡΠ»ΡΡΠ°ΡΡ Π² ΠΊΠ°ΡΠ΅ΡΡΠ²Π΅ ΡΡΠ΅ΡΡΠ΅ΠΉ ΠΊΠ°ΠΌΠ΅ΡΡ ΠΏΠΎΡΡΡΠΏΠ°Π΅Ρ ΡΠ°ΠΊ Π½Π°Π·ΡΠ²Π°Π΅ΠΌΠ°Ρ Π·ΠΎΠ½Π° ΡΠ²Π΅ΠΆΠ΅ΡΡΠΈ — ΠΎΡΠ΄Π΅Π»Π΅Π½ΠΈΠ΅, Π³Π΄Π΅ ΠΏΠΎΠ΄Π΄Π΅ΡΠΆΠΈΠ²Π°Π΅ΡΡΡ ΡΠ΅ΠΌΠΏΠ΅ΡΠ°ΡΡΡΠ° ΠΎΠΊΠΎΠ»ΠΎ 0 Π³ΡΠ°Π΄ΡΡΠΎΠ². Π Π΄ΡΡΠ³ΠΎΠΌ Π²Π°ΡΠΈΠ°Π½ΡΠ΅ ΠΏΠΎΠ΄ΠΎΠ±Π½ΡΠ΅ ΠΌΠΎΠ΄Π΅Π»ΠΈ ΠΈΠΌΠ΅ΡΡ ΠΌΠΎΡΠΎΠ·ΠΈΠ»ΡΠ½ΡΡ ΠΊΠ°ΠΌΠ΅ΡΡ, ΡΠΎΡΡΠΎΡΡΡΡ ΠΈΠ· Π΄Π²ΡΡ Π²ΡΠ΄Π²ΠΈΠΆΠ½ΡΡ ΡΡΠΈΠΊΠΎΠ².
Π§Π΅ΡΡΡΠ΅Ρ -, ΠΏΡΡΠΈ- ΠΈ ΡΠ΅ΡΡΠΈΠΊΠ°ΠΌΠ΅ΡΠ½ΡΠ΅ ΠΌΠΎΠ΄Π΅Π»ΠΈ Π²ΠΊΠ»ΡΡΠ°ΡΡ, ΠΊΡΠΎΠΌΠ΅ ΠΌΠΎΡΠΎΠ·ΠΈΠ»ΡΠ½ΠΎΠΉ ΠΈ Ρ ΠΎΠ»ΠΎΠ΄ΠΈΠ»ΡΠ½ΠΎΠΉ ΠΊΠ°ΠΌΠ΅Ρ, ΠΎΡΠ΄Π΅Π»ΡΠ½ΡΡ Π·ΠΎΠ½Ρ ΡΠ²Π΅ΠΆΠ΅ΡΡΠΈ (ΠΈΠ½ΠΎΠ³Π΄Π° ΡΠΎΡΡΠΎΡΡΡΡ ΠΈΠ· ΡΡΡ ΠΎΠ³ΠΎ ΠΈ Π²Π»Π°ΠΆΠ½ΠΎΠ³ΠΎ ΠΎΡΡΠ΅ΠΊΠΎΠ²) ΠΈ ΡΠΏΠ΅ΡΠΈΠ°Π»ΡΠ½ΡΠΉ ΠΎΡΡΠ΅ΠΊ Π΄Π»Ρ Π»Π΅Π΄ΠΎΠ³Π΅Π½Π΅ΡΠ°ΡΠΎΡΠ°, Π° Π² Π½Π΅ΠΊΠΎΡΠΎΡΡΡ ΡΠ»ΡΡΠ°ΡΡ Π΅ΡΠ΅ ΠΈ Π²ΠΈΠ½Π½ΠΎΠ΅ ΠΎΡΠ΄Π΅Π»Π΅Π½ΠΈΠ΅.
Π Π½Π΅ΠΊΠΎΡΠΎΡΡΡ ΠΏΠΎΠ΄ΠΎΠ±Π½ΡΡ ΡΡΡΡΠΎΠΉΡΡΠ²Π°Ρ , Π½Π°ΠΏΡΠΈΠΌΠ΅Ρ, Π² Ρ ΠΎΠ»ΠΎΠ΄ΠΈΠ»ΡΠ½ΠΈΠΊΠ°Ρ Hitachi, Π²ΡΠ΄Π΅Π»ΡΠ΅ΡΡΡ ΠΎΡΠ΄Π΅Π»Π΅Π½ΠΈΠ΅ Ρ ΡΠ΅Ρ Π½ΠΎΠ»ΠΎΠ³ΠΈΠ΅ΠΉ Π²Π°ΠΊΡΡΠΌΠΈΡΠΎΠ²Π°Π½ΠΈΡ ΠΏΡΠΎΠ΄ΡΠΊΡΠΎΠ², ΡΠ²Π΅Π»ΠΈΡΠΈΠ²Π°ΡΡΠ΅ΠΉ ΡΡΠΎΠΊ ΠΈΡ Ρ ΡΠ°Π½Π΅Π½ΠΈΡ, Π° ΡΠ°ΠΊΠΆΠ΅ ΠΎΡΠ΄Π΅Π»ΡΠ½ΡΠΉ Π³Π΅ΡΠΌΠ΅ΡΠΈΡΠ½ΡΠΉ ΠΎΡΡΠ΅ΠΊ Π΄Π»Ρ Ρ ΡΠ°Π½Π΅Π½ΠΈΡ ΠΎΠ²ΠΎΡΠ΅ΠΉ ΡΠΎ ΡΠΏΠ΅ΡΠΈΠ°Π»ΡΠ½ΠΎΠΉ ΡΠ΅Ρ Π½ΠΎΠ»ΠΎΠ³ΠΈΠΈ ΠΏΠΎΠ΄Π΄Π΅ΡΠΆΠ°Π½ΠΈΡ ΡΠ²Π΅ΠΆΠ΅ΡΡΠΈ ΠΈ ΠΊΠΎΠ½ΡΡΠΎΠ»Π΅ΠΌ Π²Π»Π°ΠΆΠ½ΠΎΡΡΠΈ.

ΠΠ»ΠΈΠΌΠ°ΡΠΈΡΠ΅ΡΠΊΠΈΠΉ ΠΊΠ»Π°ΡΡ Ρ ΠΎΠ»ΠΎΠ΄ΠΈΠ»ΡΠ½ΠΈΠΊΠ° ΠΏΡΠ΅Π΄Π½Π°Π·Π½Π°ΡΠ°Π΅ΡΡΡ Π΄Π»Ρ ΠΎΠΏΡΠ΅Π΄Π΅Π»Π΅Π½ΠΈΡ Π΄ΠΈΠ°ΠΏΠ°Π·ΠΎΠ½Π° ΡΠ΅ΠΌΠΏΠ΅ΡΠ°ΡΡΡ, Π² ΠΊΠΎΡΠΎΡΠΎΠΌ Π΄Π°Π½Π½ΠΎΠ΅ ΡΡΡΡΠΎΠΉΡΡΠ²ΠΎ Π±ΡΠ΄Π΅Ρ ΡΠ°Π±ΠΎΡΠ°ΡΡ Π½ΠΎΡΠΌΠ°Π»ΡΠ½ΠΎ. ΠΡΠ΅ Π²ΠΎΠ·ΠΌΠΎΠΆΠ½ΠΎΡΡΠΈ, Π·Π°ΡΠ²Π»Π΅Π½Π½ΡΠ΅ Π² ΡΠ΅Ρ Π½ΠΈΡΠ΅ΡΠΊΠΎΠΌ ΠΎΠΏΠΈΡΠ°Π½ΠΈΠΈ, Π±ΡΠ΄ΡΡ ΡΠΎΠΎΡΠ²Π΅ΡΡΡΠ²ΠΎΠ²Π°ΡΡ Π΅ΠΌΡ ΡΠΎΠ»ΡΠΊΠΎ ΠΏΡΠΈ ΡΠΎΠ±Π»ΡΠ΄Π΅Π½ΠΈΠΈ ΡΠΊΠ°Π·Π°Π½Π½ΡΡ ΡΡΠ»ΠΎΠ²ΠΈΠΉ. Π₯ΠΎΠ»ΠΎΠ΄ΠΈΠ»ΡΠ½ΠΈΠΊΠΈ ΡΠ°Π·Π½ΡΡ ΠΊΠ»ΠΈΠΌΠ°ΡΠΈΡΠ΅ΡΠΊΠΈΡ ΠΊΠ»Π°ΡΡΠΎΠ² ΡΠ°Π·Π»ΠΈΡΠ°ΡΡΡΡ ΠΌΠΎΡΠ½ΠΎΡΡΡΡ Π΄Π²ΠΈΠ³Π°ΡΠ΅Π»Ρ, ΠΌΠ°ΡΠ΅ΡΠΈΠ°Π»Π°ΠΌΠΈ ΠΈΠ·Π³ΠΎΡΠΎΠ²Π»Π΅Π½ΠΈΡ, ΠΊΠ°ΡΠ΅ΡΡΠ²ΠΎΠΌ ΠΈΠ·ΠΎΠ»ΡΡΠΈΠΈ, ΠΏΠ»ΠΎΡΠ°Π΄ΡΡ ΠΊΠΎΠ½Π΄Π΅Π½ΡΠ°ΡΠΎΡΠΎΠ² ΠΈ ΠΈΡΠΏΠ°ΡΠΈΡΠ΅Π»Π΅ΠΉ, ΡΠ½Π΅ΡΠ³ΠΎΠΏΠΎΡΡΠ΅Π±Π»Π΅Π½ΠΈΠ΅ΠΌ.
ΠΡΠ΄Π΅Π»ΡΠ΅ΡΡΡ 4 ΠΎΡΠ½ΠΎΠ²Π½ΡΡ ΠΊΠ»ΠΈΠΌΠ°ΡΠΈΡΠ΅ΡΠΊΠΈΡ ΠΊΠ»Π°ΡΡΠ°. ΠΠ»Π°ΡΡ N, ΠΈΠ»ΠΈ Π½ΠΎΡΠΌΠ°Π»ΡΠ½ΡΠΉ, — Π½Π°ΠΈΠ±ΠΎΠ»Π΅Π΅ Π²ΠΎΡΡΡΠ΅Π±ΠΎΠ²Π°Π½Π½ΡΠΉ Π² ΡΠΎΡΡΠΈΠΉΡΠΊΠΈΡ ΡΡΠ»ΠΎΠ²ΠΈΡΡ , ΠΏΡΠ΅Π΄ΡΡΠΌΠ°ΡΡΠΈΠ²Π°Π΅Ρ ΡΠΊΡΠΏΠ»ΡΠ°ΡΠ°ΡΠΈΡ ΠΏΡΠΈ ΡΠ΅ΠΌΠΏΠ΅ΡΠ°ΡΡΡΠ΅ ΠΎΠΊΡΡΠΆΠ°ΡΡΠ΅ΠΉ ΡΡΠ΅Π΄Ρ ΠΎΡ +16 Π΄ΠΎ +32 Π³ΡΠ°Π΄ΡΡΠΎΠ². ΠΡΠΈ Ρ ΠΎΠ»ΠΎΠ΄ΠΈΠ»ΡΠ½ΠΈΠΊΠΈ ΠΎΡΠ»ΠΈΡΠ°ΡΡΡΡ Ρ ΠΎΡΠΎΡΠ΅ΠΉ ΡΠ½Π΅ΡΠ³ΠΎΡΡΡΠ΅ΠΊΡΠΈΠ²Π½ΠΎΡΡΡΡ, ΠΌΠΎΠ³ΡΡ ΡΡΡΠ°Π½Π°Π²Π»ΠΈΠ²Π°ΡΡΡΡ Π² ΠΎΡΠ°ΠΏΠ»ΠΈΠ²Π°Π΅ΠΌΡΡ ΠΈΠ»ΠΈ ΠΊΠΎΠ½Π΄ΠΈΡΠΈΠΎΠ½ΠΈΡΠΎΠ²Π°Π½Π½ΡΡ ΠΏΠΎΠΌΠ΅ΡΠ΅Π½ΠΈΡΡ , ΠΏΡΠΈ ΡΡΠΎΠΌ Π½Π°ΡΡΠΆΠ½Π°Ρ ΡΠ΅ΠΌΠΏΠ΅ΡΠ°ΡΡΡΠ° ΠΌΠΎΠΆΠ΅Ρ Π²ΡΡ ΠΎΠ΄ΠΈΡΡ Π·Π° ΠΏΡΠ΅Π΄Π΅Π»Ρ ΡΠΊΠ°Π·Π°Π½Π½ΠΎΠ³ΠΎ Π΄ΠΈΠ°ΠΏΠ°Π·ΠΎΠ½Π°.
ΠΠ»Π°ΡΡ SN, ΠΈΠ»ΠΈ ΡΡΠ±Π½ΠΎΡΠΌΠ°Π»ΡΠ½ΡΠΉ, Ρ Π΄ΠΈΠ°ΠΏΠ°Π·ΠΎΠ½ΠΎΠΌ ΡΠ°Π±ΠΎΡΠΈΡ ΡΠ΅ΠΌΠΏΠ΅ΡΠ°ΡΡΡ ΠΎΡ + 10 Π΄ΠΎ + 32 Π³ΡΠ°Π΄ΡΡΠΎΠ² ΠΏΠΎΠ·Π²ΠΎΠ»ΡΠ΅Ρ ΡΡΡΠ°Π½Π°Π²Π»ΠΈΠ²Π°ΡΡ ΡΡΡΡΠΎΠΉΡΡΠ²ΠΎ Π² ΠΏΠ»ΠΎΡ ΠΎ ΠΎΡΠ°ΠΏΠ»ΠΈΠ²Π°Π΅ΠΌΡΡ ΠΏΠΎΠΌΠ΅ΡΠ΅Π½ΠΈΡΡ — Π½Π°ΠΏΡΠΈΠΌΠ΅Ρ, ΠΏΠΎΠ΄Π²Π°Π»Π°Ρ , ΠΏΠΎΠ΄ΡΠΎΠ±ΠΊΠ°Ρ , ΠΊΠΎΡΠΈΠ΄ΠΎΡΠ°Ρ .
ΠΠ»Π°ΡΡ ST, ΠΈΠ»ΠΈ ΡΡΠ±ΡΡΠΎΠΏΠΈΡΠ΅ΡΠΊΠΈΠΉ, ΠΈΠΌΠ΅Π΅Ρ Π΄ΠΈΠ°ΠΏΠ°Π·ΠΎΠ½ ΡΠ°Π±ΠΎΡΠΈΡ ΡΠ΅ΠΌΠΏΠ΅ΡΠ°ΡΡΡ ΠΎΡ + 18 Π΄ΠΎ + 38 Π³ΡΠ°Π΄ΡΡΠΎΠ² ΠΈ ΠΏΡΠ΅Π΄Π½Π°Π·Π½Π°ΡΠ°Π΅ΡΡΡ Π΄Π»Ρ ΡΠ°Π±ΠΎΡΡ Π² ΠΆΠ°ΡΠΊΠΎΠΌ ΠΊΠ»ΠΈΠΌΠ°ΡΠ΅ Ρ Π²ΡΡΠΎΠΊΠΎΠΉ Π²Π»Π°ΠΆΠ½ΠΎΡΡΡΡ Π²ΠΎΠ·Π΄ΡΡ Π°.
Π£ΡΡΡΠΎΠΉΡΡΠ²Π° ΠΊΠ»Π°ΡΡΠ° Π’, ΠΈΠ»ΠΈ ΡΡΠΎΠΏΠΈΡΠ΅ΡΠΊΠΎΠ³ΠΎ, Ρ Π΄ΠΈΠ°ΠΏΠ°Π·ΠΎΠ½ΠΎΠΌ ΡΠ°Π±ΠΎΡΠΈΡ ΡΠ΅ΠΌΠΏΠ΅ΡΠ°ΡΡΡ ΠΎΡ + 18 Π΄ΠΎ + 43 Π³ΡΠ°Π΄ΡΡΠΎΠ² ΡΠΏΠ΅ΡΠΈΠ°Π»ΡΠ½ΠΎ ΡΠ°Π·ΡΠ°Π±ΠΎΡΠ°Π½Ρ Π΄Π»Ρ ΡΠΊΡΠΏΠ»ΡΠ°ΡΠ°ΡΠΈΠΈ Π² ΡΡΡ ΠΎΠΌ ΡΡΠΎΠΏΠΈΡΠ΅ΡΠΊΠΎΠΌ ΠΊΠ»ΠΈΠΌΠ°ΡΠ΅.
ΠΡΠΎΠΌΠ΅ ΠΌΠΎΠ΄Π΅Π»Π΅ΠΉ, ΠΎΡΠ½ΠΎΡΡΡΠΈΡ ΡΡ ΠΊ ΠΎΡΠ½ΠΎΠ²Π½ΡΠΌ ΠΊΠ»Π°ΡΡΠ°ΠΌ, ΠΏΠΎΠΏΡΠ»ΡΡΠ½ΠΎΡΡΡΡ ΠΏΠΎΠ»ΡΠ·ΡΡΡΡΡ ΡΡΡΡΠΎΠΉΡΡΠ²Π°, ΠΏΡΠ΅Π΄Π½Π°Π·Π½Π°ΡΠ΅Π½Π½ΡΠ΅ Π΄Π»Ρ ΡΠ°Π±ΠΎΡΡ Π² Π±ΠΎΠ»Π΅Π΅ ΡΠΈΡΠΎΠΊΠΎΠΌ Π΄ΠΈΠ°ΠΏΠ°Π·ΠΎΠ½Π΅ ΡΠ΅ΠΌΠΏΠ΅ΡΠ°ΡΡΡ ΠΈ ΡΠΎΠΎΡΠ²Π΅ΡΡΡΠ²ΡΡΡΠΈΠ΅ ΡΡΠ°Π·Ρ Π½Π΅ΡΠΊΠΎΠ»ΡΠΊΠΈΠΌ ΠΊΠ»ΠΈΠΌΠ°ΡΠΈΡΠ΅ΡΠΊΠΈΠΌ ΠΊΠ»Π°ΡΡΠ°ΠΌ. Π‘ΡΠ΅Π΄ΠΈ Π½ΠΈΡ Π²ΡΠ΄Π΅Π»ΡΡΡ ΠΊΠ»Π°ΡΡ N-ST Ρ Π΄ΠΈΠ°ΠΏΠ°Π·ΠΎΠ½ΠΎΠΌ ΡΠ΅ΠΌΠΏΠ΅ΡΠ°ΡΡΡ oΡ + 16 Π΄ΠΎ + 38 Π³ΡΠ°Π΄ΡΡΠΎΠ². ΠΠΎΠ΄Π΅Π»ΠΈ ΠΊΠ»Π°ΡΡΠ° N-T ΠΏΡΠ΅Π΄Π½Π°Π·Π½Π°ΡΠ΅Π½Ρ Π΄Π»Ρ ΡΠ°Π±ΠΎΡΡ ΠΏΡΠΈ ΡΠ΅ΠΌΠΏΠ΅ΡΠ°ΡΡΡΠ΅ ΠΎΡ + 16 Π΄ΠΎ + 43 Π³ΡΠ°Π΄ΡΡΠΎΠ². Π₯ΠΎΠ»ΠΎΠ΄ΠΈΠ»ΡΠ½ΠΈΠΊΠΈ ΠΊΠ»Π°ΡΡΠ° SN-ST ΡΠΏΠΎΡΠΎΠ±Π½Ρ ΡΠ°Π±ΠΎΡΠ°ΡΡ ΠΏΡΠΈ ΡΠ΅ΠΌΠΏΠ΅ΡΠ°ΡΡΡΠ΅ ΠΎΠΊΡΡΠΆΠ°ΡΡΠ΅ΠΉ ΡΡΠ΅Π΄Ρ ΠΎΡ + 10 Π΄ΠΎ + 38. ΠΠ»Π°ΡΡ SN-T ΡΠΎΠΎΡΠ²Π΅ΡΡΡΠ²ΡΠ΅Ρ Π΄ΠΈΠ°ΠΏΠ°Π·ΠΎΠ½Ρ ΡΠ΅ΠΌΠΏΠ΅ΡΠ°ΡΡΡ ΠΎΡ + 10 Π΄ΠΎ + 43 Π³ΡΠ°Π΄ΡΡΠΎΠ². ΠΡΠΎ ΡΠ½ΠΈΠ²Π΅ΡΡΠ°Π»ΡΠ½ΡΠ΅ ΠΏΡΠΈΠ±ΠΎΡΡ, ΠΊΠΎΡΠΎΡΡΠ΅ ΠΌΠΎΠΆΠ½ΠΎ ΡΠΊΡΠΏΠ»ΡΠ°ΡΠΈΡΠΎΠ²Π°ΡΡ Π² Π»ΡΠ±ΠΎΠΉ ΠΊΠ»ΠΈΠΌΠ°ΡΠΈΡΠ΅ΡΠΊΠΎΠΉ Π·ΠΎΠ½Π΅.
Π ΠΎΠΏΠΈΡΠ°Π½ΠΈΡΡ Π½Π΅ΠΊΠΎΡΠΎΡΡΡ ΠΌΠΎΠ΄Π΅Π»Π΅ΠΉ Ρ ΠΎΠ»ΠΎΠ΄ΠΈΠ»ΡΠ½ΠΈΠΊΠΎΠ² ΡΠΊΠ°Π·Π°Π½ΠΎ, ΡΡΠΎ ΠΎΠ½ΠΈ ΠΌΠΎΠ³ΡΡ ΡΠΎΠΎΡΠ²Π΅ΡΡΡΠ²ΠΎΠ²Π°ΡΡ ΡΡΠ°Π·Ρ ΡΡΠ΅ΠΌ ΠΈΠ»ΠΈ Π²ΡΠ΅ΠΌ ΡΠ΅ΡΡΡΠ΅ΠΌ ΠΊΠ»ΠΈΠΌΠ°ΡΠΈΡΠ΅ΡΠΊΠΈΠΌ ΠΊΠ»Π°ΡΡΠ°ΠΌ. Π§ΡΠΎΠ±Ρ ΡΠ·Π½Π°ΡΡ ΠΊΠ»ΠΈΠΌΠ°ΡΠΈΡΠ΅ΡΠΊΠΈΠΉ ΠΊΠ»Π°ΡΡ Ρ ΠΎΠ»ΠΎΠ΄ΠΈΠ»ΡΠ½ΠΈΠΊΠ°, ΡΠ»Π΅Π΄ΡΠ΅Ρ Π½Π°ΠΉΡΠΈ ΡΠΎΠΎΡΠ²Π΅ΡΡΡΠ²ΡΡΡΠ΅Π΅ ΠΎΠ±ΠΎΠ·Π½Π°ΡΠ΅Π½ΠΈΠ΅ Π½Π° ΡΡΠΈΠΊΠ΅ΡΠΊΠ΅ Π²Π½ΡΡΡΠΈ Ρ ΠΎΠ»ΠΎΠ΄ΠΈΠ»ΡΠ½ΠΎΠΉ ΠΊΠ°ΠΌΠ΅ΡΡ ΠΈΠ»ΠΈ Π² ΡΠ΅Ρ Π½ΠΈΡΠ΅ΡΠΊΠΎΠΌ ΠΎΠΏΠΈΡΠ°Π½ΠΈΠΈ.

ΠΠ²Π΅ΡΠ½ΠΎΠΉ ΡΠΏΠΎΡ ΠΎΠ±ΡΡΠ½ΠΎΠ³ΠΎ Ρ ΠΎΠ»ΠΎΠ΄ΠΈΠ»ΡΠ½ΠΈΠΊΠ° ΠΏΠΎ ΡΠΌΠΎΠ»ΡΠ°Π½ΠΈΡ ΡΠ°ΡΠΏΠΎΠ»ΠΎΠΆΠ΅Π½ ΡΠΏΡΠ°Π²Π°, ΡΡΠΎΠ±Ρ Π΅Π³ΠΎ ΡΠ΄ΠΎΠ±Π½ΠΎ Π±ΡΠ»ΠΎ ΠΎΡΠΊΡΡΠ²Π°ΡΡ ΠΏΡΠ°Π²ΠΎΠΉ ΡΡΠΊΠΎΠΉ. Π Π΅ΠΆΠ΅ Π²ΡΡΡΠ΅ΡΠ°ΡΡΡΡ ΠΌΠΎΠ΄Π΅Π»ΠΈ, ΠΈΠ·Π½Π°ΡΠ°Π»ΡΠ½ΠΎ ΡΠ°ΡΡΡΠΈΡΠ°Π½Π½ΡΠ΅ Π½Π° ΠΎΡΠΊΡΡΠ²Π°Π½ΠΈΠ΅ ΡΠΏΡΠ°Π²Π° Π½Π°Π»Π΅Π²ΠΎ, ΠΎΠ΄Π½Π°ΠΊΠΎ Ρ Π±ΠΎΠ»ΡΡΠΈΠ½ΡΡΠ²Π° ΠΌΠΎΠ΄Π΅Π»Π΅ΠΉ ΠΈΠΌΠ΅Π΅ΡΡΡ Π²ΠΎΠ·ΠΌΠΎΠΆΠ½ΠΎΡΡΡ ΠΏΠ΅ΡΠ΅Π½Π°Π²Π΅ΡΠΈΠ²Π°Π½ΠΈΡ Π΄Π²Π΅ΡΡΡ Π½Π° Π΄ΡΡΠ³ΡΡ ΡΡΠΎΡΠΎΠ½Ρ. ΠΠ΅ΡΠ΅Π½Π°Π²Π΅ΡΠΈΠ²Π°Π½ΠΈΠ΅ Π½Π΅ΠΎΠ±Ρ ΠΎΠ΄ΠΈΠΌΠΎ, Π΅ΡΠ»ΠΈ Π²Π»Π°Π΄Π΅Π»Π΅Ρ ΠΈΠΌΠ΅Π΅Ρ Π²Π΅Π΄ΡΡΡΡ Π»Π΅Π²ΡΡ ΡΡΠΊΡ ΠΈΠ»ΠΈ ΡΡΡΡΠΎΠΉΡΡΠ²ΠΎ ΡΡΡΠ°Π½Π°Π²Π»ΠΈΠ²Π°Π΅ΡΡΡ ΡΠ°ΠΌ, Π³Π΄Π΅ ΠΎΡΠΊΡΡΡΡ Π΄Π²Π΅ΡΡΡ Π²ΠΏΡΠ°Π²ΠΎ Π½Π΅Π²ΠΎΠ·ΠΌΠΎΠΆΠ½ΠΎ.
Π Ρ ΠΎΠ»ΠΎΠ΄ΠΈΠ»ΡΠ½ΠΈΠΊΠ°ΠΌ Ρ Π½Π΅ΡΡΠ°Π½Π΄Π°ΡΡΠ½ΡΠΌ ΠΎΡΠΊΡΡΠ²Π°Π½ΠΈΠ΅ΠΌ Π΄Π²Π΅ΡΠΈ ΠΎΡΠ½ΠΎΡΡΡΡΡ ΠΏΡΠ΅ΠΆΠ΄Π΅ Π²ΡΠ΅Π³ΠΎ Π±ΠΎΠ»ΡΡΠΈΠ΅ ΡΡΡΡΠΎΠΉΡΡΠ²Π° Side-by-Side. Π£ Ρ ΠΎΠ»ΠΎΠ΄ΠΈΠ»ΡΠ½ΠΎΠΉ ΠΊΠ°ΠΌΠ΅ΡΡ, ΡΠ°ΡΠΏΠΎΠ»ΠΎΠΆΠ΅Π½Π½ΠΎΠΉ ΡΠΏΡΠ°Π²Π°, Π΄Π²Π΅ΡΡ ΠΎΡΠΊΡΡΠ²Π°Π΅ΡΡΡ Π² ΠΏΡΠ°Π²ΡΡ ΡΡΠΎΡΠΎΠ½Ρ, Ρ ΠΊΠ°ΠΌΠ΅ΡΡ, ΡΠ°ΡΠΏΠΎΠ»ΠΎΠΆΠ΅Π½Π½ΠΎΠΉ ΡΠ»Π΅Π²Π°, ΡΠΎ Π΅ΡΡΡ ΠΌΠΎΡΠΎΠ·ΠΈΠ»ΡΠ½ΠΈΠΊΠ°, ΠΏΡΠ΅Π΄ΡΡΠΌΠΎΡΡΠ΅Π½ΠΎ Π»Π΅Π²ΠΎΠ΅ ΠΎΡΠΊΡΡΠ²Π°Π½ΠΈΠ΅ Π΄Π²Π΅ΡΡΡ.
Π₯ΠΎΠ»ΠΎΠ΄ΠΈΠ»ΡΠ½ΠΈΠΊΠΈ Ρ ΡΠ°ΠΊ Π½Π°Π·ΡΠ²Π°Π΅ΠΌΠΎΠΉ ΡΡΠ°Π½ΡΡΠ·ΡΠΊΠΎΠΉ Π΄Π²Π΅ΡΡΡ ΠΈΠ»ΠΈ French Door ΡΠ°ΠΊΠΆΠ΅ ΠΈΠΌΠ΅ΡΡ ΡΠ°ΡΠΏΠ°ΡΠ½ΡΠ΅ Π΄Π²Π΅ΡΠΈ, Π½ΠΎ Π·Π° Π½ΠΈΠΌΠΈ Π½Π°Ρ ΠΎΠ΄ΠΈΡΡΡ Π½Π΅ Π΄Π²Π΅, Π° ΠΎΠ΄Π½Π° ΠΊΠ°ΠΌΠ΅ΡΠ°. ΠΡΠΈ Π΄Π²Π΅ΡΠΈ Π·Π°Π½ΠΈΠΌΠ°ΡΡ Π½Π΅ Π²ΡΡ Π²ΡΡΠΎΡΡ Ρ ΠΎΠ»ΠΎΠ΄ΠΈΠ»ΡΠ½ΠΈΠΊΠ°, Π° ΡΠΎΠ»ΡΠΊΠΎ Π΅Π΅ ΡΠ°ΡΡΡ. Π Π½ΠΈΠΆΠ½Π΅ΠΉ ΡΠ°ΡΡΠΈ ΠΏΠΎΠ΄ΠΎΠ±Π½ΡΡ Ρ ΠΎΠ»ΠΎΠ΄ΠΈΠ»ΡΠ½ΠΈΠΊΠΎΠ² ΠΌΠΎΠ³ΡΡ Π½Π°Ρ ΠΎΠ΄ΠΈΡΡΡΡ Π»ΠΈΠ±ΠΎ Π΅ΡΠ΅ Π΄Π²Π΅ ΡΠ°ΡΠΏΠ°ΡΠ½ΡΠ΅ Π΄Π²Π΅ΡΠΈ, Π»ΠΈΠ±ΠΎ Π²ΡΠ΄Π²ΠΈΠΆΠ½ΡΠ΅ ΠΌΠΎΡΠΎΠ·ΠΈΠ»ΡΠ½ΡΠ΅ ΡΡΠΈΠΊΠΈ.
ΠΡΠ΅Π½Ρ ΡΠ΅Π΄ΠΊΠΎ Π² Ρ ΠΎΠ»ΠΎΠ΄ΠΈΠ»ΡΠ½ΠΈΠΊΠ°Ρ ΠΌΠΎΠΆΠ½ΠΎ ΡΠ²ΠΈΠ΄Π΅ΡΡ ΠΎΡΠΊΠΈΠ΄Π½ΡΡ Π΄Π²Π΅ΡΡΡ — ΠΎΠ½Π° ΠΈΠΌΠ΅Π΅ΡΡΡ, Π½Π°ΠΏΡΠΈΠΌΠ΅Ρ, Π² ΠΎΡΡΠ΅ΠΊΠ΅ Π΄Π»Ρ Π²Π°ΠΊΡΡΠΌΠΈΡΠΎΠ²Π°Π½ΠΈΡ Π² Ρ ΠΎΠ»ΠΎΠ΄ΠΈΠ»ΡΠ½ΠΈΠΊΠ°Ρ Hitachi.
ΠΠΌΠ΅ΡΡΠΈΠΌΠΎΡΡΡ
Π£ΠΏΡΠ°Π²Π»Π΅Π½ΠΈΠ΅ ΠΈ Π΄ΠΈΠ·Π°ΠΉΠ½

Π¦Π²Π΅Ρ Ρ ΠΎΠ»ΠΎΠ΄ΠΈΠ»ΡΠ½ΠΈΠΊΠ° — ΠΎΠ΄ΠΈΠ½ ΠΈΠ· Π·Π½Π°ΡΠΈΠΌΡΡ ΡΠ°ΠΊΡΠΎΡΠΎΠ², Π²Π»ΠΈΡΡΡΠΈΡ Π½Π° Π΅Π³ΠΎ Π²ΡΠ±ΠΎΡ. Π’ΡΠ°Π΄ΠΈΡΠΈΠΎΠ½Π½ΠΎ ΡΠ°ΠΌΡΠΌ ΠΏΠΎΠΏΡΠ»ΡΡΠ½ΡΠΌ ΡΠ²Π΅ΡΠΎΠΌ Π΄Π»Ρ Π±ΡΡΠΎΠ²ΡΡ ΠΏΡΠΈΠ±ΠΎΡΠΎΠ² ΡΡΠΈΡΠ°Π΅ΡΡΡ Π±Π΅Π»ΡΠΉ. ΠΡΠΎ ΡΠ½ΠΈΠ²Π΅ΡΡΠ°Π»ΡΠ½ΡΠΉ ΡΠ²Π΅Ρ, ΠΊΠΎΡΠΎΡΡΠΉ Π³Π°ΡΠΌΠΎΠ½ΠΈΡΡΠ΅Ρ ΡΠΎ Π²ΡΠ΅ΠΌΠΈ Π΄ΡΡΠ³ΠΈΠΌΠΈ ΠΎΡΡΠ΅Π½ΠΊΠ°ΠΌΠΈ, ΠΎΠ½ ΠΏΠΎΠ΄ΠΎΠΉΠ΄Π΅Ρ Π΄Π»Ρ ΠΊΡΡ ΠΎΠ½Ρ Π»ΡΠ±ΠΎΠ³ΠΎ ΡΠ°Π·ΠΌΠ΅ΡΠ°, Π° Π² Π½Π΅Π±ΠΎΠ»ΡΡΠΈΡ ΠΏΠΎΠΌΠ΅ΡΠ΅Π½ΠΈΡΡ ΡΠ²Π΅ΡΠ»ΡΠ΅ ΡΠΎΠ½Π° ΡΠΏΠΎΡΠΎΠ±Π½Ρ Π·ΡΠΈΡΠ΅Π»ΡΠ½ΠΎ ΡΠ°Π·Π΄Π²ΠΈΠ½ΡΡΡ ΠΏΡΠΎΡΡΡΠ°Π½ΡΡΠ²ΠΎ. ΠΠ΅Π»Π°Ρ ΡΠ΅Ρ Π½ΠΈΠΊΠ° Π΄ΠΎΡΡΠ°ΡΠΎΡΠ½ΠΎ ΠΏΡΠΎΡΡΠ° Π² ΡΡ ΠΎΠ΄Π΅, Π° ΠΏΡΠΎΠΈΠ·Π²ΠΎΠ΄ΠΈΡΠ΅Π»ΠΈ ΠΏΡΠ΅Π΄Π»Π°Π³Π°ΡΡ Π±ΠΎΠ»ΡΡΠΎΠΉ Π°ΡΡΠΎΡΡΠΈΠΌΠ΅Π½Ρ Ρ ΠΎΠ»ΠΎΠ΄ΠΈΠ»ΡΠ½ΡΡ ΡΡΡΡΠΎΠΉΡΡΠ², Π² ΡΠΎΠΌ ΡΠΈΡΠ»Π΅ Ρ ΡΠ°ΡΠ°Π΄Π°ΠΌΠΈ ΠΈΠ· ΡΡΠ΅ΠΊΠ»Π°, ΡΠΌΠ°Π»ΠΈ, ΠΎΠΊΡΠ°ΡΠ΅Π½Π½ΠΎΠ³ΠΎ ΠΌΠ΅ΡΠ°Π»Π»Π°.
ΠΠΎΡΠ»Π΅Π΄Π½Π΅Π΅ Π²ΡΠ΅ΠΌΡ Π΄ΠΎΡΡΠ°ΡΠΎΡΠ½ΠΎ ΡΠΈΡΠΎΠΊΠΎΠ΅ ΡΠ°ΡΠΏΡΠΎΡΡΡΠ°Π½Π΅Π½ΠΈΠ΅ ΠΏΠΎΠ»ΡΡΠΈΠ»ΠΈ Ρ ΠΎΠ»ΠΎΠ΄ΠΈΠ»ΡΠ½ΠΈΠΊΠΈ ΡΠ΅ΡΠ½ΠΎΠ³ΠΎ ΡΠ²Π΅ΡΠ°. ΠΠΎΠ΄ΠΎΠ±Π½ΡΠ΅ ΡΡΡΡΠΎΠΉΡΡΠ²Π° ΠΏΡΠΈΠ΄Π°ΡΡ ΠΊΡΡ Π½Π΅ ΠΎΡΠΎΠ±ΡΠΉ ΡΡΠΈΠ»Ρ, ΠΎΠ΄Π½Π°ΠΊΠΎ Π½Π΅ ΡΠ΅ΠΊΠΎΠΌΠ΅Π½Π΄ΡΠ΅ΡΡΡ ΡΡΡΠ°Π½Π°Π²Π»ΠΈΠ²Π°ΡΡ ΠΈΡ Π² Π½Π΅Π±ΠΎΠ»ΡΡΠΎΠΌ ΠΏΠΎΠΌΠ΅ΡΠ΅Π½ΠΈΠΈ, ΠΎΡΠΎΠ±Π΅Π½Π½ΠΎ Π΅ΡΠ»ΠΈ ΡΠ°ΡΠ°Π΄ ΠΈΠ·Π³ΠΎΡΠΎΠ²Π»Π΅Π½ Π½Π΅ ΠΈΠ· ΡΡΠ΅ΠΊΠ»Π°. ΠΡΠΎΠΌΠ΅ ΡΠΎΠ³ΠΎ, ΡΠ΅ΡΠ½ΡΠ΅ Ρ ΠΎΠ»ΠΎΠ΄ΠΈΠ»ΡΠ½ΠΈΠΊΠΈ ΡΡΠ΅Π±ΡΡΡ ΠΏΠΎΡΡΠΎΡΠ½Π½ΠΎΠ³ΠΎ ΡΡΠ°ΡΠ΅Π»ΡΠ½ΠΎΠ³ΠΎ ΡΡ ΠΎΠ΄Π°, ΡΠ°ΠΊ ΠΊΠ°ΠΊ Π½Π° Π½ΠΈΡ Π»ΡΡΡΠ΅ Π·Π°ΠΌΠ΅ΡΠ½Ρ Π·Π°Π³ΡΡΠ·Π½Π΅Π½ΠΈΡ.
ΠΠ΅ ΠΌΠ΅Π½Π΅Π΅ ΠΏΠΎΠΏΡΠ»ΡΡΠ½Ρ, ΡΠ΅ΠΌ Π±Π΅Π»ΡΠ΅, Ρ ΠΎΠ»ΠΎΠ΄ΠΈΠ»ΡΠ½ΠΈΠΊΠΈ ΠΌΠ΅ΡΠ°Π»Π»ΠΈΡΠ΅ΡΠΊΠΈΡ ΠΎΡΡΠ΅Π½ΠΊΠΎΠ² — ΡΠ΅ΡΠ΅Π±ΡΠΈΡΡΠΎΠ³ΠΎ, ΡΡΠ°Π»ΡΠ½ΠΎΠ³ΠΎ, Π½Π΅ΡΠΆΠ°Π²Π΅ΠΉΠΊΠΈ ΠΈ ΡΠΎΠΌΡ ΠΏΠΎΠ΄ΠΎΠ±Π½ΡΡ . ΠΡΠΈ ΡΠΎΠ½Π° ΡΠ°ΠΊΠΆΠ΅ Π±ΡΠ΄ΡΡ ΠΎΡΠ»ΠΈΡΠ½ΠΎ Π²ΡΠ³Π»ΡΠ΄Π΅ΡΡ Π² Π»ΡΠ±ΠΎΠΉ ΠΊΡΡ Π½Π΅, ΠΎΠ±ΡΡΠ°Π²Π»Π΅Π½Π½ΠΎΠΉ Π² ΡΠΎΠ²ΡΠ΅ΠΌΠ΅Π½Π½ΠΎΠΌ ΡΡΠΈΠ»Π΅. Π₯ΠΎΠ»ΠΎΠ΄ΠΈΠ»ΡΠ½ΠΈΠΊΠΈ Ρ ΠΌΠ΅ΡΠ°Π»Π»ΠΈΡΠ΅ΡΠΊΠΈΠΌ ΡΠ°ΡΠ°Π΄ΠΎΠΌ Π΄ΠΎΡΡΠ°ΡΠΎΡΠ½ΠΎ ΡΠ΄ΠΎΠ±Π½Ρ Π² ΠΎΡΠΈΡΡΠΊΠ΅ Π±Π»Π°Π³ΠΎΠ΄Π°ΡΡ ΡΠΏΠ΅ΡΠΈΠ°Π»ΡΠ½ΠΎΠΌΡ ΠΏΠΎΠΊΡΡΡΠΈΡ.
ΠΡΠ»ΠΈ Π²Π°ΡΠ° ΠΊΡΡ Π½Ρ ΠΎΠ±ΠΎΡΡΠ΄ΠΎΠ²Π°Π½Π° Π² ΠΊΠ»Π°ΡΡΠΈΡΠ΅ΡΠΊΠΎΠΌ ΡΡΠΈΠ»Π΅, ΡΠΎ Π² Π½Π΅ΠΉ Π±ΡΠ΄Π΅Ρ ΡΠΌΠ΅ΡΡΠ΅Π½ Π² Ρ ΠΎΠ»ΠΎΠ΄ΠΈΠ»ΡΠ½ΠΈΠΊ ΡΠ΅ΠΏΠ»ΠΎΠ³ΠΎ Π±Π΅ΠΆΠ΅Π²ΠΎΠ³ΠΎ ΡΠ²Π΅ΡΠ°. ΠΠ½ Ρ ΠΎΡΠΎΡΠΎ ΠΏΠΎΠ΄ΠΎΠΉΠ΄Π΅Ρ ΠΊ ΡΠ°ΠΊΠΈΠΌ ΠΌΠ°ΡΠ΅ΡΠΈΠ°Π»Π°ΠΌ, ΠΊΠ°ΠΊ Π½Π°ΡΡΡΠ°Π»ΡΠ½ΠΎΠ΅ Π΄Π΅ΡΠ΅Π²ΠΎ, ΡΠ΅ΠΊΡΡΠΈΠ»Ρ, Π½Π°ΡΡΡΠ°Π»ΡΠ½ΡΠΉ ΠΊΠ°ΠΌΠ΅Π½Ρ.
Π¦Π²Π΅ΡΠ½ΡΠ΅ Ρ ΠΎΠ»ΠΎΠ΄ΠΈΠ»ΡΠ½ΠΈΠΊΠΈ ΠΏΡΠΈΠ΄Π°ΡΡ ΠΊΡΡ Π½Π΅ ΠΎΡΠΎΠ±ΡΠΉ ΡΠ°ΡΠΌ. Π―ΡΠΊΠΈΠΉ ΠΏΡΠΈΠ±ΠΎΡ ΡΡΠ°Π½Π΅Ρ Π·Π°ΠΌΠ΅ΡΠ½ΠΎΠΉ Π΄Π΅ΡΠ°Π»ΡΡ ΠΈ ΡΠ΅Π½ΡΡΠΎΠΌ ΠΊΡΡ Π½ΠΈ Π² ΡΠ΅ΡΡΠΎ-ΡΡΠΈΠ»Π΅ (ΠΎΡΠΎΠ±Π΅Π½Π½ΠΎ ΡΡΠΎΠΈΡ ΠΎΠ±ΡΠ°ΡΠΈΡΡ Π²Π½ΠΈΠΌΠ°Π½ΠΈΠ΅ Π½Π° ΡΠ²Π΅ΡΠ½ΡΠ΅ Ρ ΠΎΠ»ΠΎΠ΄ΠΈΠ»ΡΠ½ΠΈΠΊΠΈ ΠΏΡΠΎΠΈΠ·Π²ΠΎΠ΄ΡΡΠ²Π° «Π‘ΠΌΠ΅Π³»), Π° ΡΠ°ΠΊΠΆΠ΅ ΠΈΠ½Π΄ΡΡΡΡΠΈΠ°Π»ΡΠ½ΠΎΠΌ ΠΈΠ»ΠΈ Π»ΠΎΡΡ. ΠΠ΅ΠΎΠ±ΡΡΠ½ΡΠ΅ ΠΏΠ°ΡΡΠ΅Π»ΡΠ½ΡΠ΅ ΠΎΡΡΠ΅Π½ΠΊΠΈ ΠΎΡΠ»ΠΈΡΠ½ΠΎ ΡΠΌΠΎΡΡΡΡΡΡ Π² ΠΈΠ½ΡΠ΅ΡΡΠ΅ΡΠ°Ρ Π² Π΄Π΅ΡΠ΅Π²Π΅Π½ΡΠΊΠΎΠΌ ΠΈΠ»ΠΈ ΡΡΠ΅Π΄ΠΈΠ·Π΅ΠΌΠ½ΠΎΠΌΠΎΡΡΠΊΠΎΠΌ ΡΡΠΈΠ»Π΅.

ΠΠ½ΡΠΈΠ±Π°ΠΊΡΠ΅ΡΠΈΠ°Π»ΡΠ½ΠΎΠ΅ ΠΏΠΎΠΊΡΡΡΠΈΠ΅ Π² ΡΠΎΠ²ΡΠ΅ΠΌΠ΅Π½Π½ΡΡ Ρ ΠΎΠ»ΠΎΠ΄ΠΈΠ»ΡΠ½ΠΈΠΊΠ°Ρ ΠΏΠΎΠ·Π²ΠΎΠ»ΡΠ΅Ρ ΠΈΠ·Π±Π°Π²ΠΈΡΡΡΡ ΠΎΡ Π½Π΅ΠΏΡΠΈΡΡΠ½ΠΎΠ³ΠΎ Π·Π°ΠΏΠ°Ρ Π° Π² ΠΊΠ°ΠΌΠ΅ΡΠ΅, ΡΠ²Π΅Π»ΠΈΡΠΈΠ²Π°Π΅Ρ ΡΡΠΎΠΊ Ρ ΡΠ°Π½Π΅Π½ΠΈΡ ΠΈ ΠΏΠΎΠ΄Π΄Π΅ΡΠΆΠΈΠ²Π°Π΅Ρ ΡΠ²Π΅ΠΆΠ΅ΡΡΡ ΠΏΡΠΎΠ΄ΡΠΊΡΠΎΠ². ΠΠ°ΠΊ ΠΏΡΠ°Π²ΠΈΠ»ΠΎ, ΠΎΠ½ΠΎ Π½Π°Π½ΠΎΡΠΈΡΡΡ Π½Π° Π²Π½ΡΡΡΠ΅Π½Π½ΡΡ ΠΏΠΎΠ²Π΅ΡΡ Π½ΠΎΡΡΡ ΠΊΠ°ΠΌΠ΅ΡΡ ΠΈ ΠΏΡΠ΅Π΄ΡΡΠ°Π²Π»ΡΠ΅Ρ ΡΠΎΠ±ΠΎΠΉ ΠΌΠ°ΠΊΡΠΈΠΌΠ°Π»ΡΠ½ΠΎ ΡΠΎΠ½ΠΊΠΎΠ΅ ΠΏΠΎΠ»ΠΈΠΌΠ΅ΡΠ½ΠΎΠ΅ Π·Π°ΡΠΈΡΠ½ΠΎΠ΅ Π½Π°ΠΏΡΠ»Π΅Π½ΠΈΠ΅, ΠΈΠΌΠ΅ΡΡΠ΅Π΅ Π² ΡΠ²ΠΎΠ΅ΠΌ ΡΠΎΡΡΠ°Π²Π΅ ΡΠΎΠ΅Π΄ΠΈΠ½Π΅Π½ΠΈΡ ΡΠ΅ΡΠ΅Π±ΡΠ°. ΠΠΎΠ»ΠΎΠΆΠΈΡΠ΅Π»ΡΠ½ΠΎ Π·Π°ΡΡΠΆΠ΅Π½Π½ΡΠ΅ ΠΈΠΎΠ½Ρ ΡΠ΅ΡΠ΅Π±ΡΠ° ΠΎΡΠ»ΠΈΡΠ°ΡΡΡΡ ΠΏΡΠΎΡΠΈΠ²ΠΎΠΌΠΈΠΊΡΠΎΠ±Π½ΡΠΌΠΈ ΠΈ Π°Π½ΡΠΈΡΠ΅ΠΏΡΠΈΡΠ΅ΡΠΊΠΈΠΌΠΈ ΡΠ²ΠΎΠΉΡΡΠ²Π°ΠΌΠΈ. ΠΡΠΈ ΠΈΠΎΠ½Ρ ΠΏΠΎΡΡΠΎΡΠ½Π½ΠΎ Π²ΡΡΠ²ΠΎΠ±ΠΎΠΆΠ΄Π°ΡΡΡΡ ΠΏΡΠΈ ΠΊΠΎΠ½ΡΠ°ΠΊΡΠ΅ ΠΏΠΎΠΊΡΡΡΠΈΡ Ρ Π²Π»Π°ΠΆΠ½ΡΠΌ Π²ΠΎΠ·Π΄ΡΡ ΠΎΠΌ Π² ΠΊΠ°ΠΌΠ΅ΡΠ΅, ΠΏΡΠ΅Π΄ΠΎΡΠ²ΡΠ°ΡΠ°Ρ ΡΠ΅ΠΌ ΡΠ°ΠΌΡΠΌ ΡΠ°ΡΠΏΡΠΎΡΡΡΠ°Π½Π΅Π½ΠΈΠ΅ ΠΊΠΎΠ»ΠΎΠ½ΠΈΠΉ Π±Π°ΠΊΡΠ΅ΡΠΈΠΉ, Π·Π°ΠΌΠ΅Π΄Π»ΡΡ ΡΠΎΡΡ Π³ΡΠΈΠ±ΠΊΠ° ΠΈ Π΄ΡΡΠ³ΠΈΡ Π±ΠΎΠ»Π΅Π·Π½Π΅ΡΠ²ΠΎΡΠ½ΡΡ ΠΌΠΈΠΊΡΠΎΠΎΡΠ³Π°Π½ΠΈΠ·ΠΌΠΎΠ².
ΠΠΎΠΊΡΡΡΠΈΠ΅ Ρ ΡΠΎΠ΄Π΅ΡΠΆΠ°Π½ΠΈΠ΅ΠΌ ΡΠ΅ΡΠ΅Π±ΡΠ° ΠΏΠΎΠ»Π½ΠΎΡΡΡΡ Π±Π΅Π·ΠΎΠΏΠ°ΡΠ½ΠΎ Π΄Π»Ρ ΠΏΠΎΠ»ΡΠ·ΠΎΠ²Π°ΡΠ΅Π»Ρ, Π½Π΅ Π½ΡΠΆΠ΄Π°Π΅ΡΡΡ Π² ΠΎΠ±Π½ΠΎΠ²Π»Π΅Π½ΠΈΠΈ ΠΈΠ»ΠΈ ΡΠΏΠ΅ΡΠΈΠ°Π»ΡΠ½ΠΎΠΌ ΡΡ ΠΎΠ΄Π΅ ΠΈ ΠΌΠΎΠΆΠ΅Ρ Π΄Π΅ΠΉΡΡΠ²ΠΎΠ²Π°ΡΡ Π½Π° ΠΏΡΠΎΡΡΠΆΠ΅Π½ΠΈΠΈ Π²ΡΠ΅Π³ΠΎ ΡΡΠΎΠΊΠ° ΡΠ»ΡΠΆΠ±Ρ ΡΡΡΡΠΎΠΉΡΡΠ²Π°. Π Ρ ΠΎΠ»ΠΎΠ΄ΠΈΠ»ΡΠ½ΠΈΠΊΠ°Ρ ΡΠΈΡΠΌΡ Electrolux ΠΈΡΠΏΠΎΠ»ΡΠ·ΡΠ΅ΡΡΡ ΠΊΠ΅ΡΠ°ΠΌΠΈΡΠ΅ΡΠΊΠΎΠ΅ ΠΏΠΎΠΊΡΡΡΠΈΠ΅ ABC Sanitized, Π² ΡΡΡΡΠΎΠΉΡΡΠ²Π°Ρ ΠΏΡΠΎΠΈΠ·Π²ΠΎΠ΄ΡΡΠ²Π° Bosch — ΠΏΠΎΠΊΡΡΡΠΈΠ΅ AgION Π½Π° ΠΎΡΠ½ΠΎΠ²Π΅ ΠΌΠ°ΡΠ΅ΡΠΈΠ°Π»Π° ΡΠ΅ΠΎΠ»ΠΈΡ, Samsung ΠΈΡΠΏΠΎΠ»ΡΠ·ΡΠ΅Ρ ΡΠ΅Ρ Π½ΠΎΠ»ΠΎΠ³ΠΈΡ ΠΏΠΎΠ΄ Π½Π°Π·Π²Π°Π½ΠΈΠ΅ΠΌ Silver Nano Health System. ΠΠ»Ρ ΠΏΠΎΠ»Π½ΠΎΠΉ Π·Π°ΡΠΈΡΡ ΠΏΡΠΎΠ΄ΡΠΊΡΠΎΠ² ΡΠ΅ΠΊΠΎΠΌΠ΅Π½Π΄ΡΠ΅ΡΡΡ ΡΠ΅Π³ΡΠ»ΡΡΠ½Π°Ρ ΠΎΡΠΈΡΡΠΊΠ° Π²Π½ΡΡΡΠ΅Π½Π½ΠΈΡ ΠΏΠΎΠ²Π΅ΡΡ Π½ΠΎΡΡΠ΅ΠΉ ΠΊΠ°ΠΌΠ΅ΡΡ.

Π ΡΡΠΊΠ° Π½Π° Π΄Π²Π΅ΡΡΠ΅ Ρ ΠΎΠ»ΠΎΠ΄ΠΈΠ»ΡΠ½ΠΈΠΊΠ° ΠΎΠΏΡΠ΅Π΄Π΅Π»ΡΠ΅Ρ, Π½Π°ΡΠΊΠΎΠ»ΡΠΊΠΎ ΡΠ΄ΠΎΠ±Π½ΠΎ Π±ΡΠ΄Π΅Ρ ΠΏΠΎΠ»ΡΠ·ΠΎΠ²Π°ΡΡΡΡ ΠΏΡΠΈΠ±ΠΎΡΠΎΠΌ, ΠΌΠΎΠΆΠ½ΠΎ Π»ΠΈ ΡΡΡΠ°Π½ΠΎΠ²ΠΈΡΡ Π΄Π°Π½Π½ΠΎΠ΅ ΡΡΡΡΠΎΠΉΡΡΠ²ΠΎ Π½Π° Π²ΡΠ±ΡΠ°Π½Π½ΠΎΠ΅ ΠΌΠ΅ΡΡΠΎ, ΠΊΠ°ΠΊ Π±ΡΠ΄Π΅Ρ Π²ΡΠ³Π»ΡΠ΄Π΅ΡΡ Π²Π°Ρ ΠΏΡΠΈΠ±ΠΎΡ Π² ΠΈΠ½ΡΠ΅ΡΡΠ΅ΡΠ΅ ΠΊΡΡ Π½ΠΈ. ΠΡΠ΅ Π΄Π²Π΅ΡΠ½ΡΠ΅ ΡΡΡΠΊΠΈ ΠΌΠΎΠΆΠ½ΠΎ ΡΠ°Π·Π΄Π΅Π»ΠΈΡΡ Π½Π° Π½Π΅ΡΠΊΠΎΠ»ΡΠΊΠΎ Π±ΠΎΠ»ΡΡΠΈΡ Π³ΡΡΠΏΠΏ. ΠΡΠ΅ΠΆΠ΄Π΅ Π²ΡΠ΅Π³ΠΎ ΡΡΠΎ Π²Π½Π΅ΡΠ½ΠΈΠ΅ ΡΡΡΠΊΠΈ ΠΈ Π²ΡΡΡΠΎΠ΅Π½Π½ΡΠ΅ (ΠΈΠ»ΠΈ ΠΈΠ½ΡΠ΅Π³ΡΠΈΡΠΎΠ²Π°Π½Π½ΡΠ΅).
ΠΠ½Π΅ΡΠ½ΡΡ ΡΡΡΠΊΠ° ΠΌΠΎΠΆΠ΅Ρ Π½Π΅ ΡΠΎΠ»ΡΠΊΠΎ ΠΏΠΎΡΠ»ΡΠΆΠΈΡΡ Π΄Π»Ρ ΠΎΡΠΊΡΡΠ²Π°Π½ΠΈΡ Π΄Π²Π΅ΡΡΡ, Π½ΠΎ ΠΈ ΡΡΠ°ΡΡ ΠΈΠ½ΡΠ΅ΡΠ΅ΡΠ½ΠΎΠΉ Π΄Π΅ΡΠ°Π»ΡΡ ΠΈΠ½ΡΠ΅ΡΡΠ΅ΡΠ°. ΠΡΠΎΠ±Π΅Π½Π½ΠΎ ΡΡΠΎ ΠΊΠ°ΡΠ°Π΅ΡΡΡ ΡΡΡΠ΅ΠΊ Π² ΡΠ΅ΡΡΠΎ-ΡΡΠΈΠ»Π΅ ΡΠΎ Π²ΡΡΡΠΎΠ΅Π½Π½ΡΠΌ ΡΠΎΠ»ΠΊΠ°ΡΠ΅Π»Π΅ΠΌ ΠΈ Π·Π°ΠΌΠΊΠΎΠΌ. ΠΠ΄Π½Π°ΠΊΠΎ ΠΏΠΎΠ΄ΠΎΠ±Π½ΡΠ΅ ΡΠ»Π΅ΠΌΠ΅Π½ΡΡ ΡΠ²Π»ΡΡΡΡΡ Π΄ΠΎΡΡΠ°ΡΠΎΡΠ½ΠΎ Π½Π΅Π±Π΅Π·ΠΎΠΏΠ°ΡΠ½ΡΠΌΠΈ, ΡΠ°ΠΊ ΠΊΠ°ΠΊ Ρ ΠΎΠ»ΠΎΠ΄ΠΈΠ»ΡΠ½ΠΈΠΊ Π½Π΅Π²ΠΎΠ·ΠΌΠΎΠΆΠ½ΠΎ ΠΎΡΠΊΡΡΡΡ ΠΈΠ·Π½ΡΡΡΠΈ. ΠΠ±ΡΡΠ½ΡΠ΅ Π½Π°ΠΊΠ»Π°Π΄Π½ΡΠ΅ Π΄Π²Π΅ΡΠ½ΡΠ΅ ΡΡΡΠΊΠΈ ΡΡΡΠ°Π½Π°Π²Π»ΠΈΠ²Π°ΡΡΡΡ Π½Π° Ρ ΠΎΠ»ΠΎΠ΄ΠΈΠ»ΡΠ½ΠΈΠΊ Π² Π²Π΅ΡΡΠΈΠΊΠ°Π»ΡΠ½ΠΎΠΌ ΠΈΠ»ΠΈ Π³ΠΎΡΠΈΠ·ΠΎΠ½ΡΠ°Π»ΡΠ½ΠΎΠΌ ΠΏΠΎΠ»ΠΎΠΆΠ΅Π½ΠΈΠΈ. ΠΡΠΈ ΡΡΠΎΠΌ ΠΎΡΠΎΠ±Π΅Π½Π½ΠΎΠΉ ΠΏΠΎΠΏΡΠ»ΡΡΠ½ΠΎΡΡΡΡ ΠΏΠΎΠ»ΡΠ·ΡΡΡΡΡ Π²Π΅ΡΡΠΈΠΊΠ°Π»ΡΠ½ΡΠ΅ ΡΡΡΠΊΠΈ, ΠΈΠ΄ΡΡΠΈΠ΅ ΠΏΠΎ Π²ΡΠ΅ΠΉ Π΄Π»ΠΈΠ½Π΅ ΠΊΠ°ΠΌΠ΅ΡΡ. Π’Π°ΠΊΠ°Ρ ΠΊΠΎΠ½ΡΡΡΡΠΊΡΠΈΡ ΠΏΠΎΠ΄ΠΎΠΉΠ΄Π΅Ρ Π΄Π»Ρ Π»ΡΠ΄Π΅ΠΉ Π»ΡΠ±ΠΎΠ³ΠΎ ΡΠΎΡΡΠ°.
Π‘ ΠΏΠΎΡΠ²Π»Π΅Π½ΠΈΠ΅ΠΌ Π²ΡΡΡΠΎΠ΅Π½Π½ΠΎΠΉ ΡΠ΅Ρ Π½ΠΈΠΊΠΈ Π²ΠΎΡΡΡΠ΅Π±ΠΎΠ²Π°Π½Π½ΡΠΌΠΈ ΡΡΠ°Π½ΠΎΠ²ΡΡΡΡ ΠΌΠΎΠ΄Π΅Π»ΠΈ ΡΠΎ Π²ΡΡΡΠΎΠ΅Π½Π½ΡΠΌΠΈ ΠΈΠ»ΠΈ ΠΈΠ½ΡΠ΅Π³ΡΠΈΡΠΎΠ²Π°Π½Π½ΡΠΌΠΈ ΡΡΡΠΊΠ°ΠΌΠΈ. ΠΠ½ΠΈ ΠΏΡΠ΅Π΄ΡΡΠ°Π²Π»ΡΡΡ ΡΠΎΠ±ΠΎΠΉ ΡΠ³Π»ΡΠ±Π»Π΅Π½ΠΈΠ΅ Π² Π΄Π²Π΅ΡΡΠ΅, ΠΊΡΠ΄Π° ΡΠΏΠΎΠΊΠΎΠΉΠ½ΠΎ ΠΏΠΎΠΌΠ΅ΡΠ°ΡΡΡΡ ΠΏΠ°Π»ΡΡΡ. ΠΠ»Ρ ΠΌΠΎΠ΄Π΅Π»Π΅ΠΉ Ρ ΠΏΠ΅ΡΠ΅Π½Π°Π²Π΅ΡΠΈΠ²Π°Π΅ΠΌΠΎΠΉ Π΄Π²Π΅ΡΡΠ΅ΠΉ ΠΈΠΌΠ΅Π΅ΡΡΡ Π²ΠΎΠ·ΠΌΠΎΠΆΠ½ΠΎΡΡΡ ΠΏΡΠΎΡΡΠΎΠΉ ΠΏΠ΅ΡΠ΅ΡΡΡΠ°Π½ΠΎΠ²ΠΊΠΈ ΡΡΡΠΊΠΈ ΡΠΏΡΠ°Π²Π° Π½Π°Π»Π΅Π²ΠΎ.
Π£ΠΏΡΠ°Π²Π»Π΅Π½ΠΈΠ΅

Π‘ΠΈΡΡΠ΅ΠΌΠ° ΡΠΏΡΠ°Π²Π»Π΅Π½ΠΈΡ Ρ ΠΎΠ»ΠΎΠ΄ΠΈΠ»ΡΠ½ΠΈΠΊΠΎΠΌ ΠΏΠΎΠ·Π²ΠΎΠ»ΡΠ΅Ρ ΡΠ°ΠΌΠΎΡΡΠΎΡΡΠ΅Π»ΡΠ½ΠΎ Π²ΡΠ±ΠΈΡΠ°ΡΡ ΡΠ΅ΠΌΠΏΠ΅ΡΠ°ΡΡΡΡ ΠΎΡ Π»Π°ΠΆΠ΄Π΅Π½ΠΈΡ ΠΊΠ°ΠΆΠ΄ΠΎΠΉ ΠΊΠ°ΠΌΠ΅ΡΡ, Π·Π°Π΄Π°Π²Π°ΡΡ Π΄ΠΎΠΏΠΎΠ»Π½ΠΈΡΠ΅Π»ΡΠ½ΡΠ΅ ΠΏΠ°ΡΠ°ΠΌΠ΅ΡΡΡ, ΠΊΠΎΠ½ΡΡΠΎΠ»ΠΈΡΠΎΠ²Π°ΡΡ ΡΠ°Π±ΠΎΡΡ ΠΏΡΠΈΠ±ΠΎΡΠ°. Π
ΠΠ΅ΡΠ²ΠΎΠΉ ΡΠΈΡΡΠ΅ΠΌΠΎΠΉ ΡΠΏΡΠ°Π²Π»Π΅Π½ΠΈΡ Π±ΡΠ»Π° ΠΌΠ΅Ρ
Π°Π½ΠΈΡΠ΅ΡΠΊΠ°Ρ — ΠΎΠ½Π° ΠΏΠΎΠ·Π²ΠΎΠ»ΡΠ»Π° ΡΠ΅Π³ΡΠ»ΠΈΡΠΎΠ²Π°ΡΡ ΡΡΠ΅ΠΏΠ΅Π½Ρ ΠΎΡ
Π»Π°ΠΆΠ΄Π΅Π½ΠΈΡ ΠΏΡΠΈ ΠΏΠΎΠΌΠΎΡΠΈ ΠΏΠΎΠ²ΠΎΡΠΎΡΠ½ΠΎΠ³ΠΎ ΠΏΠ΅ΡΠ΅ΠΊΠ»ΡΡΠ°ΡΠ΅Π»Ρ, ΡΡΡΠ°Π½ΠΎΠ²Π»Π΅Π½Π½ΠΎΠ³ΠΎ Π²Π½ΡΡΡΠΈ ΠΊΠ°ΠΌΠ΅ΡΡ.
ΠΡΠΈΠ±Π»ΠΈΠ·ΠΈΡΠ΅Π»ΡΠ½ΠΎ ΡΠ°ΠΊ ΠΆΠ΅ Π΄Π΅ΠΉΡΡΠ²ΡΡΡ ΡΠΎΠ²ΡΠ΅ΠΌΠ΅Π½Π½ΡΠ΅ ΡΠ»Π΅ΠΊΡΡΠΎΠΌΠ΅Ρ
Π°Π½ΠΈΡΠ΅ΡΠΊΠΈΠ΅ ΡΠΈΡΡΠ΅ΠΌΡ ΡΠΏΡΠ°Π²Π»Π΅Π½ΠΈΡ: ΠΊΡΠΎΠΌΠ΅ ΠΏΠΎΠ²ΠΎΡΠΎΡΠ½ΠΎΠ³ΠΎ ΠΏΠ΅ΡΠ΅ΠΊΠ»ΡΡΠ°ΡΠ΅Π»Ρ ΠΈΠ»ΠΈ ΠΈΠ½ΠΎΠ³ΠΎ ΡΠ΅Π³ΡΠ»ΡΡΠΎΡΠ° ΡΠ΅ΠΌΠΏΠ΅ΡΠ°ΡΡΡΡ, ΠΎΠ½ΠΈ Π²ΠΊΠ»ΡΡΠ°ΡΡ ΠΈΠ½Π΄ΠΈΠΊΠ°ΡΠΎΡ ΠΏΠΈΡΠ°Π½ΠΈΡ, Π° ΡΠ°ΠΊΠΆΠ΅ ΠΊΠ½ΠΎΠΏΠΊΠΈ Π΄ΠΎΠΏΠΎΠ»Π½ΠΈΡΠ΅Π»ΡΠ½ΡΡ
ΡΠ΅ΠΆΠΈΠΌΠΎΠ². ΠΠΎΠ²ΠΎΡΠΎΡΠΎΠΌ ΠΏΠ΅ΡΠ΅ΠΊΠ»ΡΡΠ°ΡΠ΅Π»Ρ Π½Π΅Π»ΡΠ·Ρ ΡΠΎΡΠ½ΠΎ ΡΡΡΠ°Π½ΠΎΠ²ΠΈΡΡ ΠΎΠΏΡΠ΅Π΄Π΅Π»Π΅Π½Π½ΡΡ ΡΠ΅ΠΌΠΏΠ΅ΡΠ°ΡΡΡΡ, Ρ ΠΈΡ
ΠΏΠΎΠΌΠΎΡΡΡ ΠΌΠΎΠΆΠ½ΠΎ Π·Π°Π΄Π°ΡΡ ΡΠΎΡ ΠΈΠ»ΠΈ ΠΈΠ½ΠΎΠΉ ΡΡΠΎΠ²Π΅Π½Ρ ΠΎΡ
Π»Π°ΠΆΠ΄Π΅Π½ΠΈΡ.
Π‘ΠΎΠ²ΡΠ΅ΠΌΠ΅Π½Π½ΠΎΠ΅ ΡΠ»Π΅ΠΊΡΡΠΎΠ½Π½ΠΎΠ΅ ΡΠΏΡΠ°Π²Π»Π΅Π½ΠΈΠ΅ ΡΠ²Π»ΡΠ΅ΡΡΡ Π½Π°ΠΌΠ½ΠΎΠ³ΠΎ Π±ΠΎΠ»Π΅Π΅ ΡΠ»ΠΎΠΆΠ½ΡΠΌ, Π² Π½Π΅ΠΌ ΠΌΠΎΠΆΠ½ΠΎ Π²ΡΠ΄Π΅Π»ΠΈΡΡ Π±Π»ΠΎΠΊ ΠΈ ΠΏΠ°Π½Π΅Π»Ρ ΡΠΏΡΠ°Π²Π»Π΅Π½ΠΈΡ, Π½Π° ΠΊΠΎΡΠΎΡΠΎΠΉ ΠΎΡΠΎΠ±ΡΠ°ΠΆΠ°ΡΡΡΡ Π²ΡΠ΅ ΠΏΠΎΠΊΠ°Π·Π°ΡΠ΅Π»ΠΈ ΡΠ°Π±ΠΎΡΡ ΠΏΡΠΈΠ±ΠΎΡΠ°. Π’Π΅ΠΌΠΏΠ΅ΡΠ°ΡΡΡΠ° Π² Ρ ΠΎΠ»ΠΎΠ΄ΠΈΠ»ΡΠ½ΠΈΠΊΠ°Ρ Ρ ΡΠ»Π΅ΠΊΡΡΠΎΠ½Π½ΡΠΌ ΡΠΏΡΠ°Π²Π»Π΅Π½ΠΈΠ΅ΠΌ ΠΌΠΎΠΆΠ΅Ρ Π±ΡΡΡ ΠΎΠΏΡΠ΅Π΄Π΅Π»Π΅Π½Π° Ρ ΡΠΎΡΠ½ΠΎΡΡΡΡ Π΄ΠΎ Π³ΡΠ°Π΄ΡΡΠ°. Π ΠΎΠ±ΡΡΠ½ΡΡ ΡΠ»Π΅ΠΊΡΡΠΎΠ½Π½ΡΡ ΡΡΡΡΠΎΠΉΡΡΠ²Π°Ρ Π΅Π΅ ΡΠ΅Π³ΡΠ»ΠΈΡΠΎΠ²ΠΊΠ° ΠΏΡΠΎΠΈΠ·Π²ΠΎΠ΄ΠΈΡΡΡ ΠΏΡΠΈ ΠΏΠΎΠΌΠΎΡΠΈ ΠΊΠ½ΠΎΠΏΠΎΠΊ, Π° Π² ΡΠ΅Π½ΡΠΎΡΠ½ΡΡ ΡΡΡΡΠΎΠΉΡΡΠ²Π°Ρ Π΄Π»Ρ Π·Π°Π΄Π°Π½ΠΈΡ ΡΠΎΠΉ ΠΈΠ»ΠΈ ΠΈΠ½ΠΎΠΉ ΡΠ΅ΠΌΠΏΠ΅ΡΠ°ΡΡΡΡ Π½Π΅ΠΎΠ±Ρ ΠΎΠ΄ΠΈΠΌΠΎ Π½Π°ΠΆΠ°ΡΡ Π½Π° ΡΠ΅Π½ΡΠΎΡΠ½ΡΡ ΠΊΠ½ΠΎΠΏΠΊΡ Π½Π° Π΄ΠΈΡΠΏΠ»Π΅Π΅.

ΠΠ»Π΅ΠΌΠ΅Π½ΡΡ ΡΠΏΡΠ°Π²Π»Π΅Π½ΠΈΡ Π½Π° ΠΏΠ°Π½Π΅Π»ΠΈ Ρ ΠΎΠ»ΠΎΠ΄ΠΈΠ»ΡΠ½ΠΈΠΊΠ° ΠΏΡΠ΅Π΄Π½Π°Π·Π½Π°ΡΠ°ΡΡΡΡ Π² ΠΏΠ΅ΡΠ²ΡΡ ΠΎΡΠ΅ΡΠ΅Π΄Ρ Π΄Π»Ρ ΡΠ΅Π³ΡΠ»ΠΈΡΠΎΠ²ΠΊΠΈ ΡΠ΅ΠΌΠΏΠ΅ΡΠ°ΡΡΡΡ Π² ΠΊΠ°ΠΌΠ΅ΡΠ°Ρ , Π° ΡΠ°ΠΊΠΆΠ΅ Π΄Π»Ρ Π·Π°Π΄Π°Π½ΠΈΡ Π΄ΠΎΠΏΠΎΠ»Π½ΠΈΡΠ΅Π»ΡΠ½ΡΡ ΠΏΠ°ΡΠ°ΠΌΠ΅ΡΡΠΎΠ² ΡΠ°Π±ΠΎΡΡ.
Π Ρ ΠΎΠ»ΠΎΠ΄ΠΈΠ»ΡΠ½ΠΈΠΊΠ°Ρ Ρ ΡΠ»Π΅ΠΊΡΡΠΎΠ½Π½ΡΠΌ ΡΠΈΠΏΠΎΠΌ ΡΠΏΡΠ°Π²Π»Π΅Π½ΠΈΡ ΠΎΡΠ½ΠΎΠ²Π½ΡΠΌ ΡΠ»Π΅ΠΌΠ΅Π½ΡΠΎΠΌ ΡΠ΅Π³ΡΠ»ΠΈΡΠΎΠ²ΠΊΠΈ ΡΠ΅ΠΌΠΏΠ΅ΡΠ°ΡΡΡΡ ΡΠ»ΡΠΆΠ°Ρ ΠΎΠ±ΡΡΠ½ΡΠ΅ ΠΈΠ»ΠΈ ΡΠ΅Π½ΡΠΎΡΠ½ΡΠ΅ ΠΊΠ½ΠΎΠΏΠΊΠΈ. Π‘ ΠΈΡ ΠΏΠΎΠΌΠΎΡΡΡ ΠΌΠΎΠΆΠ½ΠΎ ΡΡΡΠ°Π½ΠΎΠ²ΠΈΡΡ ΡΠ΅ΠΌΠΏΠ΅ΡΠ°ΡΡΡΡ ΠΎΡ Π»Π°ΠΆΠ΄Π΅Π½ΠΈΡ ΠΈΠ»ΠΈ Π·Π°ΠΌΠΎΡΠΎΠ·ΠΊΠΈ Ρ ΡΠΎΡΠ½ΠΎΡΡΡΡ Π΄ΠΎ ΠΎΠ΄Π½ΠΎΠ³ΠΎ Π³ΡΠ°Π΄ΡΡΠ°. ΠΡΠΎΠΌΠ΅ ΡΠΎΠ³ΠΎ, ΠΊΠ½ΠΎΠΏΠΊΠΈ ΠΏΡΠ΅Π΄Π½Π°Π·Π½Π°ΡΠ°ΡΡΡΡ Π΄Π»Ρ Π²ΠΊΠ»ΡΡΠ΅Π½ΠΈΡ ΡΠ΅ΠΆΠΈΠΌΠΎΠ² ΡΡΠΏΠ΅ΡΠΎΡ Π»Π°ΠΆΠ΄Π΅Π½ΠΈΡ ΠΈ ΡΡΠΏΠ΅ΡΠ·Π°ΠΌΠΎΡΠ°ΠΆΠΈΠ²Π°Π½ΠΈΡ, Π²ΠΊΠ»ΡΡΠ΅Π½ΠΈΡ ΠΈ Π²ΡΠΊΠ»ΡΡΠ΅Π½ΠΈΡ Π²ΡΠ΅Π³ΠΎ ΡΡΡΡΠΎΠΉΡΡΠ²Π°. ΠΡΠ΅ ΡΠ°ΠΊΡΠΈΡΠ΅ΡΠΊΠΈΠ΅ Ρ Π°ΡΠ°ΠΊΡΠ΅ΡΠΈΡΡΠΈΠΊΠΈ ΡΠ°Π±ΠΎΡΡ ΠΏΡΠΈΠ±ΠΎΡΠ° ΠΎΡΠΎΠ±ΡΠ°ΠΆΠ°ΡΡΡΡ Π½Π° Π΄ΠΈΡΠΏΠ»Π΅Π΅.
ΠΡΠ½ΠΎΠ²Π½ΡΠΌ ΡΠ»Π΅ΠΌΠ΅Π½ΡΠΎΠΌ ΡΠΏΡΠ°Π²Π»Π΅Π½ΠΈΡ Π² Ρ ΠΎΠ»ΠΎΠ΄ΠΈΠ»ΡΠ½ΠΈΠΊΠ°Ρ Ρ ΠΌΠ΅Ρ Π°Π½ΠΈΡΠ΅ΡΠΊΠΎΠΉ ΠΈΠ»ΠΈ ΡΠ»Π΅ΠΊΡΡΠΎΠΌΠ΅Ρ Π°Π½ΠΈΡΠ΅ΡΠΊΠΎΠΉ ΡΠΈΡΡΠ΅ΠΌΠΎΠΉ ΡΠ»ΡΠΆΠΈΡ ΠΏΠΎΠ²ΠΎΡΠΎΡΠ½ΠΎΠΉ ΠΏΠ΅ΡΠ΅ΠΊΠ»ΡΡΠ°ΡΠ΅Π»Ρ Ρ Π΄Π΅Π»Π΅Π½ΠΈΡΠΌΠΈ. ΠΠΎΠ²ΠΎΡΠΎΡΠΎΠΌ ΡΡΡΠΊΠΈ ΠΌΠΎΠΆΠ½ΠΎ ΡΠ΅Π³ΡΠ»ΠΈΡΠΎΠ²Π°ΡΡ ΡΡΠ΅ΠΏΠ΅Π½Ρ ΠΎΡ Π»Π°ΠΆΠ΄Π΅Π½ΠΈΡ Π½Π° Π½Π΅ΡΠΊΠΎΠ»ΡΠΊΠΈΡ ΡΡΠΎΠ²Π½ΡΡ — ΠΎΡ ΠΌΠΈΠ½ΠΈΠΌΠ°Π»ΡΠ½ΠΎΠ³ΠΎ Π΄ΠΎ ΠΌΠ°ΠΊΡΠΈΠΌΠ°Π»ΡΠ½ΠΎΠ³ΠΎ. Π’ΠΎΡΠ½ΠΎΠ΅ Π·Π½Π°ΡΠ΅Π½ΠΈΠ΅ ΡΠ΅ΠΌΠΏΠ΅ΡΠ°ΡΡΡΡ Π² ΡΠ°ΠΊΠΈΡ ΡΡΡΡΠΎΠΉΡΡΠ²Π°Ρ ΡΡΡΠ°Π½ΠΎΠ²ΠΈΡΡ Π½Π΅Π²ΠΎΠ·ΠΌΠΎΠΆΠ½ΠΎ. ΠΡΠΎΠΌΠ΅ ΡΠΎΠ³ΠΎ, Π²ΠΎ Π²ΡΠ΅Ρ Ρ ΠΎΠ»ΠΎΠ΄ΠΈΠ»ΡΠ½ΠΈΠΊΠ°Ρ ΠΏΡΠΈΡΡΡΡΡΠ²ΡΠ΅Ρ ΡΠΈΡΡΠ΅ΠΌΠ° ΠΈΠ½Π΄ΠΈΠΊΠ°ΡΠΈΠΈ, ΠΊΠΎΡΠΎΡΠ°Ρ Π΄Π΅ΠΉΡΡΠ²ΡΠ΅Ρ ΠΏΡΠΈ ΠΏΠΎΠ²ΡΡΠ΅Π½ΠΈΠΈ ΡΠ΅ΠΌΠΏΠ΅ΡΠ°ΡΡΡΡ Π² ΠΊΠ°ΠΌΠ΅ΡΠ΅ Π²ΡΡΠ΅ Π·Π°Π΄Π°Π½Π½ΠΎΠ³ΠΎ Π·Π½Π°ΡΠ΅Π½ΠΈΡ, Π° ΡΠ°ΠΊΠΆΠ΅ Π»Π°ΠΌΠΏΠΎΡΠΊΠ°, ΠΊΠΎΡΠΎΡΠ°Ρ Π·Π°Π³ΠΎΡΠ°Π΅ΡΡΡ ΠΏΡΠΈ Π½Π΅ΠΏΠ»ΠΎΡΠ½ΠΎ Π·Π°ΠΊΡΡΡΠΎΠΉ Π΄Π²Π΅ΡΡΠ΅.

Π Π·Π°Π²ΠΈΡΠΈΠΌΠΎΡΡΠΈ ΠΎΡ ΡΠΈΠΏΠ°, Π±ΡΠ΅Π½Π΄Π° ΠΈ ΠΊΠ»Π°ΡΡΠ° ΠΊΠ°ΠΆΠ΄ΡΠΉ Ρ ΠΎΠ»ΠΎΠ΄ΠΈΠ»ΡΠ½ΠΈΠΊ ΠΈΠΌΠ΅Π΅Ρ ΡΠ²ΠΎΠΈ ΠΎΡΠΎΠ±Π΅Π½Π½ΠΎΡΡΠΈ ΡΠΏΡΠ°Π²Π»Π΅Π½ΠΈΡ. Π‘ΠΎΠ²ΡΠ΅ΠΌΠ΅Π½Π½ΡΠ΅ ΠΏΡΠΈΠ±ΠΎΡΡ Ρ ΡΠ»Π΅ΠΊΡΡΠΎΠ½Π½ΠΎΠΉ ΡΠΈΡΡΠ΅ΠΌΠΎΠΉ ΠΊΠΎΠ½ΡΡΠΎΠ»Ρ ΠΎΡΠ½Π°ΡΠ°ΡΡΡΡ Π΄ΠΈΡΠΏΠ»Π΅ΡΠΌΠΈ ΡΠ°Π·Π½ΡΡ ΡΠΈΠΏΠΎΠ². Π‘ΡΠ΅Π΄ΠΈ Π½ΠΈΡ ΡΠ²Π΅ΡΠΎΠ΄ΠΈΠΎΠ΄Π½ΡΠ΅ Π΄ΠΈΡΠΏΠ»Π΅ΠΈ, ΠΊΠ°ΠΊ ΡΠ΅Π³ΠΌΠ΅Π½ΡΠ½ΡΠ΅, ΡΠ°ΠΊ ΠΈ ΠΌΠ°ΡΡΠΈΡΠ½ΡΠ΅, ΡΠ΅ΡΠ½ΠΎ-Π±Π΅Π»ΡΠ΅ ΠΈΠ»ΠΈ ΡΠ²Π΅ΡΠ½ΡΠ΅. ΠΡΠΈ ΠΏΠΎΠΌΠΎΡΠΈ ΠΊΠ½ΠΎΠΏΠΎΠΊ ΠΈΠ»ΠΈ ΡΠ΅Π½ΡΠΎΡΠ° ΡΠ΅Π³ΡΠ»ΠΈΡΡΡΡΡΡ ΠΏΠ°ΡΠ°ΠΌΠ΅ΡΡΡ ΡΠ°Π±ΠΎΡΡ, Π° Π½Π° Π΄ΠΈΡΠΏΠ»Π΅Π΅ ΠΎΡΡΠ°ΠΆΠ°ΡΡΡΡ Π²ΡΠ΅ ΡΠ΅ΠΊΡΡΠΈΠ΅ ΠΈΠ·ΠΌΠ΅Π½Π΅Π½ΠΈΡ. ΠΠ½ ΠΌΠΎΠΆΠ΅Ρ ΡΠ°ΡΠΏΠΎΠ»Π°Π³Π°ΡΡΡΡ Π½Π° ΡΠ°ΡΠ°Π΄Π΅ ΡΡΡΡΠΎΠΉΡΡΠ²Π° Π»ΠΈΠ±ΠΎ Π·Π° Π΄Π²Π΅ΡΡΠ΅ΠΉ Π² Π²Π΅ΡΡ Π½Π΅ΠΉ Π΅Π³ΠΎ ΡΠ°ΡΡΠΈ.
Π¦ΠΈΡΡΠΎΠ²ΡΠ΅ Π΄ΠΈΡΠΏΠ»Π΅ΠΈ Π±ΠΎΠ»Π΅Π΅ ΠΏΡΠΎΡΡΡΠ΅ — Π½Π° Π½ΠΈΡ ΠΎΡΠΎΠ±ΡΠ°ΠΆΠ°Π΅ΡΡΡ ΡΠ΅ΠΌΠΏΠ΅ΡΠ°ΡΡΡΠ° Π² Ρ ΠΎΠ»ΠΎΠ΄ΠΈΠ»ΡΠ½ΠΎΠΉ ΠΈ ΠΌΠΎΡΠΎΠ·ΠΈΠ»ΡΠ½ΠΎΠΉ ΠΊΠ°ΠΌΠ΅ΡΠ°Ρ ΠΈ Π²ΡΠ±ΡΠ°Π½Π½ΡΠΉ ΡΠ΅ΠΆΠΈΠΌ — Π½Π°ΠΏΡΠΈΠΌΠ΅Ρ, ΡΡΠΏΠ΅ΡΠ·Π°ΠΌΠΎΡΠ°ΠΆΠΈΠ²Π°Π½ΠΈΠ΅, ΡΡΠΏΠ΅ΡΠΎΡ Π»Π°ΠΆΠ΄Π΅Π½ΠΈΠ΅, ΠΎΡΠΏΡΡΠΊΠ½ΠΎΠΉ ΡΠ΅ΠΆΠΈΠΌ. Π‘ΡΠ΄Π° ΠΆΠ΅ Π²ΡΠ²ΠΎΠ΄ΡΡΡΡ ΡΠΎΠΎΠ±ΡΠ΅Π½ΠΈΡ ΠΎΠ± ΠΎΡΠΈΠ±ΠΊΠ°Ρ . Π’Π΅ΠΊΡΡΠΎΠ²ΡΠΉ Π΄ΠΈΡΠΏΠ»Π΅ΠΉ Π΄Π°Π΅Ρ ΠΏΠΎΠ»ΡΠ·ΠΎΠ²Π°ΡΠ΅Π»Ρ Π±ΠΎΠ»ΡΡΠ΅ Π²ΠΎΠ·ΠΌΠΎΠΆΠ½ΠΎΡΡΠ΅ΠΉ ΠΈ ΠΏΠΎΠ·Π²ΠΎΠ»ΡΠ΅Ρ ΡΠ°Π±ΠΎΡΠ°ΡΡ Ρ ΠΌΠ΅Π½Ρ, Π²ΡΠ±ΠΈΡΠ°Ρ Π² Π½Π΅ΠΌ ΡΠ΅ ΠΈΠ»ΠΈ ΠΈΠ½ΡΠ΅ ΠΎΠΏΡΠΈΠΈ.
Π Ρ
ΠΎΠ»ΠΎΠ΄ΠΈΠ»ΡΠ½ΠΈΠΊΠ°Ρ
ΠΏΡΠΎΠΈΠ·Π²ΠΎΠ΄ΡΡΠ²Π° Liebherr ΠΈΡΠΏΠΎΠ»ΡΠ·ΡΠ΅ΡΡΡ ΡΠΏΠ΅ΡΠΈΠ°Π»ΡΠ½ΠΎ ΡΠ°Π·ΡΠ°Π±ΠΎΡΠ°Π½Π½Π°Ρ ΠΏΠ°Π½Π΅Π»Ρ ΡΠΏΡΠ°Π²Π»Π΅Π½ΠΈΡ Ρ Π΄ΠΈΡΠΏΠ»Π΅Π΅ΠΌ MagicEye: ΡΡΠΎ ΠΌΠ½ΠΎΠ³ΠΎΡΡΠ½ΠΊΡΠΈΠΎΠ½Π°Π»ΡΠ½ΡΠΉ Π΄ΠΈΡΠΏΠ»Π΅ΠΉ, ΠΊΠΎΡΠΎΡΡΠΉ ΠΎΠΏΠΎΠ²Π΅ΡΠ°Π΅Ρ ΠΎΠ±ΠΎ Π²ΡΠ΅Ρ
Π°ΡΠΏΠ΅ΠΊΡΠ°Ρ
ΡΠ°Π±ΠΎΡΡ Ρ
ΠΎΠ»ΠΎΠ΄ΠΈΠ»ΡΠ½ΠΈΠΊΠ°. Π‘ΠΈΡΡΠ΅ΠΌΠ° ΡΠΏΡΠ°Π²Π»Π΅Π½ΠΈΡ ΠΏΡΠΈ ΠΏΠΎΠΌΠΎΡΠΈ MagicEye ΠΈΠΌΠ΅Π΅Ρ Π³ΡΠ°ΡΠΈΡΠ΅ΡΠΊΡΡ ΠΈΠ½Π΄ΠΈΠΊΠ°ΡΠΈΡ ΠΈ ΠΈΠ½ΡΡΠΈΡΠΈΠ²Π½ΠΎ ΠΏΠΎΠ½ΡΡΠ½Π°, Π° ΡΠ΅Π½ΡΠΎΡΠ½Π°Ρ ΠΏΠ°Π½Π΅Π»Ρ ΡΠΏΡΠ°Π²Π»Π΅Π½ΠΈΡ ΡΠ΅Π°Π³ΠΈΡΡΠ΅Ρ Π½Π° ΡΠ°ΠΌΠΎΠ΅ Π»Π΅Π³ΠΊΠΎΠ΅ ΠΏΡΠΈΠΊΠΎΡΠ½ΠΎΠ²Π΅Π½ΠΈΠ΅.
ΠΡΠ΅ ΠΎΠ΄Π½Π° Π²ΠΎΠ·ΠΌΠΎΠΆΠ½ΠΎΡΡΡ ΡΠΏΡΠ°Π²Π»Π΅Π½ΠΈΡ Ρ
ΠΎΠ»ΠΎΠ΄ΠΈΠ»ΡΠ½ΠΈΠΊΠ°ΠΌΠΈ Liebherr — ΡΡΠΎ ΡΠΈΡΡΠ΅ΠΌΠ° Home Dialog, ΡΠ°ΡΡΡΠΈΡΠ°Π½Π½Π°Ρ Π½Π° ΡΠ΄Π°Π»Π΅Π½Π½ΠΎΠ΅ ΡΠΏΡΠ°Π²Π»Π΅Π½ΠΈΠ΅ ΡΡΡΡΠΎΠΉΡΡΠ²Π°ΠΌΠΈ Π½Π΅Π·Π°Π²ΠΈΡΠΈΠΌΠΎ ΠΎΡ ΠΈΡ
ΡΠ°ΡΠΏΠΎΠ»ΠΎΠΆΠ΅Π½ΠΈΡ. ΠΡΠ΅ Ρ
ΠΎΠ»ΠΎΠ΄ΠΈΠ»ΡΠ½ΡΠ΅ Π°Π³ΡΠ΅Π³Π°ΡΡ Π² Π΄ΠΎΠΌΠ΅ ΠΎΠ±ΡΠ΅Π΄ΠΈΠ½ΡΡΡΡΡ Π² ΡΠ΅ΡΡ, ΡΠΏΡΠ°Π²Π»ΡΡΡΡΡ ΠΎΠ½ΠΈ Ρ ΠΏΠΎΠΌΠΎΡΡΡ ΡΠΏΠ΅ΡΠΈΠ°Π»ΡΠ½ΠΎΠ³ΠΎ Π΄ΠΈΡΠΏΠ»Π΅Ρ, ΠΊΠΎΡΠΎΡΡΠΉ ΡΠ°ΡΠΏΠΎΠ»Π°Π³Π°Π΅ΡΡΡ Π½Π° Π³Π»Π°Π²Π½ΠΎΠΌ ΡΡΡΡΠΎΠΉΡΡΠ²Π΅.
ΠΡΠ΅ ΠΎΠ΄Π½Π° Π΄ΠΎΠΏΠΎΠ»Π½ΠΈΡΠ΅Π»ΡΠ½Π°Ρ Π²ΠΎΠ·ΠΌΠΎΠΆΠ½ΠΎΡΡΡ Liebherr — Home Connect. ΠΠ½Π° ΠΏΠΎΠ·Π²ΠΎΠ»ΡΠ΅Ρ ΡΠ΅Π³ΡΠ»ΠΈΡΠΎΠ²Π°ΡΡ ΡΠ΅ΠΌΠΏΠ΅ΡΠ°ΡΡΡΡ Π² ΠΊΠ°ΠΌΠ΅ΡΠ°Ρ
ΠΈ Π²ΡΡΡΠ°Π²Π»ΡΡΡ ΠΈΠ½ΡΠ΅ Π½Π°ΡΡΡΠΎΠΉΠΊΠΈ ΡΠΎ ΡΠΌΠ°ΡΡΡΠΎΠ½Π°, Π½Π° ΠΊΠΎΡΠΎΡΠΎΠΌ ΡΡΡΠ°Π½Π°Π²Π»ΠΈΠ²Π°Π΅ΡΡΡ ΡΠΏΠ΅ΡΠΈΠ°Π»ΡΠ½ΠΎΠ΅ ΠΏΡΠΈΠ»ΠΎΠΆΠ΅Π½ΠΈΠ΅.
Π₯ΠΎΠ»ΠΎΠ΄ΠΈΠ»ΡΠ½Π°Ρ ΠΊΠ°ΠΌΠ΅ΡΠ°

ΠΠ°ΠΏΠ΅Π»ΡΠ½ΠΎΠ΅ ΡΠ°Π·ΠΌΠΎΡΠ°ΠΆΠΈΠ²Π°Π½ΠΈΠ΅: ΠΏΡΠΈ ΡΠ°Π±ΠΎΡΠ΅ ΠΊΠΎΠΌΠΏΡΠ΅ΡΡΠΎΡΠ° Π½Π° Π·Π°Π΄Π½Π΅ΠΉ ΡΡΠ΅Π½ΠΊΠ΅ ΠΎΠ±ΡΠ°Π·ΡΠ΅ΡΡΡ Π»Π΅Π΄; ΠΊΠΎΠ³Π΄Π° ΠΊΠΎΠΌΠΏΡΠ΅ΡΡΠΎΡ ΠΎΡΡΠ°Π½Π°Π²Π»ΠΈΠ²Π°Π΅ΡΡΡ, Π»ΡΠ΄ΠΈΠ½ΠΊΠΈ ΡΠ°ΡΡ, Π²ΠΎΠ΄Π° ΡΡ ΠΎΠ΄ΠΈΡ Π² ΡΠ»ΠΈΠ², Π° ΡΠΏΠ΅ΡΠΈΠ°Π»ΡΠ½ΡΠΉ ΠΈΡΠΏΠ°ΡΠΈΡΠ΅Π»Ρ ΡΠ΄Π°Π»ΡΠ΅Ρ Π΅Π΅.
ΠΠ²ΡΠΎΠΌΠ°ΡΠΈΡΠ΅ΡΠΊΠΈΠ΅ ΡΠΈΡΡΠ΅ΠΌΡ Π±ΡΠ²Π°ΡΡ ΡΠ°Π·Π½ΡΠΌΠΈ, ΡΡΡΡ ΠΈΡ ΡΠ²ΠΎΠ΄ΠΈΡΡΡ ΠΊ ΡΠΎΠΌΡ, ΡΡΠΎΠ±Ρ ΡΠ°ΠΊΠΆΠ΅ ΡΠ°ΠΌΠΎΡΡΠΎΡΡΠ΅Π»ΡΠ½ΠΎ ΠΈΡΠΏΠ°ΡΡΡΡ Π²Π»Π°Π³Ρ.
No Frost (Total No Frost, Frost Free): Π²Π΅Π½ΡΠΈΠ»ΡΡΠΎΡ ΠΎΠ±Π΅ΡΠΏΠ΅ΡΠΈΠ²Π°Π΅Ρ ΡΠΈΡΠΊΡΠ»ΡΡΠΈΡ ΠΎΡ Π»Π°ΠΆΠ΄Π΅Π½Π½ΠΎΠ³ΠΎ Π²ΠΎΠ·Π΄ΡΡ Π°, Π±Π»Π°Π³ΠΎΠ΄Π°ΡΡ ΡΠ΅ΠΌΡ Π»Π΅Π΄ Π½Π΅ Π½Π°ΡΠ°ΡΡΠ°Π΅Ρ Π½Π° ΡΡΠ΅Π½ΠΊΠ΅, Π° ΠΊΠΎΠ½ΡΠ΅Π½ΡΡΠΈΡΡΠ΅ΡΡΡ ΡΠΎΠ»ΡΠΊΠΎ Π½Π° ΡΠΊΡΡΡΠΎΠΌ Π²Π½ΡΡΡΠΈ Ρ ΠΎΠ»ΠΎΠ΄ΠΈΠ»ΡΠ½ΠΈΠΊΠ° ΠΈΡΠΏΠ°ΡΠΈΡΠ΅Π»Π΅. Π’Π°Π»Π°Ρ Π²ΠΎΠ΄Π° ΡΠΎΠ±ΠΈΡΠ°Π΅ΡΡΡ Π² ΡΠΏΠ΅ΡΠΈΠ°Π»ΡΠ½ΠΎΠΉ Π΅ΠΌΠΊΠΎΡΡΠΈ ΠΈ ΠΈΡΠΏΠ°ΡΡΠ΅ΡΡΡ. Π’Π°ΠΊΠΎΠΉ Ρ ΠΎΠ»ΠΎΠ΄ΠΈΠ»ΡΠ½ΠΈΠΊ Π½Π΅ Π½ΡΠΆΠ½ΠΎ ΡΠ°Π·ΠΌΠΎΡΠ°ΠΆΠΈΠ²Π°ΡΡ β ΡΡΠΎ ΡΠΊΠΎΠ½ΠΎΠΌΠΈΡ Π²ΡΠ΅ΠΌΡ ΠΈ ΠΏΠΎΠ·Π²ΠΎΠ»ΡΠ΅Ρ Π½Π΅ ΠΎΡΡΠ°Π½Π°Π²Π»ΠΈΠ²Π°ΡΡ ΠΏΡΠΈΠ±ΠΎΡ. ΠΠ»Π°Π³ΠΎΠ΄Π°ΡΡ ΡΡΠΈΠΌ ΠΏΠ»ΡΡΠ°ΠΌ Π² ΡΠΎΠ²ΡΠ΅ΠΌΠ΅Π½Π½ΡΡ ΠΌΠΎΠ΄Π΅Π»ΡΡ No Frost β ΡΠ°ΠΌΠ°Ρ ΡΠ°ΡΠΏΡΠΎΡΡΡΠ°Π½Π΅Π½Π½Π°Ρ ΡΠΈΡΡΠ΅ΠΌΠ°.

ΠΠ½ΡΡΡΠ΅Π½Π½Π΅Π΅ ΠΎΡΠ²Π΅ΡΠ΅Π½ΠΈΠ΅ Ρ ΠΎΠ»ΠΎΠ΄ΠΈΠ»ΡΠ½ΠΎΠΉ ΠΊΠ°ΠΌΠ΅ΡΡ ΠΏΠΎΠ·Π²ΠΎΠ»ΡΠ΅Ρ ΠΎΠ±Π΅ΡΠΏΠ΅ΡΠΈΡΡ Ρ ΠΎΡΠΎΡΠΈΠΉ ΠΎΠ±Π·ΠΎΡ ΡΠΎΠ΄Π΅ΡΠΆΠΈΠΌΠΎΠ³ΠΎ ΠΈ Π±ΡΡΡΡΠΎ Π½Π°ΠΉΡΠΈ Π½Π΅ΠΎΠ±Ρ ΠΎΠ΄ΠΈΠΌΡΠ΅ ΠΏΡΠΎΠ΄ΡΠΊΡΡ. Π§Π΅ΠΌ ΠΌΠ΅Π½ΡΡΠ΅ Π²ΡΠ΅ΠΌΠ΅Π½ΠΈ Π±ΡΠ΄Π΅Ρ ΠΎΡΠΊΡΡΡΠ° Π΄Π²Π΅ΡΡΠ° Ρ ΠΎΠ»ΠΎΠ΄ΠΈΠ»ΡΠ½ΠΈΠΊΠ°, ΡΠ΅ΠΌ Π»ΡΡΡΠ΅ Π±ΡΠ΄Π΅Ρ ΠΏΠΎΠ΄Π΄Π΅ΡΠΆΠΈΠ²Π°ΡΡΡΡ Π² ΠΊΠ°ΠΌΠ΅ΡΠ΅ Π²ΡΠ±ΡΠ°Π½Π½Π°Ρ ΡΠ΅ΠΌΠΏΠ΅ΡΠ°ΡΡΡΠ°, ΡΠ»Π΅Π΄ΠΎΠ²Π°ΡΠ΅Π»ΡΠ½ΠΎ, ΡΠ»ΡΡΡΠΈΡΡΡ ΠΈ ΠΊΠ°ΡΠ΅ΡΡΠ²ΠΎ Ρ ΡΠ°Π½Π΅Π½ΠΈΡ ΠΏΡΠΎΠ΄ΡΠΊΡΠΎΠ².
ΠΠ°ΠΊ ΠΏΡΠ°Π²ΠΈΠ»ΠΎ, ΠΎΡΠ²Π΅ΡΠ΅Π½ΠΈΠ΅ Π² Ρ ΠΎΠ»ΠΎΠ΄ΠΈΠ»ΡΠ½ΠΈΠΊΠ΅ Π²ΠΊΠ»ΡΡΠ°Π΅ΡΡΡ ΠΏΡΠΈ ΠΏΠΎΠΌΠΎΡΠΈ ΠΏΡΡΠΊΠΎΠ²ΠΎΠ³ΠΎ ΡΠ΅Π»Π΅ ΠΏΡΠΈ ΠΊΠ°ΠΆΠ΄ΠΎΠΌ ΠΎΡΠΊΡΡΠ²Π°Π½ΠΈΠΈ Π΄Π²Π΅ΡΡΡ, ΡΡΠΎ ΡΠΏΠΎΡΠΎΠ±ΡΡΠ²ΡΠ΅Ρ ΡΠΊΠΎΠ½ΠΎΠΌΠΈΠΈ ΡΠ»Π΅ΠΊΡΡΠΎΡΠ½Π΅ΡΠ³ΠΈΠΈ ΠΈ ΡΠ²Π΅Π»ΠΈΡΠΈΠ²Π°Π΅Ρ ΡΡΠΎΠΊ ΡΠΊΡΠΏΠ»ΡΠ°ΡΠ°ΡΠΈΠΈ ΡΠ°ΠΌΠΎΠ³ΠΎ ΡΡΡΡΠΎΠΉΡΡΠ²Π°. ΠΡΠΈ ΠΎΡΡΡΡΡΡΠ²ΠΈΠΈ Π²Π½ΡΡΡΠ΅Π½Π½Π΅Π³ΠΎ ΠΎΡΠ²Π΅ΡΠ΅Π½ΠΈΡ Π²Π°ΠΌ ΠΏΡΠΈΠ΄Π΅ΡΡΡ Π΄ΠΎΠ»ΡΡΠ΅ Π΄Π΅ΡΠΆΠ°ΡΡ Π΄Π²Π΅ΡΡ ΠΎΡΠΊΡΡΡΠΎΠΉ, ΡΡΠΎ ΠΌΠΎΠΆΠ΅Ρ ΠΏΡΠΈΠ²Π΅ΡΡΠΈ ΠΊ Π±ΠΎΠ»ΡΡΠΈΠΌ Π½Π°Π³ΡΡΠ·ΠΊΠ°ΠΌ Π½Π° ΠΊΠΎΠΌΠΏΡΠ΅ΡΡΠΎΡ.
ΠΠ°ΠΈΠ±ΠΎΠ»Π΅Π΅ ΠΏΡΠΎΡΡΠΎΠΉ Π²ΠΈΠ΄ Π²Π½ΡΡΡΠ΅Π½Π½Π΅Π³ΠΎ ΠΎΡΠ²Π΅ΡΠ΅Π½ΠΈΡ Ρ ΠΎΠ»ΠΎΠ΄ΠΈΠ»ΡΠ½ΠΈΠΊΠ° — Π»Π°ΠΌΠΏΡ Π½Π°ΠΊΠ°Π»ΠΈΠ²Π°Π½ΠΈΡ. ΠΡ ΠΏΡΠ΅ΠΈΠΌΡΡΠ΅ΡΡΠ²Π° — Π»Π΅Π³ΠΊΠΎΡΡΡ Π² ΡΠΊΡΠΏΠ»ΡΠ°ΡΠ°ΡΠΈΠΈ ΠΈ Π½ΠΈΠ·ΠΊΠ°Ρ ΡΡΠΎΠΈΠΌΠΎΡΡΡ. ΠΠ΅Π΄ΠΎΡΡΠ°ΡΠΊΠ°ΠΌΠΈ ΡΡΠΎΠ³ΠΎ ΡΠΈΠΏΠ° ΡΠ²Π»ΡΠ΅ΡΡΡ Π·Π½Π°ΡΠΈΡΠ΅Π»ΡΠ½ΠΎΠ΅ ΠΏΠΎΠ²ΡΡΠ΅Π½ΠΈΠ΅ ΡΠ΅ΠΌΠΏΠ΅ΡΠ°ΡΡΡΡ ΠΏΡΠΈ ΠΈΡ ΡΠ°Π±ΠΎΡΠ΅, Π° ΡΠ°ΠΊΠΆΠ΅ ΠΊΠΎΡΠΎΡΠΊΠΈΠΉ ΡΡΠΎΠΊ ΡΠΊΡΠΏΠ»ΡΠ°ΡΠ°ΡΠΈΠΈ. Π Π΅ΠΆΠ΅ Π²ΡΡΡΠ΅ΡΠ°ΡΡΡΡ Π² Ρ ΠΎΠ»ΠΎΠ΄ΠΈΠ»ΡΠ½ΠΈΠΊΠ°Ρ Π³Π°Π»ΠΎΠ³Π΅Π½Π½ΡΠ΅ Π»Π°ΠΌΠΏΡ. ΠΡΠ»ΠΈΡΠΈΠ΅ ΠΈΡ ΠΎΡ Π»Π°ΠΌΠΏ Π½Π°ΠΊΠ°Π»ΠΈΠ²Π°Π½ΠΈΡ ΡΠΎΡΡΠΎΠΈΡ Π² ΡΠΎΠΌ, ΡΡΠΎ ΡΡΠ΅ΠΊΠ»ΡΠ½Π½Π°Ρ ΠΊΠΎΠ»Π±Π° Π·Π°ΠΏΠΎΠ»Π½ΡΠ΅ΡΡΡ ΠΏΠ°ΡΠ°ΠΌΠΈ Π³Π°Π»ΠΎΠ³Π΅Π½ΠΎΠ², ΡΡΠΎ ΠΏΠΎΠ·Π²ΠΎΠ»ΡΠ΅Ρ ΡΠ΄Π΅Π»Π°ΡΡ ΠΎΡΠ²Π΅ΡΠ΅Π½ΠΈΠ΅ Π±ΠΎΠ»Π΅Π΅ ΡΡΠΊΠΈΠΌ. ΠΠ½ΠΈ Π³ΠΎΡΠ°Π·Π΄ΠΎ ΠΌΠ΅Π½Π΅Π΅ ΡΠ½Π΅ΡΠ³ΠΎΠ΅ΠΌΠΊΠΈ, Π° ΡΡΠΎΠΊ ΠΈΡ ΡΠΊΡΠΏΠ»ΡΠ°ΡΠ°ΡΠΈΠΈ Π·Π½Π°ΡΠΈΡΠ΅Π»ΡΠ½ΠΎ Π²ΡΡΠ΅.
ΠΡΠΌΠΈΠ½Π΅ΡΡΠ΅Π½ΡΠ½ΡΠ΅ Π»Π°ΠΌΠΏΡ Ρ Ρ ΠΎΠ»ΠΎΠ΄ΠΈΠ½ΡΠΌ Π±Π΅Π»ΡΠΌ ΡΠ²Π΅ΡΠΎΠΌ Π΅ΡΠ΅ Π±ΠΎΠ»Π΅Π΅ Π΄ΠΎΠ»Π³ΠΎΠ²Π΅ΡΠ½Ρ, Π° ΠΏΡΠΎΠ΄ΠΎΠ»ΠΆΠΈΡΠ΅Π»ΡΠ½ΠΎΡΡΡ ΠΈΡ ΡΠ°Π±ΠΎΡΡ, ΠΊΠ°ΠΊ ΠΏΡΠ°Π²ΠΈΠ»ΠΎ, Π·Π°Π²ΠΈΡΠΈΡ ΠΎΡ ΠΊΠΎΠ»ΠΈΡΠ΅ΡΡΠ²Π° ΡΠΈΠΊΠ»ΠΎΠ² Π²ΠΊΠ»ΡΡΠ΅Π½ΠΈΡ-Π²ΡΠΊΠ»ΡΡΠ΅Π½ΠΈΡ. ΠΠ΅Π΄ΠΎΡΡΠ°ΡΠΊΠΎΠΌ ΡΠ²Π»ΡΠ΅ΡΡΡ ΠΏΡΠΈΠΌΠ΅Π½Π΅Π½ΠΈΠ΅ Π² Π½ΠΈΡ ΠΏΠ°ΡΠΎΠ² ΡΡΡΡΠΈ, ΡΠ°ΠΊ ΡΡΠΎ ΠΈΡ Π½Π΅ΠΎΠ±Ρ ΠΎΠ΄ΠΈΠΌΠΎ ΠΏΠΎ ΠΈΡΡΠ΅ΡΠ΅Π½ΠΈΠΈ ΡΡΠΎΠΊΠ° Π³ΠΎΠ΄Π½ΠΎΡΡΠΈ ΡΠ΄Π°Π²Π°ΡΡ Π² ΠΏΡΠ½ΠΊΡΡ ΠΏΡΠΈΠ΅ΠΌΠ°.
ΠΠ°ΠΈΠ±ΠΎΠ»Π΅Π΅ ΡΠΊΠΎΠ½ΠΎΠΌΠΈΡΠ½ΡΠΌΠΈ, ΡΠΊΠΎΠ»ΠΎΠ³ΠΈΡΠ΅ΡΠΊΠΈ Π±Π΅Π·ΠΎΠΏΠ°ΡΠ½ΡΠΌΠΈ ΠΈ Π΄ΠΎΠ»Π³ΠΎΠ²Π΅ΡΠ½ΡΠΌΠΈ ΡΠ²Π»ΡΡΡΡΡ ΡΠ²Π΅ΡΠΎΠ΄ΠΈΠΎΠ΄Π½ΡΠ΅ ΠΈΠ»ΠΈ LED-Π»Π°ΠΌΠΏΡ: ΡΡΠΎΠΊ ΠΈΡ ΡΠΊΡΠΏΠ»ΡΠ°ΡΠ°ΡΠΈΠΈ Π΄ΠΎΡΡΠΈΠ³Π°Π΅Ρ 100000 ΡΠ°ΡΠΎΠ² Π±Π΅Π· ΡΡ ΡΠ΄ΡΠ΅Π½ΠΈΡ ΠΊΠ°ΡΠ΅ΡΡΠ²Π° ΠΎΡΠ²Π΅ΡΠ΅Π½ΠΈΡ. ΠΠ½ΠΈ ΠΌΠ³Π½ΠΎΠ²Π΅Π½Π½ΠΎ Π·Π°ΠΆΠΈΠ³Π°ΡΡΡΡ, Π½Π΅ Π½Π°Π³ΡΠ΅Π²Π°ΡΡΡΡ ΠΏΡΠΈ ΠΈΡΠΏΠΎΠ»ΡΠ·ΠΎΠ²Π°Π½ΠΈΠΈ, ΠΎΠ΄Π½Π°ΠΊΠΎ ΠΈΠΌΠ΅ΡΡ Π½Π΅ΡΠΊΠΎΠ»ΡΠΊΠΎ Π±ΠΎΠ»ΡΡΡΡ ΡΡΠΎΠΈΠΌΠΎΡΡΡ.

ΠΠΎΠ»ΠΊΠΈ Π² Ρ ΠΎΠ»ΠΎΠ΄ΠΈΠ»ΡΠ½ΠΈΠΊΠ΅ ΠΏΠΎΠ·Π²ΠΎΠ»ΡΡΡ ΡΠ°ΡΠΈΠΎΠ½Π°Π»ΡΠ½ΠΎ ΠΎΡΠ³Π°Π½ΠΈΠ·ΠΎΠ²Π°ΡΡ Ρ ΡΠ°Π½Π΅Π½ΠΈΠ΅ ΠΏΡΠΎΠ΄ΡΠΊΡΠΎΠ², ΠΎΠ±Π΅ΡΠΏΠ΅ΡΠΈΡΡ Π»Π΅Π³ΠΊΠΈΠΉ ΠΏΠΎΠΈΡΠΊ ΠΈ Π΄ΠΎΡΡΡΠΏ ΠΊ Π½ΠΈΠΌ. ΠΡΠ½ΠΎΠ²Π½ΡΠ΅ ΠΌΠ°ΡΠ΅ΡΠΈΠ°Π»Ρ Π΄Π»Ρ ΠΈΠ·Π³ΠΎΡΠΎΠ²Π»Π΅Π½ΠΈΡ ΠΏΠΎΠ»ΠΎΠΊ — ΡΡΠΎ ΠΏΠ»Π°ΡΡΠΈΠΊ, ΡΡΠ΅ΠΊΠ»ΠΎ ΠΈ ΠΌΠ΅ΡΠ°Π»Π». Π§Π°ΡΡΡ ΠΏΠΎΠ»ΠΎΠΊ ΠΌΠΎΠΆΠ½ΠΎ ΠΏΠ΅ΡΠ΅ΡΡΠ°Π²Π»ΡΡΡ ΠΏΠΎ Π²ΡΡΠΎΡΠ΅ ΠΈΠ»ΠΈ ΡΠΊΠ»Π°Π΄ΡΠ²Π°ΡΡ Π²Π΄Π²ΠΎΠ΅ ΠΈΠ»ΠΈ Π²ΡΡΠΎΠ΅.
Π Π±ΡΠ΄ΠΆΠ΅ΡΠ½ΡΡ ΠΌΠΎΠ΄Π΅Π»ΡΡ Ρ ΠΎΠ»ΠΎΠ΄ΠΈΠ»ΡΠ½ΠΈΠΊΠΎΠ² ΡΡΡΠ°Π½Π°Π²Π»ΠΈΠ²Π°ΡΡΡΡ ΠΏΠ»Π°ΡΡΠΈΠΊΠΎΠ²ΡΠ΅ ΠΏΠΎΠ»ΠΊΠΈ. ΠΠ½ΠΈ Π΄ΠΎΡΡΠ°ΡΠΎΡΠ½ΠΎ ΡΡΡΠΎΠΉΡΠΈΠ²Ρ, Π»Π΅Π³ΠΊΠΎ ΠΌΠΎΡΡΡΡ, ΠΎΠ΄Π½Π°ΠΊΠΎ Ρ Π³ΠΎΠ΄Π°ΠΌΠΈ ΠΌΠΎΠ³ΡΡ ΠΏΠΎΠΆΠ΅Π»ΡΠ΅ΡΡ ΠΈ ΡΡΡΠ°ΡΠΈΡΡ ΠΏΡΠΎΡΠ½ΠΎΡΡΡ. ΠΡΠΎΠΌΠ΅ ΡΠΎΠ³ΠΎ, ΠΏΠ»Π°ΡΡΠΈΠΊ — Π½Π΅ ΡΠ°ΠΌΡΠΉ ΡΠΊΠΎΠ»ΠΎΠ³ΠΈΡΠ΅ΡΠΊΠΈ Π±Π΅Π·ΠΎΠΏΠ°ΡΠ½ΡΠΉ ΠΌΠ°ΡΠ΅ΡΠΈΠ°Π».
ΠΠΏΡΠΈΠΌΠ°Π»ΡΠ½ΡΠΌ Π²ΡΠ±ΠΎΡΠΎΠΌ ΡΠ²Π»ΡΠ΅ΡΡΡ ΡΡΡΡΠΎΠΉΡΡΠ²ΠΎ ΡΠΎ ΡΡΠ΅ΠΊΠ»ΡΠ½Π½ΡΠΌΠΈ ΠΏΠΎΠ»ΠΊΠ°ΠΌΠΈ. ΠΠ°ΠΊΠ°Π»Π΅Π½Π½ΠΎΠ΅ ΡΡΠ΅ΠΊΠ»ΠΎ ΠΎΡΠ»ΠΈΡΠ°Π΅ΡΡΡ Π²ΡΡΠΎΠΊΠΎΠΉ ΡΠ΅ΡΠΌΠΎΡΡΠΎΠΉΠΊΠΎΡΡΡΡ, ΡΡΡΠΎΠΉΡΠΈΠ²ΠΎΡΡΡΡ ΠΊ Ρ ΠΈΠΌΠΈΡΠ΅ΡΠΊΠΈΠΌ ΠΈ ΠΌΠ΅Ρ Π°Π½ΠΈΡΠ΅ΡΠΊΠΈΠΌ Π²ΠΎΠ·Π΄Π΅ΠΉΡΡΠ²ΠΈΡΠΌ. Π‘ΠΎΠ²ΡΠ΅ΠΌΠ΅Π½Π½ΡΠ΅ ΠΏΠΎΠ»ΠΊΠΈ ΠΈΠ· ΡΠ΄Π°ΡΠΎΠΏΡΠΎΡΠ½ΠΎΠ³ΠΎ ΡΡΠ΅ΠΊΠ»Π° ΡΠΏΠΎΡΠΎΠ±Π½Ρ Π²ΡΠ΄Π΅ΡΠΆΠ°ΡΡ Π²Π΅Ρ Π΄ΠΎ 25 ΠΊΠ³, ΠΎΠ½ΠΈ Π½Π΅ ΠΏΠΎΡΡΡΠ°Π΄Π°ΡΡ ΠΏΡΠΈ ΡΠ°Π·ΠΌΠ΅ΡΠ΅Π½ΠΈΠΈ Π½Π° Π½ΠΈΡ ΠΌΠ΅ΡΠ°Π»Π»ΠΈΡΠ΅ΡΠΊΠΎΠΉ ΠΏΠΎΡΡΠ΄Ρ. ΠΠ° Π½ΠΈΠΌΠΈ Π»Π΅Π³ΠΊΠΎ ΡΡ Π°ΠΆΠΈΠ²Π°ΡΡ, Π° ΡΠΎ Π²ΡΠ΅ΠΌΠ΅Π½Π΅ΠΌ ΡΡΠ΅ΠΊΠ»ΠΎ Π½Π΅ ΠΆΠ΅Π»ΡΠ΅Π΅Ρ ΠΈ Π½Π΅ ΠΏΠΎΡΡΠΈΡΡΡ. Π‘ΡΠ΅ΠΊΠ»ΡΠ½Π½ΡΠ΅ ΠΏΠΎΠ»ΠΊΠΈ ΡΠ°ΡΡΠΎ ΠΈΠΌΠ΅ΡΡ ΠΏΠ»Π°ΡΡΠΈΠΊΠΎΠ²ΡΡ ΠΈΠ»ΠΈ ΠΌΠ΅ΡΠ°Π»Π»ΠΈΡΠ΅ΡΠΊΡΡ ΠΎΠΊΠ°Π½ΡΠΎΠ²ΠΊΡ, Π·Π°ΡΠΈΡΠ°ΡΡΡΡ ΠΎΡ ΠΏΡΠΎΠ»ΠΈΡΠΎΠΉ ΠΆΠΈΠ΄ΠΊΠΎΡΡΠΈ.
ΠΠ΅ΡΠ°Π»Π»ΠΈΡΠ΅ΡΠΊΠΈΠ΅ ΠΏΠΎΠ»ΠΊΠΈ — ΠΊΠ°ΠΊ ΠΏΡΠ°Π²ΠΈΠ»ΠΎ, ΡΠ΅ΡΠ΅ΡΡΠ°ΡΡΠ΅ — ΡΠ΄ΠΎΠ±Π½ΡΠ΅ ΠΈ ΠΏΡΠΎΡΠ½ΡΠ΅, ΠΎΠ΄Π½Π°ΠΊΠΎ ΠΏΠΎΠ΄Ρ ΠΎΠ΄ΡΡ Π΄Π»Ρ ΡΠ°Π·ΠΌΠ΅ΡΠ΅Π½ΠΈΡ Ρ Π½Π΅ Π²ΡΠ΅Ρ Π²ΠΈΠ΄ΠΎΠ² ΠΏΡΠΎΠ΄ΡΠΊΡΠΎΠ². ΠΡΠΎΠΌΠ΅ ΡΠΎΠ³ΠΎ, ΡΠ΅ΡΠ΅ΡΠΊΠΈ Π½Π°ΠΌΠ½ΠΎΠ³ΠΎ ΡΠ»ΠΎΠΆΠ½Π΅Π΅ Π² ΡΡ ΠΎΠ΄Π΅.

Π―ΡΠΈΠΊΠΈ Π΄Π»Ρ ΠΎΠ²ΠΎΡΠ΅ΠΉ ΠΈ ΡΡΡΠΊΡΠΎΠ² ΠΌΠΎΠΆΠ½ΠΎ Π½Π°ΠΉΡΠΈ Π² Π»ΡΠ±ΠΎΠΉ Ρ ΠΎΠ»ΠΎΠ΄ΠΈΠ»ΡΠ½ΠΎΠΉ ΠΊΠ°ΠΌΠ΅ΡΠ΅, ΠΊΠ°ΠΊΠΎΠ³ΠΎ ΡΠ°Π·ΠΌΠ΅ΡΠ° Π½ΠΈ Π±ΡΠ» Π±Ρ Π²Π°Ρ Ρ ΠΎΠ»ΠΎΠ΄ΠΈΠ»ΡΠ½ΠΈΠΊ — ΠΎΡ Π±ΠΎΠ»ΡΡΠΎΠ³ΠΎ ΡΡΡΡΠΎΠΉΡΡΠ²Π° Side-by-Side Π΄ΠΎ ΡΡΠ°Π½Π΄Π°ΡΡΠ½ΠΎΠΉ Π΄Π²ΡΡ ΠΊΠ°ΠΌΠ΅ΡΠ½ΠΎΠΉ ΠΌΠΎΠ΄Π΅Π»ΠΈ. Π ΠΏΡΠΎΡΡΠ΅ΠΉΡΠ΅ΠΌ Π²Π°ΡΠΈΠ°Π½ΡΠ΅ ΠΎΠ½ΠΈ ΠΏΡΠ΅Π΄ΡΡΠ°Π²Π»ΡΡΡ ΡΠΎΠ±ΠΎΠΉ ΠΎΠ±ΡΡΠ½ΡΠ΅ Π²ΡΠ΄Π²ΠΈΠΆΠ½ΡΠ΅ ΡΡΠΈΠΊΠΈ ΠΈΠ· ΠΏΠ»Π°ΡΡΠΈΠΊΠ° Π² Π½ΠΈΠΆΠ½Π΅ΠΉ ΡΠ°ΡΡΠΈ ΠΊΠ°ΠΌΠ΅ΡΡ.
ΠΠΌΠ΅ΡΡΠΈΡΠ΅Π»ΡΠ½ΡΠ΅ ΠΊΠΎΠ½ΡΠ΅ΠΉΠ½Π΅ΡΡ ΠΏΠΎΠ·Π²ΠΎΠ»ΡΡΡ Ρ ΡΠ°Π½ΠΈΡΡ Π΄ΠΎΡΡΠ°ΡΠΎΡΠ½ΠΎΠ΅ ΠΊΠΎΠ»ΠΈΡΠ΅ΡΡΠ²ΠΎ ΠΎΠ²ΠΎΡΠ΅ΠΉ ΠΈ ΡΡΡΠΊΡΠΎΠ². ΠΠ»Ρ Π±ΠΎΠ»Π΅Π΅ Π΄Π»ΠΈΡΠ΅Π»ΡΠ½ΠΎΠ³ΠΎ Ρ ΡΠ°Π½Π΅Π½ΠΈΡ ΠΈ ΠΏΠΎΠ΄Π΄Π΅ΡΠΆΠ°Π½ΠΈΡ ΡΠ²Π΅ΠΆΠ΅ΡΡΠΈ ΠΎΠ²ΠΎΡΠ΅ΠΉ ΠΈ ΡΡΡΠΊΡΠΎΠ² ΡΠ°Π·ΡΠ°Π±ΠΎΡΠ°Π½Ρ ΡΠΏΠ΅ΡΠΈΠ°Π»ΡΠ½ΡΠ΅ ΡΠΈΡΡΠ΅ΠΌΡ Ρ ΡΠ°Π½Π΅Π½ΠΈΡ. Π‘ΡΠ΅Π΄ΠΈ Π½ΠΈΡ , Π½Π°ΠΏΡΠΈΠΌΠ΅Ρ, Π·ΠΎΠ½Π° ΡΠ²Π΅ΠΆΠ΅ΡΡΠΈ Ρ ΡΠ²Π΅Π»ΠΈΡΠ΅Π½Π½ΠΎΠΉ Π²Π»Π°ΠΆΠ½ΠΎΡΡΡΡ Π΄ΠΎ 85% ΠΈ ΡΠ΅ΠΌΠΏΠ΅ΡΠ°ΡΡΡΠΎΠΉ ΠΎΠΊΠΎΠ»ΠΎ 0 Π³ΡΠ°Π΄ΡΡΠΎΠ². ΠΡΠΎ Π³Π΅ΡΠΌΠ΅ΡΠΈΡΠ½ΠΎ Π·Π°ΠΊΡΡΠ²Π°ΡΡΠΈΠΉΡΡ ΡΡΠΈΠΊ, ΡΠ°ΡΡΠΎ Π½Π° Π²ΡΠ΄Π²ΠΈΠΆΠ½ΡΡ ΡΠΎΠ»ΠΈΠΊΠ°Ρ ΠΈΠ»ΠΈ Π½Π°ΠΏΡΠ°Π²Π»ΡΡΡΠΈΡ , Π² ΠΊΠΎΡΠΎΡΠΎΠΌ ΠΈΠΌΠ΅Π΅ΡΡΡ ΡΠΏΠ΅ΡΠΈΠ°Π»ΡΠ½ΠΎΠ΅ Π·Π°Π΄Π²ΠΈΠΆΠΊΠ°, ΠΏΠΎΠ·Π²ΠΎΠ»ΡΡΡΠ°Ρ ΡΠ΅Π³ΡΠ»ΠΈΡΠΎΠ²Π°ΡΡ Π²Π»Π°ΠΆΠ½ΠΎΡΡΡ. ΠΠ°ΠΊ ΠΈΠ·Π²Π΅ΡΡΠ½ΠΎ, ΠΏΡΠΈ Π±ΠΎΠ»Π΅Π΅ Π²ΡΡΠΎΠΊΠΎΠΉ Π²Π»Π°ΠΆΠ½ΠΎΡΡΠΈ ΠΏΡΠΎΠ΄ΡΠΊΡΡ Ρ Π±ΠΎΠ»ΡΡΠΈΠΌ ΡΠΎΠ΄Π΅ΡΠΆΠ°Π½ΠΈΠ΅ΠΌ Π²ΠΎΠ΄Ρ Π΄ΠΎΠ»ΡΡΠ΅ ΠΎΡΡΠ°ΡΡΡΡ ΡΠ²Π΅ΠΆΠΈΠΌΠΈ.
ΠΡΡΠΏΠ½ΡΠ΅ ΠΏΡΠΎΠΈΠ·Π²ΠΎΠ΄ΠΈΡΠ΅Π»ΠΈ ΠΎΡΠ½Π°ΡΠ°ΡΡ ΡΠ²ΠΎΠΈ Ρ ΠΎΠ»ΠΎΠ΄ΠΈΠ»ΡΠ½ΠΈΠΊΠΈ ΡΠΏΠ΅ΡΠΈΠ°Π»ΡΠ½ΡΠΌΠΈ ΠΎΡΠ΄Π΅Π»Π΅Π½ΠΈΡΠΌΠΈ Π΄Π»Ρ ΠΎΠ²ΠΎΡΠ΅ΠΉ ΠΈ ΡΡΡΠΊΡΠΎΠ². Π’Π°ΠΊ Π² ΡΠ»ΠΎΠ²Π΅Π½ΡΠΊΠΈΡ Ρ ΠΎΠ»ΠΎΠ΄ΠΈΠ»ΡΠ½ΠΈΠΊΠ°Ρ Gorenje ΠΈΠΌΠ΅Π΅ΡΡΡ ΡΠΏΠ΅ΡΠΈΠ°Π»ΡΠ½ΠΎΠ΅ ΠΎΡΠ΄Π΅Π»Π΅Π½ΠΈΠ΅ Ρ ΡΡΠ½ΠΊΡΠΈΠ΅ΠΉ ΠΏΠΎΠ³Π»ΠΎΡΠ΅Π½ΠΈΡ ΡΡΠΈΠ»Π΅Π½Π° — Π³Π°Π·Π°, Π²ΡΠ΄Π΅Π»ΡΡΡΠ΅Π³ΠΎΡΡ ΠΏΡΠΈ ΡΠΎΠ·ΡΠ΅Π²Π°Π½ΠΈΠΈ ΠΎΠ²ΠΎΡΠ΅ΠΉ ΠΈ ΡΡΡΠΊΡΠΎΠ². Π ΡΠ°ΠΊΠΎΠΌ ΠΎΡΠ΄Π΅Π»Π΅Π½ΠΈΠΈ ΠΎΠ½ΠΈ Π΄ΠΎΠ»ΡΡΠ΅ ΡΠΎΡ ΡΠ°Π½ΡΡΡ ΡΠ²Π΅ΠΆΠΈΠΉ Π²ΠΈΠ΄, Π½Π΅ ΠΏΠΎΡΡΡΡΡΡ ΠΈ Π½Π΅ ΡΠ²ΡΠ΄Π°ΡΡ.

ΠΠΎΠ΄ΡΡΠ°Π²ΠΊΠ° Π² Ρ ΠΎΠ»ΠΎΠ΄ΠΈΠ»ΡΠ½ΠΈΠΊΠ΅ — ΡΡΠΎ ΡΠ»Π΅ΠΌΠ΅Π½Ρ Π²Π½ΡΡΡΠ΅Π½Π½Π΅Π³ΠΎ Π½Π°ΠΏΠΎΠ»Π½Π΅Π½ΠΈΡ, ΠΊΠΎΡΠΎΡΡΠΉ ΠΏΠΎΠ·Π²ΠΎΠ»ΡΠ΅Ρ Ρ ΡΠ°Π½ΠΈΡΡ ΡΠΉΡΠ° ΠΌΠ°ΠΊΡΠΈΠΌΠ°Π»ΡΠ½ΠΎ Π±Π΅Π·ΠΎΠΏΠ°ΡΠ½ΠΎ ΠΈ ΡΠ΄ΠΎΠ±Π½ΠΎ. ΠΠ°ΠΊ ΠΏΡΠ°Π²ΠΈΠ»ΠΎ, ΠΏΠΎΠ΄ΠΎΠ±Π½ΡΠ΅ ΠΏΠΎΠ΄ΡΡΠ°Π²ΠΊΠΈ ΠΈΠ·Π³ΠΎΡΠ°Π²Π»ΠΈΠ²Π°ΡΡΡΡ ΠΈΠ· ΠΏΡΠΎΠ·ΡΠ°ΡΠ½ΠΎΠ³ΠΎ ΠΈΠ»ΠΈ ΡΠ²Π΅ΡΠ½ΠΎΠ³ΠΎ ΡΠΊΠΎΠ»ΠΎΠ³ΠΈΡΠ΅ΡΠΊΠΈ Π±Π΅Π·ΠΎΠΏΠ°ΡΠ½ΠΎΠ³ΠΎ ΠΏΠ»Π°ΡΡΠΈΠΊΠ° ΠΈ ΡΠ°Π·ΠΌΠ΅ΡΠ°ΡΡΡΡ Π½Π° Π΄Π²Π΅ΡΡΠ°Ρ Ρ ΠΎΠ»ΠΎΠ΄ΠΈΠ»ΡΠ½ΠΈΠΊΠ°.
Π‘ΡΡΠ΅ΡΡΠ²ΡΠ΅Ρ ΠΌΠ½ΠΎΠΆΠ΅ΡΡΠ²ΠΎ ΡΠ°Π·Π½ΠΎΠ²ΠΈΠ΄Π½ΠΎΡΡΠ΅ΠΉ ΠΏΠΎΠ΄ΠΎΠ±Π½ΡΡ ΠΏΡΠΈΡΠΏΠΎΡΠΎΠ±Π»Π΅Π½ΠΈΠΉ. ΠΡΠΎΡΡΠ΅ΠΉΡΠ°Ρ ΠΏΡΠ΅Π΄ΡΡΠ°Π²Π»ΡΠ΅Ρ ΡΠΎΠ±ΠΎΠΉ Π½Π΅Π±ΠΎΠ»ΡΡΠΎΠΉ ΠΏΠ»Π°ΡΡΠΈΠΊΠΎΠ²ΡΠΉ ΡΠ»Π΅ΠΌΠ΅Π½Ρ Ρ ΡΠ³Π»ΡΠ±Π»Π΅Π½ΠΈΡΠΌΠΈ, ΡΠ°ΡΡΡΠΈΡΠ°Π½Π½ΡΠΉ Π½Π° 10 ΡΠΈΡ: ΠΈΠ½ΠΎΠ³Π΄Π° ΠΏΠΎΠ΄ΠΎΠ±Π½ΡΠ΅ ΠΏΠΎΠ΄ΡΡΠ°Π²ΠΊΠΈ ΡΠ½Π°Π±ΠΆΠ°ΡΡΡΡ Π·Π°ΠΊΡΡΠ²Π°ΡΡΠΈΠΌΠΈΡΡ ΠΊΡΡΡΠΊΠ°ΠΌΠΈ. ΠΠΎΠ΄ΡΡΠ°Π²ΠΊΠ° ΠΈΠΌΠ΅Π΅Ρ ΡΡΠ°Π½Π΄Π°ΡΡΠ½ΡΡ Π³Π»ΡΠ±ΠΈΠ½Ρ ΠΈ ΠΌΠΎΠΆΠ΅Ρ Π±ΡΡΡ ΡΡΡΠ°Π½ΠΎΠ²Π»Π΅Π½Π° Π½Π° Π»ΡΠ±ΠΎΠΉ ΡΠΈΠΏΠΎΠ²ΠΎΠΉ ΠΏΠΎΠ»ΠΊΠ΅ Π½Π° Π΄Π²Π΅ΡΡΠ΅. Π ΡΡΠ΄Π΅ ΠΌΠΎΠ΄Π΅Π»Π΅ΠΉ ΠΏΠΎΠ΄ΡΡΠ°Π²ΠΊΠ° ΡΠΆΠ΅ ΠΈΠ½ΡΠ΅Π³ΡΠΈΡΠΎΠ²Π°Π½Π° Π² ΠΏΠΎΠ»ΠΊΡ, ΠΊΠ°ΠΊ ΠΏΡΠ°Π²ΠΈΠ»ΠΎ, ΡΠ°ΠΊΠΆΠ΅ Ρ Π·Π°ΠΊΡΡΠ²Π°ΡΡΠ΅ΠΉΡΡ ΠΊΡΡΡΠΊΠΎΠΉ. ΠΡΠΎΠΌΠ΅ ΠΏΠΎΠ΄ΡΡΠ°Π²ΠΎΠΊ Π½Π° 10 ΡΠΈΡ, ΠΏΠΎΠΏΡΠ»ΡΡΠ½ΠΎΡΡΡΡ ΠΏΠΎΠ»ΡΠ·ΡΡΡΡΡ ΠΏΠΎΠ΄ΡΡΠ°Π²ΠΊΠΈ Π½Π° 6 ΡΡΡΠΊ, Π²ΡΡΡΠ΅ΡΠ°ΡΡΡΡ ΡΠ°ΠΊΠΆΠ΅ ΡΠ»Π΅ΠΌΠ΅Π½ΡΡ, ΠΏΠΎΠ·Π²ΠΎΠ»ΡΡΡΠΈΠ΅ ΡΠ°Π·ΠΌΠ΅ΡΡΠΈΡΡ 7 ΠΈΠ»ΠΈ 20 ΡΠΈΡ.
ΠΠ½ΡΠ΅ΡΠ΅ΡΠ½Ρ ΡΠ΅Π³ΡΠ»ΠΈΡΡΠ΅ΠΌΡΠ΅ ΠΏΠΎΠ΄ΡΡΠ°Π²ΠΊΠΈ ΠΈΠ· 2 ΡΠ°ΡΡΠ΅ΠΉ, ΠΎΠ΄Π½Π° ΠΈΠ· ΠΊΠΎΡΠΎΡΡΡ Π·Π°Π΄Π²ΠΈΠ³Π°Π΅ΡΡΡ Π² Π΄ΡΡΠ³ΡΡ. Π’Π°ΠΊΠΈΠΌ ΠΎΠ±ΡΠ°Π·ΠΎΠΌ, Π² Π½ΠΈΡ ΠΌΠΎΠΆΠ½ΠΎ Ρ ΡΠ°Π½ΠΈΡΡ Π»ΠΈΠ±ΠΎ 6, Π»ΠΈΠ±ΠΎ 12 ΡΠΈΡ. Π’Π°ΠΊΠΈΠ΅ ΠΏΠΎΠ΄ΡΡΠ°Π²ΠΊΠΈ Π²ΡΠΏΡΡΠΊΠ°Π΅Ρ, Π½Π°ΠΏΡΠΈΠΌΠ΅Ρ, ΠΈΠ·Π²Π΅ΡΡΠ½Π°Ρ ΡΠΈΡΠΌΠ° Bosch. Π ΡΡΠ΄Π΅ Ρ ΠΎΠ»ΠΎΠ΄ΠΈΠ»ΡΠ½ΠΈΠΊΠΎΠ² ΠΈΠΌΠ΅Π΅ΡΡΡ Π²ΠΎΠ·ΠΌΠΎΠΆΠ½ΠΎΡΡΡ ΡΡΡΠ°Π½ΠΎΠ²ΠΊΠΈ ΠΌΠ½ΠΎΠ³ΠΎΡΡΠΎΠ²Π½Π΅Π²ΡΡ ΠΊΠΎΠ½ΡΠ΅ΠΉΠ½Π΅ΡΠΎΠ², ΡΠ°ΡΡΡΠΈΡΠ°Π½Π½ΡΡ Π½Π° ΡΠ°Π·ΠΌΠ΅ΡΠ΅Π½ΠΈΠ΅ 20 ΠΈ 30 ΡΠΈΡ ΠΎΠ΄Π½ΠΎΠ²ΡΠ΅ΠΌΠ΅Π½Π½ΠΎ.


ΠΡΠ΅Π΄Π½Π°Π·Π½Π°ΡΠ΅Π½Π° Π΄Π»Ρ Ρ ΡΠ°Π½Π΅Π½ΠΈΡ ΠΎΠ²ΠΎΡΠ΅ΠΉ, Π·Π΅Π»Π΅Π½ΠΈ, ΡΡΡΠΊΡΠΎΠ², ΠΊΠΎΡΠΎΡΡΠΌ ΠΏΠΎΠ²ΡΠ΅Π΄ΠΈΡ ΠΌΠΈΠ½ΡΡΠΎΠ²Π°Ρ ΡΠ΅ΠΌΠΏΠ΅ΡΠ°ΡΡΡΠ°. ΠΠ»Π°Π³ΠΎΠ΄Π°ΡΡ ΡΡΠΎΠ²Π½Ρ 1-2 Π³ΡΠ°Π΄ΡΡΠ° ΡΠ°ΠΊΠΈΠ΅ ΠΏΡΠΎΠ΄ΡΠΊΡΡ Π΄ΠΎΠ»ΡΡΠ΅ ΡΠΎΡ ΡΠ°Π½ΡΡΡ ΡΠ²ΠΎΠΈ ΡΠ²ΠΎΠΉΡΡΠ²Π°, Π½Π΅ Π²ΡΠ½ΡΡ ΠΈ Π½Π΅ Π²ΡΡΡΡ Π°ΡΡ.
Π’Π°ΠΊΠΆΠ΅ Π² ΡΡΠΈΡ ΡΡΠΈΠΊΠ°Ρ ΠΌΠΎΠΆΠ½ΠΎ Ρ ΡΠ°Π½ΠΈΡΡ ΠΎΡ Π»Π°ΠΆΠ΄Π΅Π½Π½ΠΎΠ΅ ΡΠ²Π΅ΠΆΠ΅Π΅ ΠΌΡΡΠΎ ΠΈΠ»ΠΈ ΡΡΠ±Ρ (ΠΎΡ Π½Π΅ΡΠΊΠΎΠ»ΡΠΊΠΈΡ ΡΠ°ΡΠΎΠ² Π΄ΠΎ ΠΏΠ°ΡΡ Π΄Π½Π΅ΠΉ) ΠΏΠ΅ΡΠ΅Π΄ ΠΏΡΠΈΠ³ΠΎΡΠΎΠ²Π»Π΅Π½ΠΈΠ΅ΠΌ.
ΠΠΎΡΠΎΠ·ΠΈΠ»ΡΠ½Π°Ρ ΠΊΠ°ΠΌΠ΅ΡΠ°

ΠΡΠΎΠΈΠ·Π²ΠΎΠ΄ΠΈΡΠ΅Π»ΡΠ½ΠΎΡΡΡ ΠΈΠ»ΠΈ ΠΌΠΎΡΠ½ΠΎΡΡΡ Π·Π°ΠΌΠΎΡΠ°ΠΆΠΈΠ²Π°Π½ΠΈΡ Π² Π±ΡΡΠΎΠ²ΡΡ Ρ ΠΎΠ»ΠΎΠ΄ΠΈΠ»ΡΠ½ΠΈΠΊΠ°Ρ ΡΠΊΠ°Π·ΡΠ²Π°Π΅Ρ, ΠΊΠ°ΠΊΠΎΠ΅ ΠΊΠΎΠ»ΠΈΡΠ΅ΡΡΠ²ΠΎ ΡΠ²Π΅ΠΆΠΈΡ ΠΏΡΠΎΠ΄ΡΠΊΡΠΎΠ² ΡΠΏΠΎΡΠΎΠ±Π΅Π½ Π·Π°ΠΌΠΎΡΠΎΠ·ΠΈΡΡ Π²Π°Ρ Π°Π³ΡΠ΅Π³Π°Ρ Π΄ΠΎ ΡΠ΅ΠΌΠΏΠ΅ΡΠ°ΡΡΡΡ −18 Π³ΡΠ°Π΄ΡΡΠΎΠ² Π·Π° 24 ΡΠ°ΡΠ°. ΠΠΎΠΊΠ°Π·Π°ΡΠ΅Π»Ρ ΠΏΡΠΈΠΌΠ΅Π½ΡΠ΅ΡΡΡ Π΄Π»Ρ ΡΡΡΡΠΎΠΉΡΡΠ² Ρ ΡΡΠ΅Ρ - ΠΈ ΡΠ΅ΡΡΡΠ΅Ρ Π·Π²Π΅Π·Π΄ΠΎΡΠ½ΠΎΠΉ ΠΌΠΎΡΠΎΠ·ΠΈΠ»ΡΠ½ΠΎΠΉ ΠΊΠ°ΠΌΠ΅ΡΠΎΠΉ.
ΠΠ±ΡΠ°ΡΠ°ΡΡ ΠΎΡΠΎΠ±ΠΎΠ΅ Π²Π½ΠΈΠΌΠ°Π½ΠΈΠ΅ Π½Π° ΡΡΠΎΡ ΠΏΠ°ΡΠ°ΠΌΠ΅ΡΡ ΡΠ»Π΅Π΄ΡΠ΅Ρ, Π΅ΡΠ»ΠΈ Ρ ΠΎΠ»ΠΎΠ΄ΠΈΠ»ΡΠ½ΠΈΠΊ ΠΏΠ»Π°Π½ΠΈΡΡΠ΅ΡΡΡ ΠΈΡΠΏΠΎΠ»ΡΠ·ΠΎΠ²Π°ΡΡ Π΄Π»Ρ ΡΠΎΠ·Π΄Π°Π½ΠΈΡ ΠΈ Π΄ΠΎΠ»Π³ΠΎΠ²ΡΠ΅ΠΌΠ΅Π½Π½ΠΎΠ³ΠΎ Ρ ΡΠ°Π½Π΅Π½ΠΈΡ Π±ΠΎΠ»ΡΡΠΎΠ³ΠΎ Π·Π°ΠΏΠ°ΡΠ° ΠΏΡΠΎΠ΄ΡΠΊΡΠΎΠ². ΠΡΠΈ ΡΡΠΎΠΌ Π½Π΅ΠΎΠ±Ρ ΠΎΠ΄ΠΈΠΌΠΎ ΠΏΠΎΠΌΠ½ΠΈΡΡ, ΡΡΠΎ ΡΡΠΎ ΡΠ²Π΅Π»ΠΈΡΠ΅Π½ΠΈΠ΅ ΠΏΡΠΎΠΈΠ·Π²ΠΎΠ΄ΠΈΡΠ΅Π»ΡΠ½ΠΎΡΡΠΈ Π·Π°ΠΌΠΎΡΠ°ΠΆΠΈΠ²Π°Π½ΠΈΡ ΠΏΠΎΠ²Π»Π΅ΡΠ΅Ρ Π·Π° ΡΠΎΠ±ΠΎΠΉ Π±ΠΎΠ»Π΅Π΅ Π²ΡΡΠΎΠΊΠΎΠ΅ ΠΏΠΎΡΡΠ΅Π±Π»Π΅Π½ΠΈΠ΅ ΡΠ»Π΅ΠΊΡΡΠΎΡΠ½Π΅ΡΠ³ΠΈΠΈ. Π‘ΡΠΈΡΠ°Π΅ΡΡΡ, ΡΡΠΎ Π΄Π»Ρ ΡΠ΅ΠΌΡΠΈ ΠΈΠ· 3-4 ΡΠ΅Π»ΠΎΠ²Π΅ΠΊ Π΄ΠΎΡΡΠ°ΡΠΎΡΠ½ΠΎ ΠΏΡΠΈΠΎΠ±ΡΠ΅ΡΡΠΈ Ρ ΠΎΠ»ΠΎΠ΄ΠΈΠ»ΡΠ½ΠΈΠΊ Ρ ΠΏΡΠΎΠΈΠ·Π²ΠΎΠ΄ΠΈΡΠ΅Π»ΡΠ½ΠΎΡΡΡΡ Π·Π°ΠΌΠΎΡΠ°ΠΆΠΈΠ²Π°Π½ΠΈΡ 10-15 ΠΊΠ³ Π² ΡΡΡΠΊΠΈ. ΠΠ»Ρ ΡΠ΅Ρ , ΠΊΡΠΎ Π½Π΅ Π½ΡΠΆΠ΄Π°Π΅ΡΡΡ Π² Π±ΠΎΠ»ΡΡΠΈΡ Π·Π°Π³ΠΎΡΠΎΠ²ΠΊΠ°Ρ , Π΄ΠΎΡΡΠ°ΡΠΎΡΠ½ΠΎ ΠΌΠΎΡΠ½ΠΎΡΡΠΈ Π·Π°ΠΌΠΎΡΠ°ΠΆΠΈΠ²Π°Π½ΠΈΡ ΡΠ°Π²Π½ΠΎΠΉ 3-5 ΠΊΠ³ Π² ΡΡΡΠΊΠΈ. ΠΡΠΎΡ ΠΏΠΎΠΊΠ°Π·Π°ΡΠ΅Π»Ρ, ΠΊΠ°ΠΊ ΠΏΡΠ°Π²ΠΈΠ»ΠΎ, Π·Π°Π²ΠΈΡΠΈΡ Π½Π°ΠΏΡΡΠΌΡΡ ΠΎΡ ΠΎΠ±ΡΠ΅ΠΌΠ° ΠΌΠΎΡΠΎΠ·ΠΈΠ»ΡΠ½ΠΎΠΉ ΠΊΠ°ΠΌΠ΅ΡΡ.
Π Π΅ΠΊΠΎΠΌΠ΅Π½Π΄ΡΠ΅ΡΡΡ Π½Π΅ ΠΏΠΎΠΌΠ΅ΡΠ°ΡΡ Π² ΠΌΠΎΡΠΎΠ·ΠΈΠ»ΡΠ½ΠΈΠΊ ΡΠ²Π΅ΠΆΠΈΠ΅ ΠΏΡΠΎΠ΄ΡΠΊΡΡ Π² ΠΊΠΎΠ»ΠΈΡΠ΅ΡΡΠ²Π΅, ΠΏΡΠ΅Π²ΡΡΠ°ΡΡΠ΅ΠΌ Π΄ΠΎΠΏΡΡΡΠΈΠΌΠΎΠ΅ Π·Π½Π°ΡΠ΅Π½ΠΈΠ΅, ΠΏΠΎΡΠΊΠΎΠ»ΡΠΊΡ ΡΡΠΎ ΠΌΠΎΠΆΠ΅Ρ ΠΏΡΠΈΠ²Π΅ΡΡΠΈ ΠΊ ΡΠ²Π΅Π»ΠΈΡΠ΅Π½ΠΈΡ Π½Π°Π³ΡΡΠ·ΠΊΠΈ Π½Π° ΠΊΠΎΠΌΠΏΡΠ΅ΡΡΠΎΡ. ΠΡΠΎΠΈΠ·Π²ΠΎΠ΄ΠΈΡΠ΅Π»ΡΠ½ΠΎΡΡΡ Π·Π°ΠΌΠΎΡΠ°ΠΆΠΈΠ²Π°Π½ΠΈΡ ΡΠΊΠ°Π·ΡΠ²Π°Π΅ΡΡΡ Π² ΡΡΠΊΠΎΠ²ΠΎΠ΄ΡΡΠ²Π΅ ΠΏΠΎΠ»ΡΠ·ΠΎΠ²Π°ΡΠ΅Π»Ρ ΠΈ Π½Π° ΠΈΠ½ΡΠΎΡΠΌΠ°ΡΠΈΠΎΠ½Π½ΠΎΠΉ ΡΠ°Π±Π»ΠΈΡΠΊΠ΅.

Π‘ΠΏΠΎΡΠΎΠ± ΡΠ°Π·ΠΌΠΎΡΠ°ΠΆΠΈΠ²Π°Π½ΠΈΡ ΠΌΠΎΡΠΎΠ·ΠΈΠ»ΡΠ½ΠΎΠΉ ΠΊΠ°ΠΌΠ΅ΡΡ — ΠΎΠ΄ΠΈΠ½ ΠΈΠ· Π²Π°ΠΆΠ½Π΅ΠΉΡΠΈΡ ΠΏΠΎΠΊΠ°Π·Π°ΡΠ΅Π»Π΅ΠΉ, Π½Π° ΠΊΠΎΡΠΎΡΡΠΉ ΠΏΠΎΠ»ΡΠ·ΠΎΠ²Π°ΡΠ΅Π»Ρ Π΄ΠΎΠ»ΠΆΠ΅Π½ ΠΎΠ±ΡΠ°ΡΠ°ΡΡ Π²Π½ΠΈΠΌΠ°Π½ΠΈΠ΅ ΠΏΡΠΈ Π²ΡΠ±ΠΎΡΠ΅ ΡΠΎΠΉ ΠΈΠ»ΠΈ ΠΈΠ½ΠΎΠΉ ΠΌΠΎΠ΄Π΅Π»ΠΈ. ΠΡ Π½Π΅Π³ΠΎ Π·Π°Π²ΠΈΡΠΈΡ Π½Π΅ ΡΠΎΠ»ΡΠΊΠΎ Π»Π΅Π³ΠΊΠΎΡΡΡ Π² ΡΡ ΠΎΠ΄Π΅ Π·Π° Π²Π°ΡΠ΅ΠΉ ΠΌΠΎΡΠΎΠ·ΠΈΠ»ΡΠ½ΠΎΠΉ ΠΊΠ°ΠΌΠ΅ΡΠΎΠΉ, Π½ΠΎ ΠΈ ΡΡΠΎΠΈΠΌΠΎΡΡΡ ΡΡΡΡΠΎΠΉΡΡΠ²Π°.
ΠΡΠΎΡΡΠ΅ΠΉΡΠΈΠΉ ΡΠΏΠΎΡΠΎΠ± ΡΠ°Π·ΠΌΠΎΡΠ°ΠΆΠΈΠ²Π°Π½ΠΈΡ ΠΌΠΎΡΠΎΠ·ΠΈΠ»ΡΠ½ΠΎΠΉ ΠΊΠ°ΠΌΠ΅ΡΡ, ΠΊΠΎΡΠΎΡΡΠΉ ΠΏΡΠΈΠΌΠ΅Π½ΡΠ΅ΡΡΡ Π² Π½Π°ΠΈΠ±ΠΎΠ»Π΅Π΅ Π΄Π΅ΡΠ΅Π²ΡΡ ΠΌΠΎΠ΄Π΅Π»ΡΡ , — ΡΡΠΎ ΡΡΡΠ½ΠΎΠ΅ ΡΠ°Π·ΠΌΠΎΡΠ°ΠΆΠΈΠ²Π°Π½ΠΈΠ΅. Π‘Π»ΠΎΠΉ Π»ΡΠ΄Π° Π½Π° ΡΡΠ΅Π½ΠΊΠ°Ρ ΠΌΠΎΡΠΎΠ·ΠΈΠ»ΡΠ½ΠΈΠΊΠ° Π² ΡΠ°ΠΊΠΈΡ Ρ ΠΎΠ»ΠΎΠ΄ΠΈΠ»ΡΠ½ΠΈΠΊΠ°Ρ ΠΌΠΎΠΆΠ΅Ρ Π΄ΠΎΡΡΠΈΠ³Π°ΡΡ Π½Π΅ΡΠΊΠΎΠ»ΡΠΊΠΈΡ ΠΌΠΈΠ»Π»ΠΈΠΌΠ΅ΡΡΠΎΠ². Π§ΡΠΎΠ±Ρ ΡΠ°Π·ΠΌΠΎΡΠΎΠ·ΠΈΡΡ ΠΌΠΎΡΠΎΠ·ΠΈΠ»ΡΠ½ΡΡ ΠΊΠ°ΠΌΠ΅ΡΡ Π²ΡΡΡΠ½ΡΡ, Π½Π΅ΠΎΠ±Ρ ΠΎΠ΄ΠΈΠΌΠΎ ΠΎΡΠΊΠ»ΡΡΠΈΡΡ Ρ ΠΎΠ»ΠΎΠ΄ΠΈΠ»ΡΠ½ΠΈΠΊ ΠΎΡ ΡΠ»Π΅ΠΊΡΡΠΎΡΠ΅ΡΠΈ, ΠΎΡΡΠ°Π²ΠΈΡΡ Π΄Π²Π΅ΡΡΡ ΠΎΡΠΊΡΡΡΠΎΠΉ ΠΈ ΠΏΠΎΠ΄ΠΎΠΆΠ΄Π°ΡΡ, ΠΏΠΎΠΊΠ° Π»Π΅Π΄ ΡΠ°ΡΡΠ°Π΅Ρ. ΠΡΠΈ ΡΡΠΎΠΌ Π½ΡΠΆΠ½ΠΎ ΠΏΡΠΈΠ½ΡΡΡ ΠΌΠ΅ΡΡ, ΡΡΠΎΠ±Ρ ΡΠ°Π»Π°Ρ Π²ΠΎΠ΄Π° Π½Π΅ ΠΏΠΎΠΏΠ°Π»Π° Π½Π° ΠΏΠΎΠ». ΠΠ΅ ΡΠ΅ΠΊΠΎΠΌΠ΅Π½Π΄ΡΠ΅ΡΡΡ ΠΎΡΠΊΠ°Π»ΡΠ²Π°ΡΡ ΡΠ»ΠΎΠΉ Π»ΡΠ΄Π° Π½ΠΎΠΆΠΎΠΌ, ΠΏΡΡΠ°ΡΡΡΡ ΡΠ°ΡΡΠΎΠΏΠΈΡΡ Π΅Π³ΠΎ ΡΠ΅Π½ΠΎΠΌ ΠΈΠ»ΠΈ ΠΊΠ°ΠΊΠΈΠΌΠΈ-ΡΠΎ Π΄ΡΡΠ³ΠΈΠΌΠΈ Π½Π°Π³ΡΠ΅Π²Π°ΡΠ΅Π»ΡΠ½ΡΠΌΠΈ ΠΏΡΠΈΠ±ΠΎΡΠ°ΠΌΠΈ.
ΠΠ°ΠΈΠ±ΠΎΠ»ΡΡΠ΅ΠΉ ΠΏΠΎΠΏΡΠ»ΡΡΠ½ΠΎΡΡΡΡ ΠΏΠΎΠ»ΡΠ·ΡΡΡΡΡ ΠΌΠΎΡΠΎΠ·ΠΈΠ»ΡΠ½ΡΠ΅ ΠΊΠ°ΠΌΠ΅ΡΡ, ΠΎΡΠ½Π°ΡΠ΅Π½Π½ΡΠ΅ ΡΠΈΡΡΠ΅ΠΌΠΎΠΉ No Frost. ΠΡΠΎ ΡΠΈΡΡΠ΅ΠΌΠ° Π±ΡΠ»Π° ΡΠ°Π·ΡΠ°Π±ΠΎΡΠ°Π½Π° Π²ΠΏΠ΅ΡΠ²ΡΠ΅ Π΄Π»Ρ Ρ
ΠΎΠ»ΠΎΠ΄ΠΈΠ»ΡΠ½ΠΈΠΊΠΎΠ² Liebherr, Ρ Π΄ΡΡΠ³ΠΈΡ
ΠΏΡΠΎΠΈΠ·Π²ΠΎΠ΄ΠΈΡΠ΅Π»Π΅ΠΉ ΠΎΠ½Π° ΠΌΠΎΠΆΠ΅Ρ ΠΈΠΌΠ΅ΡΡ Π΄ΡΡΠ³ΠΈΠ΅ Π½Π°ΠΈΠΌΠ΅Π½ΠΎΠ²Π°Π½ΠΈΡ, Π½Π°ΠΏΡΠΈΠΌΠ΅Ρ Frost Free ΠΈ StopFrost. Π‘ΠΈΡΡΠ΅ΠΌΠ° No Frost ΠΌΠΎΠΆΠ΅Ρ Π΄Π΅ΠΉΡΡΠ²ΠΎΠ²Π°ΡΡ ΠΊΠ°ΠΊ Π΄Π»Ρ ΠΎΡΠ΄Π΅Π»ΡΠ½ΡΡ
ΠΊΠ°ΠΌΠ΅Ρ, Π½Π°ΠΏΡΠΈΠΌΠ΅Ρ, ΡΠΎΠ»ΡΠΊΠΎ ΠΌΠΎΡΠΎΠ·ΠΈΠ»ΡΠ½ΠΎΠΉ, ΡΠ°ΠΊ ΠΈ ΠΎΡ
Π²Π°ΡΡΠ²Π°ΡΡ ΠΏΠΎΠ»Π½ΠΎΡΡΡΡ ΠΎΠ±Π΅ ΠΊΠ°ΠΌΠ΅ΡΡ, Π²ΠΊΠ»ΡΡΠ°Ρ Ρ
ΠΎΠ»ΠΎΠ΄ΠΈΠ»ΡΠ½ΡΡ: Π² ΡΡΠΎΠΌ ΡΠ»ΡΡΠ°Π΅ ΠΎΠ½Π° ΠΌΠΎΠΆΠ΅Ρ ΠΈΠΌΠ΅ΡΡ Π½Π°Π·Π²Π°Π½ΠΈΠ΅ «ΠΠΎΠ»Π½ΡΠΉ No Frost». ΠΡΠ΅ΠΈΠΌΡΡΠ΅ΡΡΠ²ΠΎΠΌ ΡΡΠΎΠΉ ΡΠΈΡΡΠ΅ΠΌΡ ΡΠ²Π»ΡΠ΅ΡΡΡ ΠΏΠΎΠ»Π½ΠΎΠ΅ ΠΎΡΡΡΡΡΡΠ²ΠΈΠ΅ Π»ΡΠ΄Π° Π½Π° Π²Π½ΡΡΡΠ΅Π½Π½ΠΈΡ
ΡΡΠ΅Π½ΠΊΠ°Ρ
.
ΠΠ±ΡΠ°Π·ΠΎΠ²Π°Π½ΠΈΠ΅ Π»ΡΠ΄Π° ΠΏΡΠ΅Π΄ΠΎΡΠ²ΡΠ°ΡΠ°Π΅Ρ ΡΠΏΠ΅ΡΠΈΠ°Π»ΡΠ½ΡΠΉ Π²Π΅Π½ΡΠΈΠ»ΡΡΠΎΡ, ΠΊΠΎΡΠΎΡΡΠΉ Π·Π°ΡΡΠ°Π²Π»ΡΠ΅Ρ Ρ
ΠΎΠ»ΠΎΠ΄Π½ΡΠΉ Π²ΠΎΠ·Π΄ΡΡ
ΡΠΈΡΠΊΡΠ»ΠΈΡΠΎΠ²Π°ΡΡ ΠΏΠΎ Π²ΡΠ΅ΠΌΡ ΠΏΡΠΎΡΡΡΠ°Π½ΡΡΠ²Ρ ΠΌΠΎΡΠΎΠ·ΠΈΠ»ΡΠ½ΠΈΠΊΠ°. ΠΠ΅Π΄ ΠΏΡΠΈ ΡΡΠΎΠΌ ΠΎΡΠ΅Π΄Π°Π΅Ρ Π½Π΅ Π½Π° ΡΡΠ΅Π½ΠΊΠ°Ρ
, Π° Π²ΡΠ²ΠΎΠ΄ΠΈΡΡΡ Π·Π° ΠΏΡΠ΅Π΄Π΅Π»Ρ ΠΊΠ°ΠΌΠ΅ΡΡ ΠΈ ΠΎΡΡΠ°Π΅ΡΡΡ Π½Π° ΠΈΡΠΏΠ°ΡΠΈΡΠ΅Π»Π΅ Ρ
ΠΎΠ»ΠΎΠ΄ΠΈΠ»ΡΠ½ΠΈΠΊΠ°. ΠΠ΅Π½ΡΠΈΠ»ΡΡΠΎΡ ΡΠ°Π±ΠΎΡΠ°Π΅Ρ ΠΏΠΎΠΏΠ΅ΡΠ΅ΠΌΠ΅Π½Π½ΠΎ Ρ Π½Π°Π³ΡΠ΅Π²Π°ΡΠ΅Π»Π΅ΠΌ, Π±Π»Π°Π³ΠΎΠ΄Π°ΡΡ ΡΠ΅ΠΌΡ ΠΈΠ½Π΅ΠΉ Π½Π° ΠΈΡΠΏΠ°ΡΠΈΡΠ΅Π»Π΅ ΠΎΡΡΠ°ΠΈΠ²Π°Π΅Ρ, Π° ΡΠ°Π»Π°Ρ Π²ΠΎΠ΄Π° ΡΡΠ΅ΠΊΠ°Π΅Ρ Π² ΠΏΠΎΠ΄Π΄ΠΎΠ½, ΠΎΡΠΊΡΠ΄Π° ΠΈΡΠΏΠ°ΡΡΠ΅ΡΡΡ Π΅ΡΡΠ΅ΡΡΠ²Π΅Π½Π½ΡΠΌ ΡΠΏΠΎΡΠΎΠ±ΠΎΠΌ. ΠΠΎΠΏΡΠ΅ΠΊΠΈ ΡΠ°ΡΠΏΡΠΎΡΡΡΠ°Π½Π΅Π½Π½ΠΎΠΌΡ ΠΌΠ½Π΅Π½ΠΈΡ, Π² ΠΌΠΎΡΠΎΠ·ΠΈΠ»ΡΠ½ΠΈΠΊΠ΅ Ρ ΡΠΈΡΡΠ΅ΠΌΠΎΠΉ No Frost ΠΏΡΠΎΠ΄ΡΠΊΡΡ Π½Π΅ Π·Π°Π²Π΅ΡΡΠΈΠ²Π°ΡΡΡΡ ΠΈ Π½Π΅ ΡΠΎΡ
Π½ΡΡ, Π° ΡΠ½Π΅ΡΠ³ΠΎΠΏΠΎΡΡΠ΅Π±Π»Π΅Π½ΠΈΠ΅ Π½Π΅Π½Π°ΠΌΠ½ΠΎΠ³ΠΎ ΠΏΡΠ΅Π²ΡΡΠ°Π΅Ρ ΡΡΠΎΡ ΠΏΠΎΠΊΠ°Π·Π°ΡΠ΅Π»Ρ Π΄Π»Ρ ΠΎΠ±ΡΡΠ½ΡΡ
Ρ
ΠΎΠ»ΠΎΠ΄ΠΈΠ»ΡΠ½ΠΈΠΊΠΎΠ².
ΠΡΠ΅ ΠΎΠ΄Π½Π° ΡΠ°Π·ΡΠ°Π±ΠΎΡΠΊΠ° Liebherr — Π·Π°ΠΏΠ°ΡΠ΅Π½ΡΠΎΠ²Π°Π½Π½Π°Ρ ΡΠ΅Ρ Π½ΠΎΠ»ΠΎΠ³ΠΈΡ SmartFrost, ΠΎΠ±Π΅ΡΠΏΠ΅ΡΠΈΠ²Π°ΡΡΠ°Ρ ΠΎΡΡΡΡΡΡΠ²ΠΈΠ΅ Π»ΡΠ΄Π° Π½Π° ΡΡΠ΅Π½ΠΊΠ°Ρ Π±Π»Π°Π³ΠΎΠ΄Π°ΡΡ ΡΠΈΡΠΊΡΠ»ΡΡΠΈΠΈ ΠΈΡΠΏΠ°ΡΠΈΡΠ΅Π»Ρ ΠΏΠΎ ΡΠΏΠ΅ΡΠΈΠ°Π»ΡΠ½ΡΠΌ ΡΡΡΠ±ΠΊΠ°ΠΌ, ΡΠ°ΡΠΏΠΎΠ»ΠΎΠΆΠ΅Π½Π½ΡΠΌ ΠΏΠΎ ΠΏΠ΅ΡΠΈΠΌΠ΅ΡΡΡ ΠΌΠΎΡΠΎΠ·ΠΈΠ»ΡΠ½ΠΎΠΉ ΠΊΠ°ΠΌΠ΅ΡΡ. Π Π°Π·ΠΌΠΎΡΠ°ΠΆΠΈΠ²Π°Π½ΠΈΠ΅ ΠΌΠΎΡΠΎΠ·ΠΈΠ»ΡΠ½ΠΈΠΊΠ° ΠΏΡΠΈ ΡΡΠΎΠΌ ΡΠ²ΠΎΠ΄ΠΈΡΡΡ ΠΊ ΠΎΡΠΈΡΡΠΊΠ΅ ΡΡΠ΅Π½ΠΎΠΊ Π²Π»Π°ΠΆΠ½ΠΎΠΉ Π³ΡΠ±ΠΊΠΎΠΉ Ρ ΠΌΠΎΡΡΠΈΠΌ ΡΡΠ΅Π΄ΡΡΠ²ΠΎΠΌ ΠΏΠΎΡΠ»Π΅ ΠΎΡΠΊΠ»ΡΡΠ΅Π½ΠΈΡ ΡΠ»Π΅ΠΊΡΡΠΎΡΠ½Π΅ΡΠ³ΠΈΠΈ.

ΠΠΎΡΠΎΠΊ Π΄Π»Ρ ΠΏΡΠΈΠ³ΠΎΡΠΎΠ²Π»Π΅Π½ΠΈΡ ΠΊΡΠ±ΠΈΠΊΠΎΠ² Π»ΡΠ΄Π° ΠΈΠΌΠ΅Π΅ΡΡΡ Π²ΠΎ Π²ΡΠ΅Ρ ΠΌΠΎΡΠΎΠ·ΠΈΠ»ΡΠ½ΡΡ ΠΊΠ°ΠΌΠ΅ΡΠ°Ρ . Π ΠΏΡΠΎΡΡΠ΅ΠΉΡΠ΅ΠΌ ΡΠ»ΡΡΠ°Π΅ ΠΎΠ½ ΠΏΡΠ΅Π΄ΡΡΠ°Π²Π»ΡΠ΅Ρ ΡΠΎΠ±ΠΎΠΉ ΠΏΠ»Π°ΡΡΠΈΠΊΠΎΠ²ΡΠΉ ΠΊΠΎΠ½ΡΠ΅ΠΉΠ½Π΅Ρ, ΡΠ°Π·Π΄Π΅Π»Π΅Π½Π½ΡΠΉ Π½Π° ΠΊΠ²Π°Π΄ΡΠ°ΡΠ½ΡΠ΅ ΡΡΠ΅ΠΉΠΊΠΈ ΠΈ ΡΠ»ΡΠΆΠ°ΡΠΈΠΉ Π΄Π»Ρ ΠΏΠΎΠ»ΡΡΠ΅Π½ΠΈΡ ΠΊΠ»Π°ΡΡΠΈΡΠ΅ΡΠΊΠΈΡ ΠΊΡΠ±ΠΈΠΊΠΎΠ².
ΠΠΎΡΠΎΠΊ Π·Π°ΠΏΠΎΠ»Π½ΡΠ΅ΡΡΡ Π²ΠΎΠ΄ΠΎΠΉ Π΄ΠΎ ΠΌΠ°ΠΊΡΠΈΠΌΠ°Π»ΡΠ½ΠΎΠΉ ΠΎΡΠΌΠ΅ΡΠΊΠΈ, Π° Π·Π°ΡΠ΅ΠΌ Π°ΠΊΠΊΡΡΠ°ΡΠ½ΠΎ ΠΏΠΎΠΌΠ΅ΡΠ°Π΅ΡΡΡ Π² ΠΌΠΎΡΠΎΠ·ΠΈΠ»ΡΠ½ΡΡ ΠΊΠ°ΠΌΠ΅ΡΡ. ΠΡΠ΅ΠΌΡ Π·Π°ΠΌΠ΅ΡΠ·Π°Π½ΠΈΡ Π±ΡΠ΄Π΅Ρ Π·Π°Π²ΠΈΡΠ΅ΡΡ ΠΎΡ ΡΠ΅ΠΌΠΏΠ΅ΡΠ°ΡΡΡΡ, ΡΡΡΠ°Π½ΠΎΠ²Π»Π΅Π½Π½ΠΎΠΉ Π² ΠΌΠΎΡΠΎΠ·ΠΈΠ»ΡΠ½ΠΈΠΊΠ΅. ΠΠ΅Π΄ΠΎΡΡΠ°ΡΠΎΠΊ ΠΏΠΎΠ΄ΠΎΠ±Π½ΡΡ Π»ΠΎΡΠΊΠΎΠ² ΡΠΎΡΡΠΎΠΈΡ Π² ΡΠΎΠΌ, ΡΡΠΎ Π²ΠΎΠ΄Ρ Π»Π΅Π³ΠΊΠΎ ΡΠ°Π·Π»ΠΈΡΡ. ΠΡΠ΅ΠΈΠΌΡΡΠ΅ΡΡΠ²ΠΎΠΌ ΠΈΡ ΡΠ²Π»ΡΠ΅ΡΡΡ Π²ΠΎΠ·ΠΌΠΎΠΆΠ½ΠΎΡΡΡ Π·Π°ΠΌΠΎΡΠ°ΠΆΠΈΠ²Π°Π½ΠΈΡ Π½Π΅ ΡΠΎΠ»ΡΠΊΠΎ Π²ΠΎΠ΄Ρ, Π½ΠΎ ΠΈ Π΄ΡΡΠ³ΠΈΡ Π½Π°ΠΏΠΈΡΠΊΠΎΠ² — Π½Π°ΠΏΡΠΈΠΌΠ΅Ρ, ΡΠ°Ρ, ΡΡΠ°Π²ΡΠ½ΡΡ Π½Π°ΡΡΠΎΠ΅Π², ΡΠΎΠΊΠΎΠ² ΠΈ Π΄Π°ΠΆΠ΅ ΠΉΠΎΠ³ΡΡΡΠ°. Π ΡΡΠ΅ΠΉΠΊΠΈ Π»ΠΎΡΠΊΠ° ΠΌΠΎΠΆΠ½ΠΎ ΠΏΠΎΠΌΠ΅ΡΡΠΈΡΡ ΡΠ³ΠΎΠ΄Ρ, ΠΊΡΡΠΎΡΠΊΠΈ ΡΡΡΠΊΡΠΎΠ².
Π Ρ ΠΎΠ»ΠΎΠ΄ΠΈΠ»ΡΠ½ΠΈΠΊΠ°Ρ Π½Π΅ΠΊΠΎΡΠΎΡΡΡ ΠΌΠΎΠ΄Π΅Π»Π΅ΠΉ ΠΈΠΌΠ΅ΡΡΡΡ ΠΏΠΎΠ²ΠΎΡΠΎΡΠ½ΡΠ΅ Π»ΠΎΡΠΊΠΈ Π΄Π»Ρ Π»ΡΠ΄Π°. ΠΠ»Ρ Π·Π°ΠΏΠΎΠ»Π½Π΅Π½ΠΈΡ Π²ΠΎΠ΄ΠΎΠΉ ΠΈΡ Π½Π΅ΠΎΠ±Ρ ΠΎΠ΄ΠΈΠΌΠΎ Π²ΡΠ΄Π²ΠΈΠ½ΡΡΡ ΠΏΠΎ Π½Π°ΠΏΡΠ°Π²Π»ΡΡΡΠΈΠΌ, Π° Π΄Π»Ρ ΠΈΠ·Π²Π»Π΅ΡΠ΅Π½ΠΈΡ Π΄ΠΎΡΡΠ°ΡΠΎΡΠ½ΠΎ ΠΏΠΎΠ²Π΅ΡΠ½ΡΡΡ ΡΡΡΠΊΡ. ΠΡΠ±ΠΈΠΊΠΈ Π»ΡΠ΄Π° ΡΠ°ΠΌΠΈ Π²ΡΡΡΠΏΠ°ΡΡΡΡ Π² ΡΡΠΎΡΡΡΡ Π½ΠΈΠΆΠ΅ Π΅ΠΌΠΊΠΎΡΡΡ. ΠΡΠΎΠΌΠ΅ ΠΏΠ»Π°ΡΡΠΈΠΊΠΎΠ²ΡΡ , ΡΠΈΡΠΎΠΊΠΎΠ΅ ΡΠ°ΡΠΏΡΠΎΡΡΡΠ°Π½Π΅Π½ΠΈΠ΅ ΠΏΠΎΠ»ΡΡΠΈΠ»ΠΈ ΡΠΈΠ»ΠΈΠΊΠΎΠ½ΠΎΠ²ΡΠ΅ Π»ΠΎΡΠΊΠΈ Π΄Π»Ρ Π»ΡΠ΄Π°, ΠΈΠ· ΠΊΠΎΡΠΎΡΡΡ ΠΊΡΠ±ΠΈΠΊΠΈ ΠΌΠΎΠΆΠ½ΠΎ ΠΈΠ·Π²Π»Π΅ΡΡ ΡΠΊΡΡΡΠΈΠ²Π°Π½ΠΈΠ΅ΠΌ ΠΈΠ»ΠΈ ΠΏΠ΅ΡΠ΅Π³ΠΈΠ±Π°Π½ΠΈΠ΅ΠΌ. ΠΡΠΎΠΌΠ΅ ΠΊΠ»Π°ΡΡΠΈΡΠ΅ΡΠΊΠΈΡ ΠΊΠ²Π°Π΄ΡΠ°ΡΠ½ΡΡ ΡΡΠ΅Π΅ΠΊ, Π² Π»ΠΎΡΠΊΠ΅ Π΄Π»Ρ Π»ΡΠ΄Π° ΠΌΠΎΠ³ΡΡ Π±ΡΡΡ ΡΡΠ΅ΠΉΠΊΠΈ ΡΠ°ΠΌΠΎΠΉ ΡΠ°Π·Π½ΠΎΠΉ ΡΠΎΡΠΌΡ ΠΊΡΡΠ³Π»ΡΠ΅, ΡΠ΅ΡΡΠΈΡΠ³ΠΎΠ»ΡΠ½ΠΎΠΉ ΠΈΠ»ΠΈ Π»ΡΠ±ΠΎΠΉ Π΄ΡΡΠ³ΠΎΠΉ.

ΠΠΎΠΆΠ½ΠΎ ΠΈΡΠΏΠΎΠ»ΡΠ·ΠΎΠ²Π°ΡΡ ΡΡΠΎΡ ΡΠ΅ΠΆΠΈΠΌ, ΡΡΠΎΠ±Ρ Π±Π΅Π· ΠΏΡΠΎΠ±Π»Π΅ΠΌ Π·Π°ΠΌΠΎΡΠΎΠ·ΠΈΡΡ Π±ΠΎΠ»ΡΡΠΎΠΉ ΠΎΠ±ΡΠ΅ΠΌ Π·Π° ΡΠ°Π·: Π² ΠΌΠΎΡΠΎΠ·ΠΈΠ»ΡΠ½ΠΎΠΉ ΠΊΠ°ΠΌΠ΅ΡΠ΅ Π½Π΅ ΠΏΠΎΠ΄Π½ΠΈΠΌΠ°Π΅ΡΡΡ ΡΠ΅ΠΌΠΏΠ΅ΡΠ°ΡΡΡΠ° ΠΏΡΠΈ Π·Π°Π³ΡΡΠ·ΠΊΠ΅ ΡΠ²Π΅ΠΆΠΈΡ ΠΏΡΠΎΠ΄ΡΠΊΡΠΎΠ² ΠΈ Π½Π΅ Π²Π»ΠΈΡΠ΅Ρ Π½Π° ΡΠΆΠ΅ Π½Π°Ρ ΠΎΠ΄ΡΡΠΈΠ΅ΡΡ ΡΠ°ΠΌ Π·Π°Π³ΠΎΡΠΎΠ²ΠΊΠΈ.
Π§ΡΠΎΠ±Ρ ΡΠ΅ΠΆΠΈΠΌ ΡΠ°Π±ΠΎΡΠ°Π» ΠΏΡΠ°Π²ΠΈΠ»ΡΠ½ΠΎ, Π°ΠΊΡΠΈΠ²ΠΈΡΡΠΉΡΠ΅ Π΅Π³ΠΎ Π·Π° ΠΏΠ°ΡΡ ΡΠ°ΡΠΎΠ² (ΡΠΌΠΎΡΡΠΈΡΠ΅ ΠΏΠΎΠ΄ΡΠΎΠ±Π½ΠΎ Π² ΠΈΠ½ΡΡΡΡΠΊΡΠΈΠΈ) Π΄ΠΎ ΡΠΎΠ³ΠΎ, ΠΊΠ°ΠΊ ΡΠΎΠ±ΠΈΡΠ°Π΅ΡΠ΅ΡΡ ΠΏΠΎΠ»ΠΎΠΆΠΈΡΡ Π΅Π΄Ρ Π² ΠΎΡΡΠ΅ΠΊ.
ΠΠΎΠΏΠΎΠ»Π½ΠΈΡΠ΅Π»ΡΠ½ΡΠ΅ Ρ Π°ΡΠ°ΠΊΡΠ΅ΡΠΈΡΡΠΈΠΊΠΈ
ΠΠ°Π²Π΅ΡΠ½Π°Ρ ΠΏΠΎΠ»ΠΊΠ° Π΄Π»Ρ Π±ΡΡΡΠ»ΠΎΠΊ
2 ΠΏΠΎΠ΄ΡΡΠ°Π²ΠΊΠΈ Π΄Π»Ρ ΡΠΈΡ
Π’Π΅Ρ Π½ΠΈΡΠ΅ΡΠΊΠΈΠ΅ Ρ Π°ΡΠ°ΠΊΡΠ΅ΡΠΈΡΡΠΈΠΊΠΈ

ΠΠΎΠΌΠΏΡΠ΅ΡΡΠΎΡ — ΡΡΠΎ ΠΎΡΠ½ΠΎΠ²Π½ΠΎΠΉ ΡΠ·Π΅Π» Ρ ΠΎΠ»ΠΎΠ΄ΠΈΠ»ΡΠ½ΠΈΠΊΠ°, Π±Π»Π°Π³ΠΎΠ΄Π°ΡΡ ΠΊΠΎΡΠΎΡΠΎΠΌΡ ΠΎΡΡΡΠ΅ΡΡΠ²Π»ΡΠ΅ΡΡΡ ΡΠΆΠ°ΡΠΈΠ΅ Ρ Π»Π°Π΄Π°Π³Π΅Π½ΡΠ° ΠΈ Π΅Π³ΠΎ Π΄Π²ΠΈΠΆΠ΅Π½ΠΈΠ΅ Π² ΡΠΈΡΡΠ΅ΠΌΠ΅ ΠΎΡ Π»Π°ΠΆΠ΄Π΅Π½ΠΈΡ. ΠΠΎΠ³Π΄Π° ΠΊΠΎΠΌΠΏΡΠ΅ΡΡΠΎΡ Π²ΠΊΠ»ΡΡΠ΅Π½, ΡΠ΅ΠΌΠΏΠ΅ΡΠ°ΡΡΡΠ° Π²Π½ΡΡΡΠΈ Ρ ΠΎΠ»ΠΎΠ΄ΠΈΠ»ΡΠ½ΠΈΠΊΠ° ΠΏΠΎΠ½ΠΈΠΆΠ°Π΅ΡΡΡ ΠΈ ΡΠΎΠ·Π΄Π°ΡΡΡΡ ΡΡΠ»ΠΎΠ²ΠΈΡ Π΄Π»Ρ Π΄ΠΎΠ»Π³ΠΎΠ²ΡΠ΅ΠΌΠ΅Π½Π½ΠΎΠ³ΠΎ Ρ ΡΠ°Π½Π΅Π½ΠΈΡ ΠΏΡΠΎΠ΄ΡΠΊΡΠΎΠ². ΠΠ° ΡΡΠ΅Ρ ΠΊΠΎΠΌΠΏΡΠ΅ΡΡΠΎΡΠ° ΡΠ°ΠΊΠΆΠ΅ ΠΏΡΠΎΠΈΠ·Π²ΠΎΠ΄ΠΈΡΡΡ ΠΎΡΠ²ΠΎΠ΄ ΡΠ΅ΠΏΠ»Π° ΠΈΠ· Ρ ΠΎΠ»ΠΎΠ΄ΠΈΠ»ΡΠ½ΠΎΠΉ ΠΊΠ°ΠΌΠ΅ΡΡ Π² ΠΎΠΊΡΡΠΆΠ°ΡΡΡΡ ΡΡΠ΅Π΄Ρ.
Π ΠΏΡΠΎΡΠ΅ΡΡΠ΅ ΡΠ°Π±ΠΎΡΡ Ρ ΠΎΠ»ΠΎΠ΄ΠΈΠ»ΡΠ½ΠΈΠΊΠ° ΡΠ΅ΡΠΌΠΎΠ΄Π°ΡΡΠΈΠΊ ΡΠ΅Π»Π΅ Π½Π΅ΠΏΡΠ΅ΡΡΠ²Π½ΠΎ ΡΠΈΠΊΡΠΈΡΡΠ΅Ρ ΠΏΠΎΠΊΠ°Π·Π°ΡΠ΅Π»ΠΈ ΡΠ°ΠΊΡΠΈΡΠ΅ΡΠΊΠΎΠΉ ΡΠ΅ΠΌΠΏΠ΅ΡΠ°ΡΡΡΡ Π² ΠΊΠ°ΠΌΠ΅ΡΠ΅. ΠΡΠ»ΠΈ ΡΠ΅ΠΌΠΏΠ΅ΡΠ°ΡΡΡΠ° ΠΏΠΎΠ΄Π½ΠΈΠΌΠ°Π΅ΡΡΡ, Π΄Π°ΡΡΠΈΠΊ ΠΏΠΎΡΡΠ»Π°Π΅Ρ ΡΠΈΠ³Π½Π°Π» Π² ΡΠΈΡΡΠ΅ΠΌΡ ΡΠΏΡΠ°Π²Π»Π΅Π½ΠΈΡ ΠΈΠ»ΠΈ Π·Π°ΠΌΡΠΊΠ°Π΅Ρ ΠΊΠΎΠ½ΡΠ°ΠΊΡ, ΠΈ ΠΊΠΎΠΌΠΏΡΠ΅ΡΡΠΎΡ Π½Π°ΡΠΈΠ½Π°Π΅Ρ ΡΠ°Π±ΠΎΡΠ°ΡΡ. ΠΠ°ΠΊ ΡΠΎΠ»ΡΠΊΠΎ ΡΠ΅ΠΌΠΏΠ΅ΡΠ°ΡΡΡΠ° ΠΏΠΎΠ½ΠΈΠΆΠ°Π΅ΡΡΡ, Π΄Π°ΡΡΠΈΠΊ ΡΠ½ΠΎΠ²Π° ΡΡΠ°Π±Π°ΡΡΠ²Π°Π΅Ρ, ΠΈ ΠΊΠΎΠΌΠΏΡΠ΅ΡΡΠΎΡ ΠΎΡΠΊΠ»ΡΡΠ°Π΅ΡΡΡ.
ΠΠ»Π°Π³ΠΎΠ΄Π°ΡΡ ΡΠ°Π±ΠΎΡΠ΅ ΠΊΠΎΠΌΠΏΡΠ΅ΡΡΠΎΡΠ° Ρ Π»Π°Π΄Π°Π³Π΅Π½Ρ ΠΎΡΠΊΠ°ΡΠΈΠ²Π°Π΅ΡΡΡ ΠΈΠ· ΠΈΡΠΏΠ°ΡΠΈΡΠ΅Π»Ρ, ΠΏΠ΅ΡΠ΅ΠΌΠ΅ΡΠ°Π΅ΡΡΡ ΠΏΠΎ ΡΡΡΠ±ΠΊΠ°ΠΌ ΠΊΠΎΠ½ΡΡΡΠ° ΠΎΡ Π»Π°ΠΆΠ΄Π΅Π½ΠΈΡ, ΠΏΠΎΠΏΠ°Π΄Π°Ρ Π² ΠΊΠΎΠ½Π΄Π΅Π½ΡΠ°ΡΠΎΡ. Π’Π°ΠΌ ΠΎΠ½ ΠΎΡ Π»Π°ΠΆΠ΄Π°Π΅ΡΡΡ, ΠΏΠ΅ΡΠ΅Ρ ΠΎΠ΄ΠΈΡ ΠΈΠ· Π³Π°Π·ΠΎΠΎΠ±ΡΠ°Π·Π½ΠΎΠ³ΠΎ ΡΠΎΡΡΠΎΡΠ½ΠΈΡ Π² ΠΆΠΈΠ΄ΠΊΠΎΠ΅, ΠΈ Π²ΡΠ΄Π΅Π»ΡΠ΅Ρ ΡΠ΅ΠΏΠ»ΠΎ, ΠΊΠΎΡΠΎΡΠΎΠ΅ ΡΠ°ΡΡΠ΅ΠΈΠ²Π°Π΅ΡΡΡ Π² Π°ΡΠΌΠΎΡΡΠ΅ΡΠ΅. ΠΠΈΠ΄ΠΊΠΎΡΡΡ Π·Π°ΡΠ΅ΠΌ Π½Π°ΠΏΡΠ°Π²Π»ΡΠ΅ΡΡΡ Π² ΠΈΡΠΏΠ°ΡΠΈΡΠ΅Π»Ρ, Π³Π΄Π΅ Π·Π°ΠΊΠΈΠΏΠ°Π΅Ρ ΠΈ ΡΠ½ΠΎΠ²Π° ΡΡΠ°Π½ΠΎΠ²ΠΈΡΡΡ Π³Π°Π·ΠΎΠΌ — ΠΏΡΠΈ ΡΡΠΎΠΌ ΠΎΠ½Π° Π·Π°Π±ΠΈΡΠ°Π΅Ρ ΡΠ΅ΠΏΠ»ΠΎ Ρ ΠΎΠΊΡΡΠΆΠ°ΡΡΠ΅Π³ΠΎ Π²ΠΎΠ·Π΄ΡΡ Π°. ΠΠΎΡΠ»Π΅ ΡΡΠΎΠ³ΠΎ ΡΠΈΠΊΠ» ΠΏΠΎΠ²ΡΠΎΡΡΠ΅ΡΡΡ ΡΠ½ΠΎΠ²Π°.
Π Π±ΠΎΠ»ΡΡΠΈΠ½ΡΡΠ²Π΅ Ρ ΠΎΠ»ΠΎΠ΄ΠΈΠ»ΡΠ½ΠΈΠΊΠΎΠ² ΠΈΡΠΏΠΎΠ»ΡΠ·ΡΡΡΡΡ ΡΠ°ΠΊ Π½Π°Π·ΡΠ²Π°Π΅ΠΌΡΠ΅ ΠΏΠΎΡΡΠ½Π΅Π²ΡΠ΅ ΠΊΠΎΠΌΠΏΡΠ΅ΡΡΠΎΡΡ, ΠΊΠΎΡΠΎΡΡΠ΅ ΠΎΡΠ»ΠΈΡΠ°ΡΡΡΡ Π½Π°ΠΈΠ±ΠΎΠ»Π΅Π΅ ΠΏΡΠΎΡΡΠΎΠΉ ΠΊΠΎΠ½ΡΡΡΡΠΊΡΠΈΠ΅ΠΉ: Π²Π½ΡΡΡΠΈ Π½ΠΈΡ Π½Π°Ρ ΠΎΠ΄ΠΈΡΡΡ Π½Π΅ΡΠΊΠΎΠ»ΡΠΊΠΎ ΡΠΈΠ»ΠΈΠ½Π΄ΡΠΎΠ², Π² ΠΊΠΎΡΠΎΡΡΡ Ρ ΠΎΠ΄ΡΡ ΠΏΠΎΡΡΠ½ΠΈ. ΠΡΠΈ ΠΊΠΎΠΌΠΏΡΠ΅ΡΡΠΎΡΡ ΠΎΡΠ»ΠΈΡΠ°ΡΡΡΡ ΠΏΠΎΠ²ΡΡΠ΅Π½Π½ΠΎΠΉ Π½Π°Π΄Π΅ΠΆΠ½ΠΎΡΡΡΡ, ΠΎΠ΄Π½Π°ΠΊΠΎ Π΄ΠΎΡΡΠ°ΡΠΎΡΠ½ΠΎ ΡΠΈΠ»ΡΠ½ΠΎ ΡΡΠΌΡΡ ΠΈ Π²ΠΈΠ±ΡΠΈΡΡΡΡ, Π° ΡΠ°ΠΊΠΆΠ΅ ΠΆΠ΅ ΠΈΠΌΠ΅ΡΡ ΠΎΡΠ½ΠΎΡΠΈΡΠ΅Π»ΡΠ½ΠΎ Π½ΠΈΠ·ΠΊΡΡ ΠΏΡΠΎΠΈΠ·Π²ΠΎΠ΄ΠΈΡΠ΅Π»ΡΠ½ΠΎΡΡΡ. ΠΠΈΠ½ΡΠΎΠ²ΡΠ΅ ΠΊΠΎΠΌΠΏΡΠ΅ΡΡΠΎΡΡ ΡΠ°ΠΊΠΆΠ΅ ΡΠ°ΡΠΏΡΠΎΡΡΡΠ°Π½Π΅Π½Ρ Π΄ΠΎΡΡΠ°ΡΠΎΡΠ½ΠΎ ΡΠΈΡΠΎΠΊΠΎ: Π² Π½ΠΈΡ ΡΠΆΠ°ΡΠΈΠ΅ Ρ Π»Π°Π΄Π°Π³Π΅Π½ΡΠ° ΠΏΡΠΎΠΈΡΡ ΠΎΠ΄ΠΈΡ Π·Π° ΡΡΠ΅Ρ Π²ΡΠ°ΡΠ°ΡΡΠ΅Π³ΠΎΡΡ ΡΠΎΡΠΎΡΠ°. ΠΡΠΈ ΡΡΡΡΠΎΠΉΡΡΠ²Π° ΡΠΎΠ·Π΄Π°ΡΡ Π³ΠΎΡΠ°Π·Π΄ΠΎ ΠΌΠ΅Π½ΡΡΠ΅ ΡΡΠΌΠ° ΠΈ Π²ΠΈΠ±ΡΠ°ΡΠΈΠΈ.
Π‘ΠΎΠ²ΡΠ΅ΠΌΠ΅Π½Π½ΡΠ΅ Ρ ΠΎΠ»ΠΎΠ΄ΠΈΠ»ΡΠ½ΠΈΠΊΠΈ ΠΌΠΎΠ³ΡΡ Π±ΡΡΡ ΠΎΡΠ½Π°ΡΠ΅Π½Ρ ΠΊΠ°ΠΊ ΠΎΠ΄Π½ΠΈΠΌ, ΡΠ°ΠΊ ΠΈ Π΄Π²ΡΠΌΡ ΠΊΠΎΠΌΠΏΡΠ΅ΡΡΠΎΡΠ°ΠΌΠΈ.

Π₯Π»Π°Π΄Π°Π³Π΅Π½ΡΠΎΠΌ Π½Π°Π·ΡΠ²Π°Π΅ΡΡΡ Ρ ΠΈΠΌΠΈΡΠ΅ΡΠΊΠΎΠ΅ ΡΠΎΠ΅Π΄ΠΈΠ½Π΅Π½ΠΈΠ΅, ΠΊΠΎΡΠΎΡΠΎΠ΅ ΠΈΡΠΏΠΎΠ»ΡΠ·ΡΠ΅ΡΡΡ Π² ΠΊΠ°ΡΠ΅ΡΡΠ²Π΅ ΡΠ°Π±ΠΎΡΠ΅Π³ΠΎ Π²Π΅ΡΠ΅ΡΡΠ²Π° Π² ΡΠΎΠ²ΡΠ΅ΠΌΠ΅Π½Π½ΡΡ Ρ ΠΎΠ»ΠΎΠ΄ΠΈΠ»ΡΠ½ΠΈΠΊΠ°Ρ . Π Π°Π±ΠΎΡΠ° Ρ ΠΎΠ»ΠΎΠ΄ΠΈΠ»ΡΠ½ΡΡ Π°Π³ΡΠ΅Π³Π°ΡΠΎΠ² ΠΎΡΠ½ΠΎΠ²Π°Π½Π° Π½Π° ΡΠΎΠΌ, ΡΡΠΎ Ρ Π»Π°Π΄Π°Π³Π΅Π½Ρ ΡΠΏΠΎΡΠΎΠ±Π΅Π½ ΠΏΠΎΠ³Π»ΠΎΡΠ°ΡΡ ΡΠ΅ΠΏΠ»ΠΎ ΠΈΠ· Π²ΠΎΠ·Π΄ΡΡ Π° Π²Π½ΡΡΡΠΈ ΠΊΠ°ΠΌΠ΅ΡΡ, Π° Π·Π°ΡΠ΅ΠΌ ΠΈΠ·Π»ΡΡΠ°ΡΡ Π΅Π³ΠΎ Π² Π°ΡΠΌΠΎΡΡΠ΅ΡΡ Π·Π° ΠΏΡΠ΅Π΄Π΅Π»Π°ΠΌΠΈ Ρ ΠΎΠ»ΠΎΠ΄ΠΈΠ»ΡΠ½ΠΈΠΊΠ°. Π₯Π»Π°Π΄Π°Π³Π΅Π½Ρ Π΄Π²ΠΈΠΆΠ΅ΡΡΡ ΠΏΠΎ Π·Π°ΠΌΠΊΠ½ΡΡΠΎΠΌΡ ΠΊΠΎΠ½ΡΡΡΡ — ΡΠ°ΠΊ Π½Π°Π·ΡΠ²Π°Π΅ΠΌΠΎΠΌΡ ΠΊΠΎΠ½ΡΡΡΡ ΠΎΡ Π»Π°ΠΆΠ΄Π΅Π½ΠΈΡ — ΠΏΠΎΠ΄ Π²ΠΎΠ·Π΄Π΅ΠΉΡΡΠ²ΠΈΠ΅ΠΌ ΠΊΠΎΠΌΠΏΡΠ΅ΡΡΠΎΡΠ°, ΠΏΠ΅ΡΠ΅Ρ ΠΎΠ΄Ρ ΠΈΠ· ΠΆΠΈΠ΄ΠΊΠΎΠ³ΠΎ ΡΠΎΡΡΠΎΡΠ½ΠΈΡ Π² Π³Π°Π·ΠΎΠΎΠ±ΡΠ°Π·Π½ΠΎΠ΅ ΠΈ ΠΎΠ±ΡΠ°ΡΠ½ΠΎ. Π Π²ΠΈΠ΄Π΅ Π³Π°Π·Π° ΠΎΠ½ ΠΏΠΎΠ³Π»ΠΎΡΠ°Π΅Ρ ΡΠ΅ΠΏΠ»ΠΎ, Π·Π°ΡΠ΅ΠΌ ΠΊΠΎΠ½Π΄Π΅Π½ΡΠΈΡΡΠ΅ΡΡΡ Π² ΠΊΠΎΠ½Π΄Π΅Π½ΡΠ°ΡΠΎΡΠ΅, ΠΏΡΠ΅Π²ΡΠ°ΡΠ°Π΅ΡΡΡ Π² ΠΆΠΈΠ΄ΠΊΠΎΡΡΡ, Π²ΡΠ΄Π΅Π»ΡΠ΅Ρ ΡΠ΅ΠΏΠ»ΠΎ, Π° Π·Π°ΡΠ΅ΠΌ Π½Π° ΠΈΡΠΏΠ°ΡΠΈΡΠ΅Π»Π΅ ΡΠ½ΠΎΠ²Π° ΠΏΠ΅ΡΠ΅Ρ ΠΎΠ΄ΠΈΡ Π² Π³Π°Π·ΠΎΠΎΠ±ΡΠ°Π·Π½ΡΡ ΡΠΎΡΠΌΡ.
Π‘ ΠΌΠΎΠΌΠ΅Π½ΡΠ° ΡΠΎΠ·Π΄Π°Π½ΠΈΡ Ρ ΠΎΠ»ΠΎΠ΄ΠΈΠ»ΡΠ½ΠΈΠΊΠ° Π² ΠΊΠ°ΡΠ΅ΡΡΠ²Π΅ Ρ Π»Π°Π΄Π°Π³Π΅Π½ΡΠ° ΠΈΡΠΏΠΎΠ»ΡΠ·ΠΎΠ²Π°Π»ΠΈΡΡ ΡΠ°Π·Π»ΠΈΡΠ½ΡΠ΅ Π²Π΅ΡΠ΅ΡΡΠ²Π°. Π ΡΠ°ΡΡΠ½ΠΎΡΡΠΈ, ΠΏΠ΅ΡΠ²ΡΠΌ Ρ Π»Π°Π΄Π°Π³Π΅Π½ΡΠΎΠΌ Π±ΡΠ» Π°ΠΌΠΌΠΈΠ°ΠΊ, ΠΊΠΎΡΠΎΡΡΠΉ ΡΠ²Π»ΡΠ΅ΡΡΡ Π΄ΠΎΡΡΠ°ΡΠΎΡΠ½ΠΎ Π²ΡΠ΅Π΄Π½ΡΠΌ ΠΈ Π΄Π»Ρ ΠΏΠΎΠ»ΡΠ·ΠΎΠ²Π°ΡΠ΅Π»Π΅ΠΉ, ΠΈ Π΄Π»Ρ ΠΎΠΊΡΡΠΆΠ°ΡΡΠ΅ΠΉ ΡΡΠ΅Π΄Ρ. ΠΠΏΠΎΡΠ»Π΅Π΄ΡΡΠ²ΠΈΠΈ Π² ΠΊΠ°ΡΠ΅ΡΡΠ²Π΅ Ρ Π»Π°Π΄Π°Π³Π΅Π½ΡΠΎΠ² ΠΈΡΠΏΠΎΠ»ΡΠ·ΠΎΠ²Π°Π»ΠΈΡΡ ΡΡΠ΅ΠΎΠ½Ρ — ΡΡΠΎΡΡΠΎΠ΄Π΅ΡΠΆΠ°ΡΠΈΠ΅ ΠΏΡΠΎΠΈΠ·Π²ΠΎΠ΄Π½ΡΠ΅ Π½Π°ΡΡΡΠ΅Π½Π½ΡΡ ΡΠ³Π»Π΅Π²ΠΎΠ΄ΠΎΡΠΎΠ΄ΠΎΠ². Π‘Π°ΠΌΡΠΌ ΡΠ°ΡΠΏΡΠΎΡΡΡΠ°Π½Π΅Π½Π½ΡΠΌ ΠΈΠ· ΡΡΠ΅ΠΎΠ½ΠΎΠ² Π±ΡΠ» ΡΠ°ΠΊ Π½Π°Π·ΡΠ²Π°Π΅ΠΌΡΠΉ Ρ Π»Π°Π΄Π°Π³Π΅Π½Ρ R12. Π 1985 Π³ΠΎΠ΄Ρ Π±ΡΠ» ΠΏΠΎΠ΄ΠΏΠΈΡΠ°Π½ ΠΠΎΠ½ΡΠ΅Π°Π»ΡΡΠΊΠΈΠΉ ΠΏΡΠΎΡΠΎΠΊΠΎΠ», ΡΠΎΠ³Π»Π°ΡΠ½ΠΎ ΠΊΠΎΡΠΎΡΠΎΠΌΡ Ρ Π»Π°Π΄Π°Π³Π΅Π½Ρ R12 Π±ΡΠ» ΠΏΡΠΈΠ·Π½Π°Π½ Π²ΡΠ΅Π΄Π½ΡΠΌ Π΄Π»Ρ ΠΎΠΊΡΡΠΆΠ°ΡΡΠ΅ΠΉ ΡΡΠ΅Π΄Ρ, ΠΏΠΎΡΠΊΠΎΠ»ΡΠΊΡ ΠΎΠ½ ΡΠΏΠΎΡΠΎΠ±ΡΡΠ²ΠΎΠ²Π°Π» ΠΎΠ±ΡΠ°Π·ΠΎΠ²Π°Π½ΠΈΡ ΠΎΠ·ΠΎΠ½ΠΎΠ²ΡΡ Π΄ΡΡ ΠΈ ΡΡΠΈΠ»Π΅Π½ΠΈΡ ΠΏΠ°ΡΠ½ΠΈΠΊΠΎΠ²ΠΎΠ³ΠΎ ΡΡΡΠ΅ΠΊΡΠ°. ΠΠΌΠ΅ΡΡΠΎ Π½Π΅Π³ΠΎ Π±ΡΠ» ΡΠ°Π·ΡΠ°Π±ΠΎΡΠ°Π½ Ρ Π»Π°Π΄Π°Π³Π΅Π½Ρ R134a ΠΈΠ»ΠΈ ΡΠ΅ΡΡΠ°ΡΡΠΎΡΡΡΠ°Π½, ΠΊΠΎΡΠΎΡΡΠΉ Π΄ΠΎ ΡΠΈΡ ΠΏΠΎΡ ΠΏΡΠΈΠΌΠ΅Π½ΡΠ΅ΡΡΡ Π² ΡΡΠ΄Π΅ ΠΌΠΎΠ΄Π΅Π»Π΅ΠΉ. ΠΠ½ Π½Π΅ Π³ΠΎΡΡΡ, Π½Π΅ Π²Π·ΡΡΠ²ΠΎΠΎΠΏΠ°ΡΠ΅Π½ ΠΈ Π½Π΅ ΡΠΎΠΊΡΠΈΡΠ΅Π½, Π° ΡΠ°ΠΊΠΆΠ΅ Π½Π΅ ΡΠ°Π·ΡΡΡΠ°Π΅Ρ ΠΎΠ·ΠΎΠ½ΠΎΠ²ΡΠΉ ΡΠ»ΠΎΠΉ.
ΠΠ΄Π½Π°ΠΊΠΎ Π½Π°ΠΈΠ±ΠΎΠ»Π΅Π΅ Π±Π΅Π·ΠΎΠΏΠ°ΡΠ½ΡΠΌ Ρ Π»Π°Π΄Π°Π³Π΅Π½ΡΠΎΠΌ Π² Π½Π°ΡΡΠΎΡΡΠ΅Π΅ Π²ΡΠ΅ΠΌΡ ΠΏΡΠΈΠ·Π½Π°Π½ R600Π°, ΠΈΠ»ΠΈ ΠΈΠ·ΠΎΠ±ΡΡΠ°Π½, — Π±Π΅ΡΡΠ²Π΅ΡΠ½ΡΠΉ Π³Π°Π·, ΠΊΠΎΡΠΎΡΡΠΉ Π½Π΅ ΡΠ°Π·ΡΡΡΠ°Π΅Ρ ΠΎΠ·ΠΎΠ½ΠΎΠ²ΡΠΉ ΡΠ»ΠΎΠΉ ΠΈ Π½Π΅ ΡΠΏΠΎΡΠΎΠ±ΡΡΠ²ΡΠ΅Ρ ΡΡΠΈΠ»Π΅Π½ΠΈΡ ΠΏΠ°ΡΠ½ΠΈΠΊΠΎΠ²ΠΎΠ³ΠΎ ΡΡΡΠ΅ΠΊΡΠ°, ΠΎΡΠ»ΠΈΡΠ°Π΅ΡΡΡ Π½ΠΈΠ·ΠΊΠΈΠΌ ΡΠ°Π±ΠΎΡΠΈΠΌ Π΄Π°Π²Π»Π΅Π½ΠΈΠ΅ΠΌ, ΡΡΠΎ ΡΠΏΠΎΡΠΎΠ±ΡΡΠ²ΡΠ΅Ρ ΡΠ½ΠΈΠΆΠ΅Π½ΠΈΡ ΡΡΠΎΠ²Π½Ρ ΡΡΠΌΠ°, Π° ΡΠ°ΠΊΠΆΠ΅ ΠΏΠΎΠ·Π²ΠΎΠ»ΡΠ΅Ρ ΡΠΌΠ΅Π½ΡΡΠΈΡΡ ΠΏΠΎΡΡΠ΅Π±Π»Π΅Π½ΠΈΠ΅ ΡΠ»Π΅ΠΊΡΡΠΎΡΠ½Π΅ΡΠ³ΠΈΠΈ.


ΠΠ»Π°ΡΡ ΡΠ½Π΅ΡΠ³ΠΎΠΏΠΎΡΡΠ΅Π±Π»Π΅Π½ΠΈΡ Ρ ΠΎΠ»ΠΎΠ΄ΠΈΠ»ΡΠ½ΠΈΠΊΠ° — ΡΡΠΎ Π²Π°ΠΆΠ½ΡΠΉ ΠΏΠ°ΡΠ°ΠΌΠ΅ΡΡ, ΠΊΠΎΡΠΎΡΡΠΉ ΠΎΠ±ΡΠ·Π°ΡΠ΅Π»ΡΠ½ΠΎ Π½Π΅ΠΎΠ±Ρ ΠΎΠ΄ΠΈΠΌΠΎ ΡΡΠΈΡΡΠ²Π°ΡΡ ΠΏΡΠΈ Π²ΡΠ±ΠΎΡΠ΅ ΡΠΎΠΉ ΠΈΠ»ΠΈ ΠΈΠ½ΠΎΠΉ ΠΌΠΎΠ΄Π΅Π»ΠΈ. ΠΠ½ ΠΎΠΏΡΠ΅Π΄Π΅Π»ΡΠ΅Ρ, ΠΊΠ°ΠΊΠΎΠ΅ ΠΊΠΎΠ»ΠΈΡΠ΅ΡΡΠ²ΠΎ ΡΠ»Π΅ΠΊΡΡΠΎΡΠ½Π΅ΡΠ³ΠΈΠΈ Π² ΠΊΠΡ/Ρ ΠΏΠΎΡΡΠ΅Π±Π»ΡΠ΅Ρ Π²Π°Ρ Π°Π³ΡΠ΅Π³Π°Ρ Π·Π° Π²ΡΠ΅ Π²ΡΠ΅ΠΌΡ ΡΠΊΡΠΏΠ»ΡΠ°ΡΠ°ΡΠΈΠΈ. ΠΠ°ΠΊ ΠΈΠ·Π²Π΅ΡΡΠ½ΠΎ, ΠΊΠΎΠΌΠΏΡΠ΅ΡΡΠΎΡΠ½ΡΠ΅ Ρ ΠΎΠ»ΠΎΠ΄ΠΈΠ»ΡΠ½ΠΈΠΊΠΈ Π½Π΅ ΠΏΠΎΡΡΠ΅Π±Π»ΡΡΡ ΡΠ»Π΅ΠΊΡΡΠΎΡΠ½Π΅ΡΠ³ΠΈΡ ΠΏΠΎΡΡΠΎΡΠ½Π½ΠΎ, ΠΏΠΎΡΠΊΠΎΠ»ΡΠΊΡ Π² ΠΏΡΠΎΡΠ΅ΡΡΠ΅ ΡΠ°Π±ΠΎΡΡ ΠΊΠΎΠΌΠΏΡΠ΅ΡΡΠΎΡ ΠΏΠ΅ΡΠΈΠΎΠ΄ΠΈΡΠ΅ΡΠΊΠΈ ΠΎΡΠΊΠ»ΡΡΠ°Π΅ΡΡΡ, Π° Π·Π°ΡΠ΅ΠΌ Π²ΠΊΠ»ΡΡΠ°Π΅ΡΡΡ ΡΠ½ΠΎΠ²Π°.
ΠΡΠΈ ΠΏΠΎΠ΄Π±ΠΎΡΠ΅ Ρ ΠΎΠ»ΠΎΠ΄ΠΈΠ»ΡΠ½ΠΈΠΊΠ° ΠΏΠΎΠ»ΡΠ·ΠΎΠ²Π°ΡΠ΅Π»Ρ ΡΠ»Π΅Π΄ΡΠ΅Ρ ΠΏΠΎΠΌΠ½ΠΈΡΡ, ΡΡΠΎ Π½Π° ΠΊΠΎΠ»ΠΈΡΠ΅ΡΡΠ²ΠΎ ΡΠ°ΡΡ ΠΎΠ΄ΡΠ΅ΠΌΠΎΠΉ ΡΠ»Π΅ΠΊΡΡΠΎΡΠ½Π΅ΡΠ³ΠΈΠΈ Π²Π»ΠΈΡΠ΅Ρ ΠΌΠ½ΠΎΠΆΠ΅ΡΡΠ²ΠΎ ΡΠ°ΠΊΡΠΎΡΠΎΠ². Π ΠΈΡ ΡΠΈΡΠ»Π΅ Π½Π΅ΠΎΠ±Ρ ΠΎΠ΄ΠΈΠΌΠΎ ΡΡΠΈΡΡΠ²Π°ΡΡ Π²ΡΠ΅ΠΌΡ, Π² ΡΠ΅ΡΠ΅Π½ΠΈΠ΅ ΠΊΠΎΡΠΎΡΠΎΠ³ΠΎ Π΄Π²Π΅ΡΡΠ° ΠΎΡΡΠ°Π΅ΡΡΡ ΠΎΡΠΊΡΡΡΠΎΠΉ, Π½Π°ΡΡΠΆΠ½ΡΡ ΡΠ΅ΠΌΠΏΠ΅ΡΠ°ΡΡΡΡ Π² ΠΏΠΎΠΌΠ΅ΡΠ΅Π½ΠΈΠΈ, ΠΊΠ°ΡΠ΅ΡΡΠ²ΠΎ ΠΈ ΡΠΈΡΡΠΎΡΡ ΡΠΏΠ»ΠΎΡΠ½ΠΈΡΠ΅Π»Ρ Π΄Π²Π΅ΡΡΡ, ΠΊΠΎΡΡΠ΅ΠΊΡΠ½ΡΡ ΡΠ°Π±ΠΎΡΡ ΠΊΠΎΠΌΠΏΡΠ΅ΡΡΠΎΡΠ°, ΠΈΡΠΏΡΠ°Π²Π½ΠΎΡΡΡ ΡΠ΅ΡΠΌΠΎΡΡΠ°ΡΠ° Ρ ΠΎΠ»ΠΎΠ΄ΠΈΠ»ΡΠ½ΠΈΠΊΠ°, ΠΎΡΡΡΡΡΡΠ²ΠΈΠ΅ ΡΡΠ΅ΡΠ΅ΠΊ ΡΡΠ΅ΠΎΠ½Π°, Π° ΡΠ°ΠΊΠΆΠ΅ Π½Π°Π»ΠΈΡΠΈΠ΅ Π΄ΠΎΠΏΠΎΠ»Π½ΠΈΡΠ΅Π»ΡΠ½ΡΡ ΠΎΠΏΡΠΈΠΉ — Π½Π°ΠΏΡΠΈΠΌΠ΅Ρ, ΡΠ΅ΠΆΠΈΠΌΠΎΠ² ΡΡΠΏΠ΅ΡΠΎΡ Π»Π°ΠΆΠ΄Π΅Π½ΠΈΡ ΠΈ ΡΡΠΏΠ΅ΡΠ·Π°ΠΌΠΎΡΠ°ΠΆΠΈΠ²Π°Π½ΠΈΡ.
ΠΡ ΡΠ½Π΅ΡΠ³ΠΎΠΏΠΎΡΡΠ΅Π±Π»Π΅Π½ΠΈΡ Ρ ΠΎΠ»ΠΎΠ΄ΠΈΠ»ΡΠ½ΠΈΠΊΠ° Π·Π°Π²ΠΈΡΠΈΡ Π½Π΅ ΡΠΎΠ»ΡΠΊΠΎ ΡΠ°Π·ΠΌΠ΅Ρ Π·Π°ΡΡΠ°Ρ Π½Π° ΠΎΠΏΠ»Π°ΡΡ ΡΠ»Π΅ΠΊΡΡΠΈΡΠ΅ΡΡΠ²Π°, Π½ΠΎ ΠΈ Π²Π»ΠΈΡΠ½ΠΈΠ΅ Π½Π° ΠΎΠΊΡΡΠΆΠ°ΡΡΡΡ ΡΡΠ΅Π΄Ρ: ΡΠ΅ΠΌ ΠΌΠ΅Π½ΡΡΠ΅ ΠΏΠΎΡΡΠ΅Π±Π»ΡΠ΅Ρ ΠΏΡΠΈΠ±ΠΎΡ, ΡΠ΅ΠΌ ΠΎΠ½ Π±Π΅Π·ΠΎΠΏΠ°ΡΠ½Π΅Π΅ ΡΠΊΠΎΠ»ΠΎΠ³ΠΈΡΠ΅ΡΠΊΠΈ. ΠΠ»Ρ ΡΠ΄ΠΎΠ±Π½ΠΎΠΉ ΠΎΡΠ΅Π½ΠΊΠΈ ΡΡΠΎΠ²Π½Ρ ΡΠ½Π΅ΡΠ³ΠΎΠΏΠΎΡΡΠ΅Π±Π»Π΅Π½ΠΈΡ Π±ΡΠ»Π° Π²Π²Π΅Π΄Π΅Π½Π° ΡΠΈΡΡΠ΅ΠΌΠ° ΠΊΠ»Π°ΡΡΠΎΠ² ΡΠ½Π΅ΡΠ³ΠΎΡΡΡΠ΅ΠΊΡΠΈΠ²Π½ΠΎΡΡΠΈ Π±ΡΡΠΎΠ²ΠΎΠΉ ΡΠ΅Ρ Π½ΠΈΠΊΠΈ. ΠΠ»Ρ Ρ ΠΎΠ»ΠΎΠ΄ΠΈΠ»ΡΠ½ΠΈΠΊΠ° ΡΠ°ΠΊΠΎΠΉ ΠΊΠ»Π°ΡΡ — ΡΡΠΎ ΠΏΠΎΠΊΠ°Π·Π°ΡΠ΅Π»Ρ, ΠΊΠΎΡΠΎΡΡΠΉ ΡΡΠ°Π²Π½ΠΈΠ²Π°Π΅Ρ Π² ΠΏΡΠΎΡΠ΅Π½ΡΠ½ΠΎΠΌ ΠΎΡΠ½ΠΎΡΠ΅Π½ΠΈΠΈ ΠΏΠΎΡΡΠ΅Π±Π»Π΅Π½ΠΈΠ΅ Π΄Π°Π½Π½ΠΎΠΉ ΠΊΠΎΠ½ΠΊΡΠ΅ΡΠ½ΠΎΠΉ ΠΌΠΎΠ΄Π΅Π»ΠΈ ΡΠΎ ΡΡΠ΅Π΄Π½ΠΈΠΌ Π·Π½Π°ΡΠ΅Π½ΠΈΠ΅ΠΌ ΡΠ°ΡΡ ΠΎΠ΄Π° ΡΠ»Π΅ΠΊΡΡΠΎΡΠ½Π΅ΡΠ³ΠΈΠΈ Π΄Π»Ρ Ρ ΠΎΠ»ΠΎΠ΄ΠΈΠ»ΡΠ½ΠΈΠΊΠ° ΡΠ°ΠΊΠΎΠ³ΠΎ ΠΆΠ΅ ΡΠ°Π·ΠΌΠ΅ΡΠ° ΠΈ ΠΊΠΎΠΌΠΏΠΎΠ½ΠΎΠ²ΠΊΠΈ.
ΠΠΎ ΠΏΠΎΡΠ»Π΅Π΄Π½Π΅Π³ΠΎ Π²ΡΠ΅ΠΌΠ΅Π½ΠΈ ΠΏΡΠΈΠ½ΡΡΠΎ Π±ΡΠ»ΠΎ Π²ΡΠ΄Π΅Π»ΡΡΡ ΠΊΠ»Π°ΡΡΡ ΠΎΡ G — ΡΠ°ΠΌΠΎΠ³ΠΎ Π½ΠΈΠ·ΠΊΠΎΠ³ΠΎ Π΄ΠΎ Π+++ — ΡΠ°ΠΌΠΎΠ³ΠΎ Π²ΡΡΠΎΠΊΠΎΠ³ΠΎ. Π’Π°ΠΊ, ΠΌΠΎΠ΄Π΅Π»ΠΈ ΠΊΠ»Π°ΡΡΠ° C ΡΠ°ΡΡ ΠΎΠ΄ΡΡΡ 75-95% ΡΠ»Π΅ΠΊΡΡΠΎΡΠ½Π΅ΡΠ³ΠΈΠΈ ΠΎΡ ΡΡΠ΅Π΄Π½Π΅Π³ΠΎ Π·Π½Π°ΡΠ΅Π½ΠΈΡ, Ρ ΠΎΠ»ΠΎΠ΄ΠΈΠ»ΡΠ½ΠΈΠΊΠΈ ΠΊΠ»Π°ΡΡΠ° Π — ΠΎΡ 44 Π΄ΠΎ 55%, Π° ΠΌΠΎΠ΄Π΅Π»ΠΈ ΡΠ°ΠΌΠΎΠ³ΠΎ Π²ΡΡΠΎΠΊΠΎΠ³ΠΎ ΠΊΠ»Π°ΡΡΠ° Π+++ Π½Π°ΠΈΠ±ΠΎΠ»Π΅Π΅ ΡΠΊΠΎΠ½ΠΎΠΌΠΈΡΠ½Ρ ΠΈ ΡΠ°ΡΡΡΠΈΡΠ°Π½Ρ Π½Π° ΡΠ°ΡΡ ΠΎΠ΄ Π½Π΅ Π±ΠΎΠ»Π΅Π΅ 22% ΡΠ½Π΅ΡΠ³ΠΈΠΈ ΠΎΡ ΡΡΠ΅Π΄Π½Π΅Π³ΠΎ. ΠΠΎΡΡΠ΅Π±Π»Π΅Π½ΠΈΠ΅ ΠΆΠ΅ Ρ ΠΏΡΠΈΠ±ΠΎΡΠΎΠ² ΠΊΠ»Π°ΡΡΠΎΠ² ΠΎΡ D Π΄ΠΎ G ΠΏΡΠ΅Π²ΡΡΠ°Π΅Ρ ΡΡΠ΅Π΄Π½Π΅Π΅ Π·Π½Π°ΡΠ΅Π½ΠΈΠ΅.
ΠΠΎ Π½Π°ΡΠΈΠ½Π°Ρ Ρ ΠΌΠ°ΡΡΠ° 2021 Π³ΠΎΠ΄Π° Π±ΡΠ»Π° ΠΏΡΠΈΠ½ΡΡΠ° Π½ΠΎΠ²Π°Ρ ΡΠΈΡΡΠ΅ΠΌΠ° ΠΏΠΎΠ΄ΡΡΠ΅ΡΠ° ΡΠ°ΡΡ ΠΎΠ΄Π° ΡΠ½Π΅ΡΠ³ΠΎΠΏΠΎΡΡΠ΅Π±Π»Π΅Π½ΠΈΡ Π΄Π»Ρ Π±ΡΡΠΎΠ²ΡΡ ΠΏΡΠΈΠ±ΠΎΡΠΎΠ². ΠΠΎ Π½ΠΎΠ²ΠΎΠΉ ΠΊΠ»Π°ΡΡΠΈΡΠΈΠΊΠ°ΡΠΈΠΈ ΠΏΡΠΈΠ±ΠΎΡΡ, ΠΊΠΎΡΠΎΡΡΠ΅ ΠΎΡΠ½ΠΎΡΠΈΠ»ΠΈΡΡ ΡΠ°Π½ΡΡΠ΅ ΠΊ ΠΊΠ»Π°ΡΡΡ Π, ΡΠ΅ΠΏΠ΅ΡΡ ΡΡΠ°Π»ΠΈ ΡΠΎΠΎΡΠ²Π΅ΡΡΡΠ²ΠΎΠ²Π°ΡΡ Π½ΠΎΠ²ΠΎΠΌΡ ΠΊΠ»Π°ΡΡΡ Π, Π° ΠΌΠΎΠ΄Π΅Π»ΠΈ ΠΊΠ»Π°ΡΡΠ° Π+++ ΡΡΠ°Π»ΠΈ ΡΠΎΠΎΡΠ²Π΅ΡΡΡΠ²ΠΎΠ²Π°ΡΡ Π½ΠΎΠ²ΠΎΠΌΡ ΠΊΠ»Π°ΡΡΡ D. Π’Π΅ΠΌ Π½Π΅ ΠΌΠ΅Π½Π΅Π΅ ΡΡΠΎ ΠΏΡΠΎΡΡΠΎ Π½ΠΎΠ²ΠΎΠ΅ Π½Π°ΠΈΠΌΠ΅Π½ΠΎΠ²Π°Π½ΠΈΠ΅, ΠΊΠΎΡΠΎΡΠΎΠ΅ Π½Π΅ Π·Π½Π°ΡΠΈΡ, ΡΡΠΎ ΠΏΡΠΈΠ±ΠΎΡΡ ΡΡΠ°Π»ΠΈ ΠΏΠΎΡΡΠ΅Π±Π»ΡΡΡ Π±ΠΎΠ»ΡΡΠ΅ ΡΠ»Π΅ΠΊΡΡΠΎΡΠ½Π΅ΡΠ³ΠΈΠΈ. ΠΠ»Π°ΡΡ ΡΠ½Π΅ΡΠ³ΠΎΠΏΠΎΡΡΠ΅Π±Π»Π΅Π½ΠΈΡ Ρ ΡΠ²Π΅ΡΠΎΠ²ΡΠΌ ΠΎΠ±ΠΎΠ·Π½Π°ΡΠ΅Π½ΠΈΠ΅ΠΌ ΠΎΠ±ΡΠ·Π°ΡΠ΅Π»ΡΠ½ΠΎ Π΄ΠΎΠ»ΠΆΠ΅Π½ ΡΠΊΠ°Π·ΡΠ²Π°ΡΡΡΡ Π½Π° ΠΈΠ½ΡΠΎΡΠΌΠ°ΡΠΈΠΎΠ½Π½ΠΎΠΉ ΡΠ°Π±Π»ΠΈΡΠΊΠ΅ ΠΏΡΠΈΠ±ΠΎΡΠ°.

Π£ΡΠΎΠ²Π΅Π½Ρ ΡΡΠΌΠ° Ρ ΠΎΠ»ΠΎΠ΄ΠΈΠ»ΡΠ½ΠΈΠΊΠ° — ΠΏΠΎΠΊΠ°Π·Π°ΡΠ΅Π»Ρ, Π½Π° ΠΊΠΎΡΠΎΡΡΠΉ ΡΠ»Π΅Π΄ΡΠ΅Ρ ΠΎΠ±ΡΠ°ΡΠΈΡΡ Π²Π½ΠΈΠΌΠ°Π½ΠΈΠ΅ ΠΏΡΠΈ ΠΏΠΎΠ΄Π±ΠΎΡΠ΅ ΠΌΠΎΠ΄Π΅Π»ΠΈ Π²ΠΎ ΠΈΠ·Π±Π΅ΠΆΠ°Π½ΠΈΠ΅ Π΄ΠΈΡΠΊΠΎΠΌΡΠΎΡΡΠ° ΠΏΠΎΠ»ΡΠ·ΠΎΠ²Π°ΡΠ΅Π»Ρ.
ΠΡΠΈΡΠΈΠ½, ΠΏΠΎ ΠΊΠΎΡΠΎΡΡΠΌ Ρ ΠΎΠ»ΠΎΠ΄ΠΈΠ»ΡΠ½ΠΈΠΊ ΡΠ²Π»ΡΠ΅ΡΡΡ ΠΈΡΡΠΎΡΠ½ΠΈΠΊΠΎΠΌ ΡΡΠΌΠ°, Π΄ΠΎΡΡΠ°ΡΠΎΡΠ½ΠΎ ΠΌΠ½ΠΎΠ³ΠΎ. ΠΠΎΠ»ΡΡΠΈΠ½ΡΡΠ²ΠΎ Ρ ΠΎΠ»ΠΎΠ΄ΠΈΠ»ΡΠ½ΠΈΠΊΠΎΠ² ΠΈΠΌΠ΅Π΅Ρ ΠΊΠΎΠΌΠΏΡΠ΅ΡΡΠΎΡΠ½ΡΡ ΡΠΈΡΡΠ΅ΠΌΡ ΠΎΡ Π»Π°ΠΆΠ΄Π΅Π½ΠΈΡ, ΠΏΡΠΈ ΠΊΠΎΡΠΎΡΠΎΠΉ Ρ Π»Π°Π΄Π°Π³Π΅Π½Ρ ΡΠΈΡΠΊΡΠ»ΠΈΡΡΠ΅Ρ ΠΏΠΎ ΡΠΏΠ΅ΡΠΈΠ°Π»ΡΠ½ΠΎΠΌΡ ΠΊΠΎΠ½ΡΡΡΡ: ΠΊΠΎΠΌΠΏΡΠ΅ΡΡΠΎΡ Π² ΠΏΡΠΎΡΠ΅ΡΡΠ΅ ΡΠ°Π±ΠΎΡΡ ΠΈΠ·Π΄Π°Π΅Ρ Π³ΡΠ΄ΡΡΠΈΠ΅ Π·Π²ΡΠΊΠΈ, Π° Ρ Π»Π°Π΄Π°Π³Π΅Π½Ρ ΠΏΡΠΈ Π΄Π²ΠΈΠΆΠ΅Π½ΠΈΠΈ ΠΌΠΎΠΆΠ΅Ρ Π³ΡΠ΄Π΅ΡΡ ΠΈ Π±ΡΠ»ΡΠΊΠ°ΡΡ. ΠΡΠΈ Π²ΠΊΠ»ΡΡΠ΅Π½ΠΈΠΈ ΠΈ Π²ΡΠΊΠ»ΡΡΠ΅Π½ΠΈΠΈ ΠΊΠΎΠΌΠΏΡΠ΅ΡΡΠΎΡΠ° Π±ΡΠ²Π°ΡΡ ΡΠ»ΡΡΠ½Ρ Ρ Π°ΡΠ°ΠΊΡΠ΅ΡΠ½ΡΠ΅ ΡΠ΅Π»ΡΠΊΠΈ ΠΈ ΡΡΠ΅ΡΠΊ, ΠΈΠ½ΠΎΠ³Π΄Π° Π΄ΠΎΡΡΠ°ΡΠΎΡΠ½ΠΎ Π³ΡΠΎΠΌΠΊΠΈΠ΅. Π£ΡΡΡΠΎΠΉΡΡΠ²Π°, ΠΎΠ±ΠΎΡΡΠ΄ΠΎΠ²Π°Π½Π½ΡΠ΅ ΡΠΈΡΠΊΡΠ»ΡΡΠΈΠΎΠ½Π½ΠΎΠΉ ΡΠΈΡΡΠ΅ΠΌΠΎΠΉ ΠΎΡ Π»Π°ΠΆΠ΄Π΅Π½ΠΈΡ, Π° ΡΠ°ΠΊΠΆΠ΅ Ρ ΠΎΠ»ΠΎΠ΄ΠΈΠ»ΡΠ½ΠΈΠΊΠΈ Ρ ΡΠΈΡΡΠ΅ΠΌΠΎΠΉ ΡΠ°Π·ΠΌΠΎΡΠ°ΠΆΠΈΠ²Π°Π½ΠΈΡ No Frost ΠΎΡΠ½Π°ΡΠ΅Π½Ρ Π²Π΅Π½ΡΠΈΠ»ΡΡΠΎΡΠΎΠΌ, ΠΊΠΎΡΠΎΡΡΠΉ ΡΠ°ΠΊΠΆΠ΅ ΠΈΠ·Π΄Π°Π΅Ρ ΡΠΎΠΎΡΠ²Π΅ΡΡΡΠ²ΡΡΡΠΈΠΉ ΡΡΠΌ.
Π Π½Π°ΡΡΠΎΡΡΠ΅Π΅ Π²ΡΠ΅ΠΌΡ Π½ΠΎΡΠΌΠΎΠΉ Π΄Π»Ρ Ρ ΠΎΠ»ΠΎΠ΄ΠΈΠ»ΡΠ½ΠΈΠΊΠ° ΠΏΡΠΈΠ½ΡΡΠΎ ΡΡΠΈΡΠ°ΡΡ ΡΡΠΎΠ²Π΅Π½Ρ ΠΎΡ 25 Π΄ΠΎ 50 Π΄Π. ΠΠΈΠ·ΠΊΠΈΠΌ ΡΡΠΎΠ²Π½Π΅ΠΌ ΡΡΠΌΠ° ΡΡΠΈΡΠ°Π΅ΡΡΡ Π΄ΠΈΠ°ΠΏΠ°Π·ΠΎΠ½ ΠΎΡ 25 Π΄ΠΎ 34 Π΄Π, ΡΡΠ΅Π΄Π½ΠΈΠΌ — ΠΎΡ 35 Π΄ΠΎ 44 Π΄Π, Π° Π·Π½Π°ΡΠ΅Π½ΠΈΠ΅, ΠΏΡΠ΅Π²ΡΡΠ°ΡΡΠ΅Π΅ 45 Π΄Π ΠΏΡΠΈΠ·Π½Π°Π½ΠΎ Π²ΡΡΠΎΠΊΠΈΠΌ ΡΡΠΎΠ²Π½Π΅ΠΌ ΡΡΠΌΠ°.
ΠΠ²ΡΠΊΠΈ, ΠΈΠ·Π΄Π°Π²Π°Π΅ΠΌΡΠ΅ Ρ ΠΎΠ»ΠΎΠ΄ΠΈΠ»ΡΠ½ΠΈΠΊΠΎΠΌ, ΠΌΠΎΠ³ΡΡ Π±ΡΡΡ ΠΊΠ°ΠΊ ΡΠ»Π΅Π΄ΡΡΠ²ΠΈΠ΅ΠΌ Π΅Π³ΠΎ Π½ΠΎΡΠΌΠ°Π»ΡΠ½ΠΎΠΉ ΡΠ°Π±ΠΎΡΡ, ΡΠ°ΠΊ ΠΈ ΡΠΈΠ³Π½Π°Π»ΠΎΠΌ ΠΎ ΠΊΠ°ΠΊΠΈΡ -Π»ΠΈΠ±ΠΎ Π½Π΅ΠΈΡΠΏΡΠ°Π²Π½ΠΎΡΡΡΡ . Π§ΡΠΎΠ±Ρ ΡΠ±Π΅Π΄ΠΈΡΡΡΡ Π² ΠΈΡΠΏΡΠ°Π²Π½ΠΎΡΡΠΈ ΠΏΡΠΈΠ±ΠΎΡΠ°, ΡΠ»Π΅Π΄ΡΠ΅Ρ ΠΈΠ·ΠΌΠ΅ΡΠΈΡΡ ΡΠ°ΠΊΡΠΈΡΠ΅ΡΠΊΠΈΠΉ ΡΡΠΎΠ²Π΅Π½Ρ ΡΡΠΌΠ° ΠΈ ΡΡΠ°Π²Π½ΠΈΡΡ Π΅Π³ΠΎ ΡΠΎ Π·Π½Π°ΡΠ΅Π½ΠΈΠ΅ΠΌ, ΠΏΡΠΈΠ²Π΅Π΄Π΅Π½Π½ΡΠΌ Π² ΠΈΠ½ΡΡΡΡΠΊΡΠΈΠΈ. ΠΠ΅ΡΠΎΠ΄ΠΎΠ² ΡΠ½ΠΈΠΆΠ΅Π½ΠΈΡ ΡΡΠΎΠ²Π½Ρ ΡΡΠΌΠ° ΡΠ°ΠΊΠΆΠ΅ Π΄ΠΎΡΡΠ°ΡΠΎΡΠ½ΠΎ ΠΌΠ½ΠΎΠ³ΠΎ. ΠΡΠ΅Π½Ρ ΡΠ°ΡΡΠΎ Π΅Π³ΠΎ ΠΏΠΎΠ²ΡΡΠ΅Π½Π½ΡΠΉ ΡΡΠΎΠ²Π΅Π½Ρ ΡΠ²ΡΠ·Π°Π½ Ρ ΡΠ΅ΠΌ, ΡΡΠΎ Ρ ΠΎΠ»ΠΎΠ΄ΠΈΠ»ΡΠ½ΠΈΠΊ ΡΡΡΠ°Π½ΠΎΠ²Π»Π΅Π½ Π½Π΅ΡΠΎΠ²Π½ΠΎ: Π² ΡΡΠΎΠΌ ΡΠ»ΡΡΠ°Π΅ ΡΡΠ΅Π±ΡΠ΅ΡΡΡ ΠΏΡΠΎΠ²Π΅ΡΠΈΡΡ Π΅Π³ΠΎ ΡΠ°ΡΠΏΠΎΠ»ΠΎΠΆΠ΅Π½ΠΈΠ΅ ΠΏΡΠΈ ΠΏΠΎΠΌΠΎΡΠΈ ΡΡΠΎΠ²Π½Ρ ΠΈ ΠΏΡΠΈ Π½Π΅ΠΎΠ±Ρ ΠΎΠ΄ΠΈΠΌΠΎΡΡΠΈ ΠΏΠΎΠ΄Π»ΠΎΠΆΠΈΡΡ ΠΏΠΎΠ΄ Π½ΠΎΠΆΠΊΠΈ ΡΡΠΌΠΎΠΏΠΎΠ³Π»ΠΎΡΠ°ΡΡΠΈΠ΅ ΠΏΡΠΎΠΊΠ»Π°Π΄ΠΊΠΈ. ΠΠΎΠ²ΡΡΠ΅Π½Π½Π°Ρ Π²ΠΈΠ±ΡΠ°ΡΠΈΡ ΠΌΠΎΠΆΠ΅Ρ Π²ΠΎΠ·Π½ΠΈΠΊΠ°ΡΡ, Π΅ΡΠ»ΠΈ Ρ ΠΎΠ»ΠΎΠ΄ΠΈΠ»ΡΠ½ΠΈΠΊ ΠΊΠ°ΡΠ°Π΅ΡΡΡ Π΄ΡΡΠ³ΠΈΡ Π±ΡΡΠΎΠ²ΡΡ ΠΏΡΠΈΠ±ΠΎΡΠΎΠ² ΠΈΠ»ΠΈ ΡΡΠ΅Π½. ΠΠΎΠ·ΠΌΠΎΠΆΠ½ΠΎ ΡΠ°ΠΊΠΆΠ΅, ΡΡΠΎ Ρ ΠΎΠ»ΠΎΠ΄ΠΈΠ»ΡΠ½ΠΈΠΊ Π½Π΅ ΡΠ°Π·ΠΌΠΎΡΠΎΠΆΠ΅Π½ Π²ΠΎΠ²ΡΠ΅ΠΌΡ ΠΈΠ»ΠΈ ΡΡΡΠ°Π½ΠΎΠ²Π»Π΅Π½ ΡΠ»ΠΈΡΠΊΠΎΠΌ Π±Π»ΠΈΠ·ΠΊΠΎ ΠΊ ΡΡΠ΅Π½Π΅, ΡΠ°ΠΊ ΡΡΠΎ Π²Π΅Π½ΡΠΈΠ»ΡΡΠΈΡ Π½Π΅Π΄ΠΎΡΡΠ°ΡΠΎΡΠ½Π°, ΠΈ ΠΊΠΎΠΌΠΏΡΠ΅ΡΡΠΎΡ ΡΠ°Π±ΠΎΡΠ°Π΅Ρ Ρ ΡΠ²Π΅Π»ΠΈΡΠ΅Π½Π½ΠΎΠΉ Π½Π°Π³ΡΡΠ·ΠΊΠΎΠΉ.
Π£ΡΡΠ°Π½ΠΎΠ²ΠΊΠ°

ΠΠ΅ΡΠ΅Π²Π΅ΡΠΈΠ²Π°Π΅ΠΌΠ°Ρ Π΄Π²Π΅ΡΡΠ° Ρ ΠΎΠ»ΠΎΠ΄ΠΈΠ»ΡΠ½ΠΈΠΊΠ° — ΡΠ΄ΠΎΠ±Π½Π°Ρ ΠΎΠΏΡΠΈΡ, ΠΊΠΎΡΠΎΡΠ°Ρ ΠΏΠΎΠ·Π²ΠΎΠ»ΡΠ΅Ρ Π²ΡΡΡΠΎΠΈΡΡ ΠΈΠ»ΠΈ ΡΡΡΠ°Π½ΠΎΠ²ΠΈΡΡ ΠΏΡΠΈΠ±ΠΎΡ Π½Π° ΠΊΡΡ Π½Π΅, Π²ΡΠ±ΡΠ°Π² ΠΎΠΏΡΠΈΠΌΠ°Π»ΡΠ½ΠΎΠ΅ ΠΌΠ΅ΡΡΠΎ ΡΠ°Π·ΠΌΠ΅ΡΠ΅Π½ΠΈΡ. ΠΠΎ ΡΠΌΠΎΠ»ΡΠ°Π½ΠΈΡ ΠΎΡΠΊΡΡΠ²Π°Π½ΠΈΠ΅ Π΄Π²Π΅ΡΡΡ Ρ ΠΎΠ»ΠΎΠ΄ΠΈΠ»ΡΠ½ΠΈΠΊΠΎΠ² ΠΎΡΡΡΠ΅ΡΡΠ²Π»ΡΠ΅ΡΡΡ ΡΠ»Π΅Π²Π° Π½Π°ΠΏΡΠ°Π²ΠΎ, ΠΏΠΎΠ΄ Π²Π΅Π΄ΡΡΡΡ ΠΏΡΠ°Π²ΡΡ ΡΡΠΊΡ. Π‘ΠΈΡΡΠ°ΡΠΈΠΉ, Π² ΠΊΠΎΡΠΎΡΡΡ ΡΡΠ΅Π±ΡΠ΅ΡΡΡ ΠΏΠ΅ΡΠ΅Π½ΠΎΡ Π΄Π²Π΅ΡΠ½ΠΎΠ³ΠΎ ΡΠΏΠΎΡΠ° Π½Π° Π»Π΅Π²ΡΡ ΡΡΠΎΡΠΎΠ½Ρ, Π΄ΠΎΡΡΠ°ΡΠΎΡΠ½ΠΎ ΠΌΠ½ΠΎΠ³ΠΎ. ΠΡΠ΅ΠΆΠ΄Π΅ Π²ΡΠ΅Π³ΠΎ ΡΡΠΎ ΠΏΠ»Π°Π½ΠΈΡΠΎΠ²ΠΊΠ° ΠΊΡΡ Π½ΠΈ. ΠΠ΅ Π²Π΅Π·Π΄Π΅ ΠΌΠΎΠΆΠ½ΠΎ ΡΡΡΠ°Π½ΠΎΠ²ΠΈΡΡ Ρ ΠΎΠ»ΠΎΠ΄ΠΈΠ»ΡΠ½ΠΈΠΊ, ΡΠ΅ΠΌ Π±ΠΎΠ»Π΅Π΅ Π²ΡΡΡΠ°ΠΈΠ²Π°Π΅ΠΌΡΠΉ, ΡΠ°ΠΊ, ΡΡΠΎΠ±Ρ Π΄Π²Π΅ΡΡ ΠΎΡΠΊΡΡΠ²Π°Π»Π°ΡΡ Π²ΠΏΡΠ°Π²ΠΎ — ΡΡΠΎ ΠΎΡΠΎΠ±Π΅Π½Π½ΠΎ Π²Π°ΠΆΠ½ΠΎ, Π΅ΡΠ»ΠΈ ΠΏΡΠΈΠ±ΠΎΡ ΠΌΠΎΠ½ΡΠΈΡΡΠ΅ΡΡΡ Π² ΡΠΆΠ΅ Π³ΠΎΡΠΎΠ²ΡΡ ΠΊΡΡ ΠΎΠ½Π½ΡΡ ΠΌΠ΅Π±Π΅Π»Ρ. ΠΠ΅ΡΠ΅Π½Π΅ΡΡΠΈ Π΄Π²Π΅ΡΡ Π½Π° Π΄ΡΡΠ³ΡΡ ΡΡΠΎΡΠΎΠ½Ρ ΡΡΠ΅Π±ΡΠ΅ΡΡΡ ΡΠ°ΠΊΠΆΠ΅, Π΅ΡΠ»ΠΈ Π²Π»Π°Π΄Π΅Π»Π΅Ρ ΠΈΠΌΠ΅Π΅Ρ Π²Π΅Π΄ΡΡΡΡ Π»Π΅Π²ΡΡ ΡΡΠΊΡ.
ΠΠ΅ΡΠ΅Π²Π΅ΡΠΈΠ²Π°Π½ΠΈΠ΅ Π΄Π²Π΅ΡΡΡ Ρ ΠΎΠ»ΠΎΠ΄ΠΈΠ»ΡΠ½ΠΈΠΊΠ° ΠΌΠΎΠΆΠ΅Ρ ΠΏΡΠΎΠΈΠ·Π²ΠΎΠ΄ΠΈΡΡΡΡ, Π΅ΡΠ»ΠΈ Π½Π°ΡΡΡΠ΅Π½ΠΎ ΡΠΏΠ»ΠΎΡΠ½Π΅Π½ΠΈΠ΅ Π΄Π²Π΅ΡΡΡ Ρ ΠΎΠ΄Π½ΠΎΠΉ ΡΡΠΎΡΠΎΠ½Ρ, Π° Π·Π°ΠΌΠ΅Π½Π° ΠΏΠΎ ΠΊΠ°ΠΊΠΈΠΌ-Π»ΠΈΠ±ΠΎ ΠΏΡΠΈΡΠΈΠ½Π°ΠΌ Π½Π΅Π²ΠΎΠ·ΠΌΠΎΠΆΠ½Π°. Π Π±ΠΎΠ»ΡΡΠΈΠ½ΡΡΠ²Π΅ ΠΌΠΎΠ΄Π΅Π»Π΅ΠΉ, Π³Π΄Π΅ ΠΏΡΠ΅Π΄ΡΡΠΌΠΎΡΡΠ΅Π½Π° Π²ΠΎΠ·ΠΌΠΎΠΆΠ½ΠΎΡΡΡ ΠΏΠ΅ΡΠ΅Π²Π΅ΡΠΈΠ²Π°Π½ΠΈΡ Π΄Π²Π΅ΡΡΡ, ΠΌΠΎΠ³ΡΡ Π±ΡΡΡ Π·Π°ΡΠ°Π½Π΅Π΅ ΠΏΠΎΠ΄Π³ΠΎΡΠΎΠ²Π»Π΅Π½Ρ ΠΎΡΠ²Π΅ΡΡΡΠΈΡ Π΄Π»Ρ Π΄Π²Π΅ΡΠ½ΡΡ ΠΏΠ΅ΡΠ΅Π»Ρ, Π° ΡΠ°ΠΊΠΆΠ΅ Π΄Π»Ρ Π²Π½Π΅ΡΠ½Π΅ΠΉ ΡΡΡΠΊΠΈ — ΡΡΠ΅Π±ΡΠ΅ΡΡΡ ΡΠΎΠ»ΡΠΊΠΎ ΡΠ½ΡΡΡ Ρ Π½ΠΈΡ Π·Π°Π³Π»ΡΡΠΊΠΈ. ΠΠ°ΠΊ ΠΏΡΠ°Π²ΠΈΠ»ΠΎ, ΠΏΡΠΎΡΠ΅ΡΡ ΠΏΠ΅ΡΠ΅Π½ΠΎΡΠ° Π΄Π²Π΅ΡΠΈ Π·Π°Π½ΠΈΠΌΠ°Π΅Ρ Π½Π΅ΠΌΠ½ΠΎΠ³ΠΎ Π²ΡΠ΅ΠΌΠ΅Π½ΠΈ ΠΈ Π½Π΅ ΡΡΠ΅Π±ΡΠ΅Ρ ΡΠΏΠ΅ΡΠΈΠ°Π»ΡΠ½ΡΡ Π·Π½Π°Π½ΠΈΠΉ: Π΄ΠΎΡΡΠ°ΡΠΎΡΠ½ΠΎ Π²ΠΎΡΠΏΠΎΠ»ΡΠ·ΠΎΠ²Π°ΡΡΡΡ ΡΠΊΠ°Π·Π°Π½ΠΈΡΠΌΠΈ, ΠΏΡΠΈΠ²Π΅Π΄Π΅Π½Π½ΡΠΌΠΈ Π² ΠΈΠ½ΡΡΡΡΠΊΡΠΈΠΈ.
ΠΠ½Π΄ΠΈΠΊΠ°ΡΠΈΡ ΠΈ Π±Π΅Π·ΠΎΠΏΠ°ΡΠ½ΠΎΡΡΡ

ΠΠ½Π΄ΠΈΠΊΠ°ΡΠΎΡΡ Π² Ρ ΠΎΠ»ΠΎΠ΄ΠΈΠ»ΡΠ½ΠΈΠΊΠ°Ρ ΠΏΠΎΠ·Π²ΠΎΠ»ΡΡΡ ΠΊΠΎΠ½ΡΡΠΎΠ»ΠΈΡΠΎΠ²Π°ΡΡ ΡΠ°Π±ΠΎΡΡ ΠΏΡΠΈΠ±ΠΎΡΠΎΠ², ΠΎΡΡΠ»Π΅ΠΆΠΈΠ²Π°ΡΡ ΠΏΠΎΡΠ²Π»Π΅Π½ΠΈΠ΅ Π½Π΅ΠΈΡΠΏΡΠ°Π²Π½ΠΎΡΡΠ΅ΠΉ, Π²ΠΎΠ²ΡΠ΅ΠΌΡ ΠΈΡΠΏΡΠ°Π²Π»ΡΡΡ ΠΎΡΠΈΠ±ΠΊΠΈ ΠΈΠ»ΠΈ ΠΎΠ±ΡΠ°ΡΠ°ΡΡΡΡ Π·Π° ΠΏΠΎΠΌΠΎΡΡΡ ΠΊ ΡΠΏΠ΅ΡΠΈΠ°Π»ΠΈΡΡΠ°ΠΌ.
ΠΠ½Π΄ΠΈΠΊΠ°ΡΠΎΡΠ°ΠΌΠΈ ΡΠ½Π°Π±ΠΆΠ΅Π½Ρ Ρ
ΠΎΠ»ΠΎΠ΄ΠΈΠ»ΡΠ½ΠΈΠΊΠΈ Ρ ΠΌΠ΅Ρ
Π°Π½ΠΈΡΠ΅ΡΠΊΠΎΠΉ ΠΈ ΡΠ»Π΅ΠΊΡΡΠΎΠ½Π½ΠΎΠΉ ΡΠΈΡΡΠ΅ΠΌΠ°ΠΌΠΈ ΡΠΏΡΠ°Π²Π»Π΅Π½ΠΈΡ. Π ΠΏΠ΅ΡΠ²ΠΎΠΌ ΡΠ»ΡΡΠ°Π΅, ΠΊΠ°ΠΊ ΠΏΡΠ°Π²ΠΈΠ»ΠΎ, ΠΏΡΠΈΠ±ΠΎΡΡ ΠΎΡΠ½Π°ΡΠ°ΡΡΡΡ ΠΈΠ½Π΄ΠΈΠΊΠ°ΡΠΈΠ΅ΠΉ Π²ΠΊΠ»ΡΡΠ΅Π½ΠΈΡ-Π²ΡΠΊΠ»ΡΡΠ΅Π½ΠΈΡ. ΠΠ½Π΄ΠΈΠΊΠ°ΡΠΎΡ Π·Π΅Π»Π΅Π½ΠΎΠ³ΠΎ ΡΠ²Π΅ΡΠ° ΠΎΠΏΠΎΠ²Π΅ΡΠ°Π΅Ρ ΠΎ ΡΠΎΠΌ, ΡΡΠΎ Ρ
ΠΎΠ»ΠΎΠ΄ΠΈΠ»ΡΠ½ΠΈΠΊ ΠΏΠΎΠ΄ΠΊΠ»ΡΡΠ΅Π½ Π² ΡΠ΅ΡΠΈ, ΠΌΠΎΡΠΎΠ·ΠΈΠ»ΡΠ½Π°Ρ ΠΈ Ρ
ΠΎΠ»ΠΎΠ΄ΠΈΠ»ΡΠ½Π°Ρ ΠΊΠ°ΠΌΠ΅ΡΡ ΡΠ°Π±ΠΎΡΠ°ΡΡ Π½ΠΎΡΠΌΠ°Π»ΡΠ½ΠΎ. ΠΡΠ»ΠΈ ΡΠΎΠΎΡΠ²Π΅ΡΡΡΠ²ΡΡΡΠΈΠΉ ΠΈΠ½Π΄ΠΈΠΊΠ°ΡΠΎΡ Π½Π°ΡΠΈΠ½Π°Π΅Ρ ΠΌΠΈΠ³Π°ΡΡ ΠΈΠ»ΠΈ ΠΈΠ·ΠΌΠ΅Π½ΡΠ΅Ρ ΡΠ²ΠΎΠΉ ΡΠ²Π΅Ρ Π½Π° ΠΊΡΠ°ΡΠ½ΡΠΉ, ΡΠΊΠΎΡΠ΅Π΅ Π²ΡΠ΅Π³ΠΎ, ΡΠ΅ΠΌΠΏΠ΅ΡΠ°ΡΡΡΠ° Π² ΠΊΠ°ΠΌΠ΅ΡΠ΅ ΠΏΠΎΠ²ΡΡΠ΅Π½Π°.
ΠΡΠΎ ΠΌΠΎΠΆΠ΅Ρ ΠΏΡΠΎΠΈΡΡ
ΠΎΠ΄ΠΈΡΡ ΠΏΠΎ ΡΠ°Π·Π½ΡΠΌ ΠΏΡΠΈΡΠΈΠ½Π°ΠΌ. ΠΠΎΠ»ΡΠ·ΠΎΠ²Π°ΡΠ΅Π»Ρ ΠΌΠΎΠΆΠ΅Ρ ΠΈΡΠΏΡΠ°Π²ΠΈΡΡ ΠΌΠ½ΠΎΠ³ΠΈΠ΅ ΠΈΠ· Π½ΠΈΡ
ΡΠ°ΠΌΠΎΡΡΠΎΡΡΠ΅Π»ΡΠ½ΠΎ — Π½Π°ΠΏΡΠΈΠΌΠ΅Ρ, ΠΎΡΠΈΡΡΠΈΡΡ ΡΠΊΠΎΠΏΠ»Π΅Π½ΠΈΠ΅ Π»ΡΠ΄Π° Π½Π° ΡΡΠ΅Π½ΠΊΠ°Ρ
ΠΈΠ»ΠΈ ΠΏΡΠΎΠ²Π΅ΡΠΈΡΡ ΡΠΎΡ
ΡΠ°Π½Π½ΠΎΡΡΡ ΡΠ΅Π·ΠΈΠ½ΠΎΠ²ΠΎΠ³ΠΎ ΡΠΏΠ»ΠΎΡΠ½ΠΈΡΠ΅Π»Ρ Π΄Π²Π΅ΡΡΡ.
ΠΠΎΡΠ°Π·Π΄ΠΎ ΡΠΎΡΠ½Π΅Π΅ ΡΠΎΡΠΈΠ΅Π½ΡΠΈΡΠΎΠ²Π°ΡΡΡΡ ΠΏΠΎ ΠΈΠ½Π΄ΠΈΠΊΠ°ΡΠΎΡΠ°ΠΌ ΠΌΠΎΠΆΠ½ΠΎ Π² Ρ ΠΎΠ»ΠΎΠ΄ΠΈΠ»ΡΠ½ΠΈΠΊΠ°Ρ Ρ ΡΠ»Π΅ΠΊΡΡΠΎΠ½Π½ΠΎΠΉ ΡΠΈΡΡΠ΅ΠΌΠΎΠΉ ΡΠΏΡΠ°Π²Π»Π΅Π½ΠΈΡ. ΠΡΠΈ ΡΡΡΡΠΎΠΉΡΡΠ²Π° ΠΎΠ±ΡΡΠ½ΠΎ ΠΎΡΠ½Π°ΡΠ΅Π½Ρ Π΄ΠΈΡΠΏΠ»Π΅Π΅ΠΌ, Π½Π° ΠΊΠΎΡΠΎΡΠΎΠΌ Π²ΡΡΠ²Π΅ΡΠΈΠ²Π°ΡΡΡΡ Π·Π½Π°ΡΠ΅Π½ΠΈΡ ΡΠ°ΠΊΡΠΈΡΠ΅ΡΠΊΠΎΠΉ ΡΠ΅ΠΌΠΏΠ΅ΡΠ°ΡΡΡΡ Π² Ρ ΠΎΠ»ΠΎΠ΄ΠΈΠ»ΡΠ½ΠΎΠΉ ΠΈ ΠΌΠΎΡΠΎΠ·ΠΈΠ»ΡΠ½ΠΎΠΉ ΠΊΠ°ΠΌΠ΅ΡΠ°Ρ . Π ΡΠ΄ΠΎΠΌ Ρ Π½ΠΈΠΌΠΈ ΡΠ°ΡΠΏΠΎΠ»Π°Π³Π°ΡΡΡΡ ΠΊΠ½ΠΎΠΏΠΊΠΈ, Π²ΠΎ ΠΌΠ½ΠΎΠ³ΠΈΡ ΡΠ»ΡΡΠ°ΡΡ ΡΠ΅Π½ΡΠΎΡΠ½ΡΠ΅, ΠΏΡΠΈ ΠΏΠΎΠΌΠΎΡΠΈ ΠΊΠΎΡΠΎΡΡΡ ΠΌΠΎΠΆΠ½ΠΎ ΡΠ΅Π³ΡΠ»ΠΈΡΠΎΠ²Π°ΡΡ ΡΠ΅ΠΌΠΏΠ΅ΡΠ°ΡΡΡΡ Π² ΠΊΠ°ΠΆΠ΄ΠΎΠΉ ΠΊΠ°ΠΌΠ΅ΡΠ΅ ΠΎΡΠ΄Π΅Π»ΡΠ½ΠΎ, ΠΈ ΠΈΠ½Π΄ΠΈΠΊΠ°ΡΠΎΡΡ Π²ΠΊΠ»ΡΡΠ΅Π½ΠΈΡ ΡΡΠΈΡ ΠΊΠ°ΠΌΠ΅Ρ. ΠΠ΄Π΅ΡΡ ΠΆΠ΅, Π½Π° ΠΏΠ°Π½Π΅Π»ΠΈ ΠΈΠ½ΡΡΡΡΠΌΠ΅Π½ΡΠΎΠ², Π½Π°Ρ ΠΎΠ΄ΡΡΡΡ ΠΈΠ½Π΄ΠΈΠΊΠ°ΡΠΎΡΡ, ΡΠΊΠ°Π·ΡΠ²Π°ΡΡΠΈΠ΅ Π½Π° Π°ΠΊΡΠΈΠ²Π°ΡΠΈΡ Π΄ΠΎΠΏΠΎΠ»Π½ΠΈΡΠ΅Π»ΡΠ½ΡΡ ΠΎΠΏΡΠΈΠΉ — Π½Π°ΠΏΡΠΈΠΌΠ΅Ρ, ΡΠ΅ΠΆΠΈΠΌΠΎΠ² Π±ΡΡΡΡΠΎΠ³ΠΎ Π·Π°ΠΌΠΎΡΠ°ΠΆΠΈΠ²Π°Π½ΠΈΡ ΠΈ Π±ΡΡΡΡΠΎΠ³ΠΎ ΠΎΡ Π»Π°ΠΆΠ΄Π΅Π½ΠΈΡ, ΠΎΡΠΏΡΡΠΊΠ½ΠΎΠ³ΠΎ ΡΠ΅ΠΆΠΈΠΌΠ°, Π±Π»ΠΎΠΊΠΈΡΠΎΠ²ΠΊΠΈ ΠΏΠ°Π½Π΅Π»ΠΈ ΡΠΏΡΠ°Π²Π»Π΅Π½ΠΈΡ ΠΎΡ Π΄Π΅ΡΠ΅ΠΉ.
ΠΠ»Ρ Ρ ΠΎΠ»ΠΎΠ΄ΠΈΠ»ΡΠ½ΠΎΠΉ ΠΈ ΠΌΠΎΡΠΎΠ·ΠΈΠ»ΡΠ½ΠΎΠΉ ΠΊΠ°ΠΌΠ΅Ρ Π² ΡΠ°ΠΊΠΈΡ ΠΏΡΠΈΠ±ΠΎΡΠ°Ρ ΠΈΠΌΠ΅ΡΡΡΡ ΠΎΡΠ΄Π΅Π»ΡΠ½ΡΠ΅ ΠΈΠ½Π΄ΠΈΠΊΠ°ΡΠΎΡΡ, ΡΠΊΠ°Π·ΡΠ²Π°ΡΡΠΈΠ΅ Π½Π° ΠΏΡΠ΅Π²ΡΡΠ΅Π½ΠΈΠ΅ Π·Π°Π΄Π°Π½Π½ΠΎΠΉ ΡΠ΅ΠΌΠΏΠ΅ΡΠ°ΡΡΡΡ. ΠΡΠΎΠΌΠ΅ ΡΠΎΠ³ΠΎ, Π½Π° Π΄ΠΈΡΠΏΠ»Π΅Π΅ Π²ΠΌΠ΅ΡΡΠΎ Π·Π½Π°ΡΠ΅Π½ΠΈΡ ΡΠ΅ΠΌΠΏΠ΅ΡΠ°ΡΡΡΡ ΠΌΠΎΠ³ΡΡ ΠΏΠΎΡΠ²Π»ΡΡΡΡΡ ΡΠΈΠΌΠ²ΠΎΠ»Ρ ΠΈΠ»ΠΈ ΠΊΠΎΠ΄Ρ, ΡΠΊΠ°Π·ΡΠ²Π°ΡΡΠΈΠ΅ Π½Π° Π²ΠΎΠ·Π½ΠΈΠΊΠ½ΠΎΠ²Π΅Π½ΠΈΠ΅ ΡΠΎΠΉ ΠΈΠ»ΠΈ ΠΈΠ½ΠΎΠΉ ΠΎΡΠΈΠ±ΠΊΠΈ.
Π’Π΅ΠΌΠΏΠ΅ΡΠ°ΡΡΡΡ ΠΌΠΎΡΠΎΠ·ΠΈΠ»ΡΠ½ΠΎΠ³ΠΎ ΠΎΡΠ΄Π΅Π»Π΅Π½ΠΈΡ
Π Π΅ΠΆΠΈΠΌ SuperCool
Π Π΅ΠΆΠΈΠΌ SuperFrost
Π Π΅ΠΆΠΈΠΌ ΠΎΡΠΏΡΡΠΊ

ΠΠ½Π΄ΠΈΠΊΠ°ΡΠΈΡ ΠΎΡΠΊΡΡΡΠΎΠΉ Π΄Π²Π΅ΡΠΈ Ρ ΠΎΠ»ΠΎΠ΄ΠΈΠ»ΡΠ½ΠΈΠΊΠ° — ΡΠ΄ΠΎΠ±Π½ΠΎΠ΅ ΠΈ ΠΏΡΠ°ΠΊΡΠΈΡΠ½ΠΎΠ΅ ΡΡΠ΅Π΄ΡΡΠ²ΠΎ, ΠΏΠΎΠ·Π²ΠΎΠ»ΡΡΡΠ΅Π΅ ΠΏΠΎΠ²ΡΡΠΈΡΡ ΠΊΠ°ΡΠ΅ΡΡΠ²ΠΎ Ρ ΡΠ°Π½Π΅Π½ΠΈΡ ΠΏΡΠΎΠ΄ΡΠΊΡΠΎΠ², Π° ΡΠ°ΠΊΠΆΠ΅ ΠΏΡΠ΅Π΄ΠΎΡ ΡΠ°Π½ΠΈΡΡ ΠΌΠ΅Ρ Π°Π½ΠΈΠ·ΠΌ ΡΡΡΡΠΎΠΉΡΡΠ²Π° ΠΎΡ ΡΡΠ΅Π·ΠΌΠ΅ΡΠ½ΠΎΠΉ Π½Π°Π³ΡΡΠ·ΠΊΠΈ. ΠΡΠΎΠ±Π΅Π½Π½ΠΎ ΠΎΠ½Π° ΠΏΠΎΠ»Π΅Π·Π½Π°, Π΅ΡΠ»ΠΈ Π² Π΄ΠΎΠΌΠ΅ ΠΈΠΌΠ΅ΡΡΡΡ Π΄Π΅ΡΠΈ ΠΈΠ»ΠΈ Π΄ΠΎΠΌΠ°ΡΠ½ΠΈΠ΅ ΠΆΠΈΠ²ΠΎΡΠ½ΡΠ΅, ΠΊΠΎΡΠΎΡΡΠ΅ ΠΌΠΎΠ³ΡΡ ΠΎΡΠΊΡΡΡΡ Ρ ΠΎΠ»ΠΎΠ΄ΠΈΠ»ΡΠ½ΠΈΠΊ ΠΈ Π·Π°ΡΠ΅ΠΌ ΠΎΡΡΠ°Π²ΠΈΡΡ Π΅Π³ΠΎ Π΄Π²Π΅ΡΡ ΠΏΡΠΈΠΎΡΠΊΡΡΡΠΎΠΉ.
ΠΠ°ΠΆΠ΅ ΡΠ°ΠΌΠΎΠ΅ ΠΌΠ°Π»ΠΎΠ΅ ΡΠ°ΡΡΡΠΎΡΠ½ΠΈΠ΅ ΠΌΠ΅ΠΆΠ΄Ρ Π΄Π²Π΅ΡΡΠ΅ΠΉ ΠΈ ΠΊΠΎΡΠΏΡΡΠΎΠΌ ΠΎΠ·Π½Π°ΡΠ°Π΅Ρ, ΡΡΠΎ Π²Π½ΡΡΡΡ Π±ΡΠ΄Π΅Ρ ΠΏΠΎΡΡΡΠΏΠ°ΡΡ ΡΠ΅ΠΏΠ»ΡΠΉ Π²ΠΎΠ·Π΄ΡΡ , Π² ΡΠ΅Π·ΡΠ»ΡΡΠ°ΡΠ΅ ΡΠ΅Π³ΠΎ ΡΠ΅ΠΌΠΏΠ΅ΡΠ°ΡΡΡΠ° Π² ΠΎΡΠ΄Π΅Π»Π΅Π½ΠΈΡΡ ΠΏΠΎΠ²ΡΡΠΈΡΡΡ. Π ΡΡΠΎΠΌ ΡΠ»ΡΡΠ°Π΅ ΠΊΠΎΠΌΠΏΡΠ΅ΡΡΠΎΡ Π½Π°ΡΠ½Π΅Ρ ΡΠ°Π±ΠΎΡΠ°ΡΡ, ΡΡΠ°ΡΠ°ΡΡΡ ΡΠ½ΠΈΠ·ΠΈΡΡ Π΅Π΅ Π΄ΠΎ Π·Π°Π΄Π°Π½Π½ΠΎΠ³ΠΎ ΡΡΠΎΠ²Π½Ρ, ΡΡΠΎ ΠΌΠΎΠΆΠ΅Ρ ΠΏΡΠΈΠ²Π΅ΡΡΠΈ Π² ΠΈΡΠΎΠ³Π΅ ΠΊ Π΅Π³ΠΎ ΠΏΠ΅ΡΠ΅Π³ΡΠ΅Π²Ρ ΠΈ Π΄Π°ΠΆΠ΅ Π²ΡΡ ΠΎΠ΄Ρ ΠΈΠ· ΡΡΡΠΎΡ. Π§Π°ΡΠ΅ Π²ΡΠ΅Π³ΠΎ Π΄Π»Ρ ΠΎΠΏΠΎΠ²Π΅ΡΠ΅Π½ΠΈΡ ΠΎ Π½Π΅ΠΏΠ»ΠΎΡΠ½ΠΎ Π·Π°ΠΊΡΡΡΠΎΠΉ Π΄Π²Π΅ΡΡΠ΅ ΠΈΡΠΏΠΎΠ»ΡΠ·ΡΠ΅ΡΡΡ Π·Π²ΡΠΊΠΎΠ²Π°Ρ ΡΠΈΠ³Π½Π°Π»ΠΈΠ·Π°ΡΠΈΡ, ΠΊΠΎΡΠΎΡΡΡ ΠΌΠΎΠΆΠ½ΠΎ ΡΡΠ»ΡΡΠ°ΡΡ, Π½Π°Ρ ΠΎΠ΄ΡΡΡ Π² Π΄ΡΡΠ³ΠΈΡ ΠΊΠΎΠΌΠ½Π°ΡΠ°Ρ . ΠΠ½ΠΎΠ³Π΄Π° Π³ΡΠΎΠΌΠΊΠΎΡΡΡ Π·Π²ΡΠΊΠ° ΡΠ²Π΅Π»ΠΈΡΠΈΠ²Π°Π΅ΡΡΡ ΡΠΎ Π²ΡΠ΅ΠΌΠ΅Π½Π΅ΠΌ, ΡΡΠΎΠ±Ρ Π³Π°ΡΠ°Π½ΡΠΈΡΠΎΠ²Π°Π½Π½ΠΎ ΠΏΡΠΈΠ²Π»Π΅ΡΡ Π²Π½ΠΈΠΌΠ°Π½ΠΈΠ΅ Π²Π»Π°Π΄Π΅Π»ΡΡΠ°. ΠΠΎΠ΄ΠΎΠ±Π½ΠΎΠ΅ ΠΎΠΏΠΎΠ²Π΅ΡΠ΅Π½ΠΈΠ΅ ΠΌΠΎΠΆΠ΅Ρ ΡΡΠ°Π±Π°ΡΡΠ²Π°ΡΡ ΡΠ°ΠΊΠΆΠ΅, Π΅ΡΠ»ΠΈ Π΄Π²Π΅ΡΡΠ° Π·Π°ΠΊΡΡΠ²Π°Π΅ΡΡΡ Π½Π΅ΠΏΠ»ΠΎΡΠ½ΠΎ Π²ΡΠ»Π΅Π΄ΡΡΠ²ΠΈΠ΅ Π²ΡΡ ΠΎΠ΄Π° ΠΈΠ· ΡΡΡΠΎΡ Π΅Π΅ ΡΠΏΠ»ΠΎΡΠ½ΠΈΡΠ΅Π»Ρ.
Π ΡΡΠ΄Π΅ ΠΌΠΎΠ΄Π΅Π»Π΅ΠΉ Π·Π²ΡΠΊ Π΄ΠΎΠΏΠΎΠ»Π½ΡΠ΅ΡΡΡ ΡΠ²Π΅ΡΠΎΠ²ΠΎΠΉ ΡΠΈΠ³Π½Π°Π»ΠΈΠ·Π°ΡΠΈΠ΅ΠΉ, ΠΎΡΠΎΠ±Π΅Π½Π½ΠΎ Π·Π°ΠΌΠ΅ΡΠ½ΠΎΠΉ, Π΅ΡΠ»ΠΈ ΠΏΠ°Π½Π΅Π»Ρ ΡΠΏΡΠ°Π²Π»Π΅Π½ΠΈΡ ΠΈΠ»ΠΈ ΠΈΠ½Π΄ΠΈΠΊΠ°ΡΠΎΡΡ ΡΠ°ΡΠΏΠΎΠ»Π°Π³Π°ΡΡΡΡ Π½Π° Π²Π½Π΅ΡΠ½Π΅ΠΉ ΡΠ°ΡΡΠΈ ΠΊΠΎΡΠΏΡΡΠ°.

ΠΠ½Π΄ΠΈΠΊΠ°ΡΠΈΡ ΠΏΠΎΠ²ΡΡΠ΅Π½ΠΈΡ ΡΠ΅ΠΌΠΏΠ΅ΡΠ°ΡΡΡΡ — ΠΏΠΎΠ»Π΅Π·Π½Π°Ρ ΠΎΠΏΡΠΈΡ, ΠΏΠΎΠ·Π²ΠΎΠ»ΡΡΡΠ°Ρ Π²ΠΎΠ²ΡΠ΅ΠΌΡ Π·Π°ΡΠΈΠΊΡΠΈΡΠΎΠ²Π°ΡΡ ΠΏΡΠΎΠ±Π»Π΅ΠΌΡ Π² ΡΠ°Π±ΠΎΡΠ΅ ΠΏΡΠΈΠ±ΠΎΡΠ° ΠΈ ΡΡΡΡΠ°Π½ΠΈΡΡ Π΅Π΅ Π΄ΠΎ ΡΠΎΠ³ΠΎ, ΠΊΠ°ΠΊ ΠΏΡΠΎΠ΄ΡΠΊΡΡ ΡΡΠΏΠ΅ΡΡ ΠΈΡΠΏΠΎΡΡΠΈΡΡΡΡ. Π Π±ΠΎΠ»ΡΡΠΈΠ½ΡΡΠ²Π΅ ΡΠΎΠ²ΡΠ΅ΠΌΠ΅Π½Π½ΡΡ Ρ ΠΎΠ»ΠΎΠ΄ΠΈΠ»ΡΠ½ΠΈΠΊΠΎΠ² ΠΈΡΠΏΠΎΠ»ΡΠ·ΡΠ΅ΡΡΡ ΡΠΈΡΡΠ΅ΠΌΠ° ΡΠ²Π΅ΡΠΎΠ²ΠΎΠΉ ΠΈ Π·Π²ΡΠΊΠΎΠ²ΠΎΠΉ ΡΠΈΠ³Π½Π°Π»ΠΈΠ·Π°ΡΠΈΠΈ ΠΎ ΠΏΠΎΠ²ΡΡΠ΅Π½ΠΈΠΈ ΡΠ΅ΠΌΠΏΠ΅ΡΠ°ΡΡΡΡ. ΠΠ½Π° ΡΡΠ°Π±Π°ΡΡΠ²Π°Π΅Ρ, ΠΊΠΎΠ³Π΄Π° Π΄Π°Π½Π½ΡΠ΅ Ρ ΡΠ΅ΡΠΌΠΎΠ΄Π°ΡΡΠΈΠΊΠΎΠ², ΡΠΈΠΊΡΠΈΡΡΡΡΠΈΡ ΡΠ΅Π°Π»ΡΠ½ΡΡ ΡΠ΅ΠΌΠΏΠ΅ΡΠ°ΡΡΡΡ Π² ΠΊΠ°ΠΌΠ΅ΡΠ°Ρ , ΠΏΠΎΡΡΡΠΏΠ°ΡΡ Π² ΡΡΡΡΠΎΠΉΡΡΠ²ΠΎ ΡΠΏΡΠ°Π²Π»Π΅Π½ΠΈΡ ΠΈ ΡΡΠ°Π²Π½ΠΈΠ²Π°ΡΡΡΡ ΡΠ°ΠΌ Ρ ΠΌΠΈΠ½ΠΈΠΌΠ°Π»ΡΠ½ΠΎ Π΄ΠΎΠΏΡΡΡΠΈΠΌΡΠΌ Π·Π½Π°ΡΠ΅Π½ΠΈΠ΅ΠΌ ΡΠ΅ΠΌΠΏΠ΅ΡΠ°ΡΡΡΡ.
ΠΡΠΈΡΠΈΠ½ ΠΏΠΎΠ²ΡΡΠ΅Π½ΠΈΡ ΡΠ΅ΠΌΠΏΠ΅ΡΠ°ΡΡΡΡ Π΄ΠΎΡΡΠ°ΡΠΎΡΠ½ΠΎ ΠΌΠ½ΠΎΠ³ΠΎ — ΠΎΡ Π½Π΅ΠΏΠ»ΠΎΡΠ½ΠΎ Π·Π°ΠΊΡΡΡΠΎΠΉ Π΄Π²Π΅ΡΡΡ ΠΈΠ»ΠΈ Π·Π°Π³ΡΡΠ·ΠΊΠΈ Π±ΠΎΠ»ΡΡΠΎΠ³ΠΎ ΠΊΠΎΠ»ΠΈΡΠ΅ΡΡΠ²Π° ΡΠ²Π΅ΠΆΠΈΡ ΠΏΡΠΎΠ΄ΡΠΊΡΠΎΠ² Π΄ΠΎ ΡΡΠ΅ΡΠΊΠΈ ΡΡΠ΅ΠΎΠ½Π°, Π½Π΅ΠΈΡΠΏΡΠ°Π²Π½ΠΎΡΡΠΈ Π±Π»ΠΎΠΊΠ° ΡΠΏΡΠ°Π²Π»Π΅Π½ΠΈΡ ΠΈΠ»ΠΈ ΠΊΠΎΠΌΠΏΡΠ΅ΡΡΠΎΡΠ°. ΠΠ²ΡΠΊΠΎΠ²ΡΠ΅ ΡΠΈΠ³Π½Π°Π»Ρ ΠΏΡΠ΅Π΄ΡΡΠ°Π²Π»ΡΡΡ ΡΠΎΠ±ΠΎΠΉ ΠΏΠΎΡΡΠΎΡΠ½Π½ΡΠΉ ΠΈΠ»ΠΈ ΠΏΡΠ΅ΡΡΠ²ΠΈΡΡΡΠΉ «ΠΏΠΈΡΠΊ», ΠΊΠΎΡΠΎΡΡΠΉ ΠΏΡΠ΅ΠΊΡΠ°ΡΠ°Π΅ΡΡΡ, Π΅ΡΠ»ΠΈ Π²Π»Π°Π΄Π΅Π»Π΅Ρ ΠΏΡΠΈΠ½ΠΈΠΌΠ°Π΅Ρ ΠΌΠ΅ΡΡ ΠΏΠΎ ΡΠ΅Π³ΡΠ»ΠΈΡΠΎΠ²ΠΊΠ΅ ΡΠ΅ΠΌΠΏΠ΅ΡΠ°ΡΡΡΡ ΠΈΠ»ΠΈ (Π² ΡΠ»ΡΡΠ°Π΅ ΡΠ»ΠΎΠΆΠ½ΠΎΠΉ ΠΏΠΎΠ»ΠΎΠΌΠΊΠΈ) ΠΏΡΠΈ ΠΎΡΠΊΠ»ΡΡΠ΅Π½ΠΈΠΈ ΡΡΡΡΠΎΠΉΡΡΠ²Π°.
Π‘Π²Π΅ΡΠΎΠ²Π°Ρ ΡΠΈΠ³Π½Π°Π»ΠΈΠ·Π°ΡΠΈΡ — ΡΡΠΎ Π²ΠΊΠ»ΡΡΠ΅Π½ΠΈΠ΅ ΠΈΠ»ΠΈ ΠΈΠ·ΠΌΠ΅Π½Π΅Π½ΠΈΠ΅ ΡΠ²Π΅ΡΠ° ΠΈΠ½Π΄ΠΈΠΊΠ°ΡΠΎΡΠΎΠ² Π½Π° ΠΏΠ°Π½Π΅Π»ΠΈ ΡΠΏΡΠ°Π²Π»Π΅Π½ΠΈΡ ΠΈΠ»ΠΈ ΠΏΠΎΡΠ²Π»Π΅Π½ΠΈΠ΅ ΡΠ΅ΠΊΡΡΠΎΠ²ΠΎΠ³ΠΎ ΡΠΎΠΎΠ±ΡΠ΅Π½ΠΈΡ (Π½Π°ΠΏΡΠΈΠΌΠ΅Ρ, «Alarm!») Π½Π° Π΄ΠΈΡΠΏΠ»Π΅Π΅. ΠΠ°ΠΊ ΠΏΡΠ°Π²ΠΈΠ»ΠΎ, ΠΎΠ±Π° Π²ΠΈΠ΄Π° ΡΠΈΠ³Π½Π°Π»ΠΈΠ·Π°ΡΠΈΠΈ ΡΡΠ°Π±Π°ΡΡΠ²Π°ΡΡ ΠΎΠ΄Π½ΠΎΠ²ΡΠ΅ΠΌΠ΅Π½Π½ΠΎ, ΡΡΠΎ ΡΠ²Π΅Π»ΠΈΡΠΈΠ²Π°Π΅Ρ ΡΠ°Π½ΡΡ Π½Π° Π±ΡΡΡΡΠΎΠ΅ ΡΡΡΡΠ°Π½Π΅Π½ΠΈΠ΅ ΠΏΡΠΎΠ±Π»Π΅ΠΌΡ.

Π‘ΠΈΠ³Π½Π°Π»ΠΈΠ·Π°ΡΠΈΡ ΠΎ Π½Π΅ΠΈΡΠΏΡΠ°Π²Π½ΠΎΡΡΠΈ Π² Ρ ΠΎΠ»ΠΎΠ΄ΠΈΠ»ΡΠ½ΠΈΠΊΠ΅ β ΠΏΡΠΎΡΡΠ΅ΠΉΡΠΈΠΉ ΡΠΏΠΎΡΠΎΠ±, ΠΏΠΎΠ·Π²ΠΎΠ»ΡΡΡΠΈΠΉ Π΄ΠΎΠ²Π΅ΡΡΠΈ Π΄ΠΎ ΠΏΠΎΠ»ΡΠ·ΠΎΠ²Π°ΡΠ΅Π»Ρ ΡΠΎΠΎΠ±ΡΠ΅Π½ΠΈΠ΅ ΠΎ ΡΠ±ΠΎΠ΅ Π² ΡΠ°Π±ΠΎΡΠ΅ ΠΏΡΠΈΠ±ΠΎΡΠ°. ΠΡΠ΄Π΅Π»ΡΡΡ Π΄Π²Π° ΡΠΈΠΏΠ° ΡΠΈΠ³Π½Π°Π»ΠΈΠ·Π°ΡΠΈΠΈ β Π·Π²ΡΠΊΠΎΠ²ΡΡ ΠΈ ΡΠ²Π΅ΡΠΎΠ²ΡΡ.
ΠΠ²ΡΠΊΠΎΠ²Π°Ρ ΡΠ°ΡΡΠΎ ΠΈΡΠΏΠΎΠ»ΡΠ·ΡΠ΅ΡΡΡ, ΠΊΠΎΠ³Π΄Π° ΠΌΠ΅ΡΡ Π½Π΅ΠΎΠ±Ρ ΠΎΠ΄ΠΈΠΌΠΎ ΠΏΡΠΈΠ½ΡΡΡ Π½Π΅ΠΌΠ΅Π΄Π»Π΅Π½Π½ΠΎ. Π ΡΠΈΡΠ»Ρ ΡΠ°ΠΊΠΈΡ ΡΠΈΡΡΠ°ΡΠΈΠΉ ΠΎΡΠ½ΠΎΡΠΈΡΡΡ ΠΏΡΠ΅ΠΆΠ΄Π΅ Π²ΡΠ΅Π³ΠΎ ΠΎΡΠΊΡΡΡΠ°Ρ ΠΈΠ»ΠΈ Π½Π΅ΠΏΠ»ΠΎΡΠ½ΠΎ Π·Π°ΠΊΡΡΡΠ°Ρ Π΄Π²Π΅ΡΡΠ° Ρ ΠΎΠ»ΠΎΠ΄ΠΈΠ»ΡΠ½ΠΈΠΊΠ°, Π° ΡΠ°ΠΊΠΆΠ΅ ΠΏΠΎΠ²ΡΠ΅ΠΆΠ΄Π΅Π½ΠΈΠ΅ ΡΠΏΠ»ΠΎΡΠ½ΠΈΡΠ΅Π»Ρ. ΠΡΠ»ΠΈ ΠΆΠ΅ Π΄Π²Π΅ΡΡΠ° Π·Π°ΠΊΡΡΡΠ°, Π·Π²ΡΠΊΠΎΠ²ΠΎΠΉ ΡΠΈΠ³Π½Π°Π» ΠΌΠΎΠΆΠ΅Ρ ΠΎΠΏΠΎΠ²Π΅ΡΠ°ΡΡ ΠΎ ΡΠΎΠΌ, ΡΡΠΎ Π² ΠΊΠ°ΠΌΠ΅ΡΡ Π·Π°Π³ΡΡΠΆΠ΅Π½ΠΎ Π±ΠΎΠ»ΡΡΠΎΠ΅ ΠΊΠΎΠ»ΠΈΡΠ΅ΡΡΠ²ΠΎ ΡΠ²Π΅ΠΆΠΈΡ ΠΏΡΠΎΠ΄ΡΠΊΡΠΎΠ², ΠΈ ΡΠ΅ΠΌΠΏΠ΅ΡΠ°ΡΡΡΠ° Π² ΠΊΠ°ΠΌΠ΅ΡΠ΅ ΠΏΠΎΠ²ΡΡΠ΅Π½Π°. Π ΡΠ»ΡΡΠ°Π΅, ΠΊΠΎΠ³Π΄Π° Ρ ΠΎΠ»ΠΎΠ΄ΠΈΠ»ΡΠ½ΠΈΠΊ ΡΠΎΠ»ΡΠΊΠΎ ΡΡΠΎ ΡΡΡΠ°Π½ΠΎΠ²Π»Π΅Π½ Π½Π° ΠΌΠ΅ΡΡΠΎ, Π·Π²ΡΠΊΠΎΠ²ΠΎΠΉ ΡΠΈΠ³Π½Π°Π» ΠΌΠΎΠΆΠ΅Ρ ΠΎΠ±ΠΎΠ·Π½Π°ΡΠ°ΡΡ, ΡΡΠΎ ΠΏΡΠΎΠΈΡΡ ΠΎΠ΄ΠΈΡ ΡΠ½ΠΈΠΆΠ΅Π½ΠΈΠ΅ ΡΠ΅ΠΌΠΏΠ΅ΡΠ°ΡΡΡΡ Π΄ΠΎ Π·Π°Π΄Π°Π½Π½ΠΎΠ³ΠΎ ΡΡΠΎΠ²Π½Ρ. Β«ΠΠΈΡΠΊΒ» Ρ ΠΎΠ»ΠΎΠ΄ΠΈΠ»ΡΠ½ΠΈΠΊΠ° ΠΌΠΎΠΆΠ΅Ρ ΡΠ°ΠΊΠΆΠ΅ ΠΏΡΠ΅Π΄ΡΠΏΡΠ΅ΠΆΠ΄Π°ΡΡ ΠΎΠ± ΡΡΠ΅ΡΠΊΠ΅ ΡΡΠ΅ΠΎΠ½Π°, ΡΠ±ΠΎΠ΅ Π² ΡΠ°Π±ΠΎΡΠ΅ ΡΠΏΡΠ°Π²Π»ΡΡΡΠ΅Π³ΠΎ ΡΡΡΡΠΎΠΉΡΡΠ²Π° ΠΈ Π΄Π°ΡΡΠΈΠΊΠΎΠ² ΡΠ΅ΠΌΠΏΠ΅ΡΠ°ΡΡΡΡ, Π½Π°ΠΌΠ΅ΡΠ·Π°Π½ΠΈΠΈ Π»ΡΠ΄Π° ΠΈ Π·Π°ΡΠΎΡΠ΅Π½ΠΈΠΈ Π΄ΡΠ΅Π½Π°ΠΆΠ½ΠΎΠ³ΠΎ ΠΎΡΠ²Π΅ΡΡΡΠΈΡ.
Π Π±ΠΎΠ»ΡΡΠΈΠ½ΡΡΠ²Π΅ ΡΠ»ΡΡΠ°Π΅Π² Π·Π²ΡΠΊΠΎΠ²ΠΎΠ΅ ΠΎΠΏΠΎΠ²Π΅ΡΠ΅Π½ΠΈΠ΅ Π΄ΠΎΠΏΠΎΠ»Π½ΡΠ΅ΡΡΡ ΡΠ²Π΅ΡΠΎΠ²ΠΎΠΉ ΡΠΈΠ³Π½Π°Π»ΠΈΠ·Π°ΡΠΈΠ΅ΠΉ. ΠΠ½Π° ΠΏΠΎΠ·Π²ΠΎΠ»ΡΠ΅Ρ Π±ΠΎΠ»Π΅Π΅ ΡΠΎΡΠ½ΠΎ Π»ΠΎΠΊΠ°Π»ΠΈΠ·ΠΎΠ²Π°ΡΡ ΠΏΡΠΎΠ±Π»Π΅ΠΌΡ, ΠΏΠΎΡΠΊΠΎΠ»ΡΠΊΡ ΠΈΡΠΏΠΎΠ»ΡΠ·ΡΠ΅Ρ Π½Π΅ ΡΠΎΠ»ΡΠΊΠΎ Π²ΠΊΠ»ΡΡΠ΅Π½ΠΈΠ΅ ΠΈ Π²ΡΠΊΠ»ΡΡΠ΅Π½ΠΈΠ΅ ΡΠ°Π·Π»ΠΈΡΠ½ΡΡ ΠΈΠ½Π΄ΠΈΠΊΠ°ΡΠΎΡΠΎΠ², Π½ΠΎ ΠΈ ΠΈΠ·ΠΌΠ΅Π½Π΅Π½ΠΈΠ΅ ΠΈΡ ΡΠ²Π΅ΡΠ° (ΠΊΠ°ΠΊ ΠΏΡΠ°Π²ΠΈΠ»ΠΎ, Π½Π° ΠΊΡΠ°ΡΠ½ΡΠΉ), Π° ΡΠ°ΠΊΠΆΠ΅ Π²ΡΠ²ΠΎΠ΄ Π½Π° Π΄ΠΈΡΠΏΠ»Π΅ΠΉ ΠΊΠΎΠ΄ΠΎΠ² ΠΎΡΠΈΠ±ΠΎΠΊ.

ΠΠ°ΡΠ΅ΠΌ ΠΎΡΡΠ°Π²Π»ΡΡΡ Ρ ΠΎΠ»ΠΎΠ΄ΠΈΠ»ΡΠ½ΠΈΠΊ ΡΠ°Π±ΠΎΡΠ°ΡΡΠΈΠΌ, ΠΏΠΎΠΊΠ° Π½ΠΈΠΊΠΎΠ³ΠΎ Π½Π΅Ρ? ΠΠ΅Π»ΠΎ Π² ΡΠΎΠΌ, ΡΡΠΎ Π΄Π°ΠΆΠ΅ Π±Π΅Π· ΠΏΡΠΎΠ΄ΡΠΊΡΠΎΠ² Π²ΡΠΊΠ»ΡΡΠ΅Π½Π½ΡΠΉ Π½Π°Π΄ΠΎΠ»Π³ΠΎ ΠΏΡΠΈΠ±ΠΎΡ ΠΏΡΠΈΠΎΠ±ΡΠ΅ΡΠ°Π΅Ρ Π·Π°ΡΡ Π»ΡΠΉ Π·Π°ΠΏΠ°Ρ , ΠΊΠΎΡΠΎΡΡΠΉ ΡΠ»ΠΎΠΆΠ½ΠΎ Π²ΡΠ²Π΅ΡΡΠΈ ΠΈΠ· ΠΊΠ°ΠΌΠ΅ΡΡ. ΠΡΠΈ Π½Π΅ΠΏΡΠ΅ΠΊΡΠ°ΡΠ°ΡΡΠ΅ΠΉΡΡ ΡΠ°Π±ΠΎΡΠ΅ Ρ ΡΠ΅ΠΌΠΏΠ΅ΡΠ°ΡΡΡΠΎΠΉ Π½Π° ΡΡΠΎΠ²Π½Π΅ ΠΎΠΊΡΡΠΆΠ°ΡΡΠ΅ΠΉ ΡΡΠ΅Π΄Ρ ΡΡΠ° ΠΏΡΠΎΠ±Π»Π΅ΠΌΠ° ΠΈΡΡΠ΅Π·Π°Π΅Ρ, Π° ΡΠ½Π΅ΡΠ³ΠΈΡ ΠΏΠΎΡΡΠΈ Π½Π΅ ΡΠ°ΡΡ ΠΎΠ΄ΡΠ΅ΡΡΡ.
ΠΠ²Π° Π²Π°ΡΠΈΠ°Π½ΡΠ° ΡΠ΅ΠΆΠΈΠΌΠ° Β«ΠΡΠΏΡΡΠΊΒ»:
- ΠΌΠΎΠΆΠ½ΠΎ Π½Π°ΡΡΡΠΎΠΈΡΡ ΡΠ΅ΠΌΠΏΠ΅ΡΠ°ΡΡΡΡ Π² Ρ ΠΎΠ»ΠΎΠ΄ΠΈΠ»ΡΠ½ΠΎΠΉ ΠΊΠ°ΠΌΠ΅ΡΠ΅ ΠΈ ΠΎΡΠΊΠ»ΡΡΠΈΡΡ ΠΌΠΎΡΠΎΠ·ΠΈΠ»ΡΠ½ΡΡ,
- Π½Π΅Π»ΡΠ·Ρ ΠΎΡΠΊΠ»ΡΡΠΈΡΡ ΠΌΠΎΡΠΎΠ·ΠΈΠ»ΡΠ½ΡΡ ΠΊΠ°ΠΌΠ΅ΡΡ, ΠΏΠΎΡΡΠΎΠΌΡ Π½ΡΠΆΠ½ΠΎ Π΄ΠΎΡΡΠΈΡΡ ΡΠ±Π°Π»Π°Π½ΡΠΈΡΠΎΠ²Π°Π½Π½ΠΎΠΉ ΡΠ΅ΠΌΠΏΠ΅ΡΠ°ΡΡΡΡ Π² ΠΎΠ±ΠΎΠΈΡ ΠΎΡΡΠ΅ΠΊΠ°Ρ .
ΠΠ°ΠΊΠΎΠΉ Π²Π°ΡΠΈΠ°Π½Ρ Π² Π²Π°ΡΠ΅ΠΌ Ρ ΠΎΠ»ΠΎΠ΄ΠΈΠ»ΡΠ½ΠΈΠΊΠ΅, Π·Π°Π²ΠΈΡΠΈΡ ΠΎΡ ΠΊΠΎΠ»ΠΈΡΠ΅ΡΡΠ²Π° ΠΊΠΎΠ½ΡΡΡΠΎΠ² ΠΎΡ Π»Π°ΠΆΠ΄Π΅Π½ΠΈΡ ΠΈ Π²ΠΎΠ·ΠΌΠΎΠΆΠ½ΠΎΡΡΠΈ ΡΠ΅Π³ΡΠ»ΠΈΡΠΎΠ²Π°ΡΡ ΠΊΠ»ΠΈΠΌΠ°Ρ ΠΏΠΎ-ΠΎΡΠ΄Π΅Π»ΡΠ½ΠΎΡΡΠΈ Π² ΡΠ°Π·Π½ΡΡ ΡΠ΅ΠΌΠΏΠ΅ΡΠ°ΡΡΡΠ½ΡΡ Π·ΠΎΠ½Π°Ρ .

ΠΠ½ΡΡΡΡΠΊΡΠΈΠΈ
Kuppersberg NFM 200 DX
59 990 ΡΡΠ±. Π΅ΡΡΡ Π² Π½Π°Π»ΠΈΡΠΈΠΈ?
ΠΠ° Π΄Π°Π½Π½ΡΠΉ ΠΌΠΎΠΌΠ΅Π½Ρ ΡΡΠΎΠΉ ΠΌΠΎΠ΄Π΅Π»ΠΈ Π½Π΅Ρ Π² Π½Π°Π»ΠΈΡΠΈΠΈ Π½Π° ΡΠΊΠ»Π°Π΄Π΅. ΠΠΎΡΡΡΠΏΠ½ΠΎΡΡΡ Π΄Π»Ρ Π·Π°ΠΊΠ°Π·Π° ΠΈ ΡΡΠΎΠΊΠΈ Π±ΡΠ΄ΡΡΠΈΡ ΠΏΠΎΡΡΠ°Π²ΠΎΠΊ ΡΠΎΠ²Π΅ΡΡΠ΅ΠΌ ΡΡΠΎΡΠ½ΡΡΡ Ρ Π½Π°ΡΠΈΡ ΠΌΠ΅Π½Π΅Π΄ΠΆΠ΅ΡΠΎΠ² ΠΏΠΎ ΡΠ΅Π»Π΅ΡΠΎΠ½Π°ΠΌ, ΡΠΊΠ°Π·Π°Π½Π½ΡΠΌ Π½Π° ΡΠ°ΠΉΡΠ΅. ΠΠ½ΠΈ ΡΠ°ΠΊΠΆΠ΅ ΠΏΠΎΠΌΠΎΠ³ΡΡ Π²Π°ΠΌ ΠΏΠΎΠ΄ΠΎΠ±ΡΠ°ΡΡ Π°Π»ΡΡΠ΅ΡΠ½Π°ΡΠΈΠ²Ρ ΠΈΠ· Π½Π°Π»ΠΈΡΠΈΡ.
ΠΠΎΡΡΠ°Π²ΠΊΠ° Π²Β Π²Π°Ρ Π³ΠΎΡΠΎΠ΄ ΠΎΡΡΡΠ΅ΡΡΠ²Π»ΡΠ΅ΡΡΡ ΠΌΠ°Π³Π°Π·ΠΈΠ½ΠΎΠΌ Π²Β ΡΠ»Π΅Π΄ΡΡΡΠ΅ΠΌ ΠΏΠΎΡΡΠ΄ΠΊΠ΅: ΠΏΠ΅ΡΠ΅ΠΌΠ΅ΡΠ΅Π½ΠΈΠ΅ ΡΠΎΠ²Π°ΡΠ° Π²Β Π·Π°Π²ΠΎΠ΄ΡΠΊΠΎΠΉ ΡΠΏΠ°ΠΊΠΎΠ²ΠΊΠ΅ Π΄ΠΎΒ ΡΠ΅ΡΠΌΠΈΠ½Π°Π»Π° ΡΡΠ°Π½ΡΠΏΠΎΡΡΠ½ΠΎΠΉ ΠΊΠΎΠΌΠΏΠ°Π½ΠΈΠΈ. ΠΡΒ ΠΌΠΎΠΆΠ΅ΡΠ΅ Π·Π°Π±ΡΠ°ΡΡ Π΅Π³ΠΎ ΠΎΡΡΡΠ΄Π° ΡΠ°ΠΌΠΎΡΡΠΎΡΡΠ΅Π»ΡΠ½ΠΎ ΠΈΠ»ΠΈ ΠΎΡΠΎΡΠΌΠΈΡΡ Π΄ΠΎΡΡΠ°Π²ΠΊΡ ΠΏΠΎΒ Π°Π΄ΡΠ΅ΡΡ ΠΏΡΠΎΠΆΠΈΠ²Π°Π½ΠΈΡΒ β ΠΎΠ½Π° ΠΏΡΠΎΠ²ΠΎΠ΄ΠΈΡΡΡ ΡΠΎΡΡΡΠ΄Π½ΠΈΠΊΠ°ΠΌΠΈΒ Π’Π.
Π‘ΡΠΎΠΈΠΌΠΎΡΡΡ ΠΈΒ ΡΡΠΎΠΊΠΈ Π΄ΠΎΡΡΠ°Π²ΠΊΠΈ Π΄Π°Π½Π½ΠΎΠΉ ΠΌΠΎΠ΄Π΅Π»ΠΈ Π·Π°Π²ΠΈΡΡΡ ΠΎΡΒ Π½Π΅ΡΠΊΠΎΠ»ΡΠΊΠΈΡ ΡΠ°ΠΊΡΠΎΡΠΎΠ²: Π½Π°Π»ΠΈΡΠΈΡ Π½Π°Β ΡΠΊΠ»Π°Π΄Π΅, ΡΠΏΠ΅ΡΠΈΠ°Π»ΡΠ½ΡΡ ΡΡΠ»ΠΎΠ²ΠΈΠΉ Π±ΡΠ΅Π½Π΄Π°. Π’ΠΎΡΠ½ΡΡ ΠΈΠ½ΡΠΎΡΠΌΠ°ΡΠΈΡ Π²Π°ΠΌ ΡΠΎΠΎΠ±ΡΠΈΡ ΠΌΠ΅Π½Π΅Π΄ΠΆΠ΅Ρ ΠΏΡΠΈ ΠΏΠΎΠ΄ΡΠ²Π΅ΡΠΆΠ΄Π΅Π½ΠΈΠΈ Π·Π°ΠΊΠ°Π·Π° ΠΏΠΎΒ ΡΠ΅Π»Π΅ΡΠΎΠ½Ρ.
ΠΠ° Π΄Π°Π½Π½ΡΠΉ ΠΌΠΎΠΌΠ΅Π½Ρ ΡΠΎΠ²Π°ΡΠ° Π½Π΅Ρ Π²Β Π½Π°Π»ΠΈΡΠΈΠΈ Π½Π°Β ΡΠΊΠ»Π°Π΄Π΅Β β Π΄Π»Ρ Π΄ΠΎΡΡΠ°Π²ΠΊΠΈ Π½Π΅ΠΎΠ±Ρ ΠΎΠ΄ΠΈΠΌΠΎ Π΄ΠΎΠΆΠ΄Π°ΡΡΡΡ Π΅Π³ΠΎ ΠΏΠΎΡΡΡΠΏΠ»Π΅Π½ΠΈΡ. ΠΡΠΈΠ΅Π½ΡΠΈΡΠΎΠ²ΠΎΡΠ½ΡΠ΅ ΡΡΠΎΠΊΠΈ ΠΎΡΠ³ΡΡΠ·ΠΊΠΈ ΠΎΠ·Π²ΡΡΠΈΡ ΠΌΠ΅Π½Π΅Π΄ΠΆΠ΅Ρ ΠΏΡΠΈ ΠΏΠΎΠ΄ΡΠ²Π΅ΡΠΆΠ΄Π΅Π½ΠΈΠΈ Π·Π°ΠΊΠ°Π·Π°.
ΠΠ°ΡΠ° Π΄ΠΎΡΡΠ°Π²ΠΊΠΈ Π·Π°ΡΠ°Π½Π΅Π΅ ΠΎΠ±Π³ΠΎΠ²Π°ΡΠΈΠ²Π°Π΅ΡΡΡΒ β Π΅ΡΠ»ΠΈ ΡΡΠ°Π½ΡΠΏΠΎΡΡΠ½Π°Ρ ΠΊΠΎΠΌΠΏΠ°Π½ΠΈΡ ΠΏΠΎΒ ΡΠ²ΠΎΠΈΠΌ ΠΏΡΠΈΡΠΈΠ½Π°ΠΌ Π½Π΅Β ΡΠΌΠΎΠΆΠ΅Ρ Π΅Π΅Β ΠΏΡΠΎΠ²Π΅ΡΡΠΈ, ΡΒ Π²Π°ΠΌΠΈ Π·Π°ΡΠ°Π½Π΅Π΅ ΡΠ²ΡΠΆΡΡΡΡ ΠΈΒ ΠΏΡΠ΅Π΄Π»ΠΎΠΆΠ°Ρ Π΄ΡΡΠ³ΠΈΠ΅ Π²Π°ΡΠΈΠ°Π½ΡΡ, ΡΠΎΠ³Π»Π°ΡΡΡ Π½ΠΎΠ²ΠΎΠ΅ ΡΠ΄ΠΎΠ±Π½ΠΎΠ΅ Π²Π°ΠΌ Π²ΡΠ΅ΠΌΡ ΠΏΡΠΈΠ΅ΠΌΠ° ΡΠΎΠ²Π°ΡΠ°. ΠΡΠ»ΠΈ Π²ΡΒ ΡΠ΅ΡΠΈΡΠ΅ ΠΈΠ·ΠΌΠ΅Π½ΠΈΡΡΒ Π΅Π΅, ΡΠ²ΡΠΆΠΈΡΠ΅ΡΡ ΡΒ Π½Π°ΠΌΠΈ. ΠΠ±ΡΠ°ΡΠΈΡΠ΅ Π²Π½ΠΈΠΌΠ°Π½ΠΈΠ΅: ΠΏΡΠΈ Π΄ΠΎΡΡΠ°Π²ΠΊΠ΅ Π΄ΠΎΒ ΠΊΠ²Π°ΡΡΠΈΡΡ Π²Β ΠΏΠΎΠ»Π½ΠΎΠΌΠΎΡΠΈΡ ΡΠ°Π±ΠΎΡΠ½ΠΈΠΊΠ° Π½Π΅Β Π²Ρ ΠΎΠ΄ΡΡ Π·Π°Π½ΠΎΡ ΡΠ΅Ρ Π½ΠΈΠΊΠΈ Π²Β ΠΏΠΎΠΌΠ΅ΡΠ΅Π½ΠΈΠ΅ ΠΈΠ»ΠΈ ΠΏΠΎΠ΄Π³ΠΎΡΠΎΠ²ΠΊΠ° Π΅Π΅Β ΠΊΒ ΡΡΡΠ°Π½ΠΎΠ²ΠΊΠ΅. ΠΠ½ΠΈΠΌΠ°ΡΠ΅Π»ΡΠ½ΠΎ ΠΎΡΠΌΠ°ΡΡΠΈΠ²Π°ΠΉΡΠ΅ ΡΠΎΠ²Π°Ρ ΠΏΡΠΈ ΠΏΠΎΠ»ΡΡΠ΅Π½ΠΈΠΈΒ β Π²ΡΒ ΠΌΠΎΠΆΠ΅ΡΠ΅ ΠΎΡΠΊΠ°Π·Π°ΡΡΡΡ Π΄ΠΎΒ ΠΏΠΎΠ΄ΠΏΠΈΡΠ°Π½ΠΈΡ Π΄ΠΎΠΊΡΠΌΠ΅Π½ΡΠΎΠ², Π΅ΡΠ»ΠΈ ΠΎΠ±Π½Π°ΡΡΠΆΠΈΠ»ΠΈ ΠΏΠΎΠ²ΡΠ΅ΠΆΠ΄Π΅Π½ΠΈΡ.
ΠΠΎΠ΄ΠΊΠ»ΡΡΠ΅Π½ΠΈΠ΅ ΠΎΡΡΡΠ΅ΡΡΠ²Π»ΡΠ΅ΡΡΡ ΠΎΡΠ΄Π΅Π»ΡΠ½ΠΎ ΠΎΡΒ Π΄ΠΎΡΡΠ°Π²ΠΊΠΈ ΠΊΠΎΠΌΠΏΠ°Π½ΠΈΡΠΌΠΈ-ΠΏΠ°ΡΡΠ½Π΅ΡΠ°ΠΌΠΈ, ΡΒ ΠΊΠΎΡΠΎΡΡΠΌΠΈ Π½Π°Ρ ΠΌΠ°Π³Π°Π·ΠΈΠ½ ΡΠΎΡΡΡΠ΄Π½ΠΈΡΠ°Π΅Ρ Π²Β ΠΠ°Π·Π°Π½ΠΈ. ΠΡΠΈΠ΅Π½ΡΠΈΡΠΎΠ²ΠΎΡΠ½ΡΡ ΡΡΠΎΠΈΠΌΠΎΡΡΡ Π΄Π»Ρ ΠΎΡΠ½ΠΎΠ²Π½ΡΡ ΠΊΠ°ΡΠ΅Π³ΠΎΡΠΈΠΉ ΡΠ΅Ρ Π½ΠΈΠΊΠΈ Π²ΡΒ ΠΌΠΎΠΆΠ΅ΡΠ΅ ΡΠ·Π½Π°ΡΡ Π²Β ΡΠΏΠ΅ΡΠΈΠ°Π»ΡΠ½ΠΎΠΌ ΡΠ°Π·Π΄Π΅Π»Π΅. Π’ΠΎΡΠ½ΡΡ ΡΠ΅Π½Ρ (Π²Β Π·Π°Π²ΠΈΡΠΈΠΌΠΎΡΡΠΈ ΠΎΡΒ ΠΊΠΎΠΌΠΏΠ°Π½ΠΈΠΈ) Π²Π°ΠΌ ΡΠΎΠΎΠ±ΡΠΈΡ ΠΌΠ΅Π½Π΅Π΄ΠΆΠ΅Ρ.
Π‘ΡΠΎΠΈΠΌΠΎΡΡΡ Π΄ΠΎΡΡΠ°Π²ΠΊΠΈ ΡΡΠΎΠ³ΠΎ ΡΠΎΠ²Π°ΡΠ° Π΄ΠΎΒ ΡΠ΅ΡΠΌΠΈΠ½Π°Π»Π° ΡΡΠ°Π½ΡΠΏΠΎΡΡΠ½ΠΎΠΉ ΠΊΠΎΠΌΠΏΠ°Π½ΠΈΠΈ ΡΠΎΠΎΠ±ΡΠΈΡ ΠΌΠ΅Π½Π΅Π΄ΠΆΠ΅Ρ ΠΏΡΠΈ ΠΏΠΎΠ΄ΡΠ²Π΅ΡΠΆΠ΄Π΅Π½ΠΈΠΈ Π·Π°ΠΊΠ°Π·Π° ΠΏΠΎΒ ΡΠ΅Π»Π΅ΡΠΎΠ½Ρ. Π’ΡΠ°Π½ΡΠΏΠΎΡΡΠΈΡΠΎΠ²ΠΊΠ° ΠΎΡΒ ΡΠ΅ΡΠΌΠΈΠ½Π°Π»Π° Π΄ΠΎΒ ΠΌΠ΅ΡΡΠ° ΠΏΡΠΎΠΆΠΈΠ²Π°Π½ΠΈΡ ΠΏΡΠΈ Π½Π΅ΠΎΠ±Ρ ΠΎΠ΄ΠΈΠΌΠΎΡΡΠΈ ΠΎΠΏΠ»Π°ΡΠΈΠ²Π°Π΅ΡΡΡ ΠΎΡΠ΄Π΅Π»ΡΠ½ΠΎ.
ΠΠΎΠ΄ΡΠ΅ΠΌ ΡΠ΅Ρ Π½ΠΈΠΊΠΈ Π½Π°Β Π»ΠΈΡΡΠ΅ ΡΡΠΎΠΈΡ ΠΎΡΒ 50Β Π΄ΠΎΒ 250 ΡΡΠ±Π»Π΅ΠΉ Π²Β Π·Π°Π²ΠΈΡΠΈΠΌΠΎΡΡΠΈ ΠΎΡΒ Π²Π΅ΡΠ° ΡΠΎΠ²Π°ΡΠ°. ΠΡΠ»ΠΈ Π²Β Π΄ΠΎΠΌΠ΅ Π½Π΅Ρ Π»ΠΈΡΡΠ°, ΡΠΎΒ ΠΏΠΎΠ΄ΡΠ΅ΠΌ ΠΎΠΏΠ»Π°ΡΠΈΠ²Π°Π΅ΡΡΡ ΠΏΠΎΒ ΡΡ Π΅ΠΌΠ΅ 50-250Β ΡΡΠ±Π»Π΅ΠΉ/ΡΡΠ°ΠΆ.
ΠΠΎΠ΄ΠΊΠ»ΡΡΠ΅Π½ΠΈΠ΅ ΡΡΠΎΠ³ΠΎ ΡΠΎΠ²Π°ΡΠ° ΠΎΠΏΠ»Π°ΡΠΈΠ²Π°Π΅ΡΡΡ Π²Β ΡΠΎΠΎΡΠ²Π΅ΡΡΡΠ²ΠΈΠΈ ΡΒ Π΄Π΅ΠΉΡΡΠ²ΡΡΡΠΈΠΌΠΈ ΡΠ°ΡΠΈΡΠ°ΠΌΠΈ.
ΠΠ½ΡΠ΅ΡΠ½Π΅Ρ-ΠΌΠ°Π³Π°Π·ΠΈΠ½ ΠΏΡΠ΅Π΄ΠΎΡΡΠ°Π²Π»ΡΠ΅Ρ Π΄Π²Π° ΠΎΡΠ½ΠΎΠ²Π½ΡΡ ΡΠΏΠΎΡΠΎΠ±Π° ΠΎΠΏΠ»Π°ΡΡ ΡΠΎΠ²Π°ΡΠ°, ΠΊΠΎΡΠΎΡΡΠ΅ ΠΌΠΎΠΆΠ½ΠΎ Π²ΡΠ±ΡΠ°ΡΡ ΠΏΡΠΈ ΠΎΡΠΎΡΠΌΠ»Π΅Π½ΠΈΠΈ Π·Π°ΠΊΠ°Π·Π° Π²Β ΠΊΠΎΡΠ·ΠΈΠ½Π΅:
- ΠΎΠ½Π»Π°ΠΉΠ½ ΡΠ΅ΡΠ΅Π· ΡΠ»Π΅ΠΊΡΡΠΎΠ½Π½ΡΡ ΡΠΈΡΡΠ΅ΠΌΡ ΠΏΠ»Π°ΡΠ΅ΠΆΠ΅ΠΉ;
- Π±Π΅Π·Π½Π°Π»ΠΈΡΠ½ΡΠΌ ΡΠ°ΡΡΠ΅ΡΠΎΠΌ.
ΠΡΠΈ ΠΏΠΎΠ΄ΡΠ²Π΅ΡΠΆΠ΄Π΅Π½ΠΈΠΈ Π·Π°ΠΊΠ°Π·Π° ΠΏΠΎΒ ΡΠ΅Π»Π΅ΡΠΎΠ½Ρ ΠΌΠ΅Π½Π΅Π΄ΠΆΠ΅Ρ ΡΠ°ΡΡΠΊΠ°ΠΆΠ΅Ρ Π²Π°ΠΌ, ΠΊΠ°ΠΊ ΠΎΡΠΎΡΠΌΠΈΡΡ ΠΏΡΠ΅Π΄ΠΎΠΏΠ»Π°ΡΡ.
ΠΠ° Π΄Π°Π½Π½ΡΠΉ ΡΠΎΠ²Π°Ρ ΡΠ°ΡΠΏΡΠΎΡΡΡΠ°Π½ΡΠ΅ΡΡΡ ΠΎΡΠΈΡΠΈΠ°Π»ΡΠ½Π°Ρ Π³Π°ΡΠ°Π½ΡΠΈΡ ΠΏΡΠΎΠΈΠ·Π²ΠΎΠ΄ΠΈΡΠ΅Π»Ρ. ΠΠ±ΡΠ»ΡΠΆΠΈΠ²Π°Π½ΠΈΠ΅ Π² ΡΠ΅ΡΠ΅Π½ΠΈΠ΅ Π²ΡΠ΅Π³ΠΎ Π³Π°ΡΠ°Π½ΡΠΈΠΉΠ½ΠΎΠ³ΠΎ ΡΡΠΎΠΊΠ° ΠΎΡΡΡΠ΅ΡΡΠ²Π»ΡΠ΅ΡΡΡ Π°Π²ΡΠΎΡΠΈΠ·ΠΎΠ²Π°Π½Π½ΡΠΌΠΈ ΡΠ΅ΡΠ²ΠΈΡΠ½ΡΠΌΠΈ ΡΠ΅Π½ΡΡΠ°ΠΌΠΈ ΠΏΡΠΎΠΈΠ·Π²ΠΎΠ΄ΠΈΡΠ΅Π»Ρ Π² ΡΠΎΠΎΡΠ²Π΅ΡΡΡΠ²ΠΈΠΈ Ρ ΡΡΠ΅Π±ΠΎΠ²Π°Π½ΠΈΡΠΌΠΈ, ΡΠΊΠ°Π·Π°Π½Π½ΡΠΌΠΈ Π² ΠΠ°ΠΊΠΎΠ½Π΅ Π Π€ Β«Π Π·Π°ΡΠΈΡΠ΅ ΠΏΡΠ°Π² ΠΏΠΎΡΡΠ΅Π±ΠΈΡΠ΅Π»Π΅ΠΉΒ».
ΠΠ±ΡΠ°ΡΠΈΡΠ΅ Π²Π½ΠΈΠΌΠ°Π½ΠΈΠ΅: Π³Π°ΡΠ°Π½ΡΠΈΠΉΠ½ΡΠΉ ΡΡΠΎΠΊ ΠΈ ΡΡΡΠ°Π½ΠΎΠ²Π»Π΅Π½Π½ΡΠΉ ΠΏΡΠΎΠΈΠ·Π²ΠΎΠ΄ΠΈΡΠ΅Π»Π΅ΠΌ ΡΡΠΎΠΊ ΡΠ»ΡΠΆΠ±Ρ β ΡΡΠΎ ΡΠ°Π·Π½ΡΠ΅ ΠΏΠΎΠ½ΡΡΠΈΡ. ΠΠ·Π³ΠΎΡΠΎΠ²ΠΈΡΠ΅Π»Ρ ΠΏΡΠΈΠ½ΠΈΠΌΠ°Π΅Ρ Π½Π° ΡΠ΅Π±Ρ ΠΎΡΠ²Π΅ΡΡΡΠ²Π΅Π½Π½ΠΎΡΡΡ ΠΏΠΎ ΡΡΡΡΠ°Π½Π΅Π½ΠΈΡ Π½Π΅ΠΈΡΠΏΡΠ°Π²Π½ΠΎΡΡΠ΅ΠΉ, Π΅ΡΠ»ΠΈ Π½Π΅ ΡΠΊΠ°Π·Π°Π½ΠΎ ΠΎΠ±ΡΠ°ΡΠ½ΠΎΠ³ΠΎ.
ΠΠΠΠΠ!
ΠΡΠΈ ΠΏΠΎΠ»ΡΡΠ΅Π½ΠΈΠΈ ΠΎΠ±ΡΠ·Π°ΡΠ΅Π»ΡΠ½ΠΎ ΠΎΡΠΌΠΎΡΡΠΈΡΠ΅ ΠΏΡΠΈΠ±ΠΎΡ: Π½Π΅Ρ Π»ΠΈ Π½Π° Π½Π΅ΠΌ ΠΌΠ΅Ρ
Π°Π½ΠΈΡΠ΅ΡΠΊΠΈΡ
ΠΏΠΎΠ²ΡΠ΅ΠΆΠ΄Π΅Π½ΠΈΠΉ, ΡΠΎΠΎΡΠ²Π΅ΡΡΡΠ²ΡΠ΅Ρ Π»ΠΈ ΠΊΠΎΠΌΠΏΠ»Π΅ΠΊΡΠ°ΡΠΈΡ Π·Π°ΡΠ²Π»Π΅Π½Π½ΠΎΠΉ.
ΠΠ±ΡΠ°ΡΠΈΡΠ΅ Π²Π½ΠΈΠΌΠ°Π½ΠΈΠ΅:
- ΠΡΡΡ ΡΡΠ½ΠΊΡΠΈΠΈ:
- ‐ ΠΡΠ΄Π΅Π»Π΅Π½ΠΈΠ΅ Π΄Π»Ρ Π±ΡΡΡΠ»ΠΎΠΊ
- ΠΡΡΠΎΡΠ°: Π±ΠΎΠ»ΡΡΠ΅ Π½Π° 1 ΡΠΌ
- ΠΠ»ΡΠ±ΠΈΠ½Π°: Π±ΠΎΠ»ΡΡΠ΅ Π½Π° 2.2 ΡΠΌ
- Π¦Π²Π΅Ρ: Π½Π΅ΡΠΆΠ°Π²Π΅ΡΡΠ°Ρ ΡΡΠ°Π»Ρ
- Π‘ΡΡΠ°Π½Π° ΠΏΡΠΎΠΈΠ·Π²ΠΎΠ΄ΠΈΡΠ΅Π»Ρ: Π’ΡΡΡΠΈΡ
- ΠΠ°Π±Π°ΡΠΈΡΡ (ΠΡ Π¨Ρ Π): 201Ρ 59.5Ρ 65.7 ΡΠΌ
- ΠΠ»ΠΈΠΌΠ°ΡΠΈΡΠ΅ΡΠΊΠΈΠΉ ΠΊΠ»Π°ΡΡ: SN-T
- ΠΠ΅Ρ ΡΡΠ½ΠΊΡΠΈΠΉ:
- ‐ ΠΠ½ΡΠΈΠ±Π°ΠΊΡΠ΅ΡΠΈΠ°Π»ΡΠ½ΠΎΠ΅ ΠΏΠΎΠΊΡΡΡΠΈΠ΅
- ‐ ΠΠΈΡΠΏΠ»Π΅ΠΉ
- ‐ Π€ΡΠ½ΠΊΡΠΈΡ ΡΡΠΏΠ΅ΡΠΎΡ Π»Π°ΠΆΠ΄Π΅Π½ΠΈΡ
- ‐ ΠΠΎΠ½Π° ΡΠ²Π΅ΠΆΠ΅ΡΡΠΈ
- ‐ ΠΠΎΡΠΎΠΊ Π΄Π»Ρ ΠΏΡΠΈΠ³ΠΎΡΠΎΠ²Π»Π΅Π½ΠΈΡ ΠΊΡΠ±ΠΈΠΊΠΎΠ² Π»ΡΠ΄Π°
- ‐ Π€ΡΠ½ΠΊΡΠΈΡ ΡΡΠΏΠ΅ΡΠ·Π°ΠΌΠΎΡΠ°ΠΆΠΈΠ²Π°Π½ΠΈΡ
- ‐ Π€ΡΠ½ΠΊΡΠΈΡ Β«ΠΡΠΏΡΡΠΊΒ»
- ‐ ΠΠ°ΡΠΈΡΠ° ΠΎΡ Π΄Π΅ΡΠ΅ΠΉ
- Π’ΠΈΠΏ: Π²ΡΡΡΠ°ΠΈΠ²Π°Π΅ΠΌΡΠΉ
- ΠΡΡΠΎΡΠ°: ΠΌΠ΅Π½ΡΡΠ΅ Π½Π° 21.5 ΡΠΌ
- Π¨ΠΈΡΠΈΠ½Π°: ΠΌΠ΅Π½ΡΡΠ΅ Π½Π° 5.5 ΡΠΌ
- ΠΠ»ΡΠ±ΠΈΠ½Π°: ΠΌΠ΅Π½ΡΡΠ΅ Π½Π° 9 ΡΠΌ
- Π¦Π²Π΅Ρ: ΠΏΠΎΠ΄ Π½Π°Π²Π΅Ρ Π²Π°ΡΠ΅Π³ΠΎ ΡΠ°ΡΠ°Π΄Π°
- ΠΠ»Π°ΡΡ ΡΠ½Π΅ΡΠ³ΠΎΠΏΠΎΡΡΠ΅Π±Π»Π΅Π½ΠΈΡ: A++